Размещено на портале Архи.ру (www.archi.ru)

12.02.2020

Арктический вуз

Нина Фролова
Объект:
Кампус Нунатта Арктического колледжа территории Нунавут – новое крыло
Адрес:
Канада, None, Икалуит.
Мастерская:
Teeple Architects
Авторский коллектив:
Teeple Architects: Stephen Teeple, Martin Baron, Julie Jira, Jason Nelson, Cameron Parkin, Miguel Sanchez Enkerlin, Allen Shariat, Petra Bogias, Guido Charito, Marine de Carbonnieres, Patrick Harvey, Melanie Lo, Fadi Salib, Nicole Vigneux, Robert Cheung, James Janzer, Mahsa Majidian, Tomer Diamant
 

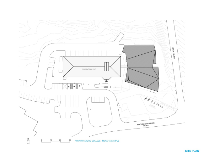
Новое крыло Арктического колледжа на острове Баффинова Земля на севере Канады. Авторы проекта – Teeple Architects из Торонто.

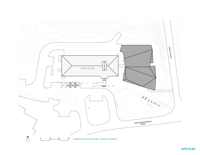
Арктический колледж дает самое разное образование населению территории Нунавут, охватывающей около половины канадского Крайнего Севера, причем его ключевая роль – в сохранении и распространении инуитской культуры и языка. Teeple Architects было поручено спроектировать новое крыло для этого колледжа, точнее, его кампуса Нунатта, размещающегося в одном здании в городе Икалуит – самом крупном поселении и столице территории Нунавут.

Кампус Нунатта Арктического колледжа территории Нунавут – новое крыло
Кампус Нунатта Арктического колледжа территории Нунавут – новое крыло
Фото © Julie Jira

Постройка вписана в скалистый рельеф острова Баффинова Земля; ее форму также определили направления ветров – чтобы избежать формирования сугробов и защитить южный фасад с главным входом. Косая линия этой стороны здания параллельна расположенному рядом инуксуку, подчеркивая его значение.
Кампус Нунатта Арктического колледжа территории Нунавут – новое крыло
Кампус Нунатта Арктического колледжа территории Нунавут – новое крыло
Фото © Julie Jira

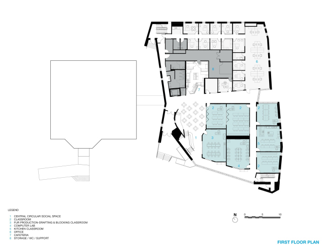
В интерьере центральное место получили пространства для занятий инуитскими исследованиями, а также дизайном и производством меховых изделий: они хорошо заметны посетителям и служат своего рода витриной для колледжа.
Кампус Нунатта Арктического колледжа территории Нунавут – новое крыло
Кампус Нунатта Арктического колледжа территории Нунавут – новое крыло
Фото © Julie Jira

Округлый вестибюль также играет роль главного общественного пространства, учебного и праздничного помещения.
Кампус Нунатта Арктического колледжа территории Нунавут – новое крыло
Кампус Нунатта Арктического колледжа территории Нунавут – новое крыло
Фото © Julie Jira

В условиях полярного климата (хотя Икалуит и расположен значительно южнее полярного круга) архитекторы постарались и обеспечить интерьер естественным освещением, и эффективно теплоизолировать его. Выходом стало использование стеклопластика, полупрозрачного остекления Solera и трехслойных стеклопакетов, что значительно уменьшило теплопотери.
Кампус Нунатта Арктического колледжа территории Нунавут – новое крыло
Кампус Нунатта Арктического колледжа территории Нунавут – новое крыло
Фото © Julie Jira

Остекление сосредоточено на южном фасаде и в верхнем уровне; в остальном здании применены узкие проемы. «Прорезь» в кровле обеспечивает солнечным светом центр постройки.
Кампус Нунатта Арктического колледжа территории Нунавут – новое крыло
Кампус Нунатта Арктического колледжа территории Нунавут – новое крыло
Фото © Julie Jira

В проекте широко использована древесина: сайдинг из мореных западной туи и гигантской туи на фасаде, открытая в интерьер конструкция из клееного бруса хвойных пород, рамы окон из массива белого дуба, панели и ограждение лестницы из веймутовой сосны, тонированной до более светлых и более темных оттенков.
Кампус Нунатта Арктического колледжа территории Нунавут – новое крыло
Кампус Нунатта Арктического колледжа территории Нунавут – новое крыло
Фото © Julie Jira

Из-за расположения Икалуита доставку материалов и готовых частей и порядок работ полностью подчинили наложенным климатом ограничениям. Основную часть груза привозили не самолетом, а водным путем, но Северный Ледовитый океан здесь судоходен только летом и в самом начале осени, поэтому была возможна доставка лишь в три «захода».
Кампус Нунатта Арктического колледжа территории Нунавут – новое крыло
Кампус Нунатта Арктического колледжа территории Нунавут – новое крыло
Фото © Julie Jira

Климатическими и транспортными условиями был обусловлен и порядок выполнения работ, и даже разработка BIM была в первую очередь нацелена на выработку оптимального алгоритма строительства, причем ей занимались изготовители деревянных и металлических частей конструкции, а архитекторы и инженеры – лишь внесли свои коррективы.
Кампус Нунатта Арктического колледжа территории Нунавут – новое крыло
Кампус Нунатта Арктического колледжа территории Нунавут – новое крыло
Фото © Julie Jira
Кампус Нунатта Арктического колледжа территории Нунавут – новое крыло
Кампус Нунатта Арктического колледжа территории Нунавут – новое крыло
Фото © Julie Jira
Кампус Нунатта Арктического колледжа территории Нунавут – новое крыло
Кампус Нунатта Арктического колледжа территории Нунавут – новое крыло
Фото © Julie Jira
Кампус Нунатта Арктического колледжа территории Нунавут – новое крыло
Кампус Нунатта Арктического колледжа территории Нунавут – новое крыло
Фото © Julie Jira
Кампус Нунатта Арктического колледжа территории Нунавут – новое крыло
Кампус Нунатта Арктического колледжа территории Нунавут – новое крыло
Фото © Julie Jira
Кампус Нунатта Арктического колледжа территории Нунавут – новое крыло
Кампус Нунатта Арктического колледжа территории Нунавут – новое крыло
Фото © Julie Jira
Кампус Нунатта Арктического колледжа территории Нунавут – новое крыло
Кампус Нунатта Арктического колледжа территории Нунавут – новое крыло
Фото © Julie Jira
Кампус Нунатта Арктического колледжа территории Нунавут – новое крыло
Кампус Нунатта Арктического колледжа территории Нунавут – новое крыло
© Teeple Architects
Кампус Нунатта Арктического колледжа территории Нунавут – новое крыло
Кампус Нунатта Арктического колледжа территории Нунавут – новое крыло
© Teeple Architects
Кампус Нунатта Арктического колледжа территории Нунавут – новое крыло
Кампус Нунатта Арктического колледжа территории Нунавут – новое крыло
© Teeple Architects
Кампус Нунатта Арктического колледжа территории Нунавут – новое крыло
Кампус Нунатта Арктического колледжа территории Нунавут – новое крыло
© Teeple Architects
Кампус Нунатта Арктического колледжа территории Нунавут – новое крыло
Кампус Нунатта Арктического колледжа территории Нунавут – новое крыло
© Teeple Architects
Кампус Нунатта Арктического колледжа территории Нунавут – новое крыло
Кампус Нунатта Арктического колледжа территории Нунавут – новое крыло
© Teeple Architects
Кампус Нунатта Арктического колледжа территории Нунавут – новое крыло
Кампус Нунатта Арктического колледжа территории Нунавут – новое крыло
© Teeple Architects
Кампус Нунатта Арктического колледжа территории Нунавут – новое крыло
Кампус Нунатта Арктического колледжа территории Нунавут – новое крыло
© Teeple Architects
Кампус Нунатта Арктического колледжа территории Нунавут – новое крыло
Кампус Нунатта Арктического колледжа территории Нунавут – новое крыло
© Teeple Architects
Кампус Нунатта Арктического колледжа территории Нунавут – новое крыло
Кампус Нунатта Арктического колледжа территории Нунавут – новое крыло
© Teeple Architects
Кампус Нунатта Арктического колледжа территории Нунавут – новое крыло
Кампус Нунатта Арктического колледжа территории Нунавут – новое крыло
© Teeple Architects
Кампус Нунатта Арктического колледжа территории Нунавут – новое крыло
Кампус Нунатта Арктического колледжа территории Нунавут – новое крыло
© Teeple Architects
Кампус Нунатта Арктического колледжа территории Нунавут – новое крыло
Кампус Нунатта Арктического колледжа территории Нунавут – новое крыло
© Teeple Architects
Кампус Нунатта Арктического колледжа территории Нунавут – новое крыло
Кампус Нунатта Арктического колледжа территории Нунавут – новое крыло
© Teeple Architects
Кампус Нунатта Арктического колледжа территории Нунавут – новое крыло
Кампус Нунатта Арктического колледжа территории Нунавут – новое крыло
© Teeple Architects
Кампус Нунатта Арктического колледжа территории Нунавут – новое крыло
Кампус Нунатта Арктического колледжа территории Нунавут – новое крыло
© Teeple Architects