Размещено на портале Архи.ру (www.archi.ru)

12.02.2020

Рядом с лондонским вокзалом Кингс-Кросс появился павильон с узорным чугунным фасадом

Алина Измайлова
Мастерская:
Bell Phillips Architects

В центре Лондона, у вокзала Кингс-Кросс построен павильон по проекту бюро Bell Phillips Architects. Примерно половину из общих 209 м2 занимает закусочная Sons & Daughters, остальное отведено под общественные туалет и лифт, ведущий на модную торговую улицу Lower Stable Street.

Павильон в квартале «Кингс-Кросс Сентрал»
Павильон в квартале «Кингс-Кросс Сентрал»
Предоставлена Bell Phillips Architects

Самое примечательное в строении Bell Phillips Architects – это чугунный фасад. Накладные панели из чугуна, которыми обшито строение, и их рельефный декор, повторяющий молекулярную структуру угля, напоминают об индустриальном прошлом района Кингс-Кросс. Совсем рядом находятся бывшие угольные склады, ныне вместившие торговый центр Coal Drops Yard.
Павильон в квартале «Кингс-Кросс Сентрал»
Павильон в квартале «Кингс-Кросс Сентрал»
Предоставлена Bell Phillips Architects

Литая металлическая конструкция, изготовленная британской компанией FSE Foundry – в той части, которая находится выше уровня кровли – служит также ограждением. «Молекулярный узор» повторяется также в рисунке шахты лифта. Преобразованием среды вокруг павильона занималась ландшафтная мастерская Townshend Landscape Architects.
Павильон в квартале «Кингс-Кросс Сентрал»
Павильон в квартале «Кингс-Кросс Сентрал»
Предоставлена Bell Phillips Architects

Квартал Кингс-Кросс возник на месте бывшей промзоны у одноименного вокзала в северной части центра Лондона; работы начались в 2008 и продолжаются до сих пор. Это во всех смыслах очень масштабный проект: в ревитализации участка площадью 27 гектаров принимают участие 35 архитекторов, бюджет составляет 3 млрд фунтов стерлингов.
Павильон в квартале «Кингс-Кросс Сентрал»
Павильон в квартале «Кингс-Кросс Сентрал»
Предоставлена Bell Phillips Architects

Павильон, созданный архитекторами Bell Phillips Architects, в буквальном смысле подчиняется исторической данности: так, он «терпеливо» врастает в него, используя перепад уровней: в результате, его кровля – часть мостовой. В ближайшем соседстве с «чугунной» постройкой находятся два популярных объекта Кингс-Кросса: площадь Грэнери-сквер и торговый комплекс Coal Drops Yard, реконструкция складов авторства Томаса Хезервика. Новый объект находится прямо между ними и – с его набором «предметов первой необходимости» – служит своего рода перевалом, связующим звеном для этих двух точек.
Павильон в квартале «Кингс-Кросс Сентрал»
Павильон в квартале «Кингс-Кросс Сентрал»
Предоставлена Bell Phillips Architects

Павильон с металлическим фасадом – второй общественный проект Bell Phillips Architects для Кингс-Кросс. Первым стал мини-парк, устроенный внутри бывшего газгольдера в 2015.
Павильон в квартале «Кингс-Кросс Сентрал»
Павильон в квартале «Кингс-Кросс Сентрал»
Предоставлена Bell Phillips Architects
Павильон в квартале «Кингс-Кросс Сентрал»
Павильон в квартале «Кингс-Кросс Сентрал»
Предоставлена Bell Phillips Architects
Павильон в квартале «Кингс-Кросс Сентрал»
Павильон в квартале «Кингс-Кросс Сентрал»
Предоставлена Bell Phillips Architects
Павильон в квартале «Кингс-Кросс Сентрал»
Павильон в квартале «Кингс-Кросс Сентрал»
Предоставлена Bell Phillips Architects
Павильон в квартале «Кингс-Кросс Сентрал»
Павильон в квартале «Кингс-Кросс Сентрал»
Предоставлена Bell Phillips Architects
Павильон в квартале «Кингс-Кросс Сентрал»
Павильон в квартале «Кингс-Кросс Сентрал»
Предоставлена Bell Phillips Architects
Павильон в квартале «Кингс-Кросс Сентрал»
Павильон в квартале «Кингс-Кросс Сентрал»
Предоставлена Bell Phillips Architects
Павильон в квартале «Кингс-Кросс Сентрал»
Павильон в квартале «Кингс-Кросс Сентрал»
Предоставлена Bell Phillips Architects
Павильон в квартале «Кингс-Кросс Сентрал»
Павильон в квартале «Кингс-Кросс Сентрал»
Предоставлена Bell Phillips Architects
Павильон в квартале «Кингс-Кросс Сентрал»
Павильон в квартале «Кингс-Кросс Сентрал»
Предоставлена Bell Phillips Architects
Павильон в квартале «Кингс-Кросс Сентрал»
Павильон в квартале «Кингс-Кросс Сентрал»
Предоставлена Bell Phillips Architects
Павильон в квартале «Кингс-Кросс Сентрал»
Павильон в квартале «Кингс-Кросс Сентрал»
Предоставлена Bell Phillips Architects
Павильон в квартале «Кингс-Кросс Сентрал»
Павильон в квартале «Кингс-Кросс Сентрал»
Предоставлена Bell Phillips Architects
Павильон в квартале «Кингс-Кросс Сентрал»
Павильон в квартале «Кингс-Кросс Сентрал»
Предоставлена Bell Phillips Architects
Павильон в квартале «Кингс-Кросс Сентрал». Разрез (южный фасад)
Павильон в квартале «Кингс-Кросс Сентрал». Разрез (южный фасад)
Предоставлена Bell Phillips Architects
Павильон в квартале «Кингс-Кросс Сентрал». Разрез (западный фасад)
Павильон в квартале «Кингс-Кросс Сентрал». Разрез (западный фасад)
Предоставлена Bell Phillips Architects
Павильон в квартале «Кингс-Кросс Сентрал». Облицовка фасада
Павильон в квартале «Кингс-Кросс Сентрал». Облицовка фасада
Предоставлена Bell Phillips Architects
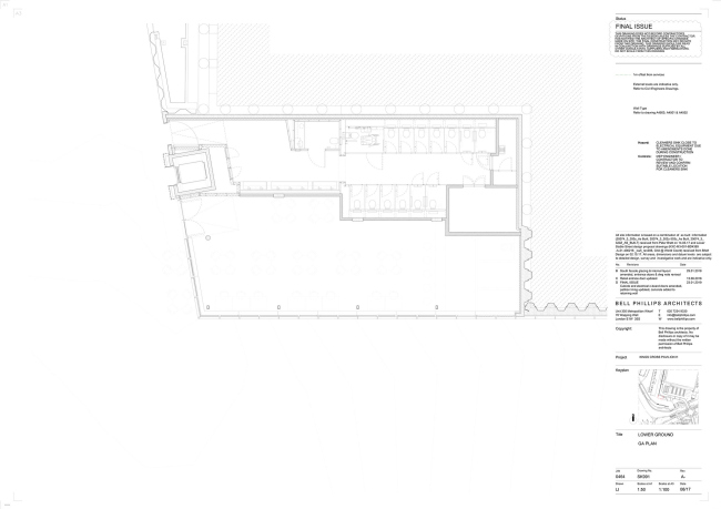
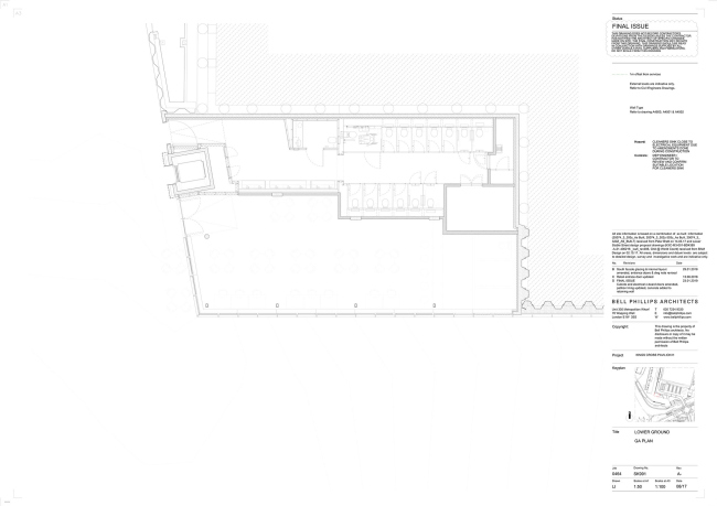
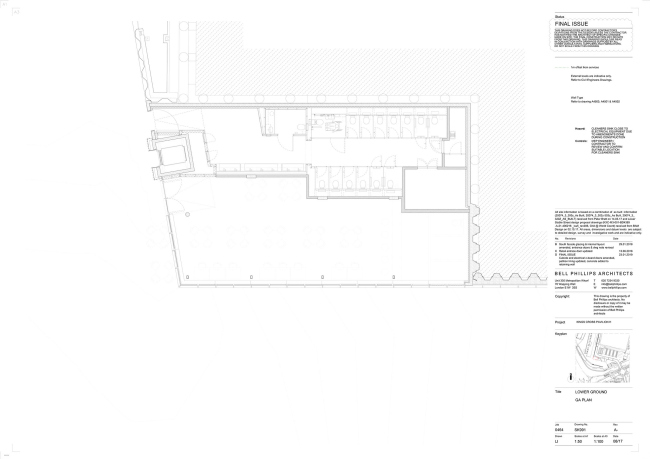
Павильон в квартале «Кингс-Кросс Сентрал». План первого этажа
Павильон в квартале «Кингс-Кросс Сентрал». План первого этажа
Предоставлена Bell Phillips Architects
Павильон в квартале «Кингс-Кросс Сентрал». План первого этажа (в цвете)
Павильон в квартале «Кингс-Кросс Сентрал». План первого этажа (в цвете)
Предоставлена Bell Phillips Architects