Размещено на портале Архи.ру (www.archi.ru)

06.02.2020

Одновременное развитие экономики и кино

Нина Фролова
Объект:
Здание Латиноамериканского банка развития CAF
Адрес:
Уругвай, None, Монтевидео.
Мастерская:
LAPS Arquitectos

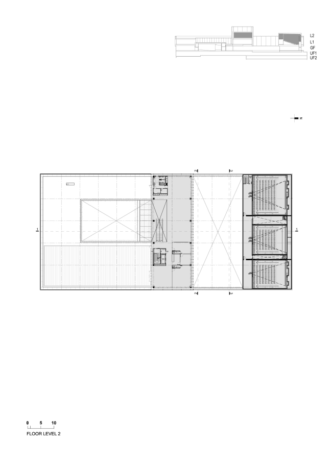
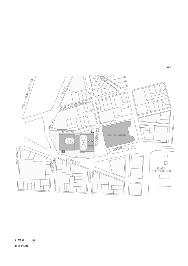
В бывшем здании центрального рынка Монтевидео уругвайское бюро LAPS Arquitectos разместило штаб-квартиру Латиноамериканского банка развития CAF, национальную синематеку, легендарный бар и общественное пространство.

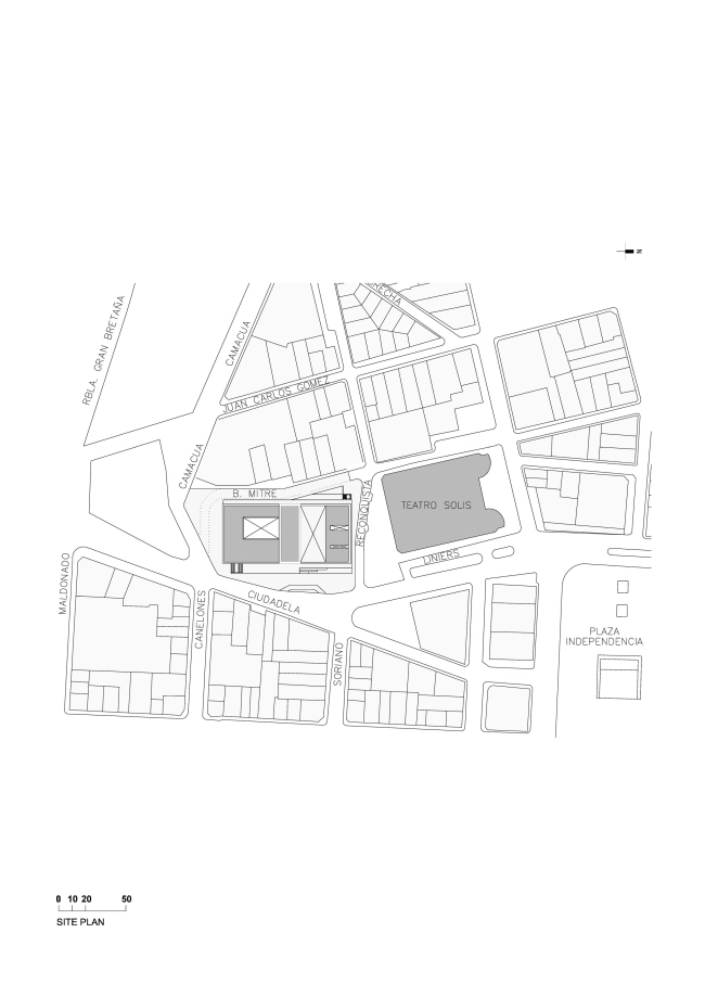
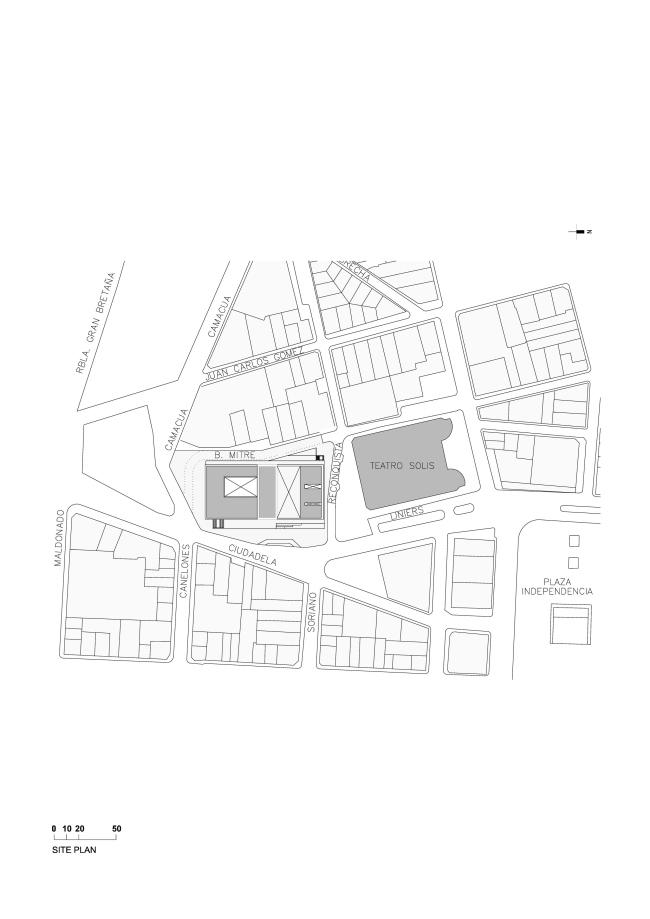
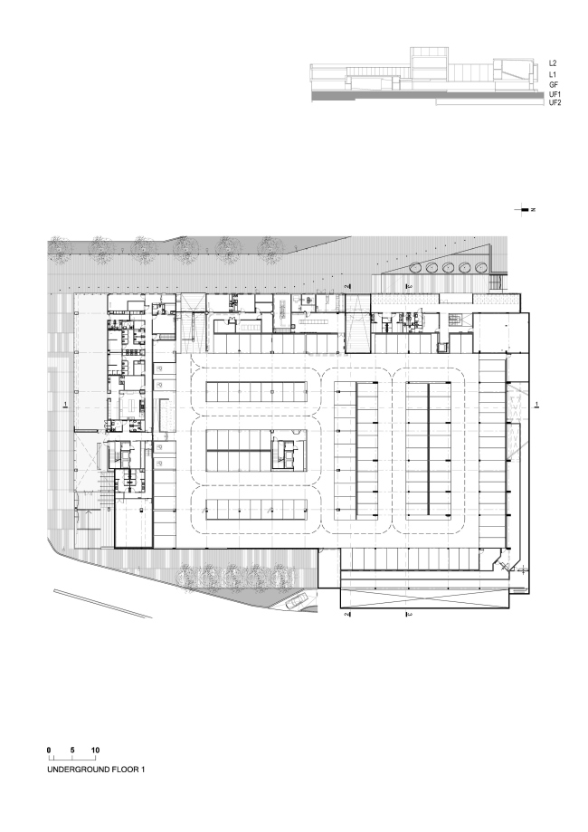
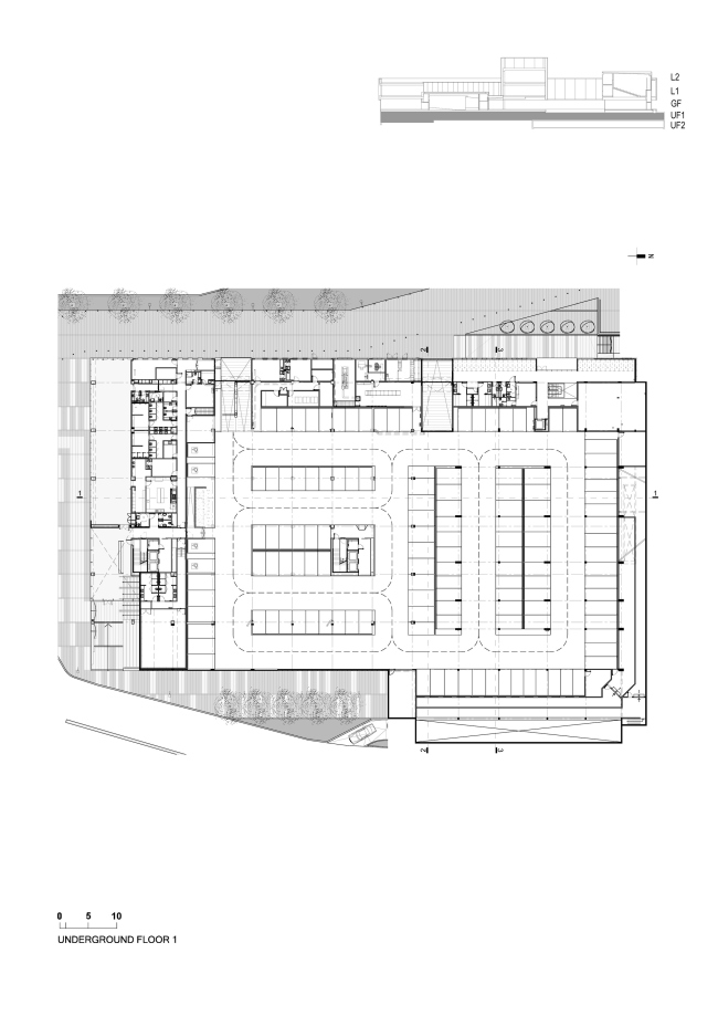
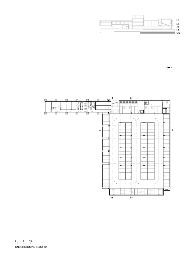
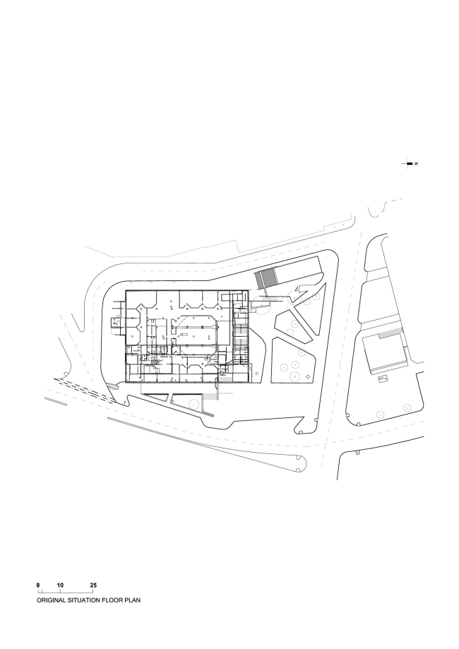
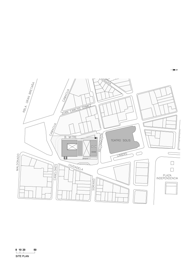
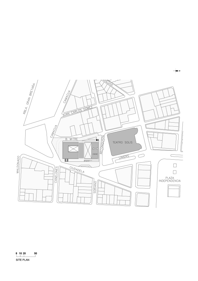
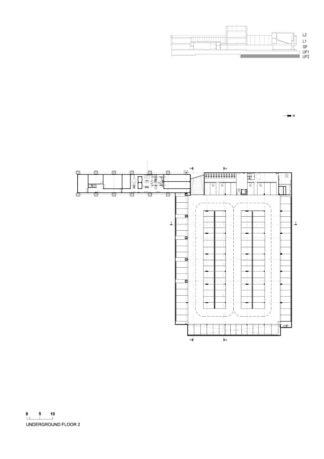
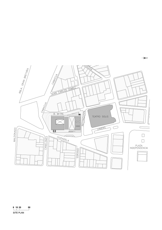
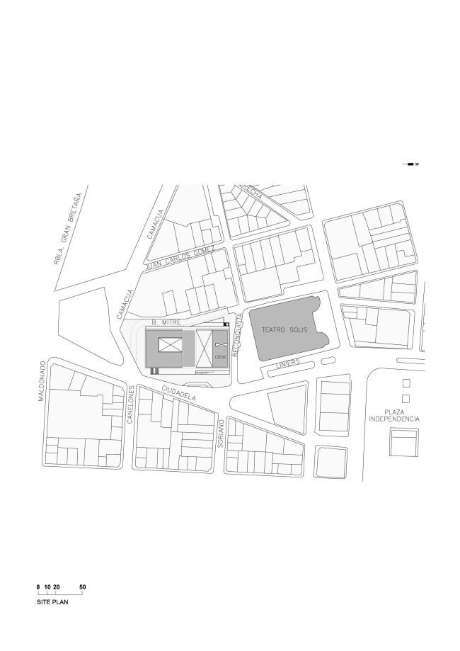
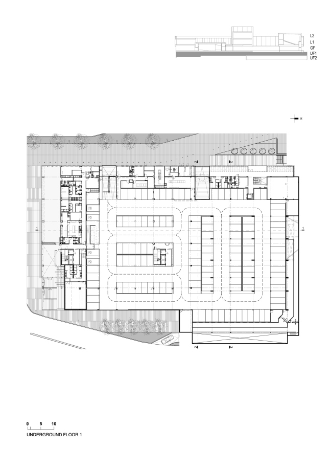
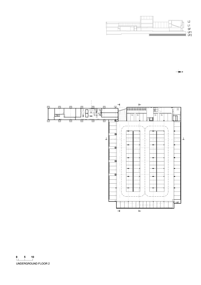
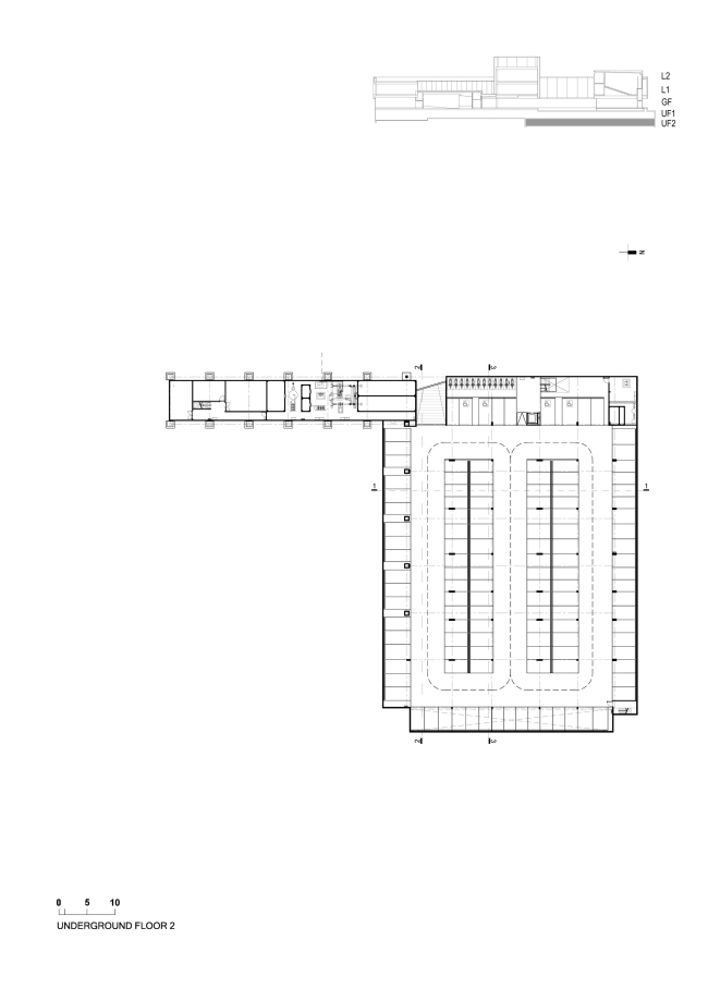
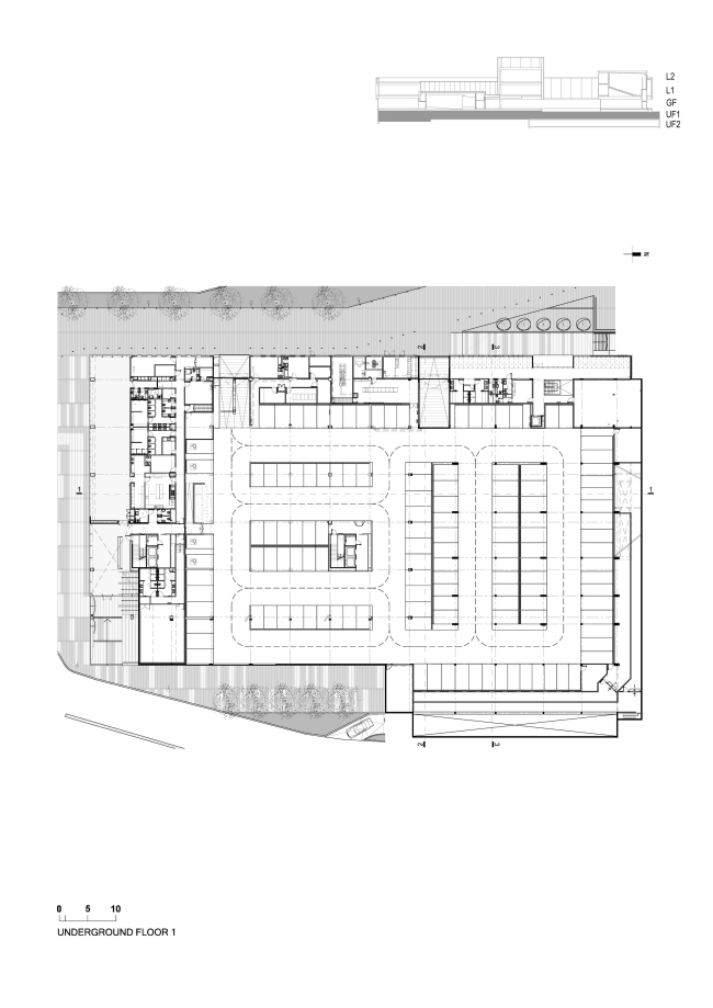
Бывший центральный рынок находится на границе Старого города и более новых районов столицы Уругвая. На его месте заданием конкурса 2012 года предлагалось создать штаб-квартиру для Латиноамериканского банка развития CAF (точнее, для подразделения, отвечающего за регион «Юг»), а также разместить Уругвайскую синематеку, основанный еще в 1895 бар Fun Fun, парковку на 150 машиномест, общественную раздевалку и благоустроить прилегающее пространство.
 

Здание Латиноамериканского банка развития CAF
Здание Латиноамериканского банка развития CAF
Фото © Javier Agustín Rojas
Здание Латиноамериканского банка развития CAF
Здание Латиноамериканского банка развития CAF
Фото © Javier Agustín Rojas
Здание Латиноамериканского банка развития CAF
Здание Латиноамериканского банка развития CAF
Фото © Javier Agustín Rojas

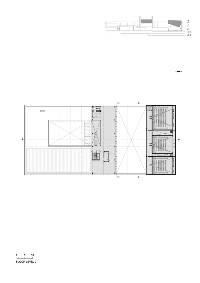
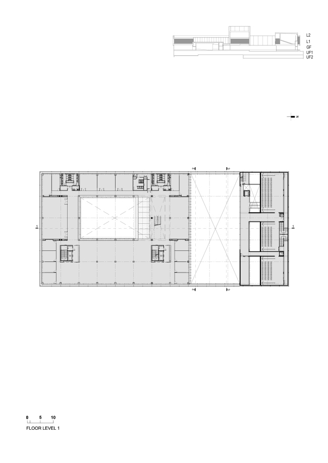
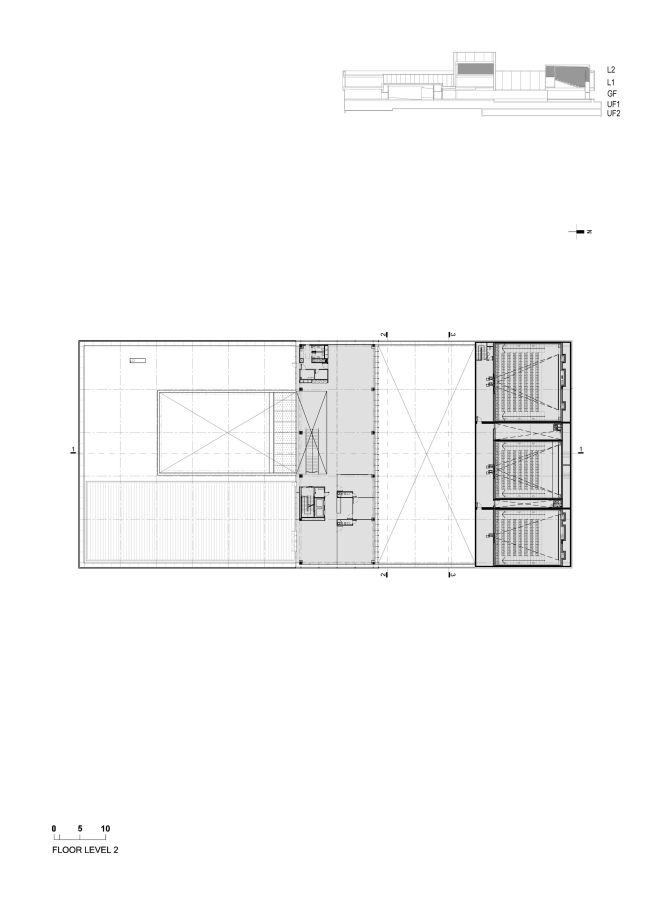
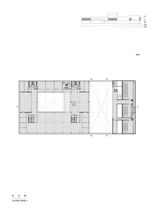
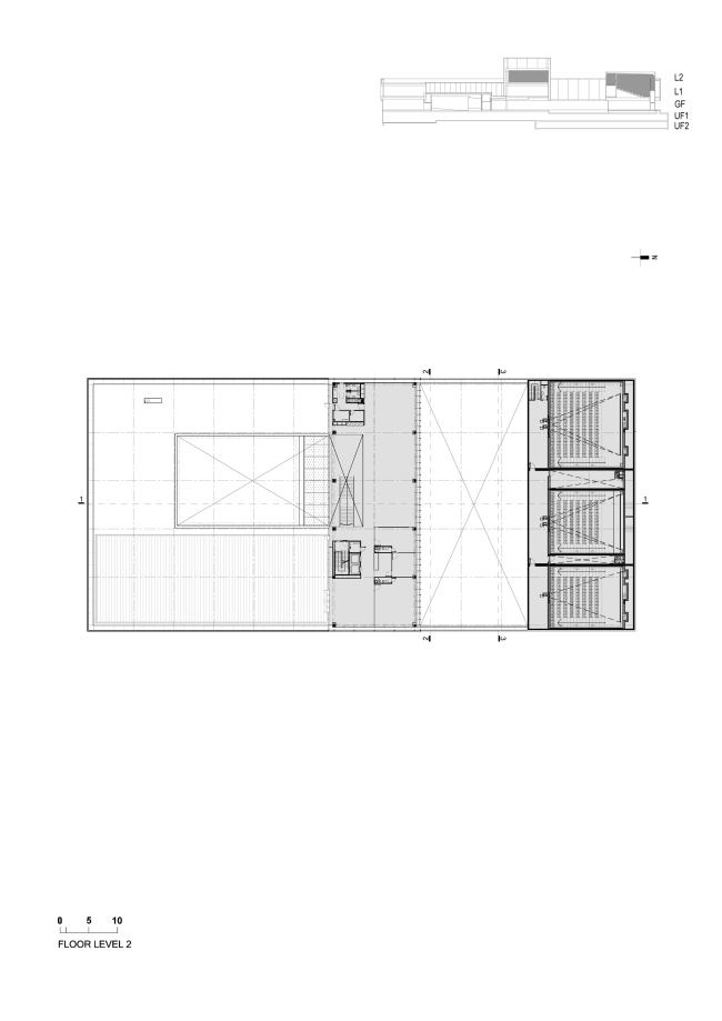
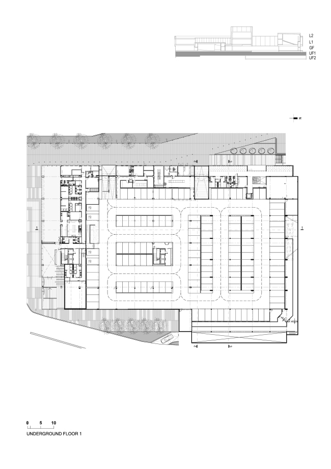
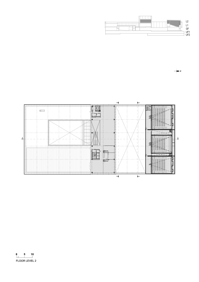
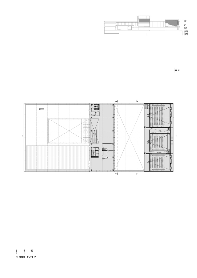
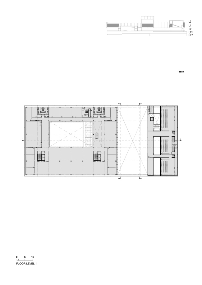
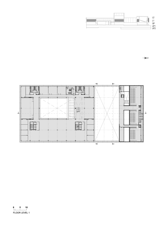
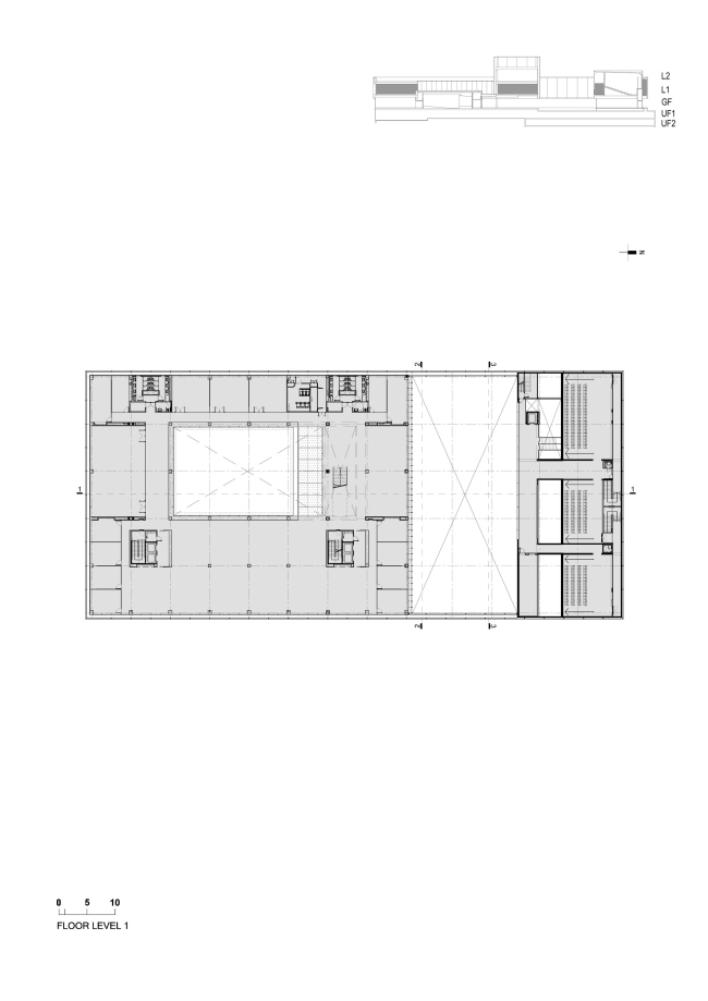
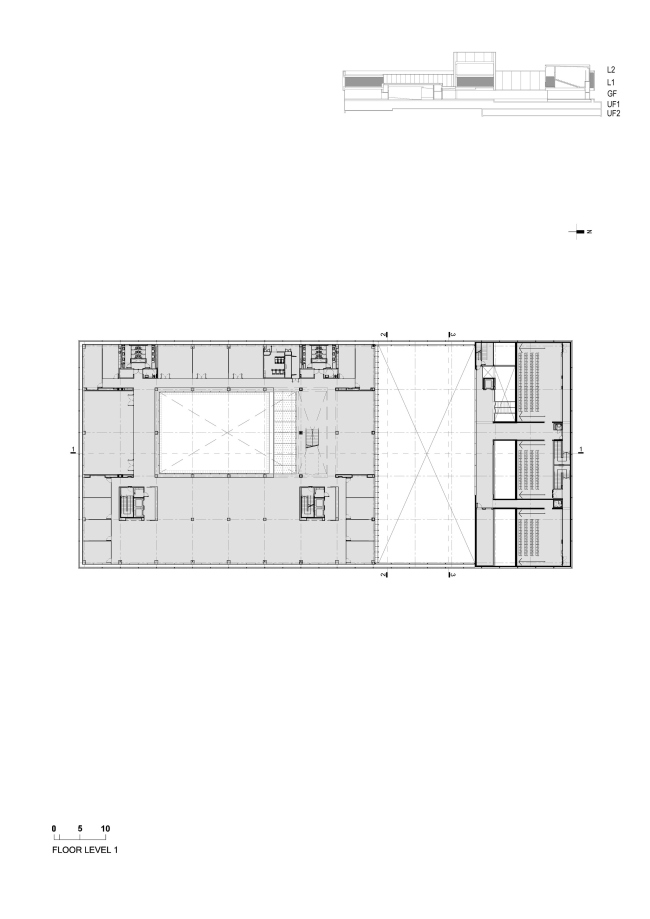
Ключевым ходом LAPS Arquitectos стало сохранение здания рынка, в тот момент закрытого и ветшающего: банк теперь помещен именно в нем. В пристроенном к нему новом крыле открылись синематека и бар. Старая и новая половины образуют внутренний двор, общественное пространство, защищенное от ветра с реки Ла-Плата – ее берег совсем рядом.
 
Здание Латиноамериканского банка развития CAF
Здание Латиноамериканского банка развития CAF
Фото © Javier Agustín Rojas
Здание Латиноамериканского банка развития CAF
Здание Латиноамериканского банка развития CAF
Фото © Javier Agustín Rojas
Здание Латиноамериканского банка развития CAF
Здание Латиноамериканского банка развития CAF
Фото © Javier Agustín Rojas

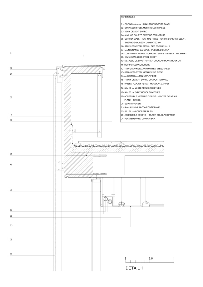
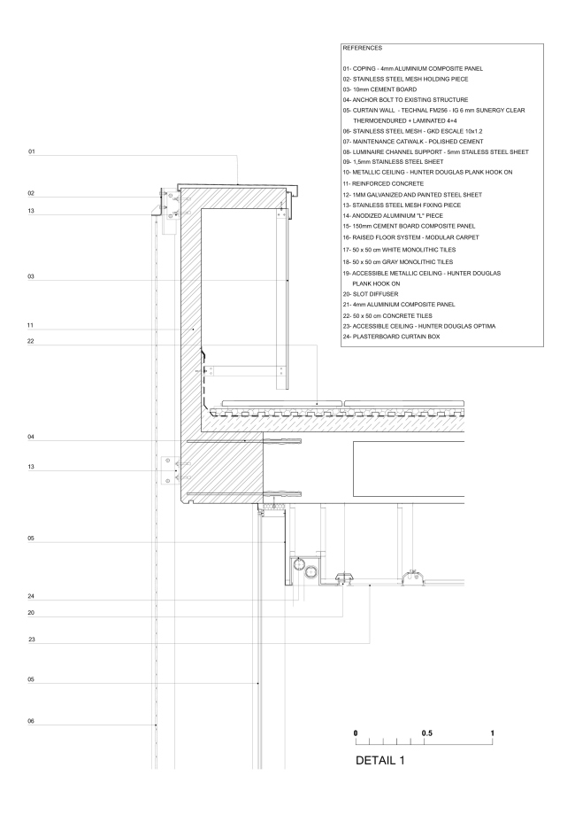
Архитекторы предпочли сделать здание невысоким, с большим пятном застройки: так, один из фасадов достигает длины в 96 метров. Цельность облику придают сетчатые экраны из нержавеющей стали: они «нюансируют» отношения постройки и ее окружения и защищают интерьеры от солнечных лучей.
 
Здание Латиноамериканского банка развития CAF
Здание Латиноамериканского банка развития CAF
Фото © Javier Agustín Rojas
Здание Латиноамериканского банка развития CAF
Здание Латиноамериканского банка развития CAF
Фото © Javier Agustín Rojas
Здание Латиноамериканского банка развития CAF
Здание Латиноамериканского банка развития CAF
Фото © Javier Agustín Rojas

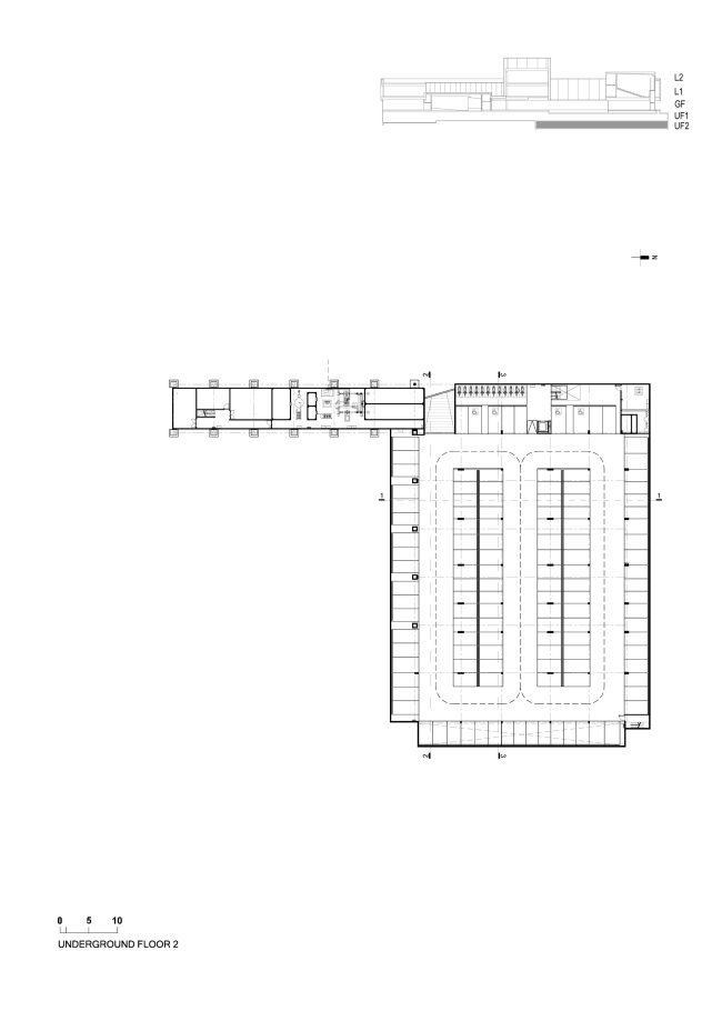
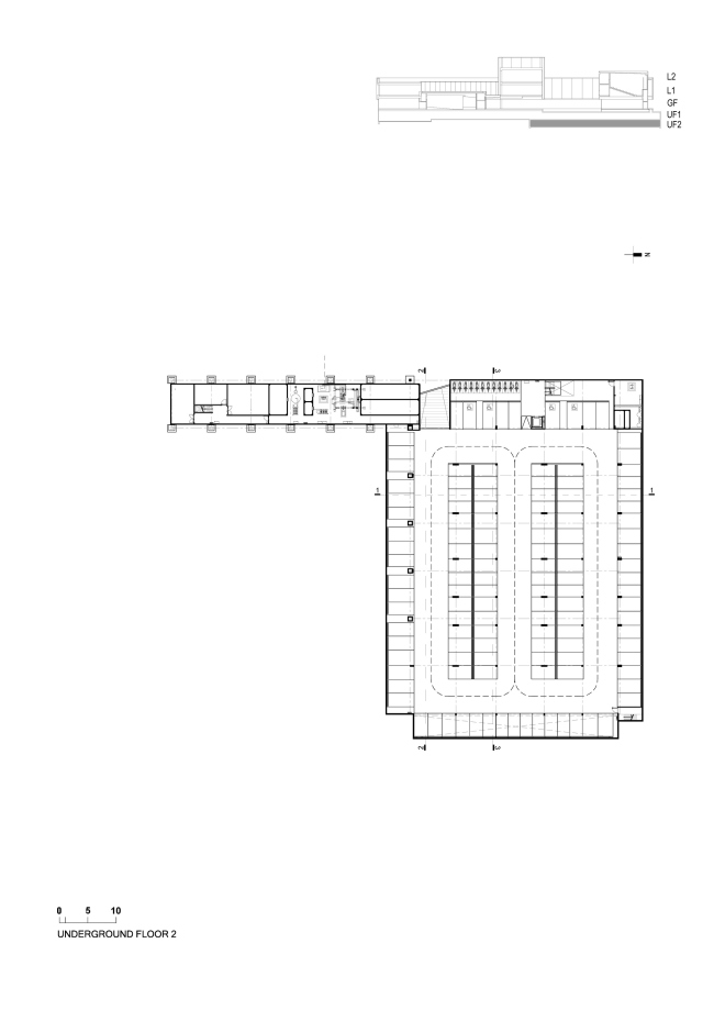
Платформа-цоколь с гаражом внутри создает серию общественных и полуобщественных пространств, которые используются для кинопоказов, концертов и других мероприятий учреждений-«обитателей». Также они создают пространственную связь с находящимся рядом театром «Солис».


 
Здание Латиноамериканского банка развития CAF Фото © Javier Agustín Rojas
Здание Латиноамериканского банка развития CAF
Фото © Javier Agustín Rojas
Здание Латиноамериканского банка развития CAF Фото © Javier Agustín Rojas
Здание Латиноамериканского банка развития CAF
Фото © Javier Agustín Rojas
Здание Латиноамериканского банка развития CAF Фото © Javier Agustín Rojas
Здание Латиноамериканского банка развития CAF
Фото © Javier Agustín Rojas
Здание Латиноамериканского банка развития CAF Фото © Javier Agustín Rojas
Здание Латиноамериканского банка развития CAF
Фото © Javier Agustín Rojas
Здание Латиноамериканского банка развития CAF Фото © Javier Agustín Rojas
Здание Латиноамериканского банка развития CAF
Фото © Javier Agustín Rojas
Здание Латиноамериканского банка развития CAF Фото © Javier Agustín Rojas
Здание Латиноамериканского банка развития CAF
Фото © Javier Agustín Rojas
Здание Латиноамериканского банка развития CAF
Здание Латиноамериканского банка развития CAF
Фото © Javier Agustín Rojas
Здание Латиноамериканского банка развития CAF
Здание Латиноамериканского банка развития CAF
Фото © Javier Agustín Rojas
Здание Латиноамериканского банка развития CAF
Здание Латиноамериканского банка развития CAF
Фото © Javier Agustín Rojas
Здание Латиноамериканского банка развития CAF
Здание Латиноамериканского банка развития CAF
Фото © Javier Agustín Rojas
Здание Латиноамериканского банка развития CAF
Здание Латиноамериканского банка развития CAF
Фото © Javier Agustín Rojas
Здание Латиноамериканского банка развития CAF
Здание Латиноамериканского банка развития CAF
Фото © Javier Agustín Rojas
Здание Латиноамериканского банка развития CAF
Здание Латиноамериканского банка развития CAF
Фото © Javier Agustín Rojas
Здание Латиноамериканского банка развития CAF
Здание Латиноамериканского банка развития CAF
Фото © Javier Agustín Rojas
Здание Латиноамериканского банка развития CAF
Здание Латиноамериканского банка развития CAF
Фото © Javier Agustín Rojas
Здание Латиноамериканского банка развития CAF
Здание Латиноамериканского банка развития CAF
Фото © Javier Agustín Rojas
Здание Латиноамериканского банка развития CAF
Здание Латиноамериканского банка развития CAF
Фото © Javier Agustín Rojas
Здание Латиноамериканского банка развития CAF
Здание Латиноамериканского банка развития CAF
Фото © Javier Agustín Rojas
Здание Латиноамериканского банка развития CAF
Здание Латиноамериканского банка развития CAF
Фото © Javier Agustín Rojas
Здание Латиноамериканского банка развития CAF
Здание Латиноамериканского банка развития CAF
Фото © Javier Agustín Rojas
Здание Латиноамериканского банка развития CAF
Здание Латиноамериканского банка развития CAF
© LAPS Arquitectos
Здание Латиноамериканского банка развития CAF
Здание Латиноамериканского банка развития CAF
© LAPS Arquitectos
Здание Латиноамериканского банка развития CAF
Здание Латиноамериканского банка развития CAF
© LAPS Arquitectos
Здание Латиноамериканского банка развития CAF
Здание Латиноамериканского банка развития CAF
© LAPS Arquitectos
Здание Латиноамериканского банка развития CAF
Здание Латиноамериканского банка развития CAF
© LAPS Arquitectos
Здание Латиноамериканского банка развития CAF
Здание Латиноамериканского банка развития CAF
© LAPS Arquitectos
Здание Латиноамериканского банка развития CAF
Здание Латиноамериканского банка развития CAF
© LAPS Arquitectos
Здание Латиноамериканского банка развития CAF
Здание Латиноамериканского банка развития CAF
© LAPS Arquitectos
Здание Латиноамериканского банка развития CAF
Здание Латиноамериканского банка развития CAF
© LAPS Arquitectos
Здание Латиноамериканского банка развития CAF
Здание Латиноамериканского банка развития CAF
© LAPS Arquitectos
Здание Латиноамериканского банка развития CAF
Здание Латиноамериканского банка развития CAF
© LAPS Arquitectos
Здание Латиноамериканского банка развития CAF
Здание Латиноамериканского банка развития CAF
© LAPS Arquitectos
Здание Латиноамериканского банка развития CAF
Здание Латиноамериканского банка развития CAF
© LAPS Arquitectos
Здание Латиноамериканского банка развития CAF
Здание Латиноамериканского банка развития CAF
© LAPS Arquitectos
Здание Латиноамериканского банка развития CAF
Здание Латиноамериканского банка развития CAF
© LAPS Arquitectos
Здание Латиноамериканского банка развития CAF
Здание Латиноамериканского банка развития CAF
© LAPS Arquitectos
Здание Латиноамериканского банка развития CAF
Здание Латиноамериканского банка развития CAF
© LAPS Arquitectos
Здание Латиноамериканского банка развития CAF
Здание Латиноамериканского банка развития CAF
© LAPS Arquitectos
Здание Латиноамериканского банка развития CAF
Здание Латиноамериканского банка развития CAF
© LAPS Arquitectos