Размещено на портале Архи.ру (www.archi.ru)

05.02.2020

Красный зиккурат

Нина Фролова
Объект:
Жилой комплекс Villa Cascade
Адрес:
Нидерланды, None, Алмере.
Мастерская:
CROSS Architecture

Многоквартирный дом Cascade Villa в Алмере по проекту бюро CROSS Architecture снаружи – кирпичный, а во внутреннем дворе – обшит деревом.

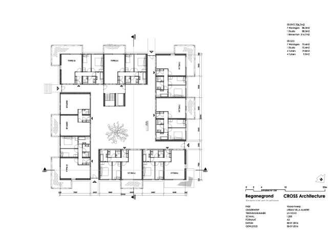
Дом Cascade Villa с 29 квартирами расположен в новом районе Алмере, тоже совсем не старого города-спутника Амстердама – Поорт. Архитекторы CROSS спроектировали ЖК как современную городскую виллу, хотя окружение у постройки вполне загородное: рядом – берег канала, вокруг – парк Каскаде.
 

Жилой комплекс Villa Cascade
Жилой комплекс Villa Cascade
Фото © Sjaak Henselmans

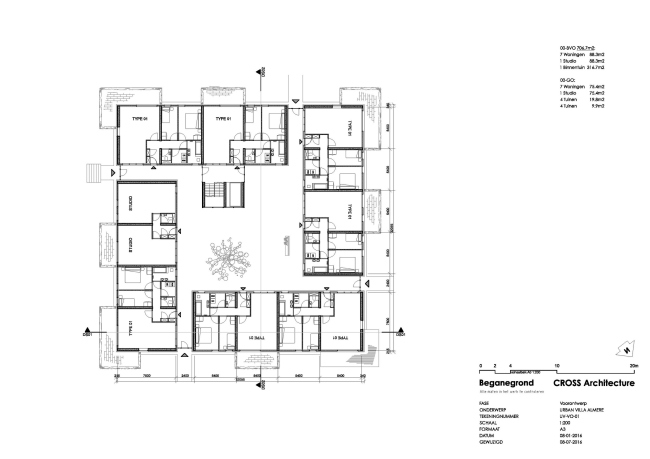
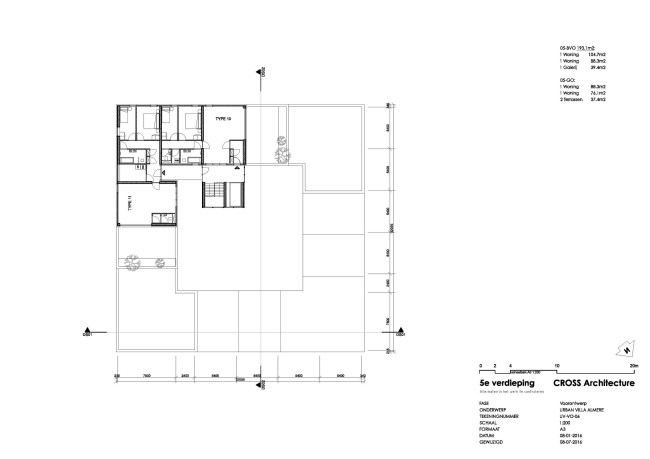
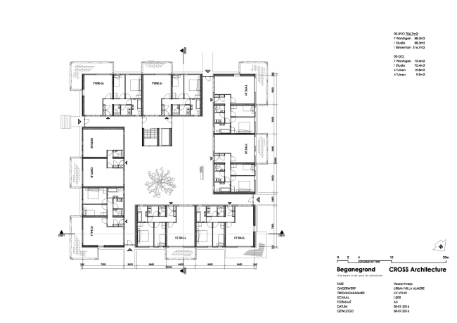
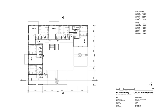
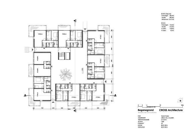
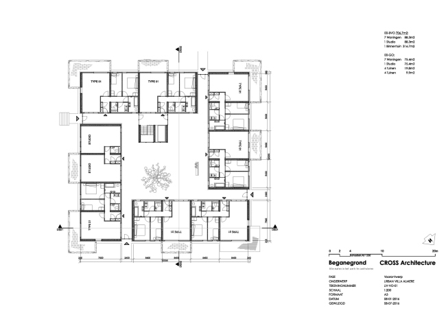
Пять этажей здания со стороны суши понижаются до всего одного у воды, чтобы виды на канал открывались из внутреннего двора – главного пространства комплекса. Там находятся входы в квартиры и башня лифтового узла, поэтому жильцы во дворе встречаются и общаются, это вполне «городская» среда типа маленькой площади. При этом двор закрыт для посторонних и обшит «теплым» материалом – деревом, то есть остается приватным пространством.
 
Жилой комплекс Villa Cascade
Жилой комплекс Villa Cascade
Фото © Sjaak Henselmans

Снаружи дом – ярко-красный, с фасадами из традиционного кирпича из гронингенской глины. Горизонтальные ряды кладки подчеркивают горизонтальность озелененных террас. Вход во двор выделен другим материалом, но не цветом – красным камнем.
 
Жилой комплекс Villa Cascade
Жилой комплекс Villa Cascade
Фото © Sjaak Henselmans

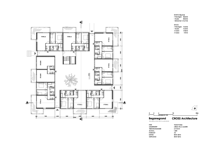
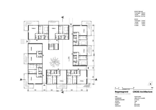
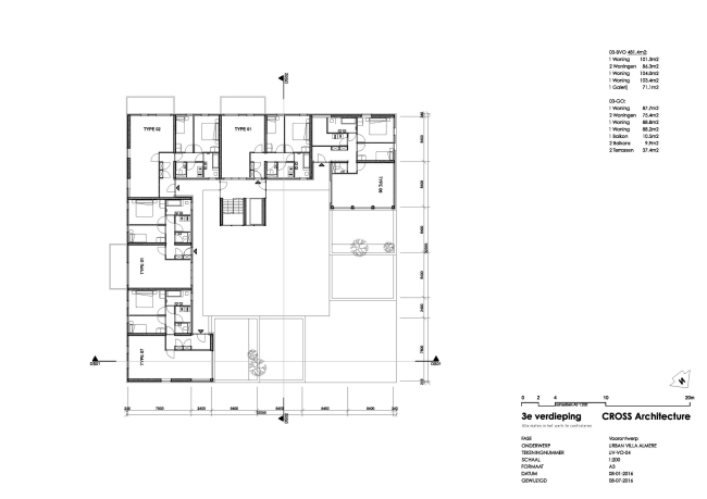
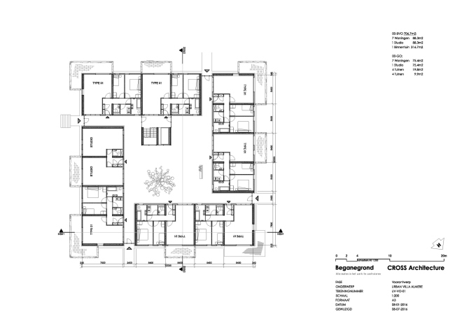
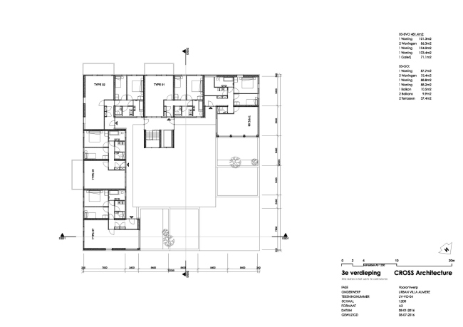
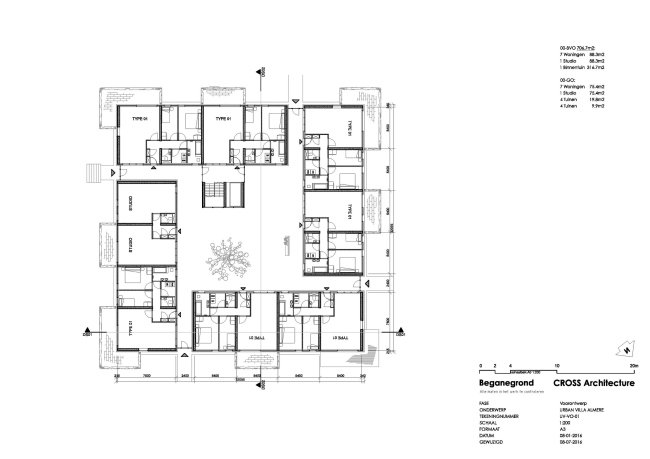
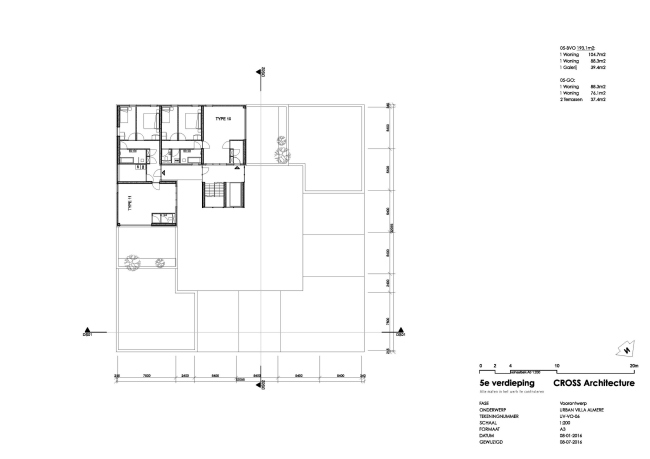
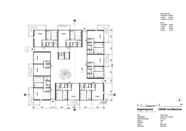
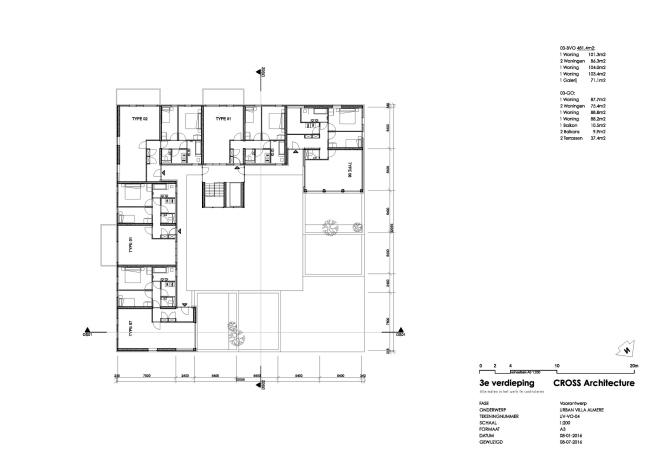
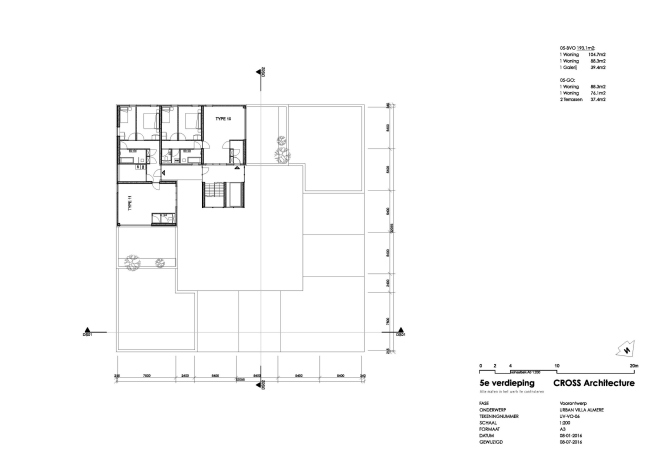
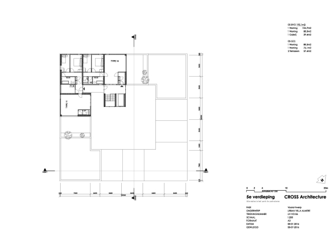
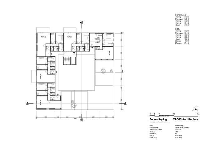
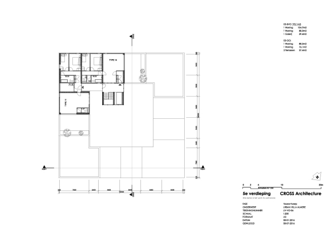
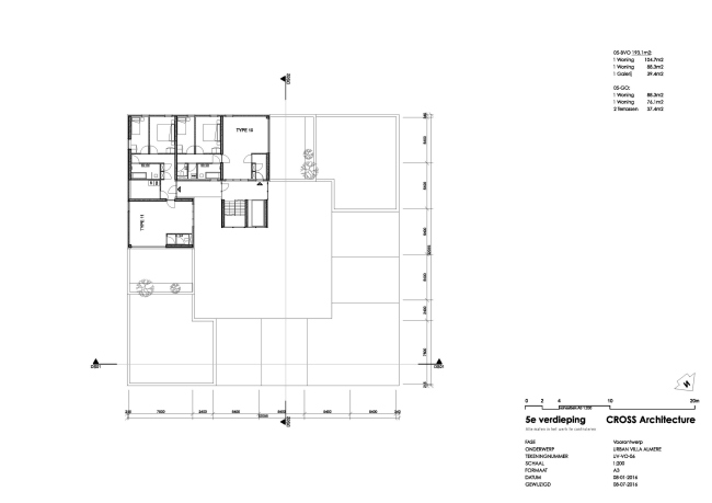
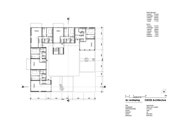
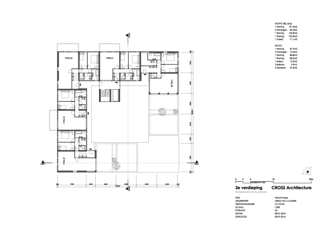
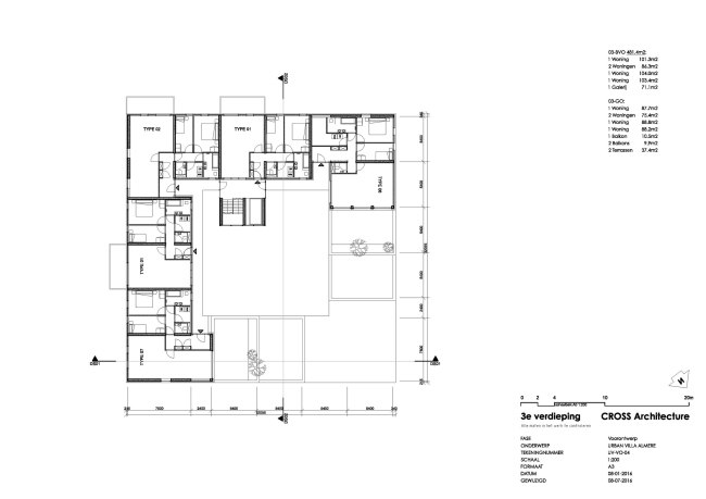
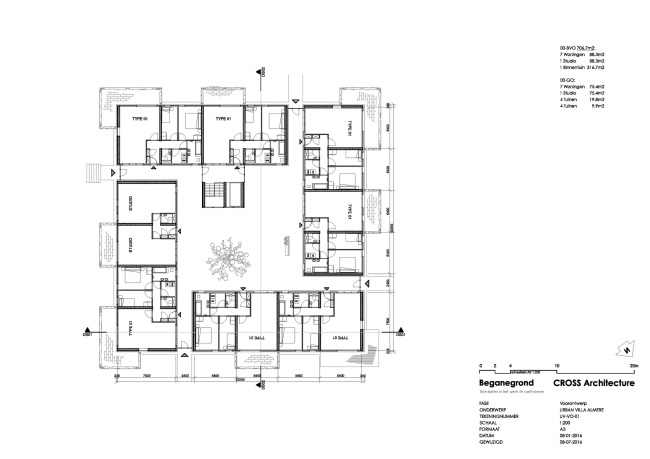
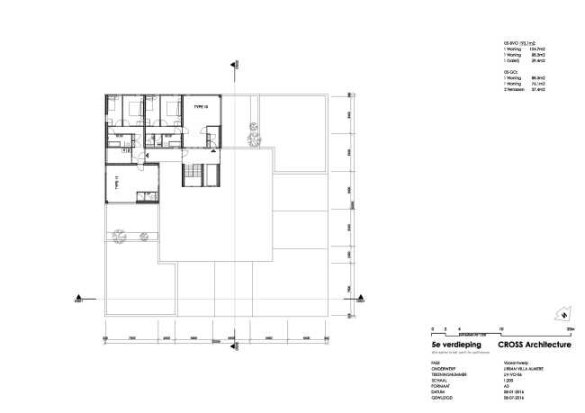
В плане Cascade Villa – квадрат с квадратным двором в центре; ступенчатость ярусов придает ему сходство с зиккуратом, хотя сами авторы сравнивают его с каскадом. Площадь квартир варьируется от 75 до 125 м2, общая площадь здания – 4300 м2, строительство заняло ровно год.
 
Жилой комплекс Villa Cascade
Жилой комплекс Villa Cascade
Фото © Sjaak Henselmans
Жилой комплекс Villa Cascade
Жилой комплекс Villa Cascade
Фото © Sjaak Henselmans
Жилой комплекс Villa Cascade
Жилой комплекс Villa Cascade
Фото © Sjaak Henselmans
Жилой комплекс Villa Cascade
Жилой комплекс Villa Cascade
Фото © Sjaak Henselmans
Жилой комплекс Villa Cascade
Жилой комплекс Villa Cascade
Фото © Sjaak Henselmans
Жилой комплекс Villa Cascade
Жилой комплекс Villa Cascade
Фото © Sjaak Henselmans
Жилой комплекс Villa Cascade
Жилой комплекс Villa Cascade
Фото © Sjaak Henselmans
Жилой комплекс Villa Cascade
Жилой комплекс Villa Cascade
Фото © Sjaak Henselmans
Жилой комплекс Villa Cascade
Жилой комплекс Villa Cascade
Фото © Sjaak Henselmans
Жилой комплекс Villa Cascade
Жилой комплекс Villa Cascade
© CROSS Architecture
Жилой комплекс Villa Cascade
Жилой комплекс Villa Cascade
© CROSS Architecture
Жилой комплекс Villa Cascade
Жилой комплекс Villa Cascade
© CROSS Architecture
Жилой комплекс Villa Cascade
Жилой комплекс Villa Cascade
© CROSS Architecture
Жилой комплекс Villa Cascade
Жилой комплекс Villa Cascade
© CROSS Architecture
Жилой комплекс Villa Cascade
Жилой комплекс Villa Cascade
© CROSS Architecture
Жилой комплекс Villa Cascade
Жилой комплекс Villa Cascade
© CROSS Architecture