Размещено на портале Архи.ру (www.archi.ru)

27.01.2020

Вертикальные татами

Нина Фролова
Объект:
Небоскреб Torre Patria-Hipódromo
Адрес:
Мексика, None, Гвадалахара.
Мастерская:
OAB

Фасады офисного здания Torre Patria-Hipódromo по проекту Карлоса Ферратера и его бюро OAB в Гвадалахаре на западе Мексики подчинены модульной конструктивной сетке, которая упорядочивает и окружающее пространство нового района.

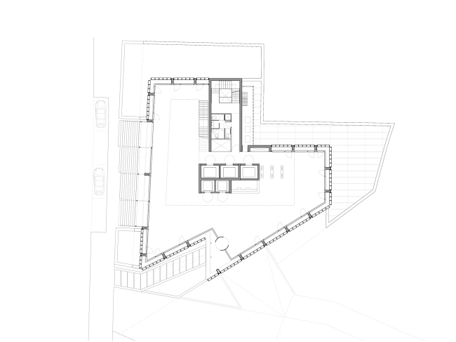
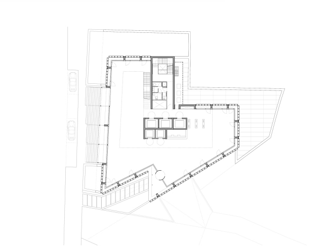
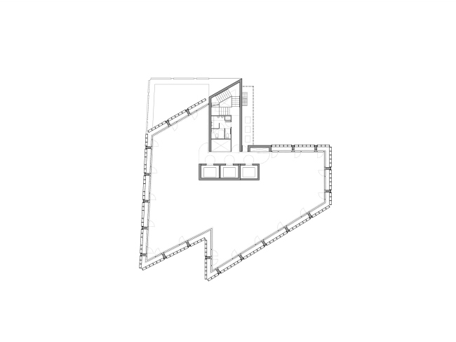
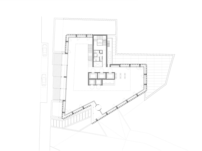
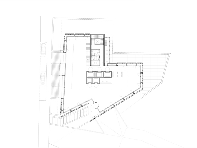
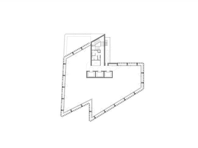
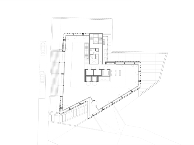
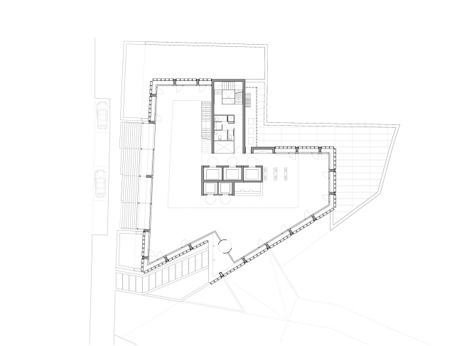
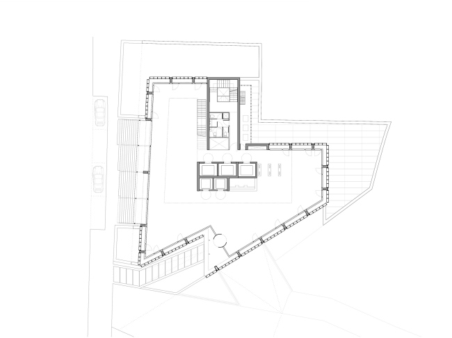
Здание Torre Patria-Hipódromo появилось в пока не оформившейся части мегаполиса, переживающей сейчас активный рост. Там нет утвержденного плана развития дорожной сети, несмотря на постоянно растущую транспортную нагрузку, а застройка соединяет односемейные дома и жилые башни. В этом хаотичном окружении, на участке неудобной формы Карлос Ферратер и его партнер по бюро Шавье Марти Гали своим зданием попытались установить «городской порядок».
 

Небоскреб Torre Patria-Hipódromo
Небоскреб Torre Patria-Hipódromo
Фото © Alejo Bagué

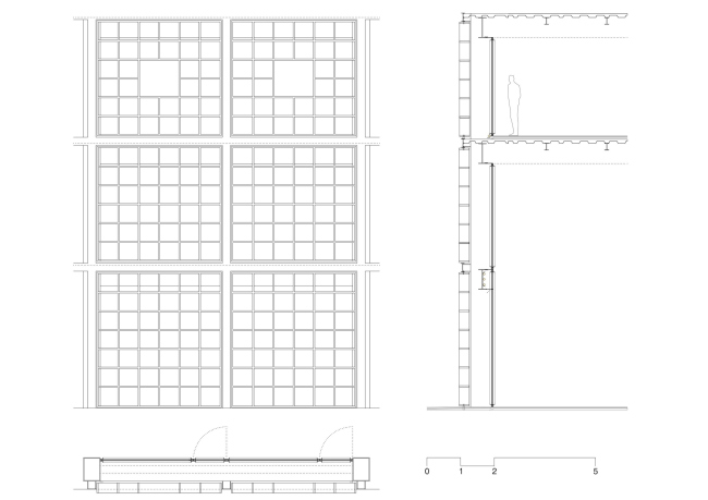
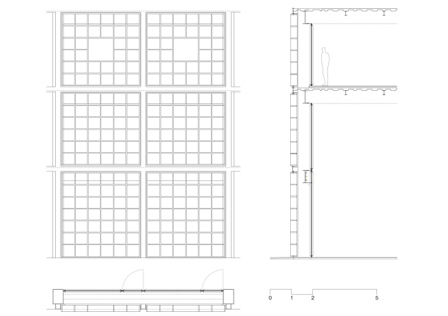
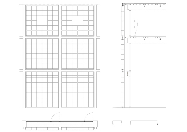
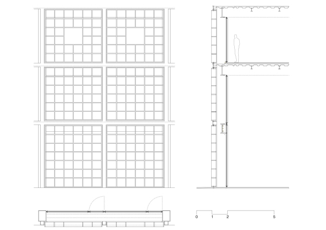
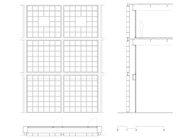
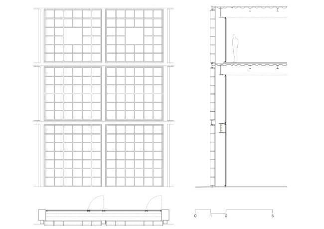
В формальном решении постройки сочетаются идеи постоянного ориентира Ферратера – Людвига Мис ван дер Роэ – с мотивами бразильского модернизма, в первую очередь – решетчатыми фасадами жилого массива «Парк Гинли» по проекту Лусиу Косты в Рио-де-Жанейро.
 
Небоскреб Torre Patria-Hipódromo
Небоскреб Torre Patria-Hipódromo
Фото © Alejo Bagué

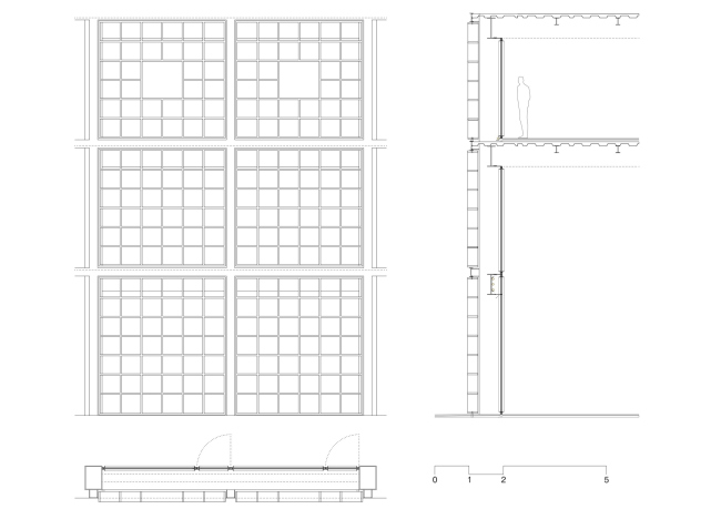
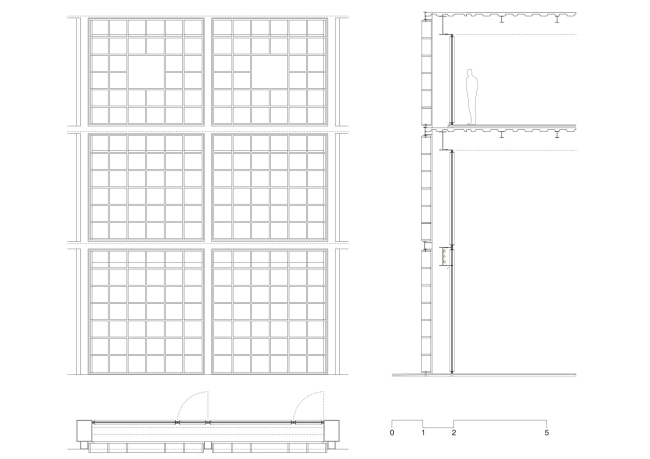
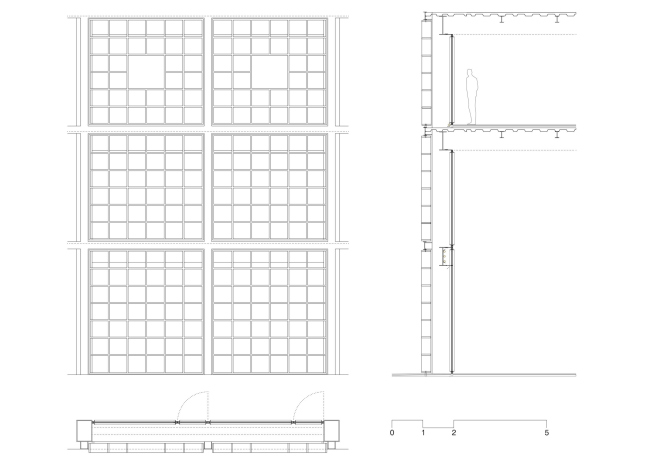
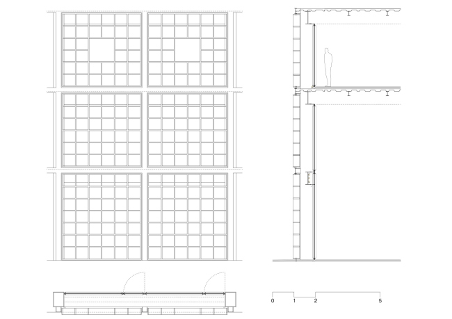
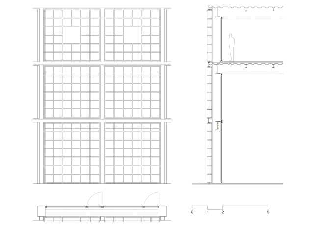
Ортогональная сетка вынесенной наружу конструкции Torre Patria-Hipódromo задает систему координат для окружающего пространства. Ее квадраты напоминают о татами как главном модуле традиционной японской архитектуры, поэтому архитекторы говорят о «вертикальных татами», покрывающих здание снаружи.
 
Небоскреб Torre Patria-Hipódromo
Небоскреб Torre Patria-Hipódromo
Фото © Alejo Bagué

Решетчатое наполнение квадратов выполнено из стеклофибробетона. Центральный квадратный проем в части модулей играет роль в сейсмоустойчивости постройки, а также выступает визуальным «замковым камнем» и солнцезащитным экраном.
Небоскреб Torre Patria-Hipódromo
Небоскреб Torre Patria-Hipódromo
Фото © Alejo Bagué
Небоскреб Torre Patria-Hipódromo
Небоскреб Torre Patria-Hipódromo
Фото © Alejo Bagué
Небоскреб Torre Patria-Hipódromo
Небоскреб Torre Patria-Hipódromo
Фото © Alejo Bagué
Небоскреб Torre Patria-Hipódromo
Небоскреб Torre Patria-Hipódromo
Фото © Alejo Bagué
Небоскреб Torre Patria-Hipódromo
Небоскреб Torre Patria-Hipódromo
© OAB
Небоскреб Torre Patria-Hipódromo
Небоскреб Torre Patria-Hipódromo
© OAB
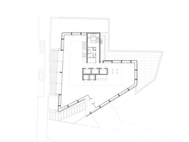
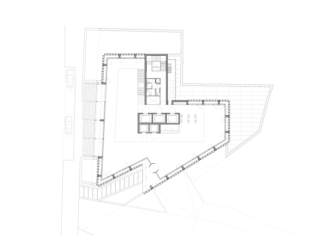
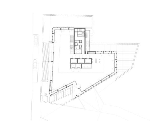
Небоскреб Torre Patria-Hipódromo
Небоскреб Torre Patria-Hipódromo
© OAB
Небоскреб Torre Patria-Hipódromo
Небоскреб Torre Patria-Hipódromo
© OAB
Небоскреб Torre Patria-Hipódromo
Небоскреб Torre Patria-Hipódromo
© OAB
Небоскреб Torre Patria-Hipódromo
Небоскреб Torre Patria-Hipódromo
© OAB
Небоскреб Torre Patria-Hipódromo
Небоскреб Torre Patria-Hipódromo
© OAB