Размещено на портале Архи.ру (www.archi.ru)

20.01.2020

Термальная масса культуры

Нина Фролова
Объект:
Национальная библиотека Люксембурга
Адрес:
Люксембург, None, Люксембург.
Мастерская:
Bolles+Wilson

Проект Национальной библиотеки Люксембурга по проекту Bolles+Wilson определен соображениями ресурсоэффективности.

Национальная библиотека Люксембурга – проект с историей: Bolles+Wilson выиграли соответствующий архитектурный конкурс еще в 2003, но строительство началось лишь в 2014, на совсем другом участке. Это зона новой регулярной застройки на авеню Джона Ф. Кеннеди. То, что здание – компактного объема, связано как с небольшим участком, так и с желанием максимально использовать свойства термальной массы постройки.
 

Национальная библиотека Люксембурга
Национальная библиотека Люксембурга
Фото © Christian Richters

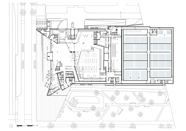
Пятиэтажное книгохранилище выступает в роли сердцевины постройки: это прямоугольный объем, сверху и по сторонам занятый стеллажами открытого доступа и читальными залами. Его наружные стены покрыты габионами (предложенный архитекторами образ «бастиона»), в то время как остальная часть фасада облицована сборными бетонными панелями красного цвета. Несмотря на общее происхождение, они различаются оттенком и фактурой благодаря разному типу обработки – пескоструйные и гидроструйные аппараты, кислота.
 
Национальная библиотека Люксембурга
Национальная библиотека Люксембурга
Фото © Christian Richters

Главный вход с авеню Кеннеди получил контрастное белое оформление с остеклением в нише: внутри помещено фойе с кафе, а выше – помещения для семинаров и конференций.
 
Национальная библиотека Люксембурга
Национальная библиотека Люксембурга
Фото © Christian Richters

Кроме компактного объема здания, бетона и габионов, материалы в оформлении интерьера тоже выбраны в зависимости от их теплоемкости, также учитывался принцип «от колыбели к колыбели», cradle-to-cradle. Среди других эко-компонентов проекта – охлаждение и отопление помещений с помощью геотермальных тепловых насосов, солнечные батареи на крыше, активное использование естественного освещения, конструкция кровли из деревянных балок многослойной конструкции, где предусмотрена циркуляция воздуха.
 
Национальная библиотека Люксембурга
Национальная библиотека Люксембурга
Фото © Christian Richters

Общая площадь здания – 39 000 м2, бюджет – 75 млн евро. В библиотеке размещены 2,5 млн единиц хранения – книг, журналов, медиа-материалов и т.д. Новое сооружение в мае 2019-го было помещено на специальную почтовую марку, выпущенную Post Luxembourg.
Национальная библиотека Люксембурга
Национальная библиотека Люксембурга
Фото © Christian Richters
Национальная библиотека Люксембурга
Национальная библиотека Люксембурга
Фото © Christian Richters
Национальная библиотека Люксембурга
Национальная библиотека Люксембурга
Фото © Christian Richters
Национальная библиотека Люксембурга
Национальная библиотека Люксембурга
Фото © Christian Richters
Национальная библиотека Люксембурга
Национальная библиотека Люксембурга
Фото © Christian Richters
Национальная библиотека Люксембурга
Национальная библиотека Люксембурга
Фото © Christian Richters
Национальная библиотека Люксембурга. Участок – предмет конкурса 2003 года и местоположение здания библиотеки
Национальная библиотека Люксембурга. Участок – предмет конкурса 2003 года и местоположение здания библиотеки
© BOLLES+WILSON
Национальная библиотека Люксембурга
Национальная библиотека Люксембурга
Фото © Tomasz Samek
Национальная библиотека Люксембурга
Национальная библиотека Люксембурга
Фото © Tomasz Samek
Национальная библиотека Люксембурга
Национальная библиотека Люксембурга
© BOLLES+WILSON
Национальная библиотека Люксембурга. Участок до начала строительства
Национальная библиотека Люксембурга. Участок до начала строительства
© BOLLES+WILSON
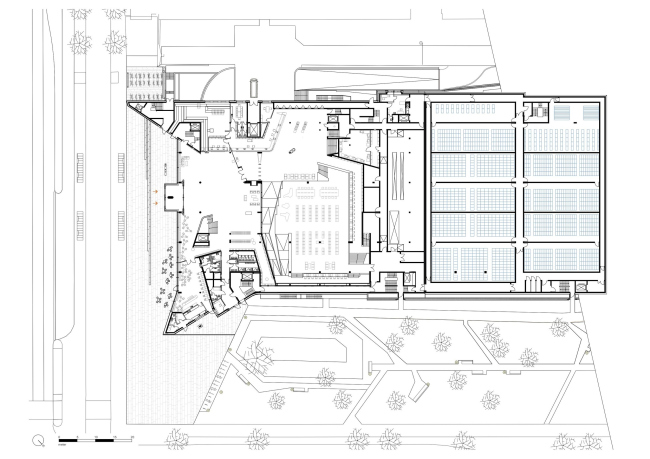
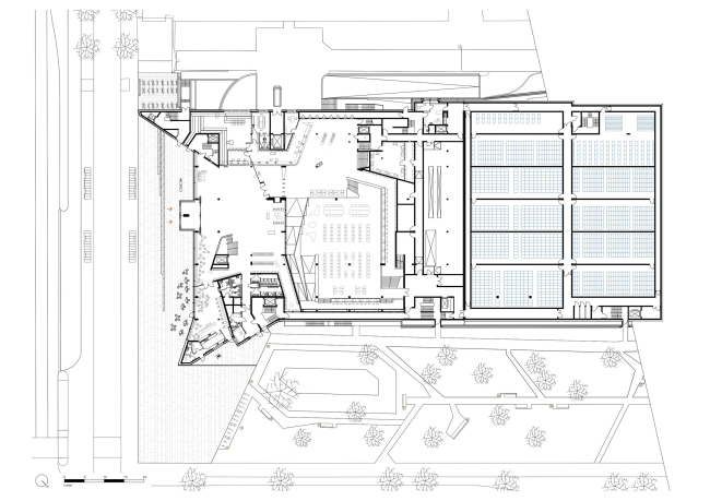
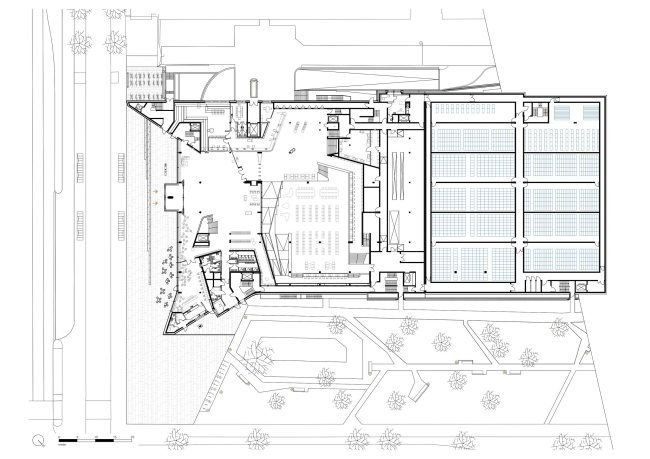
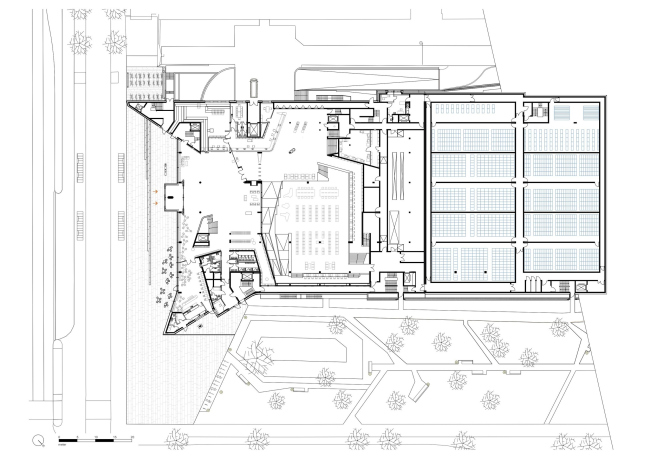
Национальная библиотека Люксембурга
Национальная библиотека Люксембурга
© BOLLES+WILSON
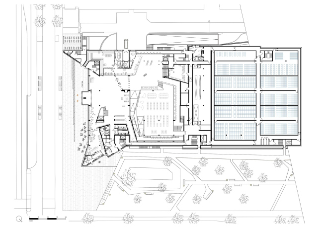
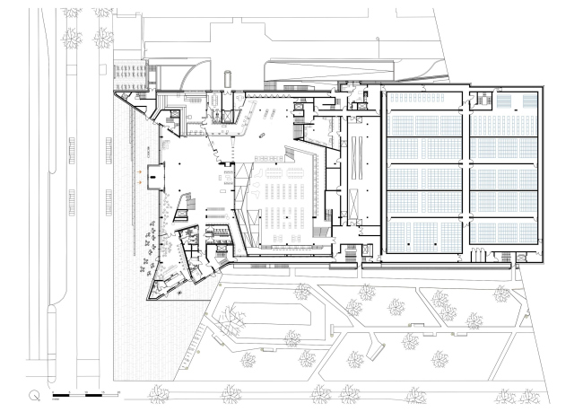
Национальная библиотека Люксембурга
Национальная библиотека Люксембурга
© BOLLES+WILSON
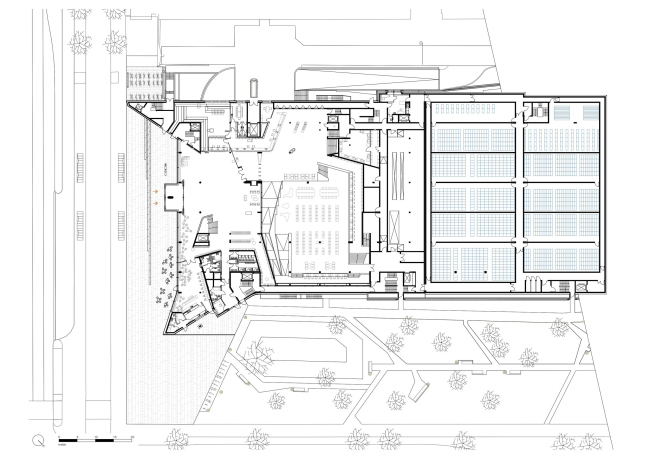
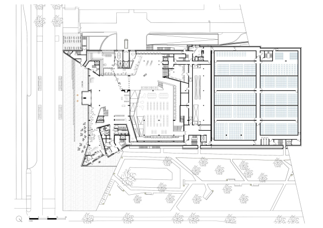
Национальная библиотека Люксембурга
Национальная библиотека Люксембурга
© BOLLES+WILSON
Национальная библиотека Люксембурга
Национальная библиотека Люксембурга
© BOLLES+WILSON