Размещено на портале Архи.ру (www.archi.ru)

17.01.2020

Апельсиновые фасады

Нина Фролова
Объект:
Жилой комплекс Yantai Port Apartment
Адрес:
Китай, None, Яньтай.
Мастерская:
MAT Office

Пекинское бюро MAT Office превратило фабричные корпуса в Яньтае в жилье-коливинг для молодежи.

Яньтай – приморский город на севере Китая, на полуострове Шаньдун. Его округ Лайшань в прошлом сочетал вузовские городки с предприятиями легкой промышленности. Сейчас университеты остались, а фабрики – выведены, их цеха и склады – опустели.
 

Жилой комплекс Yantai Port Apartment
Жилой комплекс Yantai Port Apartment
Фото © TANG Kangshuo

Архитекторы MAT Office занялись превращением трех индустриальных сооружений в коливинг для молодежи. Они поставили себе задачу: сделать жилой комплекс отражением духа места – солнечного города у моря, а также придать ему узнаваемый образ, привлекательный для молодежи.
 
Жилой комплекс Yantai Port Apartment
Жилой комплекс Yantai Port Apartment
Фото © ZHANG Peizhi

Северный фасад комплекса обращен на засаженную плотными рядами деревьев улицу. Они практически скрывают сооружение, поэтому архитекторы решили сделать главной его восточную сторону, выходящую на открытую зеленую территорию. Туда были обращены торцы исходных промышленных построек, которые теперь дополнены замыкающим один из двух дворов между ними объемом вестибюля. Фасады с этой стороны поделены на ниши с различным углом наклона «задника», где игра теней в солнечный день подчеркнута раскраской желтым и оранжевым.
 
Жилой комплекс Yantai Port Apartment
Жилой комплекс Yantai Port Apartment
© MAT Office

В интерьере оранжевый, который авторы сравнивают по впечатлению с апельсиновым соком, стал цветом общих зон. При реконструкции северного, трехэтажного корпуса, со стороны двора были пристроены коридоры, их внешняя стена сложена из стеклоблоков толщиной 200 мм, и в темное время суток их оранжевые стены делают теплей льющийся наружу искусственный свет. Такое решение должно создавать ощущение дома и уюта у заходящих вечером в вестибюль жильцов.
 
Жилой комплекс Yantai Port Apartment
Жилой комплекс Yantai Port Apartment
Фото © TANG Kangshuo

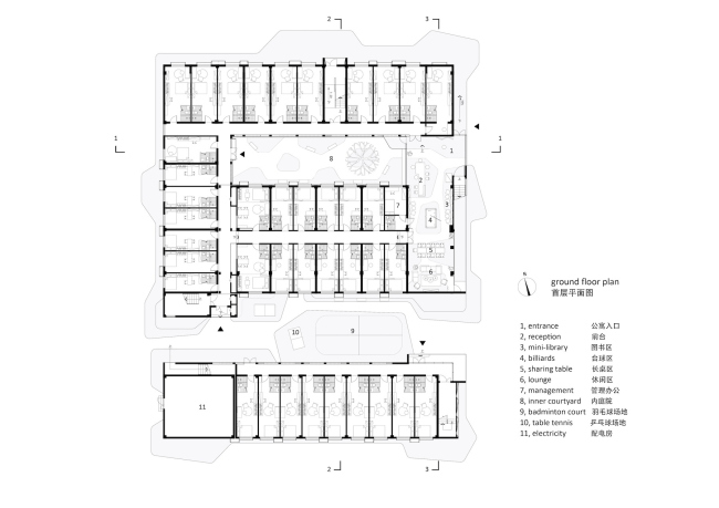
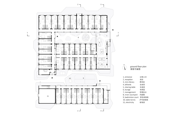
Средний, двухэтажный корпус (бывший склад), помимо жилья, содержит пространства общего пользования, включая возведенные на крыше столовую, кухню, прачечную и спортзал. Остальная часть его кровли стала террасой.
 
Жилой комплекс Yantai Port Apartment
Жилой комплекс Yantai Port Apartment
Фото © TANG Kangshuo

В комплексе 102 квартиры-студии пяти видов планировки. С помощью модульных перегородок все студии поделены на три или четыре последовательные части, каждая со своим цветом стен: прихожую с ванной, жилую зону, спальню и кабинет. В бывшем складе устройство антресольного яруса позволило эффективно разделить дневное пространство и спальню.
 
Жилой комплекс Yantai Port Apartment
Жилой комплекс Yantai Port Apartment
Фото © TANG Kangshuo

Два двора и терраса получили «органический» ландшафтный дизайн, порой просто результат разного цвета мощения или асфальта. Замкнутый дворик сочетает белый гравий с деревьями и травой.
Жилой комплекс Yantai Port Apartment
Жилой комплекс Yantai Port Apartment
Фото © TANG Kangshuo
Жилой комплекс Yantai Port Apartment
Жилой комплекс Yantai Port Apartment
Фото © ZHANG Peizhi
Жилой комплекс Yantai Port Apartment
Жилой комплекс Yantai Port Apartment
Фото © TANG Kangshuo
Жилой комплекс Yantai Port Apartment
Жилой комплекс Yantai Port Apartment
Фото © TANG Kangshuo
Жилой комплекс Yantai Port Apartment
Жилой комплекс Yantai Port Apartment
© MAT Office
Жилой комплекс Yantai Port Apartment
Жилой комплекс Yantai Port Apartment
© MAT Office
Жилой комплекс Yantai Port Apartment
Жилой комплекс Yantai Port Apartment
© MAT Office