Размещено на портале Архи.ру (www.archi.ru)

16.01.2020

Всестороннее развитие

Нина Фролова
Объект:
Спортивный и лабораторный корпус Брайтон-колледжа
Адрес:
Великобритания, None, Брайтон-и-Хов.
Мастерская:
OMA

В новом корпусе частной школы в английском Брайтоне бюро OMA соединило лабораторные классы со спортивными сооружениями.

Брайтон-колледж – одна из ведущих частных школ Британии. В наши дни в ней учатся мальчики и девочки, приходящие и «интернатовские» школьники. Она была основана в 1845, и у нее есть исторический кампус-«квадрат» с неоготическими корпусами Джорджа Гилберта Скотта-старшего и Томаса Джексона, а также ансамбль конца XX века со спортивным полем, где и появилось здание OMA; партнером бюро, отвечавшим за проект, выступила Элен ван Лон.
 

Спортивный и лабораторный корпус Брайтон-колледжа
Спортивный и лабораторный корпус Брайтон-колледжа
Фото: Laurian Ghinitoiu, предоставлено OMA

В XXI веке школа развила бурную строительную деятельность: девять зданий по новому мастерплану. Сверх этой программы в 2013 Брайтон-колледж объявил конкурс на проект двух новых построек – спортивного и лабораторного корпусов. В его ходе стало ясно, что их можно объединить в одном сооружении, и лучше всего эту задачу решили архитекторы OMA – по крайней мере, по мнению жюри.
 
Спортивный и лабораторный корпус Брайтон-колледжа
Спортивный и лабораторный корпус Брайтон-колледжа
Фото: Laurian Ghinitoiu, предоставлено OMA

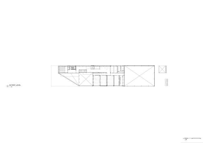
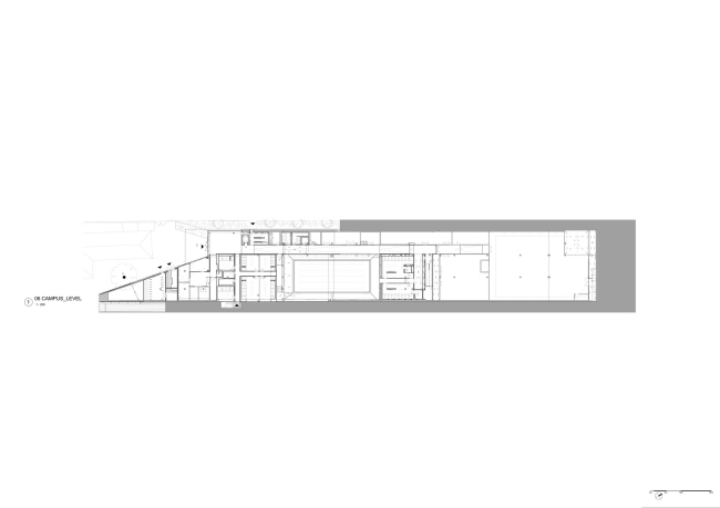
Авторы проекта сочли важным соединить два направления школьной программы не только физически, но и идейно. Спортивные и лабораторные помещения связаны визуально через сдвиги уровней, большие лестницы и стеклянные стены, оживляя пространство и создавая необычные параллели и точки схода между разными уроками и дисциплинами. Большие «рекреации» способствуют общению (стимулировать его было целью архитекторов) и индивидуальным занятиям.
 
Спортивный и лабораторный корпус Брайтон-колледжа
Спортивный и лабораторный корпус Брайтон-колледжа
Фото: Laurian Ghinitoiu, предоставлено OMA

Лаборатории и «научные» классы перекинуты над спортивной частью, как мост. Спортивные помещения находятся вровень с игровым полем и обращены туда стеклянным фасадом. Эксплуатируемая кровля, частично зеленая, частично – с искусственным газоном и беговой дорожкой (вторая дорожка есть на первом этаже) также служит смотровой площадкой с видом на море: ведь Брайтон – знаменитый исторический курорт.
 
Спортивный и лабораторный корпус Брайтон-колледжа
Спортивный и лабораторный корпус Брайтон-колледжа
Фото: Laurian Ghinitoiu, предоставлено OMA

Благодаря остеклению фасадов и проемам в перекрытиях во всех помещениях обеспечено естественное освещение, вентиляция тоже предусмотрена естественная: механическое отопление и охлаждение (геотермальный тепловой насос) включается только в случае особой необходимости.
Спортивный и лабораторный корпус Брайтон-колледжа
Спортивный и лабораторный корпус Брайтон-колледжа
Фото: Killian O’Sullivan © OMA
Спортивный и лабораторный корпус Брайтон-колледжа
Спортивный и лабораторный корпус Брайтон-колледжа
Фото: Killian O’Sullivan © OMA
Спортивный и лабораторный корпус Брайтон-колледжа
Спортивный и лабораторный корпус Брайтон-колледжа
Фото: Laurian Ghinitoiu, предоставлено OMA
Спортивный и лабораторный корпус Брайтон-колледжа
Спортивный и лабораторный корпус Брайтон-колледжа
Фото: Laurian Ghinitoiu, предоставлено OMA
Спортивный и лабораторный корпус Брайтон-колледжа
Спортивный и лабораторный корпус Брайтон-колледжа
Фото: Laurian Ghinitoiu, предоставлено OMA
Спортивный и лабораторный корпус Брайтон-колледжа
Спортивный и лабораторный корпус Брайтон-колледжа
Фото: Laurian Ghinitoiu, предоставлено OMA
Спортивный и лабораторный корпус Брайтон-колледжа
Спортивный и лабораторный корпус Брайтон-колледжа
Фото: Laurian Ghinitoiu, предоставлено OMA
Спортивный и лабораторный корпус Брайтон-колледжа
Спортивный и лабораторный корпус Брайтон-колледжа
Фото © Liz Finlayson/Vervate
Спортивный и лабораторный корпус Брайтон-колледжа
Спортивный и лабораторный корпус Брайтон-колледжа
Фото: Killian O’Sullivan © OMA
Спортивный и лабораторный корпус Брайтон-колледжа
Спортивный и лабораторный корпус Брайтон-колледжа
Фото: Killian O’Sullivan © OMA
Спортивный и лабораторный корпус Брайтон-колледжа
Спортивный и лабораторный корпус Брайтон-колледжа
Фото © Liz Finlayson/Vervate
Спортивный и лабораторный корпус Брайтон-колледжа
Спортивный и лабораторный корпус Брайтон-колледжа
Фото: Killian O’Sullivan © OMA
Спортивный и лабораторный корпус Брайтон-колледжа
Спортивный и лабораторный корпус Брайтон-колледжа
Фото: Laurian Ghinitoiu, предоставлено OMA
Спортивный и лабораторный корпус Брайтон-колледжа
Спортивный и лабораторный корпус Брайтон-колледжа
Фото: Laurian Ghinitoiu, предоставлено OMA
Спортивный и лабораторный корпус Брайтон-колледжа
Спортивный и лабораторный корпус Брайтон-колледжа
Фото: Killian O’Sullivan © OMA
Спортивный и лабораторный корпус Брайтон-колледжа
Спортивный и лабораторный корпус Брайтон-колледжа
Фото: Laurian Ghinitoiu, предоставлено OMA
Спортивный и лабораторный корпус Брайтон-колледжа
Спортивный и лабораторный корпус Брайтон-колледжа
Фото: Killian O’Sullivan © OMA
Спортивный и лабораторный корпус Брайтон-колледжа
Спортивный и лабораторный корпус Брайтон-колледжа
Фото: Laurian Ghinitoiu, предоставлено OMA
Спортивный и лабораторный корпус Брайтон-колледжа
Спортивный и лабораторный корпус Брайтон-колледжа
Фото: Killian O’Sullivan © OMA
Спортивный и лабораторный корпус Брайтон-колледжа
Спортивный и лабораторный корпус Брайтон-колледжа
Фото: Killian O’Sullivan © OMA
Спортивный и лабораторный корпус Брайтон-колледжа
Спортивный и лабораторный корпус Брайтон-колледжа
Фото: Killian O’Sullivan © OMA
Спортивный и лабораторный корпус Брайтон-колледжа
Спортивный и лабораторный корпус Брайтон-колледжа
Фото: Laurian Ghinitoiu, предоставлено OMA
Спортивный и лабораторный корпус Брайтон-колледжа
Спортивный и лабораторный корпус Брайтон-колледжа
Фото: Killian O’Sullivan © OMA
Спортивный и лабораторный корпус Брайтон-колледжа
Спортивный и лабораторный корпус Брайтон-колледжа
Фото © Liz Finlayson/Vervate
Спортивный и лабораторный корпус Брайтон-колледжа
Спортивный и лабораторный корпус Брайтон-колледжа
Фото: Killian O’Sullivan © OMA
Спортивный и лабораторный корпус Брайтон-колледжа
Спортивный и лабораторный корпус Брайтон-колледжа
Фото: Laurian Ghinitoiu, предоставлено OMA
Спортивный и лабораторный корпус Брайтон-колледжа
Спортивный и лабораторный корпус Брайтон-колледжа
Фото: Killian O’Sullivan © OMA
Спортивный и лабораторный корпус Брайтон-колледжа
Спортивный и лабораторный корпус Брайтон-колледжа
Фото: Killian O’Sullivan © OMA
Спортивный и лабораторный корпус Брайтон-колледжа
Спортивный и лабораторный корпус Брайтон-колледжа
Фото: Laurian Ghinitoiu, предоставлено OMA
Спортивный и лабораторный корпус Брайтон-колледжа
Спортивный и лабораторный корпус Брайтон-колледжа
Фото: Killian O’Sullivan © OMA
Спортивный и лабораторный корпус Брайтон-колледжа
Спортивный и лабораторный корпус Брайтон-колледжа
Фото: Laurian Ghinitoiu, предоставлено OMA
Спортивный и лабораторный корпус Брайтон-колледжа
Спортивный и лабораторный корпус Брайтон-колледжа
Фото: Killian O’Sullivan © OMA
Спортивный и лабораторный корпус Брайтон-колледжа
Спортивный и лабораторный корпус Брайтон-колледжа
Фото: Killian O’Sullivan © OMA
Спортивный и лабораторный корпус Брайтон-колледжа
Спортивный и лабораторный корпус Брайтон-колледжа
Фото: Killian O’Sullivan © OMA
Спортивный и лабораторный корпус Брайтон-колледжа
Спортивный и лабораторный корпус Брайтон-колледжа
Фото: Killian O’Sullivan © OMA
Спортивный и лабораторный корпус Брайтон-колледжа
Спортивный и лабораторный корпус Брайтон-колледжа
© OMA
Спортивный и лабораторный корпус Брайтон-колледжа
Спортивный и лабораторный корпус Брайтон-колледжа
Фото: Frans Parthesius © OMA
Спортивный и лабораторный корпус Брайтон-колледжа
Спортивный и лабораторный корпус Брайтон-колледжа
Фото: Frans Parthesius © OMA
Спортивный и лабораторный корпус Брайтон-колледжа
Спортивный и лабораторный корпус Брайтон-колледжа
© OMA
Спортивный и лабораторный корпус Брайтон-колледжа
Спортивный и лабораторный корпус Брайтон-колледжа
© OMA
Спортивный и лабораторный корпус Брайтон-колледжа
Спортивный и лабораторный корпус Брайтон-колледжа
© OMA
Спортивный и лабораторный корпус Брайтон-колледжа
Спортивный и лабораторный корпус Брайтон-колледжа
© OMA
Спортивный и лабораторный корпус Брайтон-колледжа
Спортивный и лабораторный корпус Брайтон-колледжа
© OMA
Спортивный и лабораторный корпус Брайтон-колледжа
Спортивный и лабораторный корпус Брайтон-колледжа
© OMA
Спортивный и лабораторный корпус Брайтон-колледжа
Спортивный и лабораторный корпус Брайтон-колледжа
© OMA
Спортивный и лабораторный корпус Брайтон-колледжа
Спортивный и лабораторный корпус Брайтон-колледжа
© OMA
Спортивный и лабораторный корпус Брайтон-колледжа
Спортивный и лабораторный корпус Брайтон-колледжа
© OMA
Спортивный и лабораторный корпус Брайтон-колледжа
Спортивный и лабораторный корпус Брайтон-колледжа
© OMA
Спортивный и лабораторный корпус Брайтон-колледжа
Спортивный и лабораторный корпус Брайтон-колледжа
© OMA
Спортивный и лабораторный корпус Брайтон-колледжа
Спортивный и лабораторный корпус Брайтон-колледжа
© OMA
Спортивный и лабораторный корпус Брайтон-колледжа
Спортивный и лабораторный корпус Брайтон-колледжа
© OMA
Спортивный и лабораторный корпус Брайтон-колледжа
Спортивный и лабораторный корпус Брайтон-колледжа
© OMA
Спортивный и лабораторный корпус Брайтон-колледжа
Спортивный и лабораторный корпус Брайтон-колледжа
© OMA
Спортивный и лабораторный корпус Брайтон-колледжа
Спортивный и лабораторный корпус Брайтон-колледжа
© OMA
Спортивный и лабораторный корпус Брайтон-колледжа
Спортивный и лабораторный корпус Брайтон-колледжа
© OMA
Спортивный и лабораторный корпус Брайтон-колледжа
Спортивный и лабораторный корпус Брайтон-колледжа
© OMA
Спортивный и лабораторный корпус Брайтон-колледжа
Спортивный и лабораторный корпус Брайтон-колледжа
© OMA
Спортивный и лабораторный корпус Брайтон-колледжа
Спортивный и лабораторный корпус Брайтон-колледжа
© OMA
Спортивный и лабораторный корпус Брайтон-колледжа
Спортивный и лабораторный корпус Брайтон-колледжа
© OMA
Спортивный и лабораторный корпус Брайтон-колледжа
Спортивный и лабораторный корпус Брайтон-колледжа
© OMA