Размещено на портале Архи.ру (www.archi.ru)

16.01.2020

Офис со скалодромом для компании, выпускающей роботов-хирургов

Алина Измайлова

Британская компания CMR Surgical, которая занимается производством роботизированных хирургических систем, недавно переехала в новую штаб-квартиру. В двухэтажном офисе на окраине Кембриджа ей удалось объединить отделы, которые ранее были разбросаны по всему городу. Проект интерьера штаб-квартиры разработала студия WMB studio, базирующаяся в Ливерпуле. Особым пожеланием со стороны заказчика стал скалодром – многие сотрудники компании, в том числе директора, увлекаются скалолазанием. Тренажер высотой почти в два этажа стал главной точкой притяжения в офисе.
 

Интерьер штаб-квартиры компании CMR Surgical. Авторы проекта WMB studio © French and Tye
Интерьер штаб-квартиры компании CMR Surgical. Авторы проекта WMB studio
© French and Tye
Интерьер штаб-квартиры компании CMR Surgical. Авторы проекта WMB studio © French and Tye
Интерьер штаб-квартиры компании CMR Surgical. Авторы проекта WMB studio
© French and Tye
Интерьер штаб-квартиры компании CMR Surgical. Авторы проекта WMB studio © French and Tye
Интерьер штаб-квартиры компании CMR Surgical. Авторы проекта WMB studio
© French and Tye

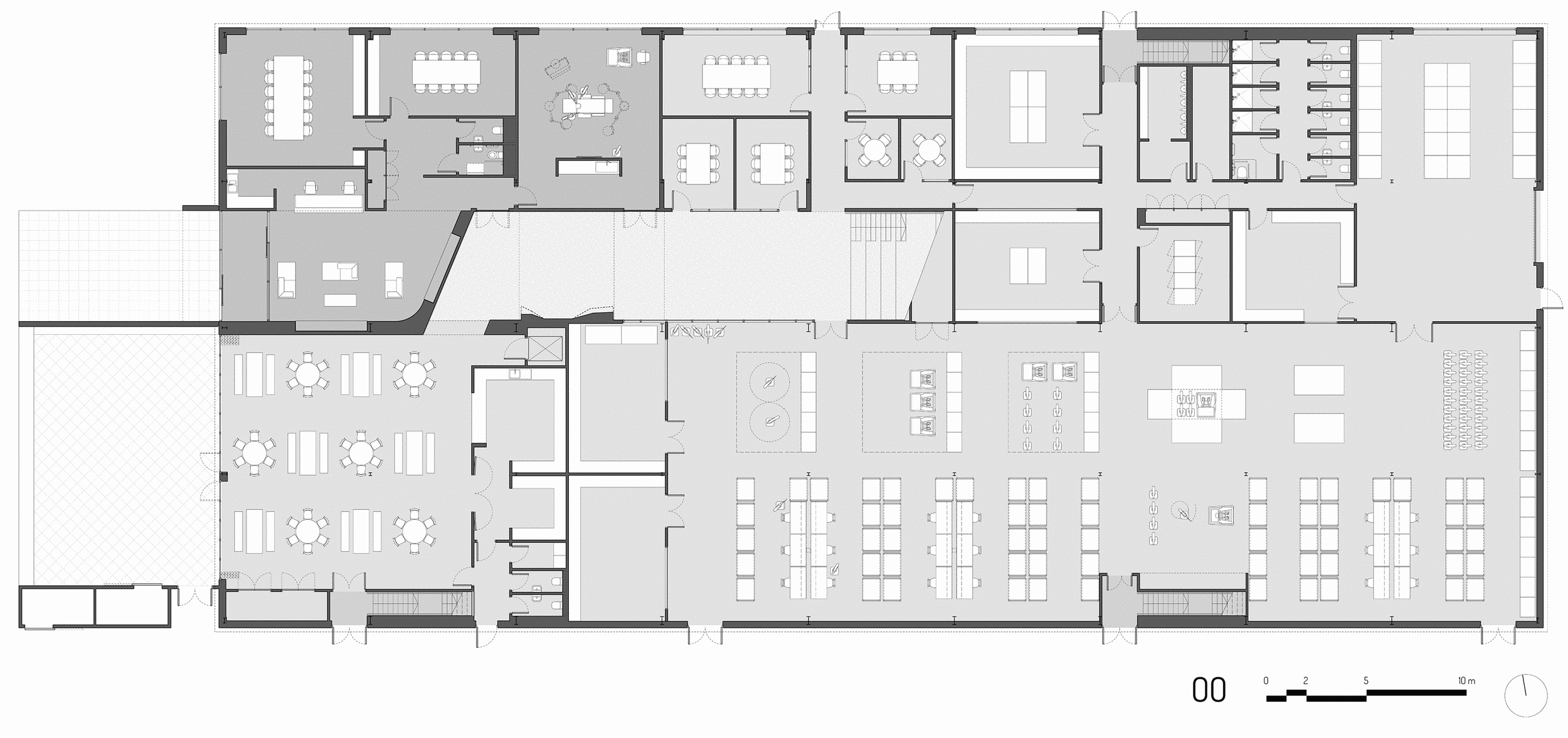
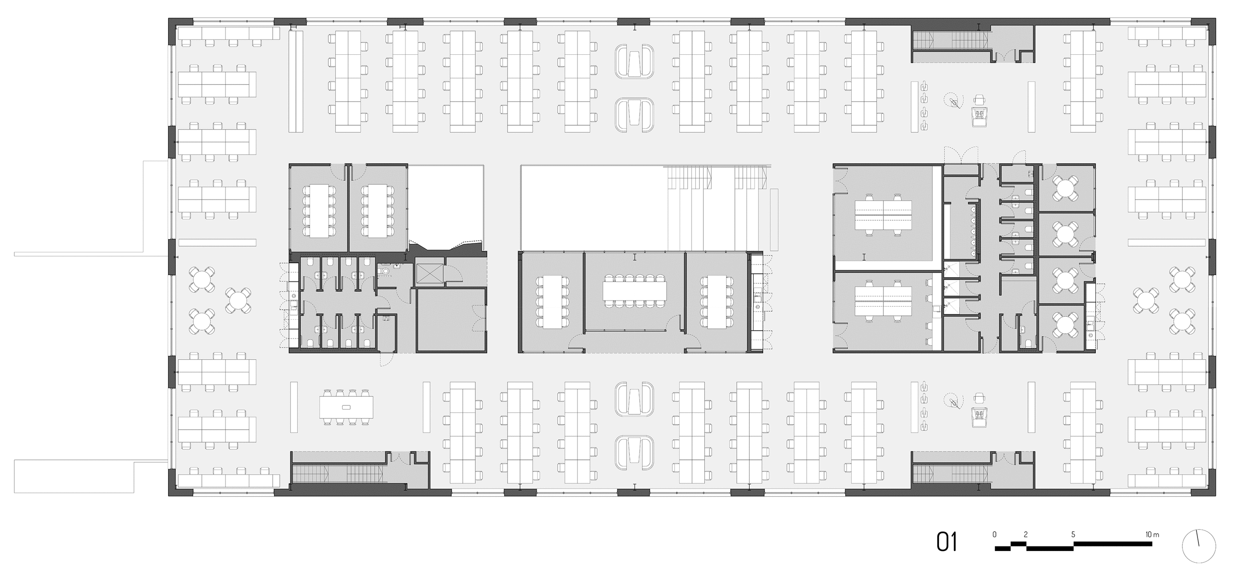
Помещения разведены по этажам следующим образом: на первом находятся производственный отдел, зоны отдыха и приемные для посетителей. На втором большую часть площади занимает офис свободного плана; оставшееся место отведено под переговорные и лаборатории, которыми пользуется отдел разработки.
Интерьер штаб-квартиры компании CMR Surgical. Авторы проекта WMB studio © French and Tye
Интерьер штаб-квартиры компании CMR Surgical. Авторы проекта WMB studio
© French and Tye
Интерьер штаб-квартиры компании CMR Surgical. Авторы проекта WMB studio © French and Tye
Интерьер штаб-квартиры компании CMR Surgical. Авторы проекта WMB studio
© French and Tye
Интерьер штаб-квартиры компании CMR Surgical. Авторы проекта WMB studio © French and Tye
Интерьер штаб-квартиры компании CMR Surgical. Авторы проекта WMB studio
© French and Tye

В центральной части здания есть большое двухсветное пространство, которое визуально объединяет оба уровня.
Интерьер штаб-квартиры компании CMR Surgical. Авторы проекта WMB studio
Интерьер штаб-квартиры компании CMR Surgical. Авторы проекта WMB studio
© French and Tye

На первом этаже при этом образуется нечто вроде «проспекта», по обе стороны которого располагаются кабинеты с окнами-витринами. Широкий и длинный проход позволяет работникам беспрепятственно перемещаться между отделами или просто наблюдать за тем, что делают коллеги – будь то процесс сборки или финальные испытания системы Versius.
Интерьер штаб-квартиры компании CMR Surgical. Авторы проекта WMB studio © French and Tye
Интерьер штаб-квартиры компании CMR Surgical. Авторы проекта WMB studio
© French and Tye
Интерьер штаб-квартиры компании CMR Surgical. Авторы проекта WMB studio © French and Tye
Интерьер штаб-квартиры компании CMR Surgical. Авторы проекта WMB studio
© French and Tye
Интерьер штаб-квартиры компании CMR Surgical. Авторы проекта WMB studio © French and Tye
Интерьер штаб-квартиры компании CMR Surgical. Авторы проекта WMB studio
© French and Tye

Вторым связующим звеном между этажами служит лестница, она же – открытые трибуны. Сотрудники CMR Surgical используют лестницу для отдыха, неформального общения, здесь же проводятся рабочие встречи и совещания.
Интерьер штаб-квартиры компании CMR Surgical. Авторы проекта WMB studio
Интерьер штаб-квартиры компании CMR Surgical. Авторы проекта WMB studio
© French and Tye

В качестве основного материала для отделки офиса была выбрана фанера: фанерными панелями обшиты помещения на втором этаже, фанерными рейками украшены стены первого. Теплые «древесные» оттенки и шероховатая текстура контрастируют со строгим дизайном и «больничным» белым цветом продукции, которую выпускает CMR Surgical. Яркими цветовыми пятнами в офисе выделяются «чайные уголки» и комнаты для встреч и переговоров. 
Интерьер штаб-квартиры компании CMR Surgical. Авторы проекта WMB studio
Интерьер штаб-квартиры компании CMR Surgical. Авторы проекта WMB studio
© French and Tye
Интерьер штаб-квартиры компании CMR Surgical. Авторы проекта WMB studio
Интерьер штаб-квартиры компании CMR Surgical. Авторы проекта WMB studio
© French and Tye
Интерьер штаб-квартиры компании CMR Surgical. Авторы проекта WMB studio
Интерьер штаб-квартиры компании CMR Surgical. Авторы проекта WMB studio
© French and Tye
Интерьер штаб-квартиры компании CMR Surgical. Авторы проекта WMB studio
Интерьер штаб-квартиры компании CMR Surgical. Авторы проекта WMB studio
© French and Tye
Интерьер штаб-квартиры компании CMR Surgical. Авторы проекта WMB studio
Интерьер штаб-квартиры компании CMR Surgical. Авторы проекта WMB studio
© French and Tye
Интерьер штаб-квартиры компании CMR Surgical. Авторы проекта WMB studio
Интерьер штаб-квартиры компании CMR Surgical. Авторы проекта WMB studio
© French and Tye
Интерьер штаб-квартиры компании CMR Surgical. Авторы проекта WMB studio
Интерьер штаб-квартиры компании CMR Surgical. Авторы проекта WMB studio
© French and Tye
Интерьер штаб-квартиры компании CMR Surgical. Авторы проекта WMB studio
Интерьер штаб-квартиры компании CMR Surgical. Авторы проекта WMB studio
© French and Tye
Интерьер штаб-квартиры компании CMR Surgical. Авторы проекта WMB studio
Интерьер штаб-квартиры компании CMR Surgical. Авторы проекта WMB studio
© French and Tye
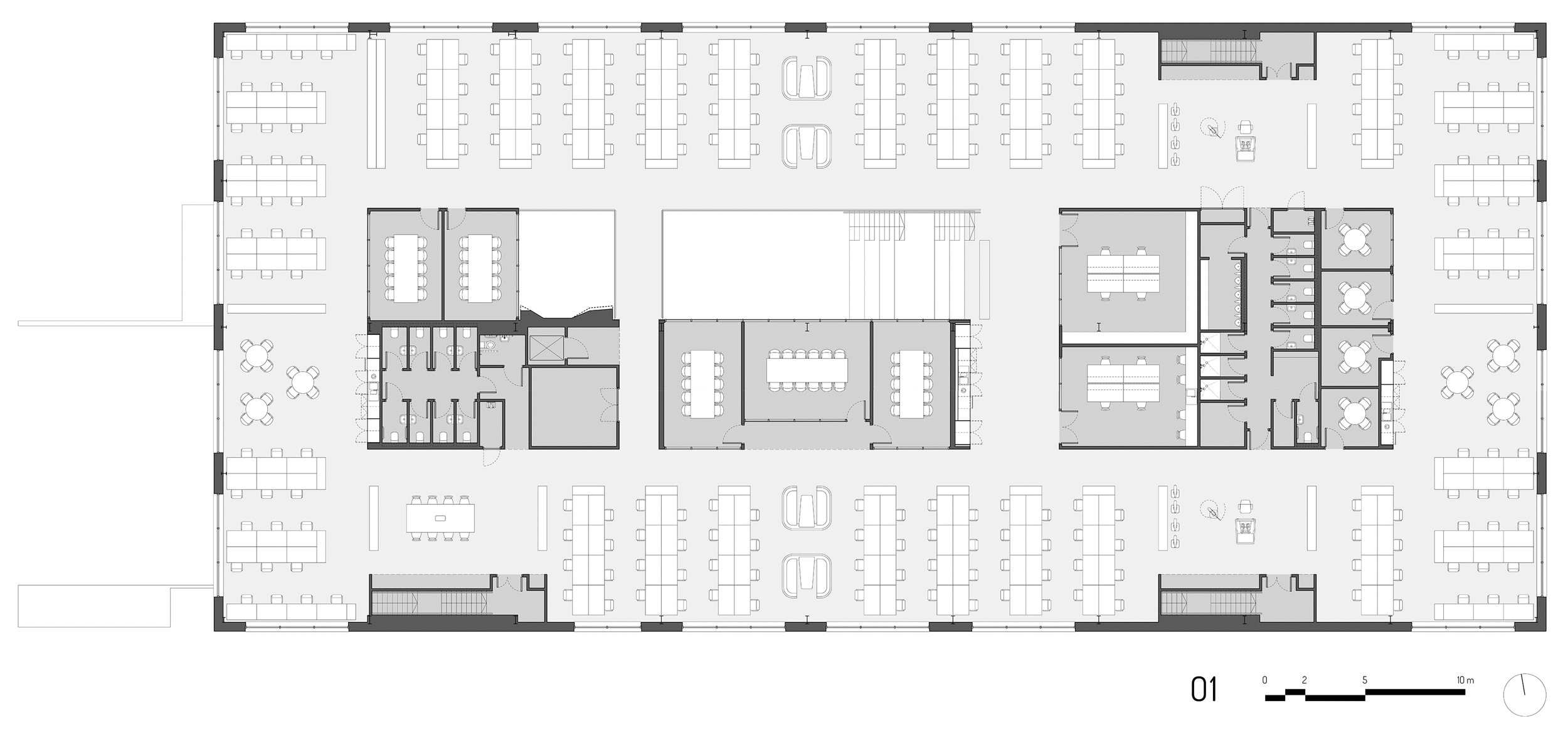
Интерьер штаб-квартиры компании CMR Surgical. План первого этажа. Авторы проекта WMB studio
Интерьер штаб-квартиры компании CMR Surgical. План первого этажа. Авторы проекта WMB studio
© WMB studio
Интерьер штаб-квартиры компании CMR Surgical. План второго этажа. Авторы проекта WMB studio
Интерьер штаб-квартиры компании CMR Surgical. План второго этажа. Авторы проекта WMB studio
© WMB studio