Размещено на портале Архи.ру (www.archi.ru)

13.01.2020

Бетон и цвет

Нина Фролова
Объект:
Школа имени Сервете Мачи
Адрес:
Албания, None, Тирана.
Мастерская:
Studioarch4

Школа с музыкальным уклоном имени Сервете Мачи в центре Тираны по проекту албанского бюро Studioarch4.

Школа имени Сервете Мачи объединяет начальные и средние классы – с первого по девятый, причем дети получают здесь и музыкальное образование. Здание одноименной школы, в годы независимости названной в честь первой в стране учительницы албанского языка, обветшало и было в 2019 заменено на новую постройку тиранского бюро Studioarch4 (при турецком владычестве в школах не учили писать и читать на родном языке, и только в 1916 во время Австро-Венгерской оккупации удалось открыть первую такую школу для девочек – на общественных началах).
 

Школа имени Сервете Мачи
Школа имени Сервете Мачи
Фото © Besart Cani

Школа расположена в плотно населенном районе албанской столицы, поэтому для архитекторов было особенно важным сделать школу одновременно и общественным центром, которых в Тиране и в стране в целом очень не хватает.
 
Школа имени Сервете Мачи
Школа имени Сервете Мачи
Фото © Besart Cani

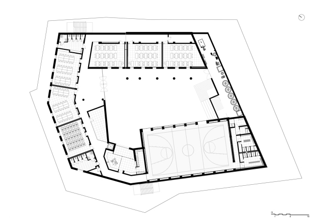
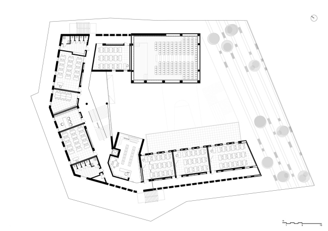
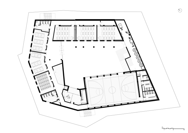
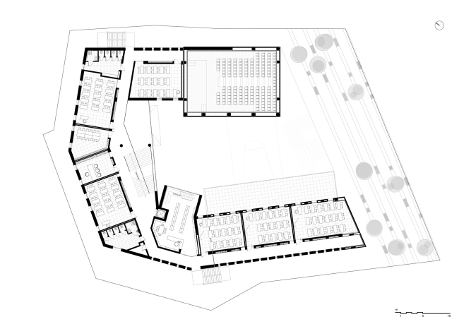
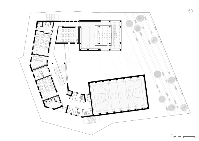
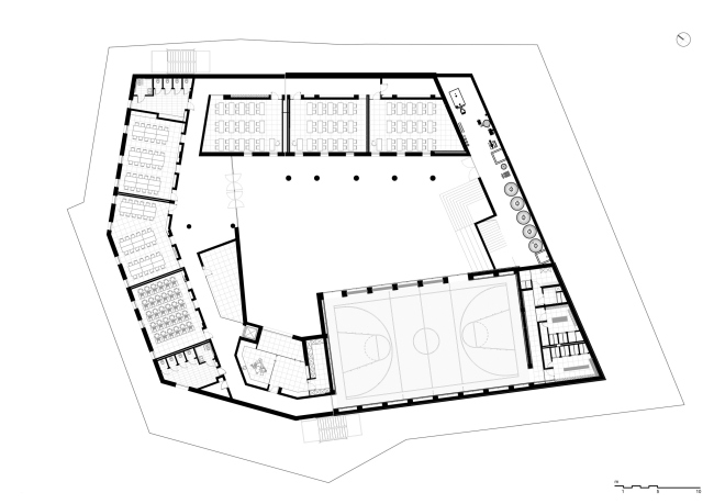
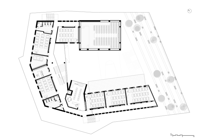
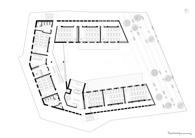
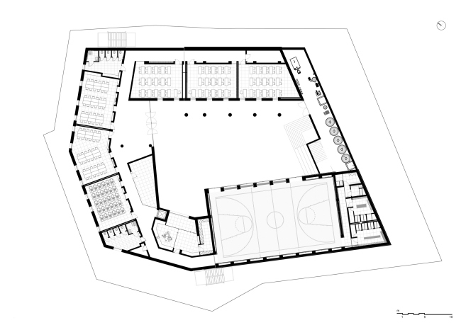
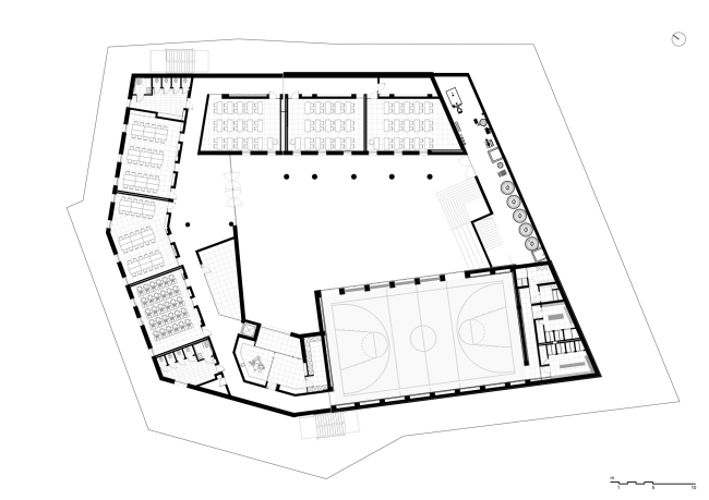
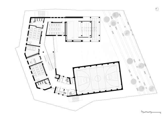
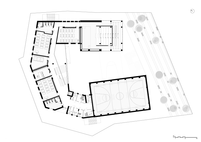
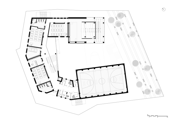
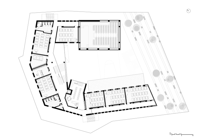
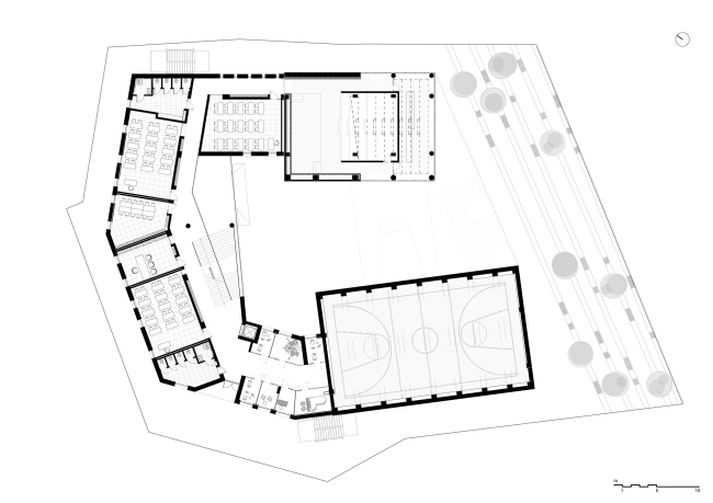
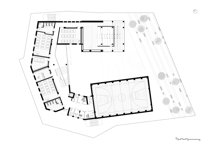
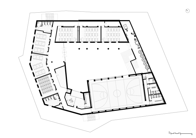
Постройка П-образного плана организована вокруг внутреннего двора, пониженного относительно уровня улицы на один этаж. Это безопасное полуобщественное пространство для игр и общения детей, здесь родители могут ждать их после занятий, также там проходят уроки физкультуры. Ведущая с улицы большая лестница может использоваться как трибуны.
 
Школа имени Сервете Мачи
Школа имени Сервете Мачи
Фото © Besart Cani

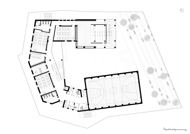
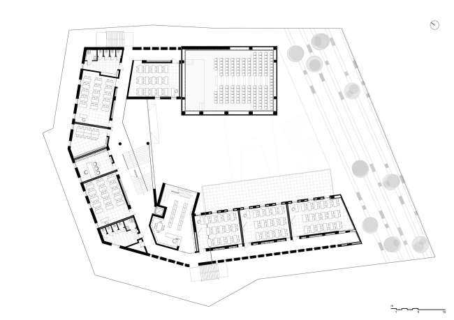
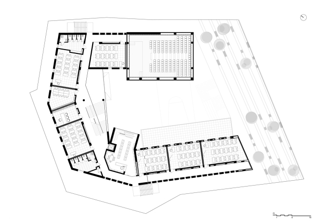
Основной материал фасадов – неокрашенный бетон, но во двор выходят яркие объемы помещений, которые служат не только школе, но и жителям прилегающего района. Это ярко-желтая библиотека, бирюзовый спортзал и красная аудитория на 140 человек.
 
Школа имени Сервете Мачи
Школа имени Сервете Мачи
Фото © Besart Cani

Классы выходят окнами во двор, чтобы защитить их от шума города; двор обращен на юг, поэтому они получают достаточно солнечного света. По внешнему периметру здания расположены коридоры и другие циркуляционные пространства. В здании – 18 классных комнат, 5 лабораторий, 8 музыкальных классов, административные и подсобные помещения. Общая площадь школы составляет 4250 м2.
Школа имени Сервете Мачи
Школа имени Сервете Мачи
Фото © Besart Cani
Школа имени Сервете Мачи
Школа имени Сервете Мачи
Фото © Besart Cani
Школа имени Сервете Мачи
Школа имени Сервете Мачи
Фото © Besart Cani
Школа имени Сервете Мачи
Школа имени Сервете Мачи
Фото © Besart Cani
Школа имени Сервете Мачи
Школа имени Сервете Мачи
Фото © Besart Cani
Школа имени Сервете Мачи
Школа имени Сервете Мачи
Фото © Besart Cani
Школа имени Сервете Мачи
Школа имени Сервете Мачи
Фото © Besart Cani
Школа имени Сервете Мачи
Школа имени Сервете Мачи
Фото © Besart Cani
Школа имени Сервете Мачи
Школа имени Сервете Мачи
Фото © Besart Cani
Школа имени Сервете Мачи
Школа имени Сервете Мачи
Фото © Besart Cani
Школа имени Сервете Мачи
Школа имени Сервете Мачи
Фото © Besart Cani
Школа имени Сервете Мачи
Школа имени Сервете Мачи
© Studioarch4
Школа имени Сервете Мачи
Школа имени Сервете Мачи
© Studioarch4
Школа имени Сервете Мачи
Школа имени Сервете Мачи
© Studioarch4
Школа имени Сервете Мачи
Школа имени Сервете Мачи
© Studioarch4
Школа имени Сервете Мачи
Школа имени Сервете Мачи
© Studioarch4
Школа имени Сервете Мачи
Школа имени Сервете Мачи
© Studioarch4
Школа имени Сервете Мачи
Школа имени Сервете Мачи
© Studioarch4
Школа имени Сервете Мачи
Школа имени Сервете Мачи
© Studioarch4
Школа имени Сервете Мачи
Школа имени Сервете Мачи
© Studioarch4
Школа имени Сервете Мачи
Школа имени Сервете Мачи
© Studioarch4
Школа имени Сервете Мачи
Школа имени Сервете Мачи
© Studioarch4
Школа имени Сервете Мачи
Школа имени Сервете Мачи
© Studioarch4