Размещено на портале Архи.ру (www.archi.ru)

30.12.2019

Дерево среди стекла

Нина Фролова
Объект:
Павильон на Хардман-сквер
Адрес:
Великобритания, None, Манчестер.
Мастерская:
Sheppard Robson

Архитекторы Sheppard Robson придали «человеческое измерение» площади в новом деловом районе Манчестера с помощью деревянного павильона с озелененными фасадами и кровлей.

Деловой район Спиннингфилдс – это встроенные в исторический центр Манчестера стеклянные объемы офисных зданий с невысокой индивидуальностью. Расположенная среди них площадь Хардман-сквер, напротив, долгое время жила «богемной» жизнью: там проводились концерты и массовые просмотры матчей на большом экране, появлялись бары формата pop up. Но девелопер района Allied London все же решил привести это пространство к порядку, сделав его, однако, «теплей», чем остальная часть Спиннингфилдс.
 

Павильон на Хардман-сквер
Павильон на Хардман-сквер
Фото © Felix Mooneeram

Теперь там появился четырехъярусный «Павильон» с «Полем» перед ним (именно так, с большой буквы). Архитекторы Sheppard Robson, несмотря на частный и коммерческий характер этого пространства, стремились уйти от порядка и упорядоченности, принеся на Хардман-сквер максимум естественности.
 
Павильон на Хардман-сквер
Павильон на Хардман-сквер
Фото © Felix Mooneeram

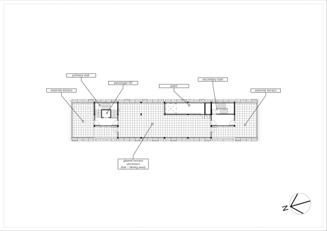
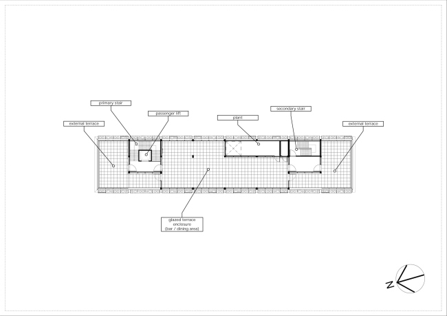
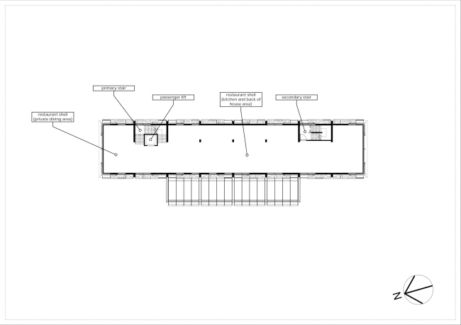
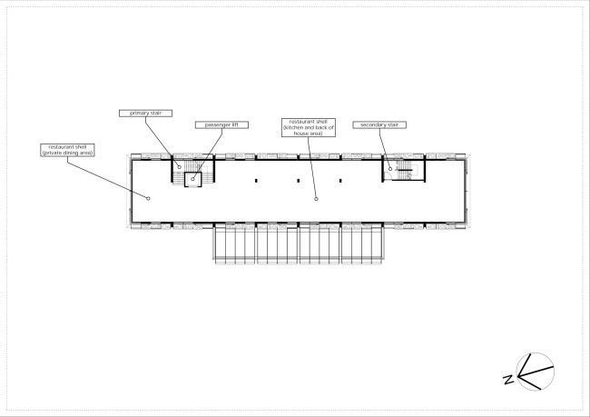
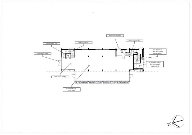
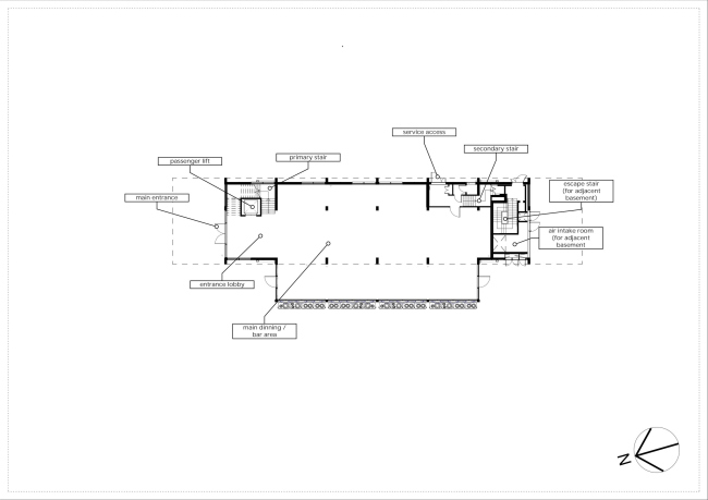
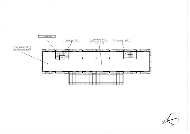
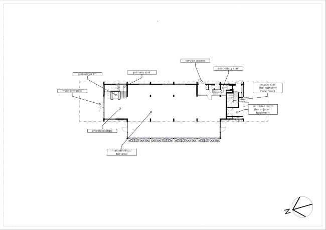
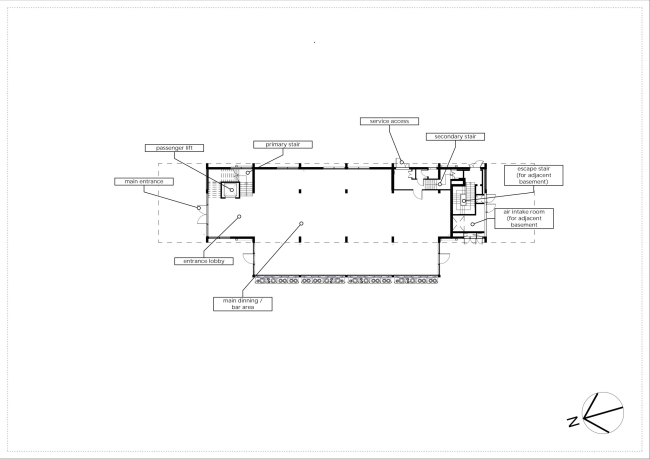
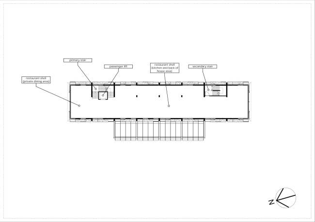
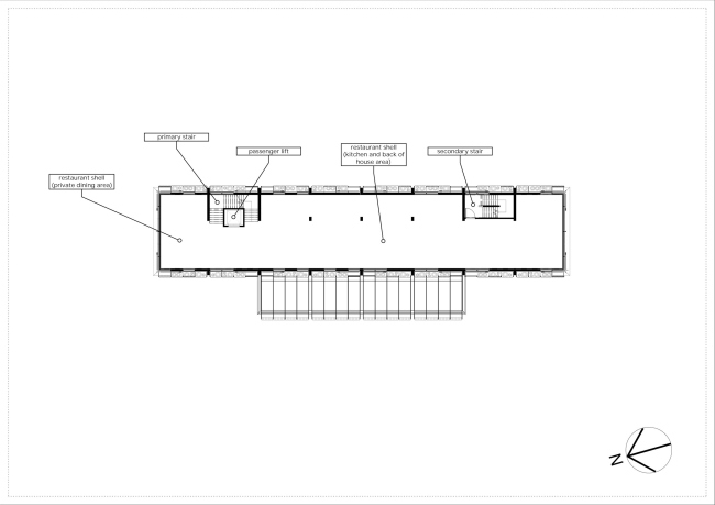
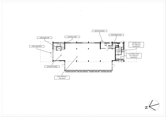
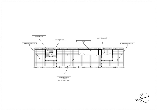
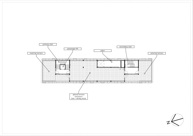
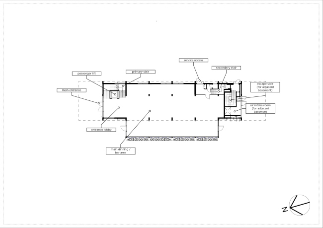
«Павильон» вмещает ресторан солидной сети The Ivy, однако его функция менее важна, чем внешний облик. Это деревянное сооружение с вынесенным наружу каркасом, где прямоугольность разбивают диагональные фермы и консольные выносы. Еще больший «беспорядок» вносит обильное озеленение. Немалую роль там играют вьющиеся растения, что сочетается с названием ресторана: «Плющ». Терраса на крыше может похвастаться целым садом с деревьями.
 
Павильон на Хардман-сквер
Павильон на Хардман-сквер
Фото © Felix Mooneeram

Дерево и зелень «Павильона» дополнены газонами и клумбами «Поля», отсылающего к истории этой части Манчестера.
Павильон на Хардман-сквер
Павильон на Хардман-сквер
Фото © Felix Mooneeram
Павильон на Хардман-сквер
Павильон на Хардман-сквер
Фото © Felix Mooneeram
Павильон на Хардман-сквер Фото © Felix Mooneeram
Павильон на Хардман-сквер
Фото © Felix Mooneeram
Павильон на Хардман-сквер Фото © Felix Mooneeram
Павильон на Хардман-сквер
Фото © Felix Mooneeram
Павильон на Хардман-сквер Фото © Felix Mooneeram
Павильон на Хардман-сквер
Фото © Felix Mooneeram
Павильон на Хардман-сквер Фото © Felix Mooneeram
Павильон на Хардман-сквер
Фото © Felix Mooneeram
Павильон на Хардман-сквер Фото © Felix Mooneeram
Павильон на Хардман-сквер
Фото © Felix Mooneeram
Павильон на Хардман-сквер Фото © Felix Mooneeram
Павильон на Хардман-сквер
Фото © Felix Mooneeram
Павильон на Хардман-сквер Фото © Felix Mooneeram
Павильон на Хардман-сквер
Фото © Felix Mooneeram
Павильон на Хардман-сквер Фото © Felix Mooneeram
Павильон на Хардман-сквер
Фото © Felix Mooneeram
Павильон на Хардман-сквер Фото © Felix Mooneeram
Павильон на Хардман-сквер
Фото © Felix Mooneeram
Павильон на Хардман-сквер Фото © Felix Mooneeram
Павильон на Хардман-сквер
Фото © Felix Mooneeram
Павильон на Хардман-сквер Фото © Felix Mooneeram
Павильон на Хардман-сквер
Фото © Felix Mooneeram
Павильон на Хардман-сквер
Павильон на Хардман-сквер
Фото © Felix Mooneeram
Павильон на Хардман-сквер Фото © Felix Mooneeram
Павильон на Хардман-сквер
Фото © Felix Mooneeram
Павильон на Хардман-сквер Фото © Felix Mooneeram
Павильон на Хардман-сквер
Фото © Felix Mooneeram
Павильон на Хардман-сквер Фото © Felix Mooneeram
Павильон на Хардман-сквер
Фото © Felix Mooneeram
Павильон на Хардман-сквер
Павильон на Хардман-сквер
Фото © Felix Mooneeram
Ресторан The Ivy Spinningfields в Павильоне на Хардман-сквер
Ресторан The Ivy Spinningfields в Павильоне на Хардман-сквер
Фото © Paul Winch-Furness. Предоставлено Sheppard Robson
Ресторан The Ivy Spinningfields в Павильоне на Хардман-сквер
Ресторан The Ivy Spinningfields в Павильоне на Хардман-сквер
Предоставлено Sheppard Robson
Павильон на Хардман-сквер
Павильон на Хардман-сквер
© Sheppard Robson
Павильон на Хардман-сквер
Павильон на Хардман-сквер
© Sheppard Robson
Павильон на Хардман-сквер
Павильон на Хардман-сквер
© Sheppard Robson
Павильон на Хардман-сквер
Павильон на Хардман-сквер
© Sheppard Robson
Павильон на Хардман-сквер
Павильон на Хардман-сквер
© Sheppard Robson
Павильон на Хардман-сквер
Павильон на Хардман-сквер
© Sheppard Robson
Павильон на Хардман-сквер
Павильон на Хардман-сквер
© Sheppard Robson