Размещено на портале Архи.ру (www.archi.ru)

25.12.2019

Зона комфорта

Мария Елфимова, Серафима Львовская
Объект:
«Мой Социальный Центр»
Адрес:
Россия, Москва. Сущёвский Вал, 31 стр. 2
Мастерская:
Хора
Авторский коллектив:
Михаил Микадзе (руководитель авторского коллектива), Оят Шукуров (руководитель авторского коллектива), Александра Ивашкевич (архитектор), Елизавета Ларцева (архитектор)
Проект благоустройства: АБ Новое
Навигация: ZOLOTOgroup

Рассматриваем интерьер общественного пространства «Мой социальный центр» – первый пример такого рода, реализованный в рамках новой программы московской мэрии по проекту бюро Хора.

Социальные центры запланированы в Москве как сеть мест для проведения досуга старшего поколения, по одному в каждом округе: планировалось, что первый пилотный центр откроется в Центральном, но так вышло, что его опередило СВАО, и раньше других открылось пространство в Марьиной роще. [UPD: согласно сообщению Департамента труда и соцзащиты города, СВАО был выбран среди московских округов для создания первого центра]. Его появлению предшествовало общественное обсуждение и выбор площадки: здание на Сущевском валу, 31 признали лучшим из-за достаточно просторной площади – 1642 м2, и удачного расположения: недалеко от автобусной остановки и подземного перехода под ТТК, за супермаркетом Billa.

Одноэтажное здание расположено во дворе бизнес-центра «Сущевский, 31» и широкой П-образной рамкой окружает его парковку. До превращения в социальный центр корпус сдавали в аренду как часть того же БЦ: внутри был офисный ремонт 2011 года, собственно же здание построено в конце 1950-х – начале 1960-х годов, оно – представитель промышленного или административного строительства времени оттепели: большие окна, высокие потолки, никаких «архитектурных излишеств». От архитекторов бюро Хора требовалось сохранить имеющиеся достоинства пространства – прежде всего, конечно, свет и простор, добавив уюта и узнаваемости: проект для города знаковый и должен живо демонстрировать обновление социальной сферы.

Работе предшествовал другой заказ Департамента труда и соцзащиты – на исследование мирового опыта создания социальных центров, прежде всего, их функционального состава – поэтому авторы участвовали и в создании программы центра. Ее основу составили пять основных зон: ресепшн-приемная, гостиная и творческая гостиная, зона спорта и здоровья с медицинским кабинетом, актовый зал и кухня-кафе.

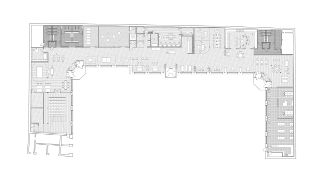
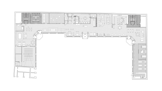
План.
Мой Социальный Центр
План. Мой Социальный Центр
© фотограф – Андрей Орехов/ХОРА

Внутрь мы попадаем через автоматические стеклянные двери, без ступенек, небольшой перепад высоты смягчен пандусом. Входов-выходов три: прямо по центру и симметрично в двух углах. Пространство интерьера вдоль обращенного во двор фасада с его крупными, почти до земли, окнами, решено как цельное, с минимумом перегородок – тематические зоны «перетекают» одна в другую и предполагают свободное перемещение, может быть даже прогулку. Вдоль окон расставлены плюшевые кресла с высокими спинками и даже «ушами» – популярный в наше время вид мебели обладает несколькими достоинствами, они не просто уютные, мягкие и удобные даже на вид, но еще и помогают создать ощущение приватности в открытом пространстве, полузакрытости и, как следствие, комфорта без потери простора. Это место, где можно спокойно беседовать, поглядывая за окно, или попросту отдыхать, наслаждаясь отличием обстановки от привычной домашней.
Общий вид.
Мой Социальный Центр
Общий вид. Мой Социальный Центр
© фотограф – Андрей Орехов/ХОРА

Зона, назовем ее так, кресел перед окнами, больше всего похожая на собственно гостиную, перетекает в гостиную-библиотеку, которая занимает правый от входа северо-восточный угол. Стеллажи с книгами по стенам создают уют, а те же кресла с высокими спинками и похожие на них диваны сгруппированы вокруг столиков побольше, не таких «журнальных», как у окон, где-то – игровых, с шахматами. Здесь, в сочетании с темным деревом стеллажей, появляется темно-зеленый, сдержанно-прохладный цвет стен, который многим, вероятно, напомнит о «зеленой лампе» – была ведь даже такая передача – и в целом обстановку не столько гостиной, сколько кабинета.
Библиотека.
Мой Социальный Центр
Библиотека. Мой Социальный Центр
© фотограф – Андрей Орехов/ХОРА

Поворачивая за угол, попадаем в зону розового цвета – для самостоятельной готовки и кулинарных мастер-классов (вот, к примеру, один уже состоялся), здесь оборудована кухня. За ней – самое настоящее кафе, в котором, однако, можно съесть и свою, приготовленную на мастер-классе, еду.
Кулинарная студия.
Мой Социальный Центр
Кулинарная студия. Мой Социальный Центр
© фотограф – Андрей Орехов/ХОРА

Левая, западная часть здания отведена для спорта и театра: начинается она со столов для пинг-понга, гимнастического зала и тренажеров, дальше, за поворотом, расположен актовый зал. В этой зоне оттенки цвета более сдержанны, преобладает светло-серый.
Актовый зал.
Мой Социальный Центр
Актовый зал. Мой Социальный Центр
© фотограф – Андрей Орехов/ХОРА
Медиа-гостинная.
Мой Социальный Центр
Медиа-гостинная. Мой Социальный Центр
© фотограф – Андрей Орехов/ХОРА

Вдоль «темных» стен внешнего контура расположены пространства для мастер-классов, уроков и лекций, включая два медиа-зала за темными шторами. Закрытые пространства, впрочем, здесь возникают только там, где это необходимо, в остальном даже среди перегородок преобладают сдвижные и прозрачные, все отлично просматривается, и даже просто прогуливаясь по центру, можно видеть – где начинается урок работы с социальными сетями, а где бисероплетения, как беседуют в гостиной-библиотеке и как прыгают (кажется, постоянно) спортивно настроенные посетители вокруг столов пинг-понга. Любопытно, что зоны без перегородок, разного рода гостиные и связывающие их переходы, объединены «теплым» потолком из деревянных реек, а полузакрытые помещения – места для мастер-классов и актовый зал – получили актуальные в наше время потолки с открытыми коммуникациями, чьи главные достоинства – максимальная высота и возможность рассматривать их устройство.
Мастерская.
Мой Социальный Центр
Мастерская. Мой Социальный Центр
© фотограф – Андрей Орехов/ХОРА

Интерьер социального центра представляет собой интересный гибрид современного дизайна и латентной классики. Наиболее считываемый элемент традиции – это, конечно же, мягкие кресла с высокими спинками, или, к примеру, изогнутые ножки шахматного столика. Менее заметные признаки классики– широкая белая полоса под потолком во всех помещениях и сдержанные респектабельные оттенки, «цвета классицизма»: зеленый, розовый, оливковый, серый. На ту же задачу работает и обилие дерева – на полу, потолке, в мебели. Эта часть образа отвечает, надо сказать, не только за пресловутый уют, но и за эмоциональную насыщенность, а отчасти за навигацию, поскольку человеку важно ощущать себя в разных частях здания по-разному. Навигации, к слову, здесь много, списки тематических зон со стрелками встречаются часто, не позволяя заблудиться (они разработаны ZOLOTOgroup).

И между тем интерьер абсолютно современен и свеж, в нем нет ничего от ресторанно-гостиничного заигрывания с традицией. Только его современность – не фраппирующая, без эпатажа, а техничная, практическая и понята как разумная необходимость. Наверное можно сказать, что здесь достигнут баланс между классикой и современностью, хотя это будет звучать слишком громко: скорее не баланс, скорее – противоречие векового спора между ними снято как не имеющее смысла и давно исчерпанное.

«Пространство этого центра, в отличие от былых образцов, открыто, наполнено светом, дружелюбно и тактично по отношению к пользователю», – говорят архитекторы, подчеркивая: главное – ценность для человека. Свой проект авторы считают очень важным именно потому, что он нацелен продлить жизнь пожилым людям, сделать ее насыщенной и интересной. С точки зрения интерьера, признаем, для этой цели здесь сделано многое.

Перед фасадом во дворе также появилось благоустройство, спроектированное АБ Новое: деревянный помост, кадки с зеленью, реечная, похожая на потолки внутри, беседка. Они несколько «отодвигают» от взгляда изнутри парковку, которой все же продолжает служить двор. С другой стороны, 10 машиномест здесь зарезервировано, как нам рассказали на охране, для социального центра.

Сейчас в Москве работает уже 4 центра: один, на Таганке, открылся в ЦАО вскоре после марьинорощинского; два других, в Преображенском и Чертанове, открылись в декабре. Все интерьеры основаны на концепции, предложенной архитекторами Хоры, адаптированной к планировкам конкретных помещений.