Размещено на портале Архи.ру (www.archi.ru)

24.12.2019

Оригами из лиственницы

Нина Фролова
Объект:
Тренировочная база гребли на байдарках
Адрес:
Польша, None, Августов.
Мастерская:
INOONI
PSBA
Авторский коллектив:
Przemysław Sokołowski (PSBA), Jakub Zygmunt (INOONI), Martyna Lenart-Zygmunt

Тренировочная байдарочная база в Августове на северо-востоке Польши по проекту бюро INOONI и PSBA получила фасады из сибирской лиственницы.

Заказчик проекта – муниципалитет, который еще в 2016 провел соответствующий архитектурный конкурс. База расположена на берегу реки Нетты в центре города, рядом со шлюзом знаменитого Августовского канала. Зеленая территория в изгибе русла должна превратиться в рекреационную зону со спортивными объектами, детской площадкой, разнообразным благоустройством. Гребная база составляет первую очередь этого проекта.
 

Тренировочная база гребли на байдарках
Тренировочная база гребли на байдарках
Фото © Bartosz Dworski
Тренировочная база гребли на байдарках
Тренировочная база гребли на байдарках
Фото © Bartosz Dworski
Тренировочная база гребли на байдарках
Тренировочная база гребли на байдарках
Фото © Bartosz Dworski






Центр водных видов спорта площадью 770 м2 и бюджетом в 5,7 млн злотых (1,4 млн из них выделило Министерство спорта) предназначен в первую очередь для байдарочного клуба «Спарта», а также для проведения соревнований и других спортивных событий.
 
Тренировочная база гребли на байдарках
Тренировочная база гребли на байдарках
Фото © Bartosz Dworski
Тренировочная база гребли на байдарках
Тренировочная база гребли на байдарках
Фото © Bartosz Dworski
Тренировочная база гребли на байдарках
Тренировочная база гребли на байдарках
Фото © Bartosz Dworski

Напоминающая оригами форма здания с острыми углами передает идею динамики. Перепад высот отвечает внутреннему устройству: ангар для хранения байдарок и мастерская расположены в более просторной части. Фасады базы обшиты досками сибирской лиственницы, кровля – озеленена.
 
Тренировочная база гребли на байдарках
Тренировочная база гребли на байдарках
Фото © Bartosz Dworski
Тренировочная база гребли на байдарках
Тренировочная база гребли на байдарках
Фото © Bartosz Dworski
Тренировочная база гребли на байдарках
Тренировочная база гребли на байдарках
Фото © Bartosz Dworski

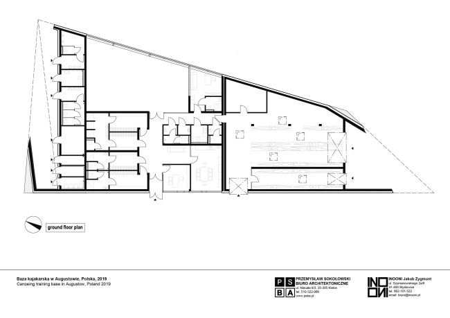
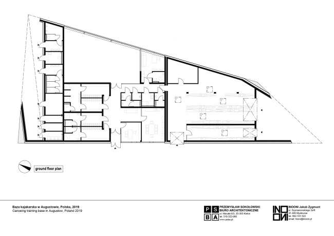
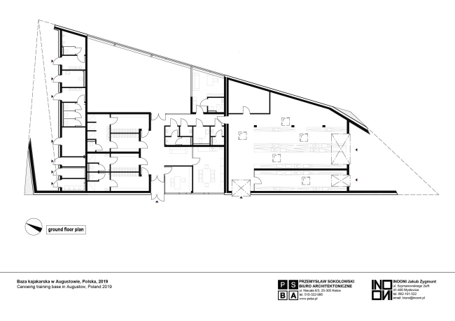
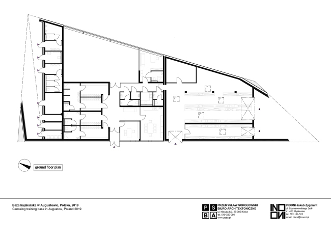
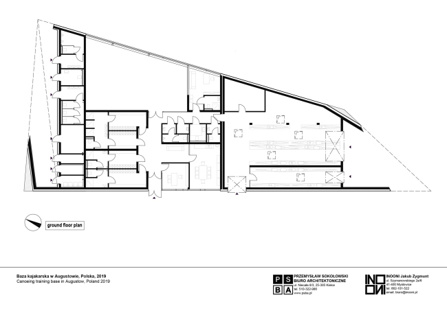
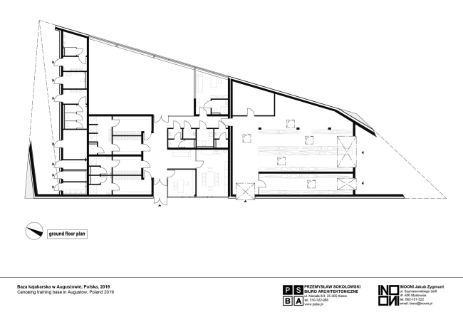
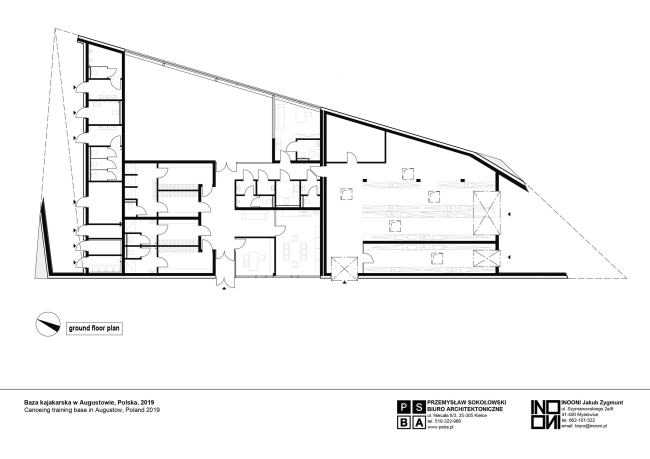
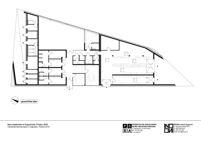
Помимо упомянутого ангара, в здании имеются раздевалки, тренажерный зал с видом на реку, помещение для собраний клуба, а также общественный туалет. Рядом с базой у воды построен небольшой эллинг для моторных лодок с двумя помостами и мини-трибунами, завершающимися смотровой площадкой.
Тренировочная база гребли на байдарках
Тренировочная база гребли на байдарках
Фото © Bartosz Dworski
Тренировочная база гребли на байдарках
Тренировочная база гребли на байдарках
Фото © Bartosz Dworski
Тренировочная база гребли на байдарках
Тренировочная база гребли на байдарках
Фото © Bartosz Dworski
Тренировочная база гребли на байдарках
Тренировочная база гребли на байдарках
Фото © Bartosz Dworski
Тренировочная база гребли на байдарках
Тренировочная база гребли на байдарках
Фото © Bartosz Dworski
Тренировочная база гребли на байдарках
Тренировочная база гребли на байдарках
Фото © Bartosz Dworski
Тренировочная база гребли на байдарках
Тренировочная база гребли на байдарках
Фото © Bartosz Dworski
Тренировочная база гребли на байдарках
Тренировочная база гребли на байдарках
Фото © Bartosz Dworski
Тренировочная база гребли на байдарках
Тренировочная база гребли на байдарках
Фото © Bartosz Dworski
Тренировочная база гребли на байдарках
Тренировочная база гребли на байдарках
Фото © Bartosz Dworski
Тренировочная база гребли на байдарках
Тренировочная база гребли на байдарках
Фото © Bartosz Dworski
Тренировочная база гребли на байдарках
Тренировочная база гребли на байдарках
Фото © Bartosz Dworski
Тренировочная база гребли на байдарках
Тренировочная база гребли на байдарках
Фото © Bartosz Dworski
Тренировочная база гребли на байдарках
Тренировочная база гребли на байдарках
Предоставлено INOONI
Тренировочная база гребли на байдарках
Тренировочная база гребли на байдарках
Предоставлено INOONI
Тренировочная база гребли на байдарках
Тренировочная база гребли на байдарках
Предоставлено INOONI
Тренировочная база гребли на байдарках
Тренировочная база гребли на байдарках
Предоставлено INOONI