Размещено на портале Архи.ру (www.archi.ru)

24.12.2019

Возрождение Дворца

Объект:
Дворец культуры в Железноводске
Адрес:
Россия, Ставропольский край, Железноводск. Чайковского, 1
Мастерская:
Archiproba Studios
Авторский коллектив:
Архитекторы Тамара Мурадова, Елизавета Шувалова, главный инженер К.П. Венедиктов.

Архитекторы Archiproba Studios бережно восстановили образец позднего советского модернизма – Дворец культуры в городе-курорте Железноводске.

Материалы предоставлены Archiproba Studios.

Здание Дворца культуры было построено в 1982 году: типовой проект был разработан проектным институтом по заказу курортного совета. ДК является ярким примером архитектуры брежневской эпохи. Его площадь – около 12 тысяч метров; с момента строительства в нем никогда не было ремонта. Реконструкция длилась полгода и стоила около 300 миллионов рублей.

Дворец культуры в Железноводске. Реконструкция по проекту Archiproba Studios
Дворец культуры в Железноводске. Реконструкция по проекту Archiproba Studios
Фото © Макс Авдеев

Прямоугольный объем здания выполнен в стилистике модернистской архитектуры, в нем располагаются киноконцертный и лекционные залы, танцевальные холлы, зоны рекреации, образовательные пространства, выставочные площади, шахматный клуб и библиотека.

Основной стеклянный объем утоплен в пластике фасада, его обволакивает открытый балкон и структура из горизонтальных навесных ламелей. Над главными входами в здание располагаются навесные монументальные медные панно в технике чеканки. Структура здания образует центральный атриум: естественный свет туда проникает благодаря зенитным фонарям пирамидальной формы.
Дворец культуры в Железноводске. Реконструкция по проекту Archiproba Studios
Дворец культуры в Железноводске. Реконструкция по проекту Archiproba Studios
Фото © Макс Авдеев

Проект реставрации Дворца культуры – это деликатное вторжение в исторический объект и бережная работа с материальным наследием. Основная идея проекта – это максимальное сохранение аутентичных элементов здания и воссоздание исторического облика.

Таким образом, все декоративные фасадные панно, интерьерные лестницы и полы из кубинского мрамора, колонны и стены из армянского туфа и оригинальное волнообразное решение потолка в большом зрительном зале были тщательно очищены и сохранены.
Дворец культуры в Железноводске. Реконструкция по проекту Archiproba Studios
Дворец культуры в Железноводске. Реконструкция по проекту Archiproba Studios
Фото © Макс Авдеев

Все новые интерьерные пластические решения в точности повторяют исторический облик, заложенный первоначальными авторами проекта. В ходе реставрации были воссозданы треугольные зенитные фонари, что позволило естественному свету беспрепятственно проникать в зону атриума, прямоугольные потолочные кессоны с отраженным светом и фасадная система солнцезащитных ламелей.

Витражный фасад здания полностью заменили на новый в четком соответствии с исторической раскреповкой элементов и цветовой картой. Угловой сегмент здания замыкает медиа-экран, являющийся ключевым инфо-носителем в городе.

Подробнее о проекте можно прочесть здесь.
Дворец культуры в Железноводске. Реконструкция по проекту Archiproba Studios
Дворец культуры в Железноводске. Реконструкция по проекту Archiproba Studios
Фото © Макс Авдеев
Дворец культуры в Железноводске. Реконструкция по проекту Archiproba Studios
Дворец культуры в Железноводске. Реконструкция по проекту Archiproba Studios
Фото © Макс Авдеев
Дворец культуры в Железноводске. Реконструкция по проекту Archiproba Studios
Дворец культуры в Железноводске. Реконструкция по проекту Archiproba Studios
Фото © Макс Авдеев
Дворец культуры в Железноводске. Реконструкция по проекту Archiproba Studios Фото © Макс Авдеев
Дворец культуры в Железноводске. Реконструкция по проекту Archiproba Studios
Фото © Макс Авдеев
Дворец культуры в Железноводске. Реконструкция по проекту Archiproba Studios Фото © Макс Авдеев
Дворец культуры в Железноводске. Реконструкция по проекту Archiproba Studios
Фото © Макс Авдеев
Дворец культуры в Железноводске. Реконструкция по проекту Archiproba Studios Фото © Макс Авдеев
Дворец культуры в Железноводске. Реконструкция по проекту Archiproba Studios
Фото © Макс Авдеев
Дворец культуры в Железноводске. Реконструкция по проекту Archiproba Studios Фото © Макс Авдеев
Дворец культуры в Железноводске. Реконструкция по проекту Archiproba Studios
Фото © Макс Авдеев
Дворец культуры в Железноводске. Реконструкция по проекту Archiproba Studios Фото © Макс Авдеев
Дворец культуры в Железноводске. Реконструкция по проекту Archiproba Studios
Фото © Макс Авдеев
Дворец культуры в Железноводске. Реконструкция по проекту Archiproba Studios Фото © Макс Авдеев
Дворец культуры в Железноводске. Реконструкция по проекту Archiproba Studios
Фото © Макс Авдеев
Дворец культуры в Железноводске. Реконструкция по проекту Archiproba Studios Фото © Макс Авдеев
Дворец культуры в Железноводске. Реконструкция по проекту Archiproba Studios
Фото © Макс Авдеев
Дворец культуры в Железноводске. Реконструкция по проекту Archiproba Studios Фото © Макс Авдеев
Дворец культуры в Железноводске. Реконструкция по проекту Archiproba Studios
Фото © Макс Авдеев
Дворец культуры в Железноводске. Реконструкция по проекту Archiproba Studios Фото © Макс Авдеев
Дворец культуры в Железноводске. Реконструкция по проекту Archiproba Studios
Фото © Макс Авдеев
Дворец культуры в Железноводске. Реконструкция по проекту Archiproba Studios Фото © Макс Авдеев
Дворец культуры в Железноводске. Реконструкция по проекту Archiproba Studios
Фото © Макс Авдеев
Дворец культуры в Железноводске. Реконструкция по проекту Archiproba Studios Фото © Макс Авдеев
Дворец культуры в Железноводске. Реконструкция по проекту Archiproba Studios
Фото © Макс Авдеев
Дворец культуры в Железноводске. Реконструкция по проекту Archiproba Studios Фото © Макс Авдеев
Дворец культуры в Железноводске. Реконструкция по проекту Archiproba Studios
Фото © Макс Авдеев
Дворец культуры в Железноводске. Реконструкция по проекту Archiproba Studios
Дворец культуры в Железноводске. Реконструкция по проекту Archiproba Studios
Фото © Макс Авдеев
Дворец культуры в Железноводске. Реконструкция по проекту Archiproba Studios Фото © Макс Авдеев
Дворец культуры в Железноводске. Реконструкция по проекту Archiproba Studios
Фото © Макс Авдеев
Дворец культуры в Железноводске. Реконструкция по проекту Archiproba Studios Фото © Макс Авдеев
Дворец культуры в Железноводске. Реконструкция по проекту Archiproba Studios
Фото © Макс Авдеев
Дворец культуры в Железноводске. Реконструкция по проекту Archiproba Studios Фото © Макс Авдеев
Дворец культуры в Железноводске. Реконструкция по проекту Archiproba Studios
Фото © Макс Авдеев
Дворец культуры в Железноводске. Реконструкция по проекту Archiproba Studios Фото © Макс Авдеев
Дворец культуры в Железноводске. Реконструкция по проекту Archiproba Studios
Фото © Макс Авдеев
Дворец культуры в Железноводске. Реконструкция по проекту Archiproba Studios Фото © Макс Авдеев
Дворец культуры в Железноводске. Реконструкция по проекту Archiproba Studios
Фото © Макс Авдеев
Дворец культуры в Железноводске. Реконструкция по проекту Archiproba Studios Фото © Макс Авдеев
Дворец культуры в Железноводске. Реконструкция по проекту Archiproba Studios
Фото © Макс Авдеев
Дворец культуры в Железноводске. Реконструкция по проекту Archiproba Studios Фото © Макс Авдеев
Дворец культуры в Железноводске. Реконструкция по проекту Archiproba Studios
Фото © Макс Авдеев
Дворец культуры в Железноводске. Реконструкция по проекту Archiproba Studios
Дворец культуры в Железноводске. Реконструкция по проекту Archiproba Studios
Фото © Макс Авдеев
Дворец культуры в Железноводске. Реконструкция по проекту Archiproba Studios Фото © Макс Авдеев
Дворец культуры в Железноводске. Реконструкция по проекту Archiproba Studios
Фото © Макс Авдеев
Дворец культуры в Железноводске. Реконструкция по проекту Archiproba Studios Фото © Макс Авдеев
Дворец культуры в Железноводске. Реконструкция по проекту Archiproba Studios
Фото © Макс Авдеев
Дворец культуры в Железноводске. Реконструкция по проекту Archiproba Studios Фото © Макс Авдеев
Дворец культуры в Железноводске. Реконструкция по проекту Archiproba Studios
Фото © Макс Авдеев
Дворец культуры в Железноводске. Реконструкция по проекту Archiproba Studios Фото © Макс Авдеев
Дворец культуры в Железноводске. Реконструкция по проекту Archiproba Studios
Фото © Макс Авдеев
Дворец культуры в Железноводске. Реконструкция по проекту Archiproba Studios
Дворец культуры в Железноводске. Реконструкция по проекту Archiproba Studios
Фото © Макс Авдеев
Дворец культуры в Железноводске. Реконструкция по проекту Archiproba Studios
Дворец культуры в Железноводске. Реконструкция по проекту Archiproba Studios
Фото © Макс Авдеев
Дворец культуры в Железноводске. Реконструкция по проекту Archiproba Studios
Дворец культуры в Железноводске. Реконструкция по проекту Archiproba Studios
Фото © Макс Авдеев
Дворец культуры в Железноводске. Реконструкция по проекту Archiproba Studios
Дворец культуры в Железноводске. Реконструкция по проекту Archiproba Studios
Фото © Макс Авдеев
Дворец культуры в Железноводске. Реконструкция по проекту Archiproba Studios
Дворец культуры в Железноводске. Реконструкция по проекту Archiproba Studios
Фото © Макс Авдеев
Дворец культуры в Железноводске. Реконструкция по проекту Archiproba Studios
Дворец культуры в Железноводске. Реконструкция по проекту Archiproba Studios
Фото © Макс Авдеев
Дворец культуры в Железноводске. Реконструкция по проекту Archiproba Studios
Дворец культуры в Железноводске. Реконструкция по проекту Archiproba Studios
Фото © Макс Авдеев
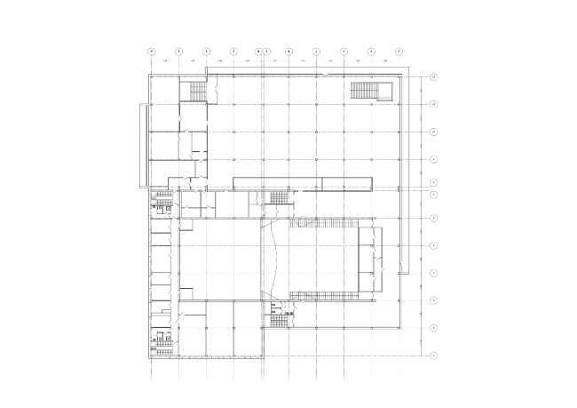
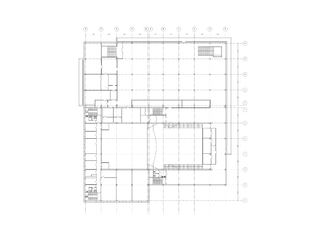
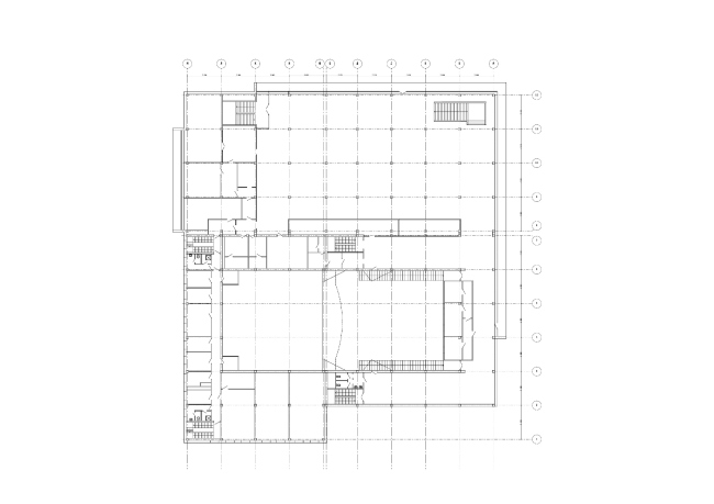
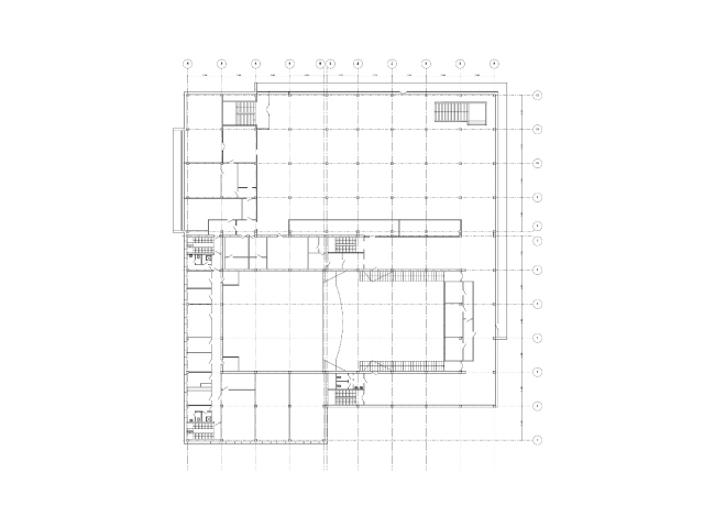
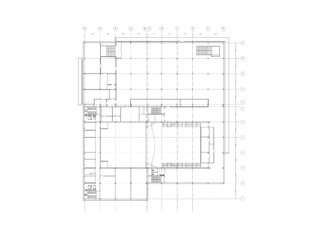
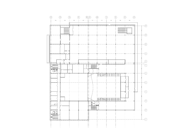
Дворец культуры в Железноводске. Реконструкция по проекту Archiproba Studios. План первого этажа
Дворец культуры в Железноводске. Реконструкция по проекту Archiproba Studios. План первого этажа
© Archiproba Studios
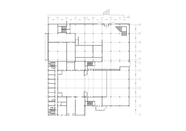
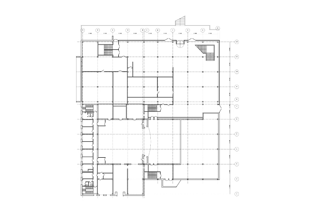
Дворец культуры в Железноводске. Реконструкция по проекту Archiproba Studios. План второго этажа
Дворец культуры в Железноводске. Реконструкция по проекту Archiproba Studios. План второго этажа
© Archiproba Studios
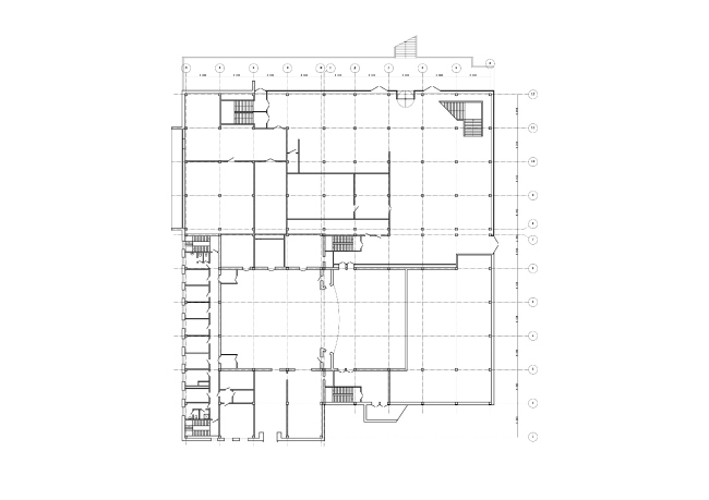
Дворец культуры в Железноводске. Реконструкция по проекту Archiproba Studios. План по уровню кровли
Дворец культуры в Железноводске. Реконструкция по проекту Archiproba Studios. План по уровню кровли
© Archiproba Studios
Дворец культуры в Железноводске. Фото сделано вскоре после его открытия в 1982
Дворец культуры в Железноводске. Фото сделано вскоре после его открытия в 1982
Предоставлено Archiproba Studios
Дворец культуры в Железноводске. Фото сделано вскоре после его открытия в 1982
Дворец культуры в Железноводске. Фото сделано вскоре после его открытия в 1982
Предоставлено Archiproba Studios
Процесс реконструкции Дворца культуры в Железноводске © Archiproba Studios
Процесс реконструкции Дворца культуры в Железноводске
© Archiproba Studios
Процесс реконструкции Дворца культуры в Железноводске © Archiproba Studios
Процесс реконструкции Дворца культуры в Железноводске
© Archiproba Studios
Процесс реконструкции Дворца культуры в Железноводске © Archiproba Studios
Процесс реконструкции Дворца культуры в Железноводске
© Archiproba Studios
Процесс реконструкции Дворца культуры в Железноводске © Archiproba Studios
Процесс реконструкции Дворца культуры в Железноводске
© Archiproba Studios
Процесс реконструкции Дворца культуры в Железноводске © Archiproba Studios
Процесс реконструкции Дворца культуры в Железноводске
© Archiproba Studios
Процесс реконструкции Дворца культуры в Железноводске © Archiproba Studios
Процесс реконструкции Дворца культуры в Железноводске
© Archiproba Studios
Процесс реконструкции Дворца культуры в Железноводске © Archiproba Studios
Процесс реконструкции Дворца культуры в Железноводске
© Archiproba Studios
Процесс реконструкции Дворца культуры в Железноводске © Archiproba Studios
Процесс реконструкции Дворца культуры в Железноводске
© Archiproba Studios
Процесс реконструкции Дворца культуры в Железноводске © Archiproba Studios
Процесс реконструкции Дворца культуры в Железноводске
© Archiproba Studios