Размещено на портале Архи.ру (www.archi.ru)

04.12.2019

Небоскребы, вода, библиотека

Нина Фролова
Объект:
Библиотека района Хантерс-Пойнт
Адрес:
США, None, Нью-Йорк.

В Нью-Йорке открылась библиотека района Хантерс-Пойнт по проекту Стивена Холла: по одному большому окну здесь отдано взрослым, детям и подросткам.

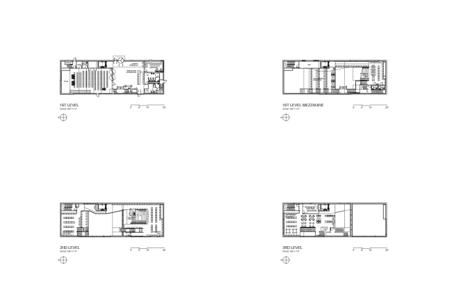
Библиотека Хантер-Пойнт в округе Квинс – это компактный прямоугольный блок. Такая композиция вызвана желанием Стивена Холла освободить максимум участка (который сам – менее 0,3 га) под парк. Архитектору не слишком нравится типичная для Нью-Йорка ситуация, когда новые муниципальные библиотеки встраивают в первые и цокольные этажи коммерческой высотной застройки, и общественного пространства вокруг них создать нельзя.
 

Библиотека района Хантерс-Пойнт
Библиотека района Хантерс-Пойнт
Фото © Paul Warchol
Библиотека района Хантерс-Пойнт
Библиотека района Хантерс-Пойнт
Фото © Paul Warchol

Его постройка, напротив, хорошо заметна на фоне жилых небоскребов при взгляде с другого, манхэттенского, берега пролива Ист-ривер. Вокруг нее – собственный сад, а между ней и водой – небольшой парк, для которого Холл построил два низких служебных корпуса, дополненных рощей из деревьев гинкго.
 
Библиотека района Хантерс-Пойнт
Библиотека района Хантерс-Пойнт
Фото © Paul Warchol
Библиотека района Хантерс-Пойнт Фото © Paul Warchol
Библиотека района Хантерс-Пойнт
Фото © Paul Warchol
Библиотека района Хантерс-Пойнт Фото © Paul Warchol
Библиотека района Хантерс-Пойнт
Фото © Paul Warchol
Библиотека района Хантерс-Пойнт Фото © Steven Holl Architects
Библиотека района Хантерс-Пойнт
Фото © Steven Holl Architects

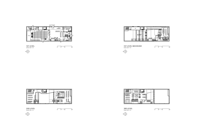
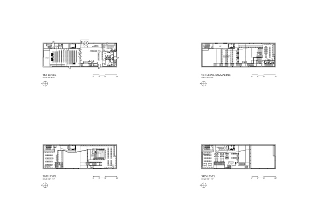
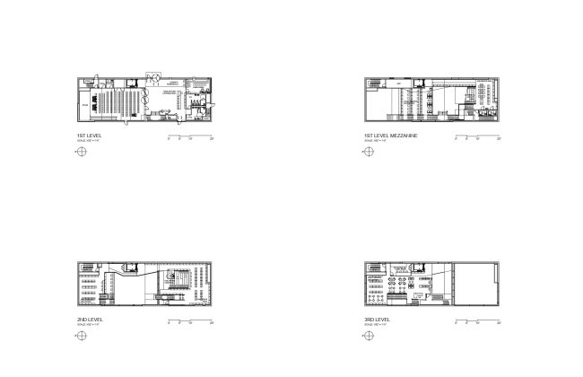
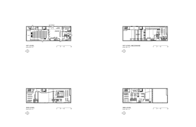
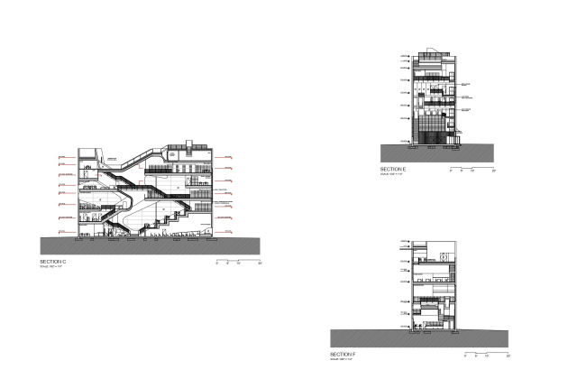
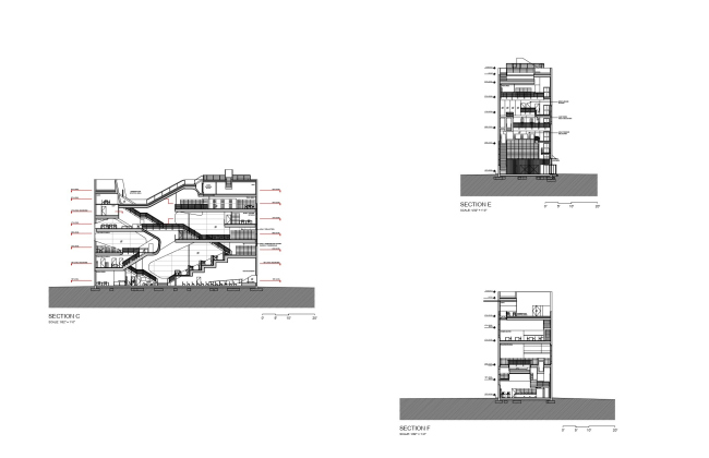
Объем библиотеки, при всей сдержанной прямоугольности, притягивает внимание очертаниями огромных окон, свидетельствующих: в интерьере все далеко не так регулярно, как снаружи. Там играют роль диагонали лестниц, связывающих антресольные этажи с антресольными, обилие солнечного света (и панорамных видов), разнообразие функций: стеллажи с книгами соседствуют с цифровыми рабочими местами.
 
Библиотека района Хантерс-Пойнт
Библиотека района Хантерс-Пойнт
Фото © Steven Holl Architects
Библиотека района Хантерс-Пойнт
Библиотека района Хантерс-Пойнт
Фото © Steven Holl Architects

Бетонная оболочка окрашена снаружи серебристой краской (хотя сначала планировались алюминиевые панели), а внутри преобладает бамбук. Оболочка – самонесущая, что позволило обойтись без дополнительных опор в интерьере. Под первым уровнем есть зал на 140 зрителей, а на крыше – «читальная» терраса. Восточный, обращенный к Квинсу фасад получил три больших окна – на нижнем, взрослом, среднем – детском, и верхнем – подростковом ярусах.
Библиотека района Хантерс-Пойнт
Библиотека района Хантерс-Пойнт
Фото © Steven Holl Architects
Библиотека района Хантерс-Пойнт
Библиотека района Хантерс-Пойнт
Фото © Steven Holl Architects
Библиотека района Хантерс-Пойнт
Библиотека района Хантерс-Пойнт
Фото © Paul Warchol
Библиотека района Хантерс-Пойнт
Библиотека района Хантерс-Пойнт
Фото © Paul Warchol
Библиотека района Хантерс-Пойнт
Библиотека района Хантерс-Пойнт
Фото © Paul Warchol
Библиотека района Хантерс-Пойнт
Библиотека района Хантерс-Пойнт
Фото © Paul Warchol
Библиотека района Хантерс-Пойнт
Библиотека района Хантерс-Пойнт
Фото © Steven Holl Architects
Библиотека района Хантерс-Пойнт © Steven Holl Architects
Библиотека района Хантерс-Пойнт
© Steven Holl Architects
Библиотека района Хантерс-Пойнт © Steven Holl Architects
Библиотека района Хантерс-Пойнт
© Steven Holl Architects
Библиотека района Хантерс-Пойнт © Steven Holl Architects
Библиотека района Хантерс-Пойнт
© Steven Holl Architects
Библиотека района Хантерс-Пойнт © Steven Holl Architects
Библиотека района Хантерс-Пойнт
© Steven Holl Architects
Библиотека района Хантерс-Пойнт © Steven Holl Architects
Библиотека района Хантерс-Пойнт
© Steven Holl Architects
Библиотека района Хантерс-Пойнт
Библиотека района Хантерс-Пойнт
© Steven Holl Architects
Библиотека района Хантерс-Пойнт
Библиотека района Хантерс-Пойнт
© Steven Holl Architects
Библиотека района Хантерс-Пойнт
Библиотека района Хантерс-Пойнт
© Steven Holl Architects
Библиотека района Хантерс-Пойнт
Библиотека района Хантерс-Пойнт
© Steven Holl Architects
Библиотека района Хантерс-Пойнт
Библиотека района Хантерс-Пойнт
© Steven Holl Architects
Библиотека района Хантерс-Пойнт
Библиотека района Хантерс-Пойнт
© Steven Holl Architects
Библиотека района Хантерс-Пойнт
Библиотека района Хантерс-Пойнт
© Steven Holl Architects
Библиотека района Хантерс-Пойнт
Библиотека района Хантерс-Пойнт
© Steven Holl Architects
Библиотека района Хантерс-Пойнт
Библиотека района Хантерс-Пойнт
© Steven Holl Architects