Размещено на портале Архи.ру (www.archi.ru)

25.11.2019

Городской ландшафт: глядя из ванны

Нина Фролова
Объект:
Технологический центр Comcast
Адрес:
США, None, Филадельфия. 1800 Arch Street
Мастерская:
Foster + Partners

Небоскреб Технологического центра Comcast по проекту Foster + Partners завершается гостиницей с панорамными видами Филадельфии из каждого номера, включая ванную.

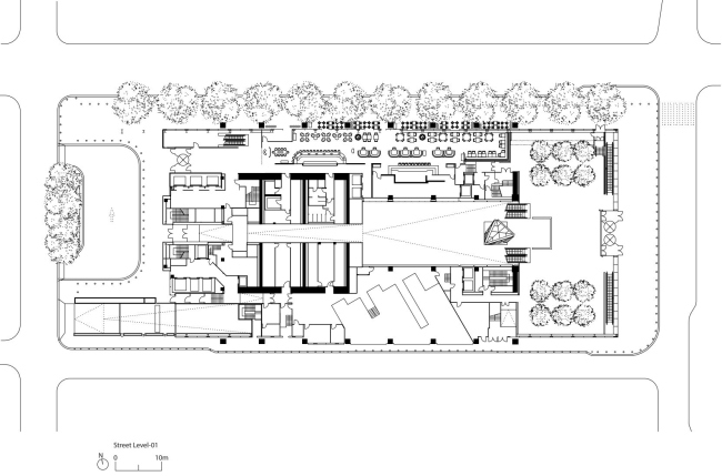
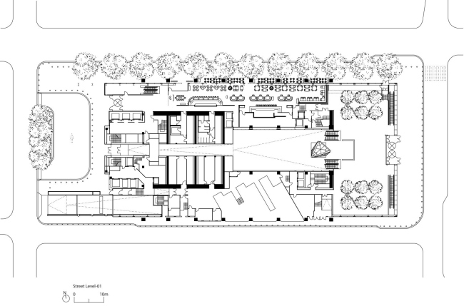
Технологический центр Comcast – 60-этажное здание в центре Филадельфии, построенное по заказу «медиаконгломерата» Comcast, в который входят не только телеканалы и крупнейший Интернет-провайдер США, но и киностудия Universal Pictures. Небоскреб расположен рядом с «Comcast-центром», высотной штаб-квартирой компании, и связан с ней подземным переходом. Стоит отметить, что Технологический центр Comcast бюро Фостера потеснил это здание Роберта Стерна с позиции самого высокого в Филадельфии. При 341,7 метрах Технологический центр – самая высокая башня не только там, но и во всех США, если не считать Нью-Йорк и Чикаго. А если учитывать эти города небоскребов, то он займет вполне достойное 9-е место в стране.
 

Технологический центр Comcast
Технологический центр Comcast
Фото © Nigel Young / Foster + Partners
Технологический центр Comcast
Технологический центр Comcast
Фото © Jeffrey Totaro
Технологический центр Comcast
Технологический центр Comcast
Фото © Nigel Young / Foster + Partners

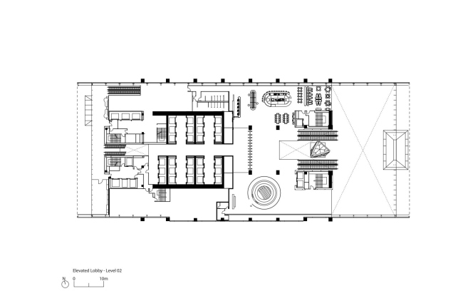
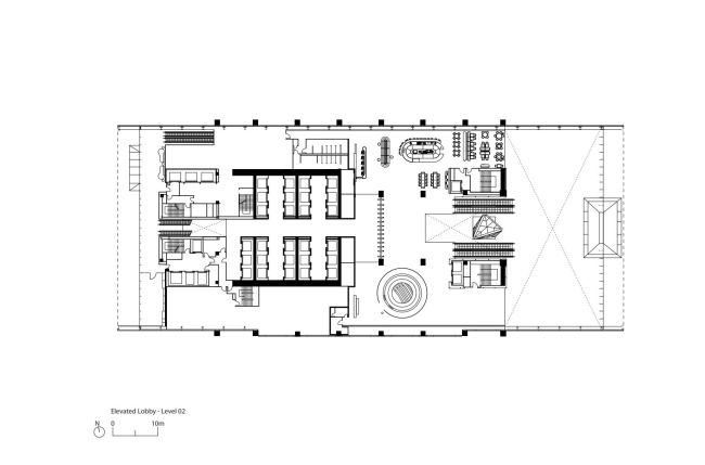
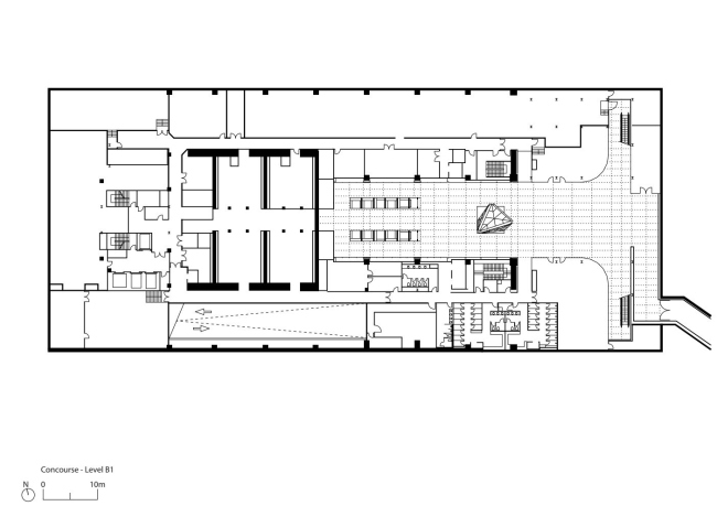
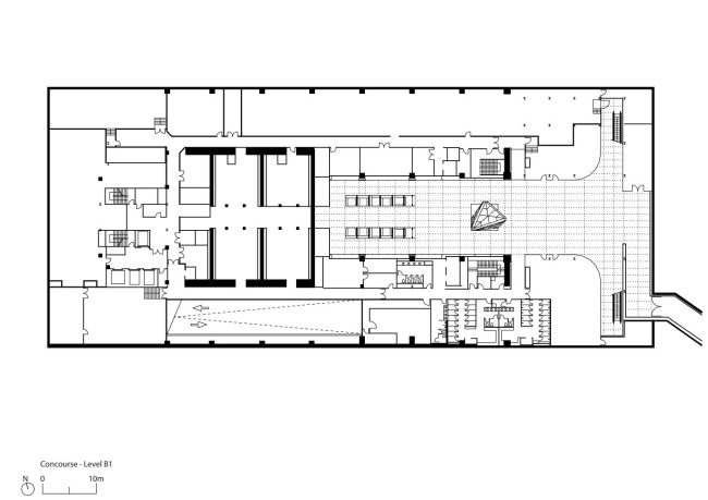
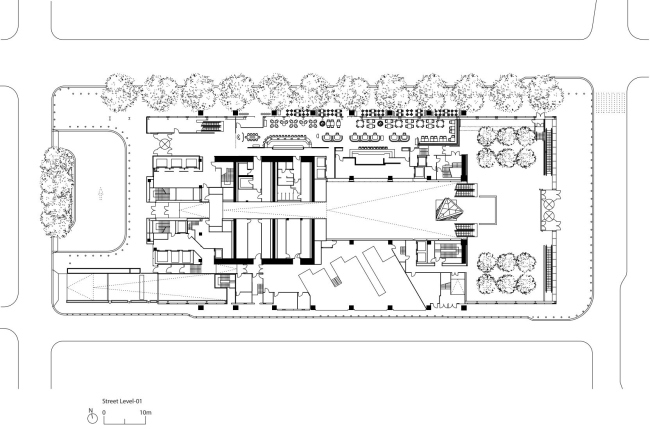
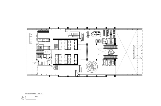
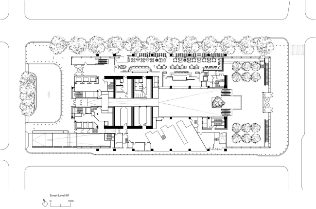
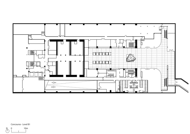
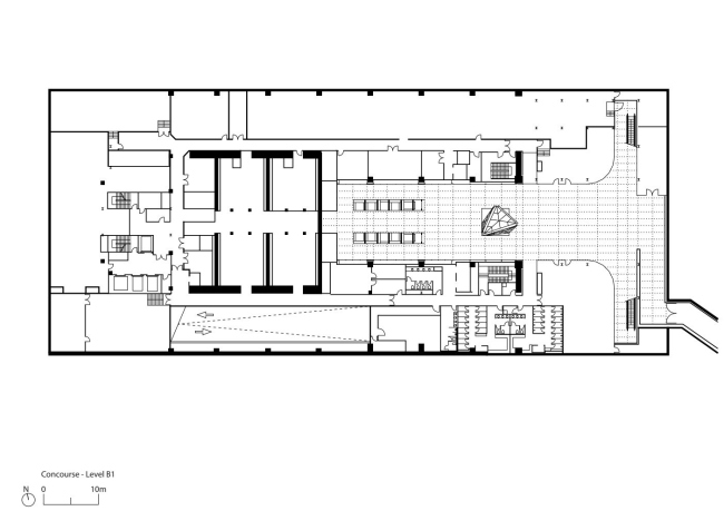
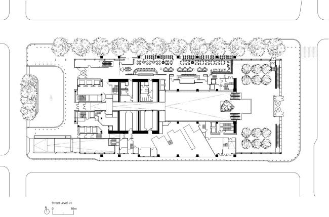
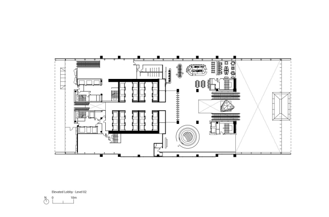
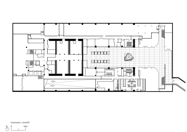
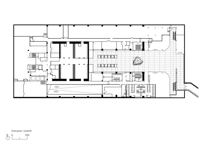
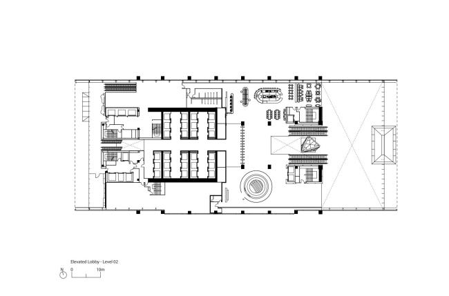
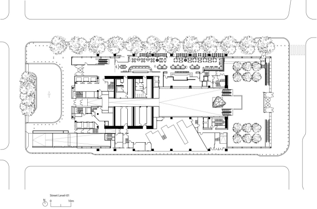
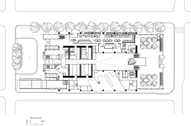
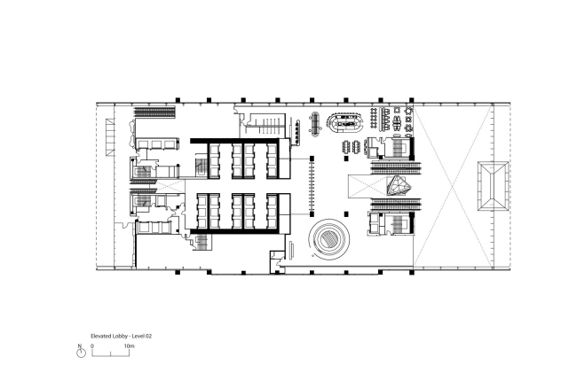
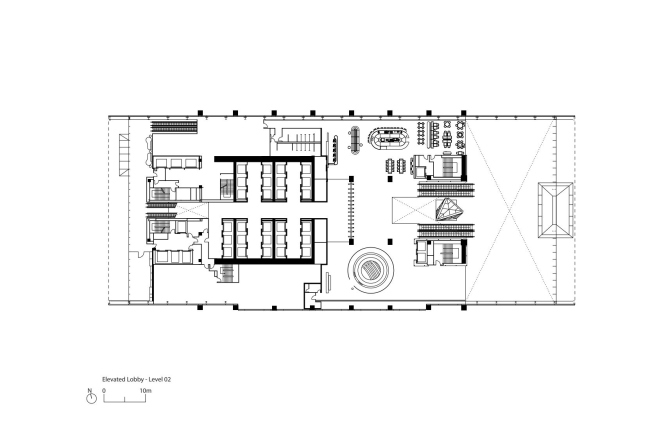
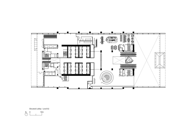
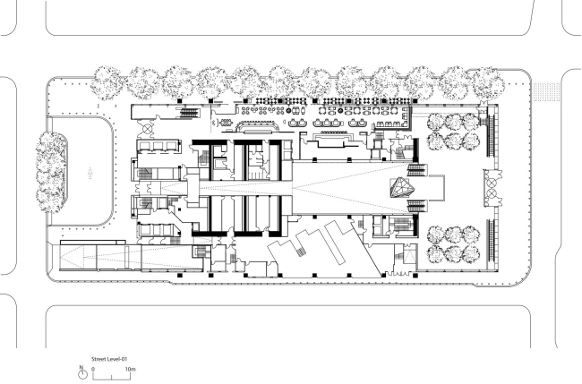
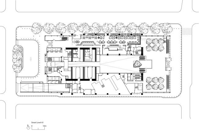
Проект учитывает свое городское окружение: вестибюль просторен, наполнен произведениями искусства, включая инсталляцию Дженни Хольцер и сферический кинотеатр Стивена Спилберга (о нем мы писали здесь), зимним садом, рестораном популярного шеф-повара. Упомянутый подземный переход с магазинами, зонами для отдыха и арт-объектами связывает не только два здания компании Comcast, но и Технологический центр – со станцией метро. Архитекторы сообщают, что 80% сотрудников Comcast прибывают на работу именно таким экологичным способом. В подземном гараже всего 58 машиномест, и еще шесть – для грузовиков съемочных групп филадельфийских каналов NBC10 и Telemundo62, студии которых расположены в башне. Для велосипедов предусмотрено 179 мест.
 
Технологический центр Comcast
Технологический центр Comcast
Фото © Nigel Young / Foster + Partners
Технологический центр Comcast
Технологический центр Comcast
Фото © Nigel Young / Foster + Partners
Технологический центр Comcast
Технологический центр Comcast
Фото © Nigel Young / Foster + Partners

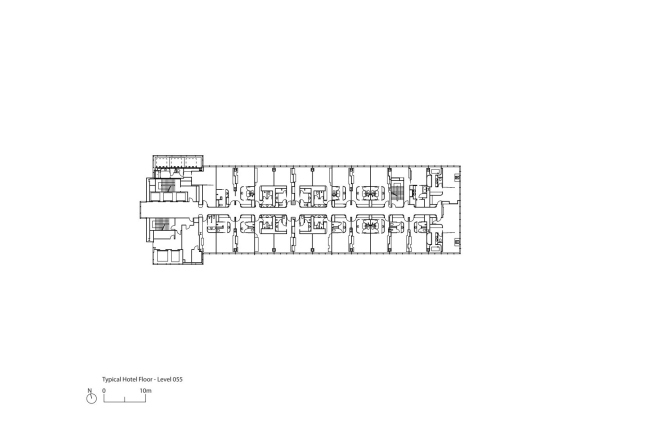
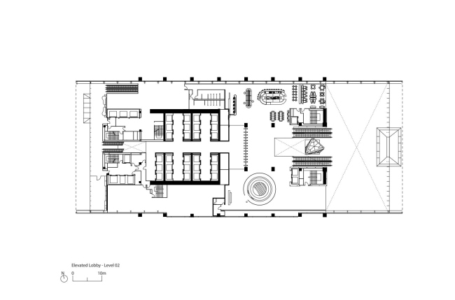
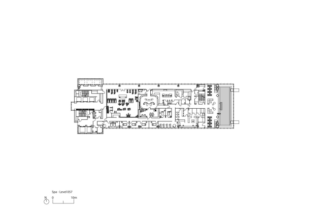
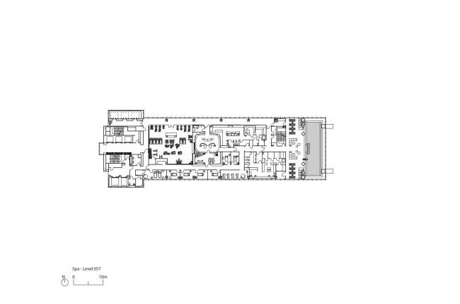
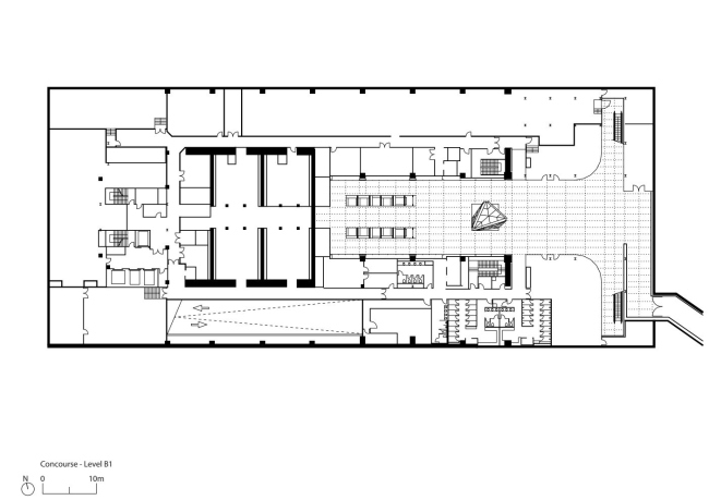
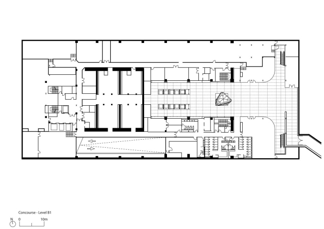
Типовые офисные этажи, напоминающие лофты Кремниевой долины, наполнены солнечным светом, а от перегрева их защищает автоматическая система жалюзи. Площадь каждого – 3253 м2, или 12 теннисных кортов. Всего офисы рассчитаны на 4000 сотрудников, причем за каждым столом можно работать как сидя, так и стоя. В башне устроены 13 «небесных» зимних садов, охватывающих по три этажа каждый. Для сотрудников предусмотрены кафе, рестораны, спортзал.
 
Технологический центр Comcast
Технологический центр Comcast
Фото © Nigel Young / Foster + Partners
Технологический центр Comcast
Технологический центр Comcast
Фото © Nigel Young / Foster + Partners
Технологический центр Comcast
Технологический центр Comcast
Фото © Nigel Young / Foster + Partners

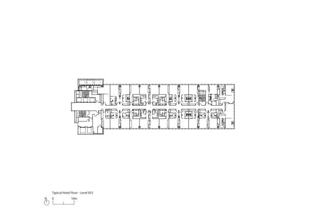
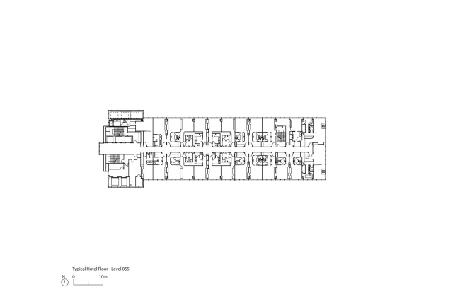
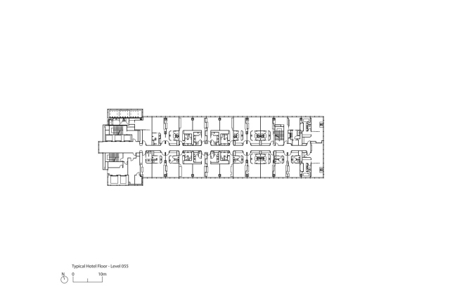
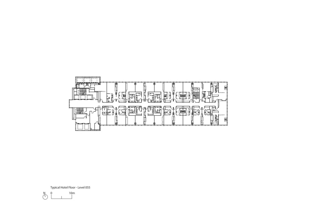
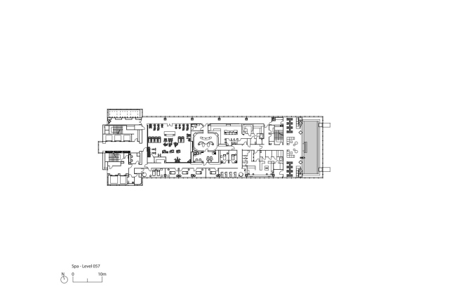
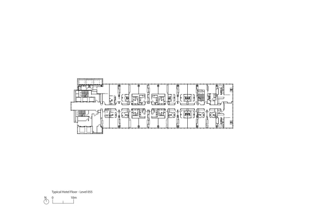
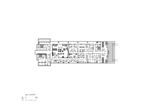
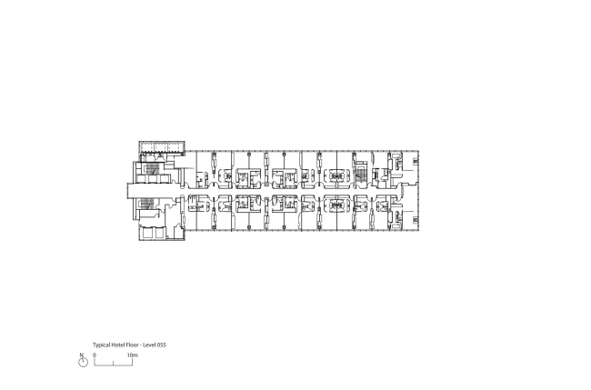
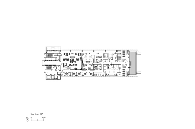
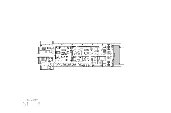
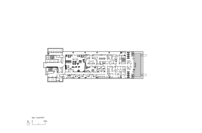
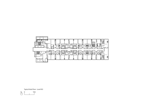
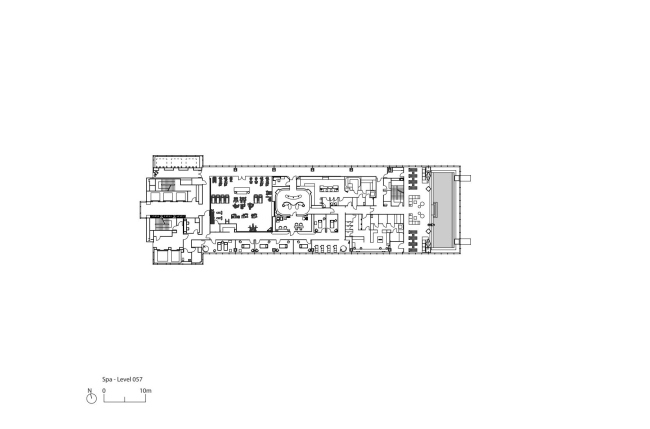
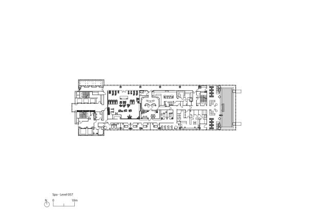
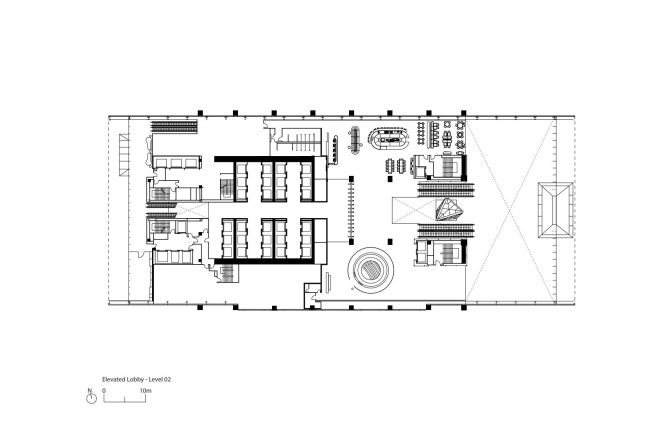
Стойка администратора отеля Four Seasons находится на верхнем, 60-м этаже, откуда постояльцы спускаются в панорамный бар Sky High и ресторан. Ниже помещены номера: каждый получил панорамное остекление от пола до потолка, включая ванные комнаты, медиа-арт от Брайана Ино и комнаты-гардеробные. Мебель в общественных зонах отеля и в номерах спроектирована Foster + Partners.
Технологический центр Comcast
Технологический центр Comcast
Фото © Nigel Young / Foster + Partners
Технологический центр Comcast
Технологический центр Comcast
Фото © Nigel Young / Foster + Partners
Технологический центр Comcast
Технологический центр Comcast
Фото © Nigel Young / Foster + Partners
Технологический центр Comcast
Технологический центр Comcast
Фото © Nigel Young / Foster + Partners
Технологический центр Comcast
Технологический центр Comcast
Фото © Nigel Young / Foster + Partners
Технологический центр Comcast
Технологический центр Comcast
Фото © Nigel Young / Foster + Partners
Технологический центр Comcast
Технологический центр Comcast
Фото © Nigel Young / Foster + Partners
Технологический центр Comcast
Технологический центр Comcast
Фото © christian horan photography
Технологический центр Comcast
Технологический центр Comcast
Фото © christian horan photography
Технологический центр Comcast
Технологический центр Comcast
Фото © Nigel Young / Foster + Partners
Технологический центр Comcast
Технологический центр Comcast
Фото © Nigel Young / Foster + Partners
Технологический центр Comcast
Технологический центр Comcast
Фото © Nigel Young / Foster + Partners
Технологический центр Comcast
Технологический центр Comcast
Фото © Nigel Young / Foster + Partners
Технологический центр Comcast
Технологический центр Comcast
Фото © Joseph Kaczmarek
Технологический центр Comcast
Технологический центр Comcast
Фото © Jeffrey Totaro
Технологический центр Comcast
Технологический центр Comcast
Фото © Nigel Young / Foster + Partners
Технологический центр Comcast
Технологический центр Comcast
Фото © Nigel Young / Foster + Partners
Технологический центр Comcast
Технологический центр Comcast
Фото © Nigel Young / Foster + Partners
Технологический центр Comcast
Технологический центр Comcast
Фото © Nigel Young / Foster + Partners
Технологический центр Comcast
Технологический центр Comcast
Фото © Nigel Young / Foster + Partners
Four Seasons Hotel Philadelphia в Технологическом центре Comcast
Four Seasons Hotel Philadelphia в Технологическом центре Comcast
Фото © christian horan photography
Four Seasons Hotel Philadelphia в Технологическом центре Comcast
Four Seasons Hotel Philadelphia в Технологическом центре Comcast
Фото © christian horan photography
Four Seasons Hotel Philadelphia в Технологическом центре Comcast
Four Seasons Hotel Philadelphia в Технологическом центре Comcast
Фото © christian horan photography
Four Seasons Hotel Philadelphia в Технологическом центре Comcast
Four Seasons Hotel Philadelphia в Технологическом центре Comcast
Фото © christian horan photography
Four Seasons Hotel Philadelphia в Технологическом центре Comcast
Four Seasons Hotel Philadelphia в Технологическом центре Comcast
Фото © christian horan photography
Four Seasons Hotel Philadelphia в Технологическом центре Comcast
Four Seasons Hotel Philadelphia в Технологическом центре Comcast
Фото © christian horan photography
Four Seasons Hotel Philadelphia в Технологическом центре Comcast
Four Seasons Hotel Philadelphia в Технологическом центре Comcast
Фото © christian horan photography
Four Seasons Hotel Philadelphia в Технологическом центре Comcast
Four Seasons Hotel Philadelphia в Технологическом центре Comcast
Фото © christian horan photography
Four Seasons Hotel Philadelphia в Технологическом центре Comcast
Four Seasons Hotel Philadelphia в Технологическом центре Comcast
Фото © christian horan photography
Four Seasons Hotel Philadelphia в Технологическом центре Comcast
Four Seasons Hotel Philadelphia в Технологическом центре Comcast
Фото © christian horan photography
Four Seasons Hotel Philadelphia в Технологическом центре Comcast
Four Seasons Hotel Philadelphia в Технологическом центре Comcast
Фото © christian horan photography
Технологический центр Comcast
Технологический центр Comcast
© Foster + Partners
Технологический центр Comcast
Технологический центр Comcast
© Foster + Partners
Технологический центр Comcast
Технологический центр Comcast
© Foster + Partners
Технологический центр Comcast
Технологический центр Comcast
© Foster + Partners
Технологический центр Comcast
Технологический центр Comcast
© Foster + Partners
Технологический центр Comcast
Технологический центр Comcast
© Foster + Partners
Технологический центр Comcast
Технологический центр Comcast
© Foster + Partners
Технологический центр Comcast
Технологический центр Comcast
© Foster + Partners
Технологический центр Comcast
Технологический центр Comcast
© Foster + Partners
Технологический центр Comcast
Технологический центр Comcast
© Foster + Partners
Технологический центр Comcast
Технологический центр Comcast
© Foster + Partners