Размещено на портале Архи.ру (www.archi.ru)

18.10.2019

Между городом и вузом

Нина Фролова
Объект:
Спортивный комплекс с актовым залом Придхем-холл
Адрес:
Австралия, None, Аделаида.
Мастерская:
Snøhetta

В Аделаиде на юге Австралии появилась первая постройка Snøhetta на этом континенте: университетский спорткомплекс с актовым залом и открытыми лестницами-трибунами.

Корпус Придхем-холл в Аделаиде, на границе кампуса Сити-Уэст университета Южной Австралии и городских кварталов, служит связующим звеном между ними. Местным жителям доступны и внешние части здания, и его помещения, чтобы избежать ощущения отчуждения. Ведь оно часто характерно для комплексов крупных учреждений, включая вузы, как будто разрывающих ткань города.
 

Спортивный комплекс с актовым залом Придхем-холл
Спортивный комплекс с актовым залом Придхем-холл
Фото © Mark Syke
Спортивный комплекс с актовым залом Придхем-холл
Спортивный комплекс с актовым залом Придхем-холл
Фото © Mark Syke
Спортивный комплекс с актовым залом Придхем-холл
Спортивный комплекс с актовым залом Придхем-холл
Фото © Mark Syke

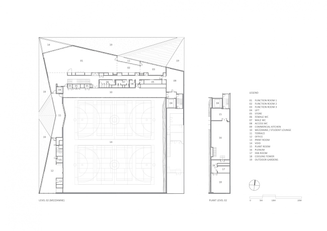
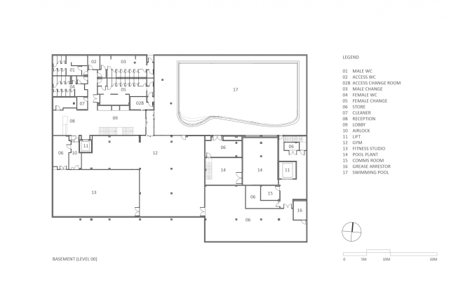
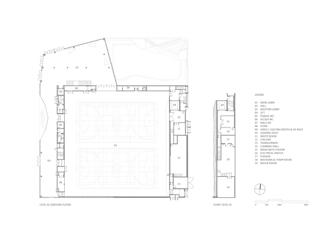
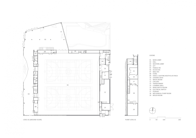
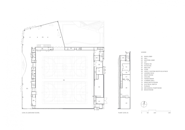
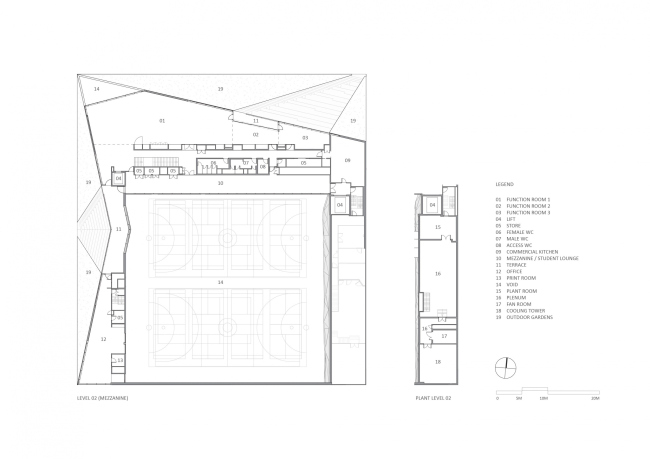
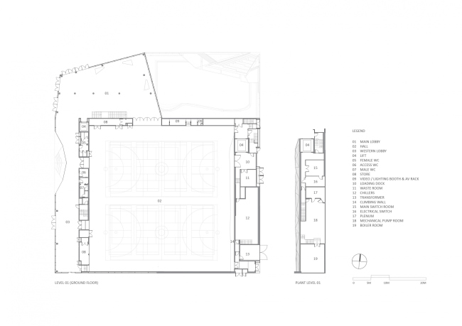
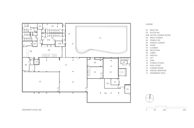
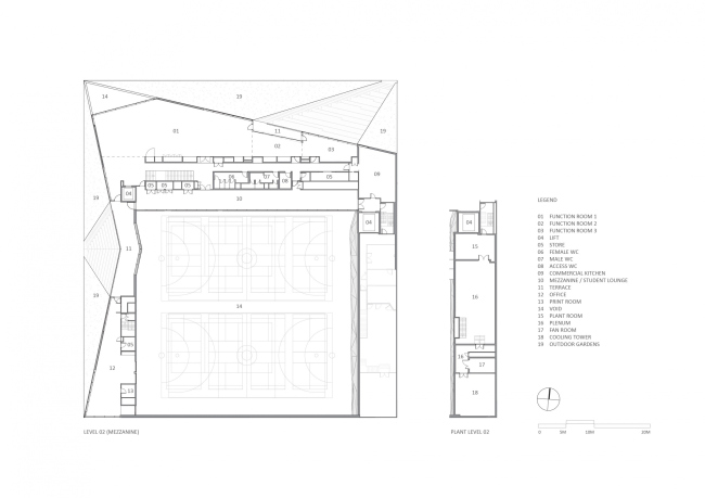
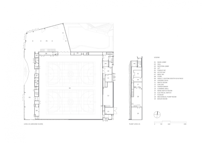
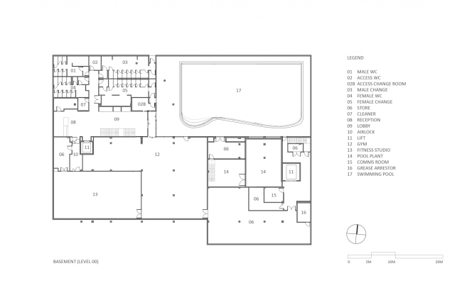
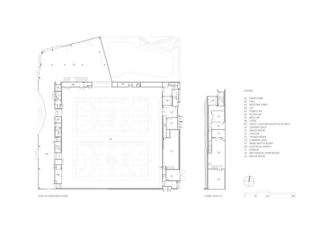
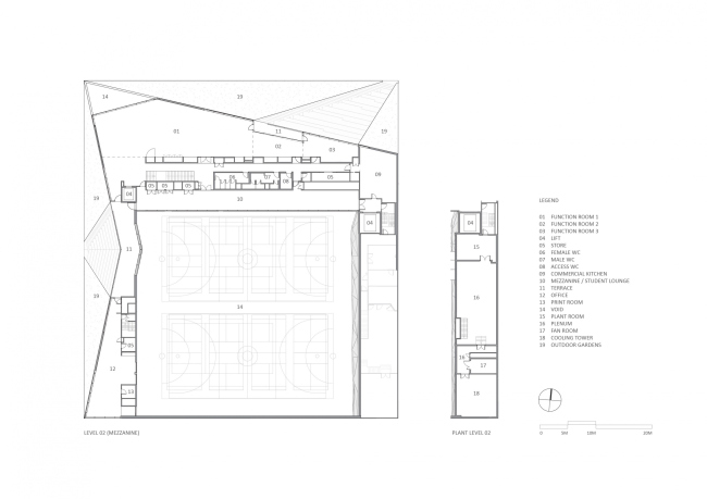
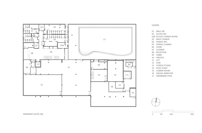
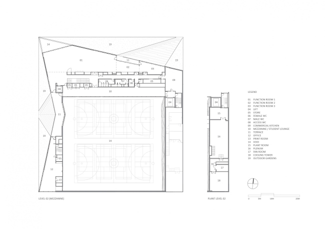
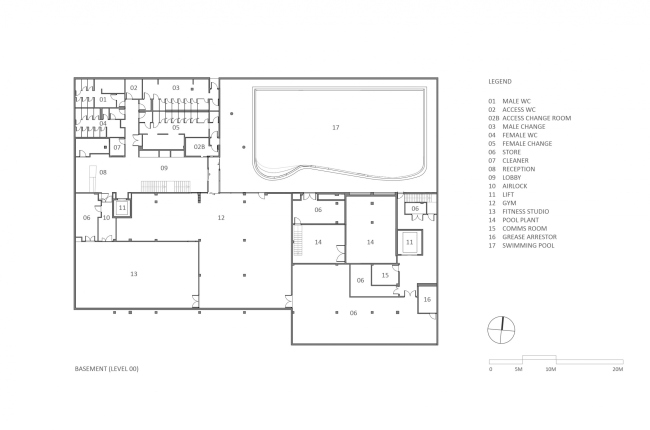
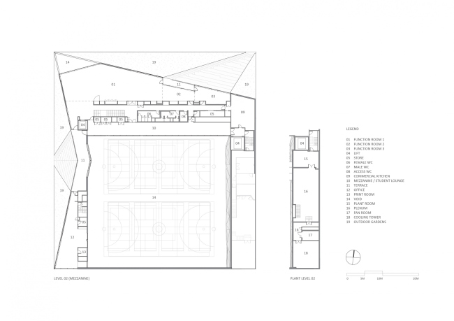
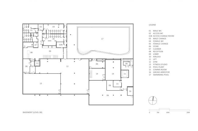
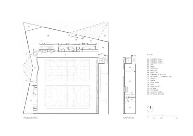
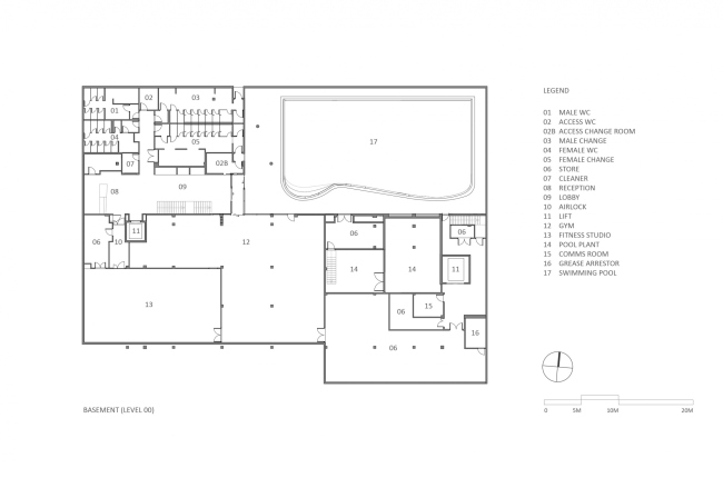
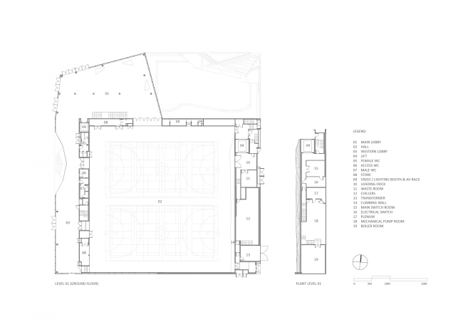
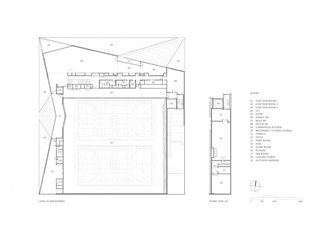
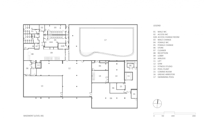
Придхем-холл на первом этаже вмещает главный зал: он может использоваться для занятий спортом, но также и для разнообразных мероприятий и церемоний. При площади в 1600 м2 этот актовый зал может вместить до 2000 зрителей. На цокольном уровне помещены 25-метровый бассейн, спортзал и танцевальная студия. Отдельного упоминания заслуживают вестибюли. Главный вход выделен «козырьком» приподнятой в этом месте кровли.

 
Спортивный комплекс с актовым залом Придхем-холл Фото © Mark Syke
Спортивный комплекс с актовым залом Придхем-холл
Фото © Mark Syke
Спортивный комплекс с актовым залом Придхем-холл Фото © Mark Syke
Спортивный комплекс с актовым залом Придхем-холл
Фото © Mark Syke
Спортивный комплекс с актовым залом Придхем-холл Фото © Mark Syke
Спортивный комплекс с актовым залом Придхем-холл
Фото © Mark Syke
Спортивный комплекс с актовым залом Придхем-холл Фото © Mark Syke
Спортивный комплекс с актовым залом Придхем-холл
Фото © Mark Syke
Спортивный комплекс с актовым залом Придхем-холл
Спортивный комплекс с актовым залом Придхем-холл
Фото © Mark Syke
Спортивный комплекс с актовым залом Придхем-холл
Спортивный комплекс с актовым залом Придхем-холл
Фото © Mark Syke

Чтобы подчеркнуть открытость постройки городу, архитекторы Snøhetta снабдили его снаружи двумя лестницами-трибунами в окружении озелененных «склонов», где высажены характерные для Южной Австралии растения. Западная лестница, кроме отдыха и общения, может использоваться как настоящие зрительские места во время кинопоказов, концертов и любых других событий. Ее предлагается в таком случае использовать «в комплекте» с прилегающими зданиями.
Спортивный комплекс с актовым залом Придхем-холл
Спортивный комплекс с актовым залом Придхем-холл
Фото © Mark Syke
Спортивный комплекс с актовым залом Придхем-холл
Спортивный комплекс с актовым залом Придхем-холл
Фото © Mark Syke
Спортивный комплекс с актовым залом Придхем-холл
Спортивный комплекс с актовым залом Придхем-холл
Фото © Mark Syke
Спортивный комплекс с актовым залом Придхем-холл
Спортивный комплекс с актовым залом Придхем-холл
© Snøhetta
Спортивный комплекс с актовым залом Придхем-холл
Спортивный комплекс с актовым залом Придхем-холл
© Snøhetta
Спортивный комплекс с актовым залом Придхем-холл
Спортивный комплекс с актовым залом Придхем-холл
© Snøhetta
Спортивный комплекс с актовым залом Придхем-холл
Спортивный комплекс с актовым залом Придхем-холл
© Snøhetta
Спортивный комплекс с актовым залом Придхем-холл
Спортивный комплекс с актовым залом Придхем-холл
© Snøhetta
Спортивный комплекс с актовым залом Придхем-холл
Спортивный комплекс с актовым залом Придхем-холл
© Snøhetta