Размещено на портале Архи.ру (www.archi.ru)

11.10.2019

И вновь о прожиточном минимуме

Нина Фролова
Объект:
Комплекс доступного жилья для компании ABG
Адрес:
Германия, None, Франкфурт-на-Майне.
Мастерская:
schneider+schumacher

«Экономичное», но качественное жилье во Франкфурте-на-Майне по образцовому проекту schneider+schumacher рассчитано на арендную плату на треть ниже среднерыночной ставки в этом городе.

Архитекторы schneider+schumacher и девелопер ABG Frankfurt Holding решили исследовать проблему дефицита жилья в крупных городах, сочетающуюся с высокой арендной платой. Решением может стать стандартизация – методов строительства и рабочего процесса, а также оптимизация выбора материалов с точки зрения соотношения цены и результата.
 

Комплекс доступного жилья для компании ABG
Комплекс доступного жилья для компании ABG
Фото © Kirsten Bucher

Получившийся в итоге образцовый проект соответствует высоким стандартам качества и энергоэффективности, собственно архитектура тоже не забыта, но при этом жильцам такого дома придется платить не больше 10 евро/м2 арендной платы – без учета коммунальных услуг. Конечно, это компактный вариант жилища, но вполне просторные и удобные квартиры – своего рода наследники «Нового Франкфурта» Эрнста Мая и Фердинанда Крамера, как считают авторы. 10 евро за квадратный метр – это не только на треть ниже средней ставки в городе, но и на 20% ниже платы в домах компании ABG, которая в принципе специализируется на недорогом жилье.
 
Комплекс доступного жилья для компании ABG © schneider+schumacher
Комплекс доступного жилья для компании ABG
© schneider+schumacher
Комплекс доступного жилья для компании ABG © schneider+schumacher
Комплекс доступного жилья для компании ABG
© schneider+schumacher
Комплекс доступного жилья для компании ABG © schneider+schumacher
Комплекс доступного жилья для компании ABG
© schneider+schumacher
Комплекс доступного жилья для компании ABG © schneider+schumacher
Комплекс доступного жилья для компании ABG
© schneider+schumacher
Комплекс доступного жилья для компании ABG Фото © Norbert Miguletz
Комплекс доступного жилья для компании ABG
Фото © Norbert Miguletz

Главная идея – уменьшить объем, который надо возвести, а потом и отопить. Поэтому лестницы (а в случае безбарьерных вариантов – и лифты) вынесены наружу и связаны с балконами. Такой ход сокращает вместе с отапливаемым пространством и коммунальные платежи. Коридоры по той же причине сведены к минимуму, что также требует компактного плана. Отказались и от подвального уровня, кладовки помещены в квартиры.
 
Комплекс доступного жилья для компании ABG
Комплекс доступного жилья для компании ABG
Фото © Kirsten Bucher

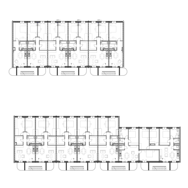
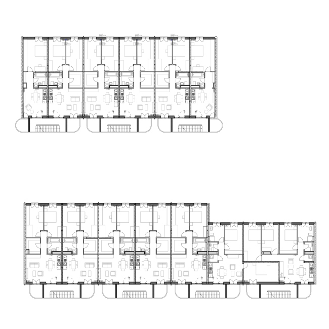
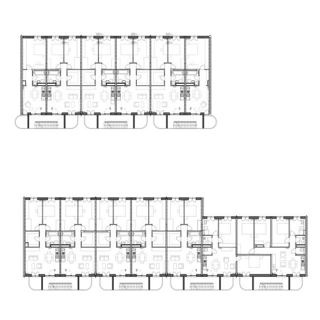
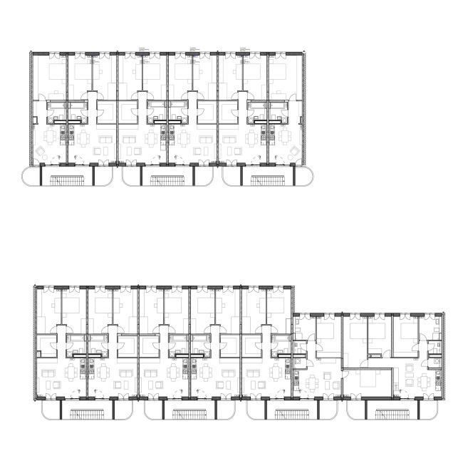
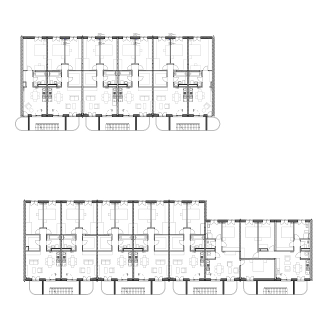
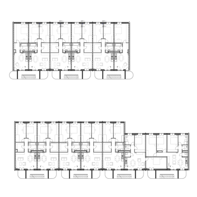
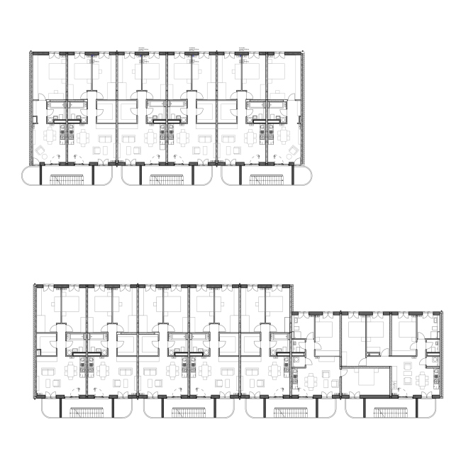
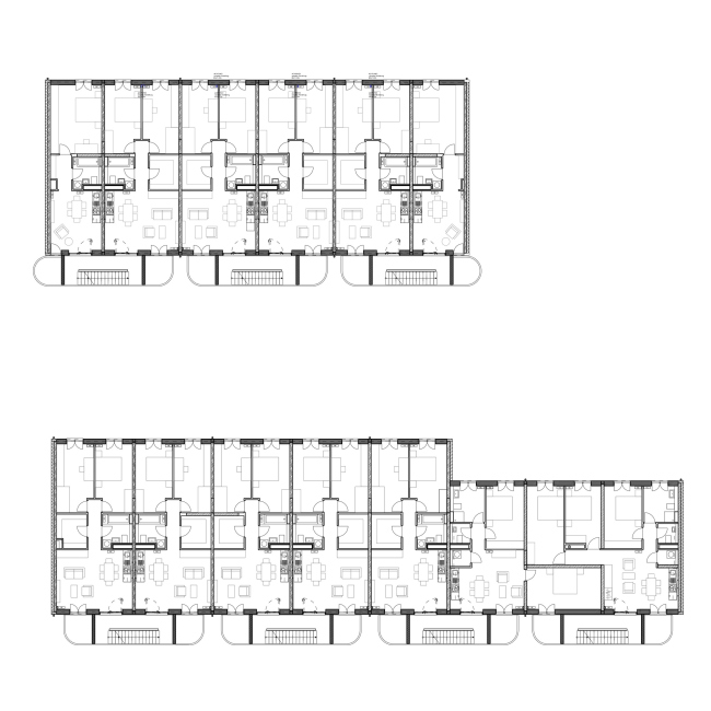
Модуль состоит из двух квартир с зеркальным планом, выходящих на общую лестничную площадку. При желании их можно соединять в одну, получая жилище с четырьмя спальнями вместо двух (или же трехкомнатную и однокомнатную). Благодаря «зеркальности» все санузлы и кухонные зоны сгруппированы в центре: это дает экономию при подводе коммуникаций. Такие модули можно соединять друг с другом как по вертикали, так и по горизонтали. Поперечно-стеновая система из «полусборных» деталей, а также возможность производить на заводе стандартные окна, лестницы и т.д. упрощают строительство и сокращают затраты.
 
Комплекс доступного жилья для компании ABG Фото © Kirsten Bucher
Комплекс доступного жилья для компании ABG
Фото © Kirsten Bucher
Комплекс доступного жилья для компании ABG Фото © Kirsten Bucher
Комплекс доступного жилья для компании ABG
Фото © Kirsten Bucher
Комплекс доступного жилья для компании ABG Фото © Kirsten Bucher
Комплекс доступного жилья для компании ABG
Фото © Kirsten Bucher
Комплекс доступного жилья для компании ABG Фото © Kirsten Bucher
Комплекс доступного жилья для компании ABG
Фото © Kirsten Bucher
Комплекс доступного жилья для компании ABG Фото © Kirsten Bucher
Комплекс доступного жилья для компании ABG
Фото © Kirsten Bucher

Проект рассчитан на тиражирование, но предусмотрено его согласование с контекстом: можно менять силуэт кровли или глубину постройки. Вариативность связана в основном с необходимостью максимально эффективно использовать конкретный участок. В качестве материала архитекторы предлагают экологичный и долговечный вариант – пустотелый кирпич с изоляционным наполнением, что дает возможность сэкономить на слое изоляции.
 
Комплекс доступного жилья для компании ABG
Комплекс доступного жилья для компании ABG
© schneider+schumacher

Построенный во франкфуртском районе Оберрад комплекс состоит из двух корпусов в общей сложности на 46 квартир. У домов двускатная кровля, 3–4 полноценных этажа, подземный гараж на 20 машиномест. В квартирах площадью от 46 до 89 м2 – две, три или четыре спальни, общая площадь комплекса – 5000 м2.
 
Комплекс доступного жилья для компании ABG
Комплекс доступного жилья для компании ABG
© schneider+schumacher

Проект соответствует эко-стандарту KfW-Effizienzhaus 55: высокоэффективная система газового отопления, солнечные батареи на кровле, вентиляция с системой рекуперации тепла позволят жильцам сократить также и коммунальные расходы.
Комплекс доступного жилья для компании ABG
Комплекс доступного жилья для компании ABG
© schneider+schumacher
Комплекс доступного жилья для компании ABG
Комплекс доступного жилья для компании ABG
© schneider+schumacher
Комплекс доступного жилья для компании ABG
Комплекс доступного жилья для компании ABG
© schneider+schumacher
Комплекс доступного жилья для компании ABG
Комплекс доступного жилья для компании ABG
© schneider+schumacher
Комплекс доступного жилья для компании ABG
Комплекс доступного жилья для компании ABG
© schneider+schumacher
Комплекс доступного жилья для компании ABG
Комплекс доступного жилья для компании ABG
© schneider+schumacher