Размещено на портале Архи.ру (www.archi.ru)

08.10.2019

Современное искусство на дровяном рынке

Алина Измайлова
Объект:
Музей современного искусства в Одунапазары
Адрес:
Турция, None, Эскишехир.

В турецком городе Эскишехир открылся музей современного искусства по проекту бюро Кенго Кумы: для фасада и в интерьере широко использован сосновый брус.

В Эскишехире, университетском городе на северо-западе Турции с населением чуть больше 700 000 человек, появился собственный музей современного искусства. Руководитель строительной компании «Полимекс» Эрол Табанджа (Erol Tabanca) основал его для размещения своей коллекции, которую собирал на протяжении 15 лет. Здание площадью 4500 м2 создало бюро Kengo Kuma & Associates; партнером KKAA, который вел проект, была Юки Икэгути.

Музей современного искусства в Одунпазары (Odunpazari Modern Art Museum, OMM)
Музей современного искусства в Одунпазары (Odunpazari Modern Art Museum, OMM)
© NAARO

С самого начала предполагалось, что Музей современного искусства в Одунапазары (OMM) станет своего рода трамплином для молодых художников, площадкой, где их увидят и услышат. Одновременно стояла и другая задача – помочь городу восстановить связь с историческим наследием и подтвердить его статус «культурной столицы» Центральной Анатолии – региона, где находится Эскишехир.
Музей современного искусства в Одунпазары (Odunpazari Modern Art Museum, OMM)
Музей современного искусства в Одунпазары (Odunpazari Modern Art Museum, OMM)
© NAARO

Облик нового музея предопределила история места: участок расположен в районе Одунпазары (Odunpazarı), где некогда находился дровяной рынок, в окружении деревянных домов и узких кривых улочек. В этих традиционных постройках второй этаж немного нависает над первым, образуя консольный выступ. Кенго Кума повторил этот прием, но использовал сразу несколько прямоугольных объемов, развернув их под разными углами – получилось что-то вроде насыпи. Размер блоков при этом неодинаков: в основании располагаются «коробки» большей площади, на верхних этажах – меньшей.
Музей современного искусства в Одунпазары (Odunpazari Modern Art Museum, OMM)
Музей современного искусства в Одунпазары (Odunpazari Modern Art Museum, OMM)
© NAARO

Центральным элементом сооружения стал атриум, сложенный из соснового бруса. Он проходит через все три этажа и дает интерьеру дополнительное освещение. Похожий мотив повторяется в экстерьере: внешнюю оболочку формирует «обрешетка» из того же соснового бруса.
Музей современного искусства в Одунпазары (Odunpazari Modern Art Museum, OMM) © Batuhan Keskiner
Музей современного искусства в Одунпазары (Odunpazari Modern Art Museum, OMM)
© Batuhan Keskiner
Музей современного искусства в Одунпазары (Odunpazari Modern Art Museum, OMM) © NAARO
Музей современного искусства в Одунпазары (Odunpazari Modern Art Museum, OMM)
© NAARO
Музей современного искусства в Одунпазары (Odunpazari Modern Art Museum, OMM) © NAARO
Музей современного искусства в Одунпазары (Odunpazari Modern Art Museum, OMM)
© NAARO

Постоянная экспозиция музея включает в себя больше тысячи предметов современного искусства, созданных в период с 1950-х годов до наших дней. Основное внимание отдано, конечно, турецким художникам. На открытии были также представлены две иммерсивные инсталляции от британского коллектива Marshmallow Laser Feast, обе – на тему экологии и охраны природы. Кроме того, там выставлена работа японца Танабэ Тикуунсая IV – представителя известной династии «бамбуковых мастеров». Художник изготовил из бамбука ажурную скульптуру размером 6х8 метров – самую большую из всех, что он когда-либо делал.
Инсталляция Танабэ Тикуунсая IV, выставленная в OMM © Batuhan Keskiner
Инсталляция Танабэ Тикуунсая IV, выставленная в OMM
© Batuhan Keskiner
Инсталляция  Танабэ Тикуунсая IV, выставленная в OMM © Kemal Seçkin
Инсталляция Танабэ Тикуунсая IV, выставленная в OMM
© Kemal Seçkin
Инсталляция «В глазах животного» (In The Eyes of the Animal), работа Marshmallow Laser Feast Предоставлено Marshmallow Laser Feast
Инсталляция «В глазах животного» (In The Eyes of the Animal), работа Marshmallow Laser Feast
Предоставлено Marshmallow Laser Feast
Инсталляция «В глазах животного» (In The Eyes of the Animal), работа Marshmallow Laser Feast Предоставлено Marshmallow Laser Feast
Инсталляция «В глазах животного» (In The Eyes of the Animal), работа Marshmallow Laser Feast
Предоставлено Marshmallow Laser Feast
Инсталляция «Обнимающий дерево» (Treehugger), работа Marshmallow Laser Feast Предоставлено Marshmallow Laser Feast
Инсталляция «Обнимающий дерево» (Treehugger), работа Marshmallow Laser Feast
Предоставлено Marshmallow Laser Feast
Инсталляция «Обнимающий дерево» (Treehugger), работа Marshmallow Laser Feast Предоставлено Marshmallow Laser Feast
Инсталляция «Обнимающий дерево» (Treehugger), работа Marshmallow Laser Feast
Предоставлено Marshmallow Laser Feast
Музей современного искусства в Одунпазары (Odunpazari Modern Art Museum, OMM)
Музей современного искусства в Одунпазары (Odunpazari Modern Art Museum, OMM)
© Batuhan Keskiner
Музей современного искусства в Одунпазары (Odunpazari Modern Art Museum, OMM)
Музей современного искусства в Одунпазары (Odunpazari Modern Art Museum, OMM)
© NAARO
Музей современного искусства в Одунпазары (Odunpazari Modern Art Museum, OMM)
Музей современного искусства в Одунпазары (Odunpazari Modern Art Museum, OMM)
© NAARO
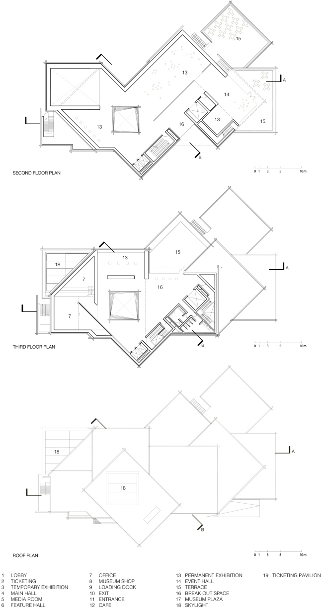
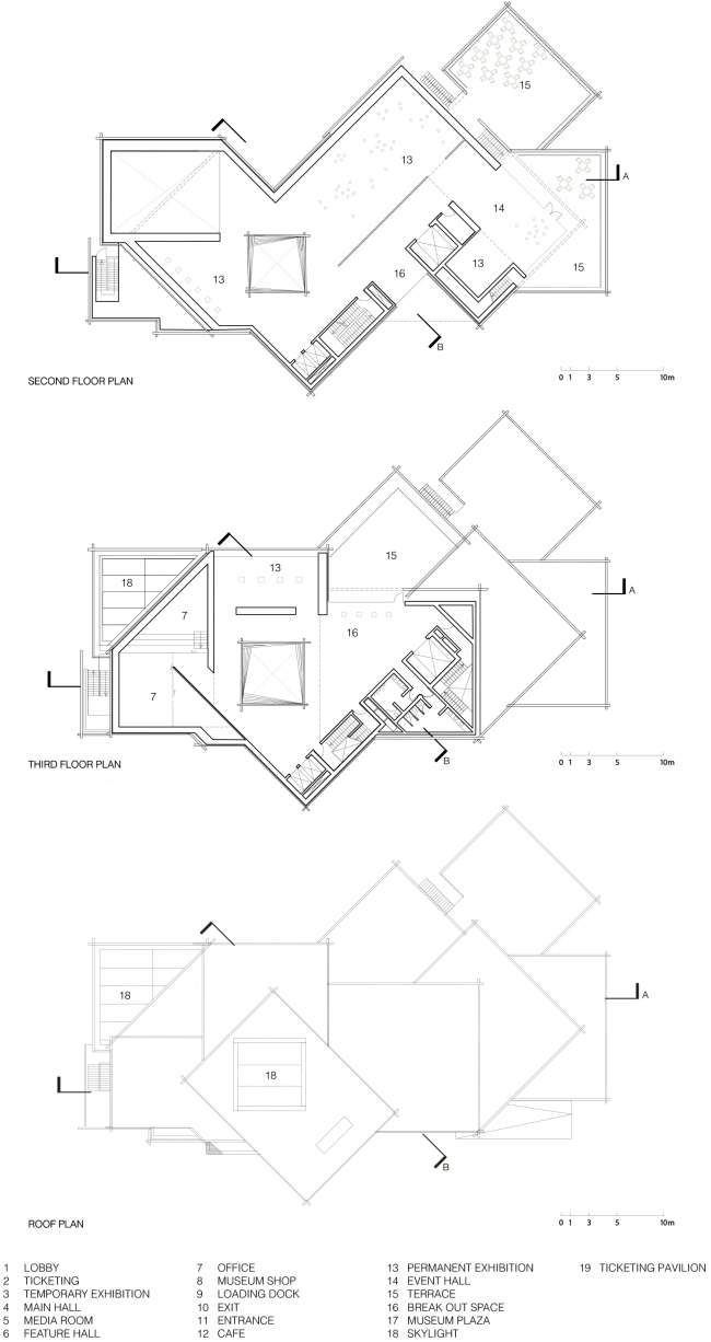
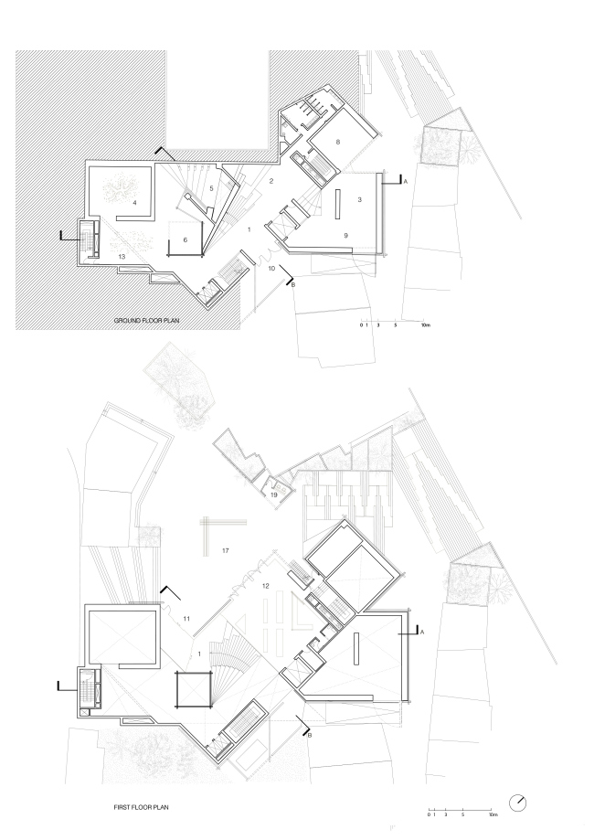
Музей современного искусства в Одунпазары (Odunpazari Modern Art Museum, OMM). План первого и второго этажей
Музей современного искусства в Одунпазары (Odunpazari Modern Art Museum, OMM). План первого и второго этажей
© Kengo Kuma and Associates
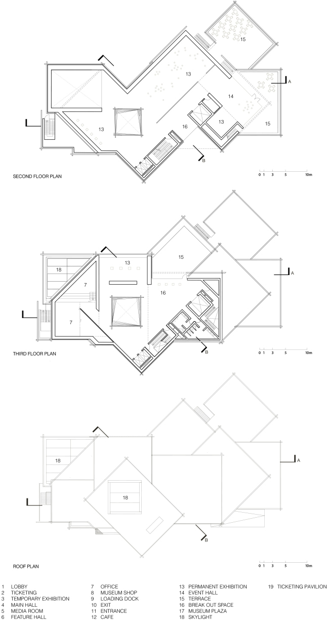
Музей современного искусства в Одунпазары (Odunpazari Modern Art Museum, OMM). План третьего, четвертого этажей и кровли
Музей современного искусства в Одунпазары (Odunpazari Modern Art Museum, OMM). План третьего, четвертого этажей и кровли
© Kengo Kuma and Associates
Музей современного искусства в Одунпазары (Odunpazari Modern Art Museum, OMM). План местности
Музей современного искусства в Одунпазары (Odunpazari Modern Art Museum, OMM). План местности
© Kengo Kuma and Associates
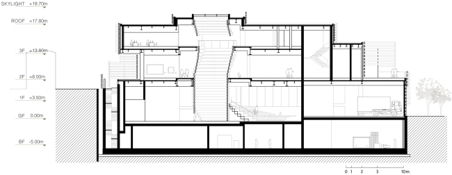
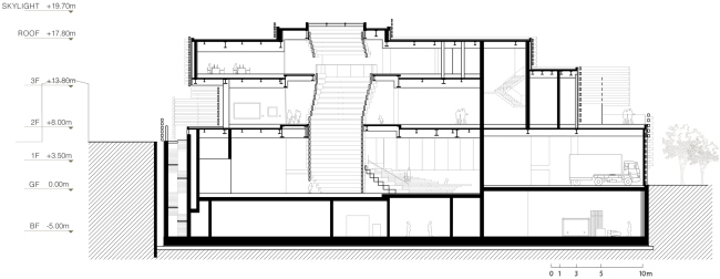
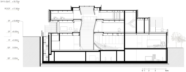
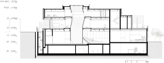
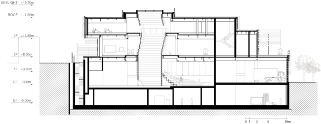
Музей современного искусства в Одунпазары (Odunpazari Modern Art Museum, OMM). Разрез A
Музей современного искусства в Одунпазары (Odunpazari Modern Art Museum, OMM). Разрез A
© Kengo Kuma and Associates
Музей современного искусства в Одунпазары (Odunpazari Modern Art Museum, OMM). Северный и западный фасады
Музей современного искусства в Одунпазары (Odunpazari Modern Art Museum, OMM). Северный и западный фасады
© Kengo Kuma and Associates
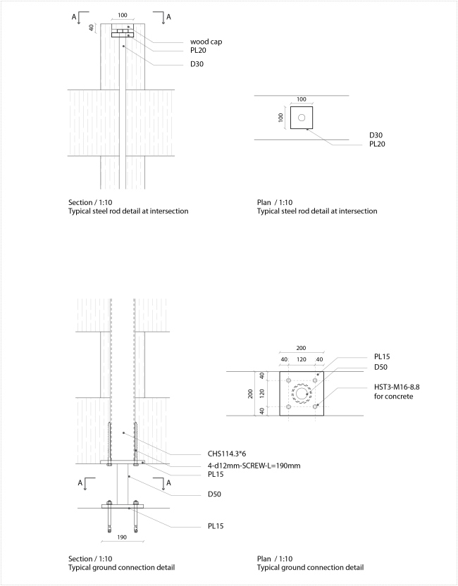
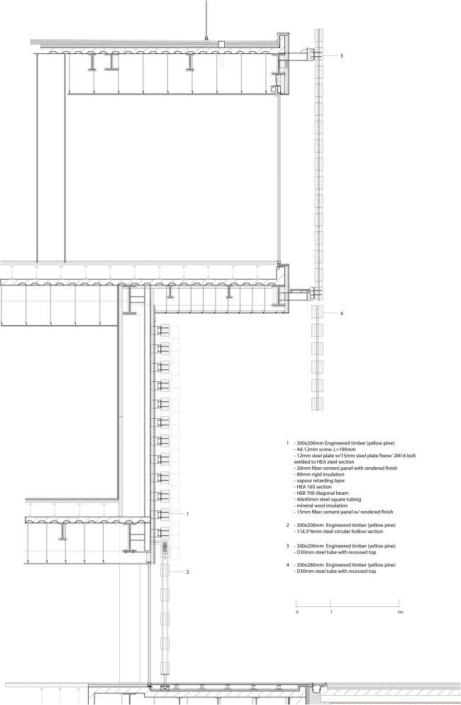
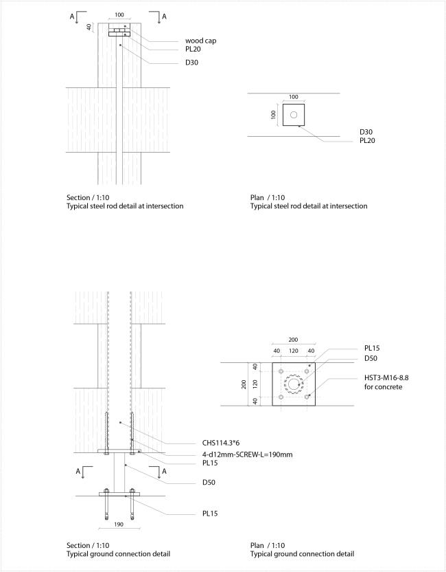
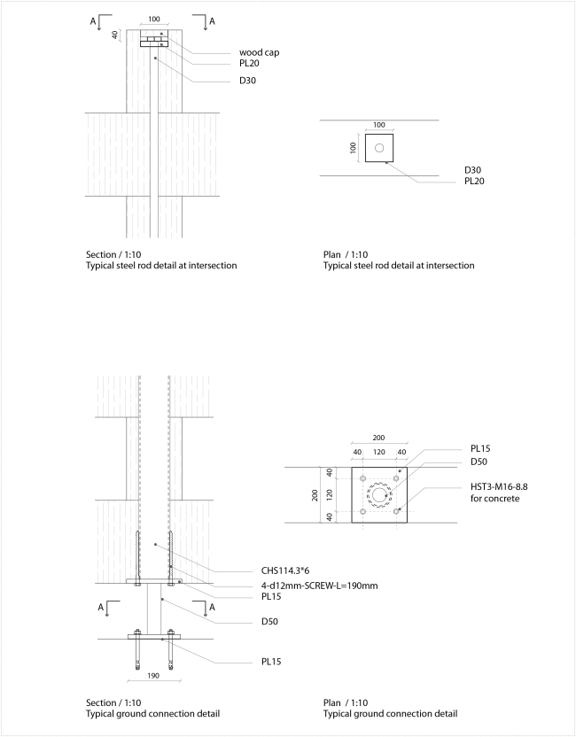
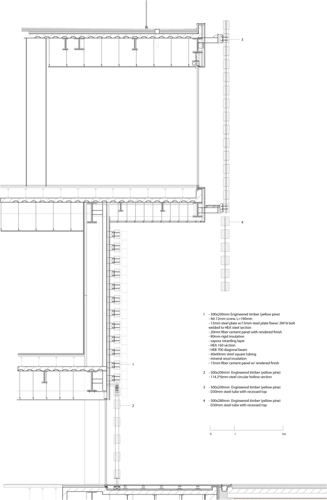
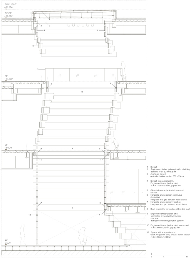
Музей современного искусства в Одунпазары (Odunpazari Modern Art Museum, OMM). Разрез, детали фасада
Музей современного искусства в Одунпазары (Odunpazari Modern Art Museum, OMM). Разрез, детали фасада
© Kengo Kuma and Associates
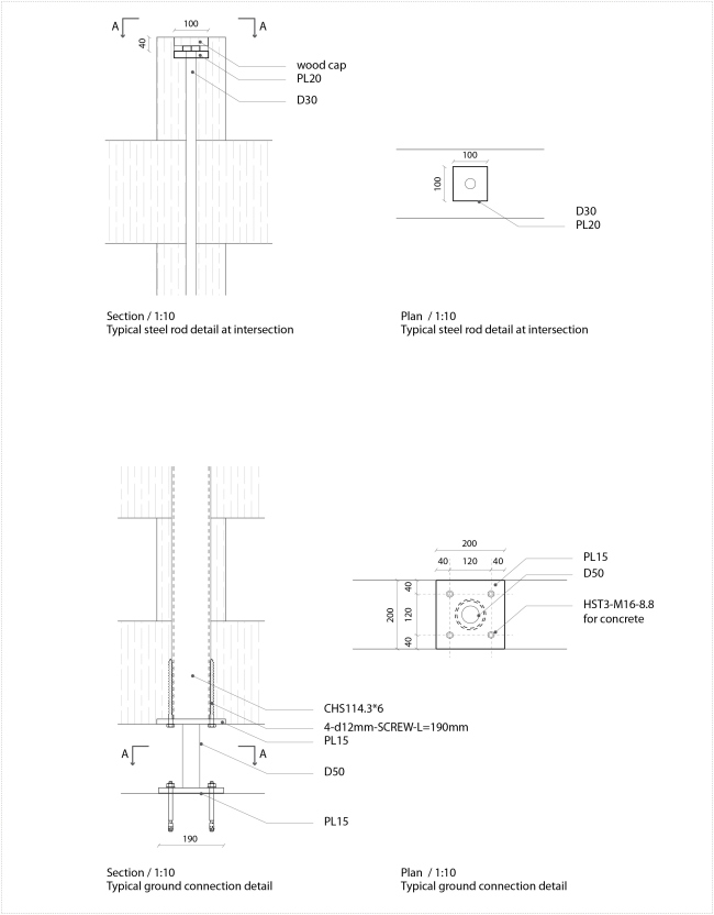
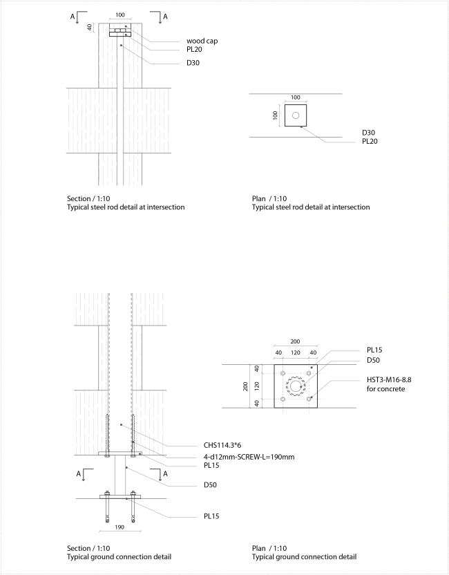
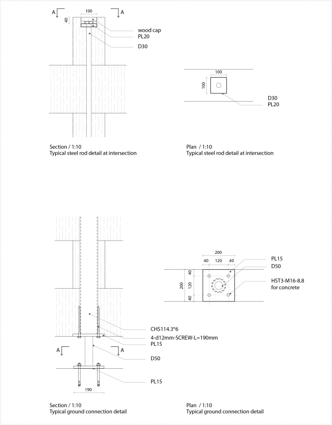
Музей современного искусства в Одунпазары (Odunpazari Modern Art Museum, OMM). Детали фасада
Музей современного искусства в Одунпазары (Odunpazari Modern Art Museum, OMM). Детали фасада
© Kengo Kuma and Associates
Музей современного искусства в Одунпазары (Odunpazari Modern Art Museum, OMM). Детали фасада
Музей современного искусства в Одунпазары (Odunpazari Modern Art Museum, OMM). Детали фасада
© Kengo Kuma and Associates
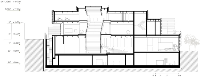
Музей современного искусства в Одунпазары (Odunpazari Modern Art Museum, OMM). Разрез B
Музей современного искусства в Одунпазары (Odunpazari Modern Art Museum, OMM). Разрез B
© Kengo Kuma and Associates
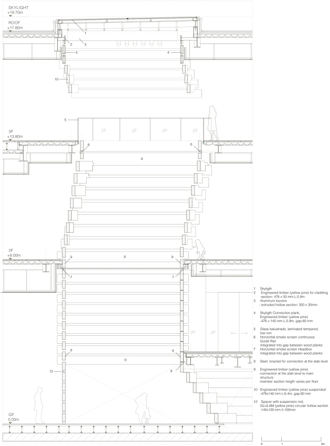
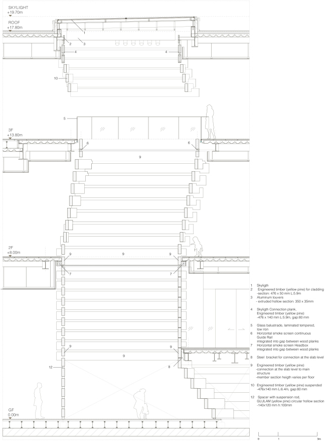
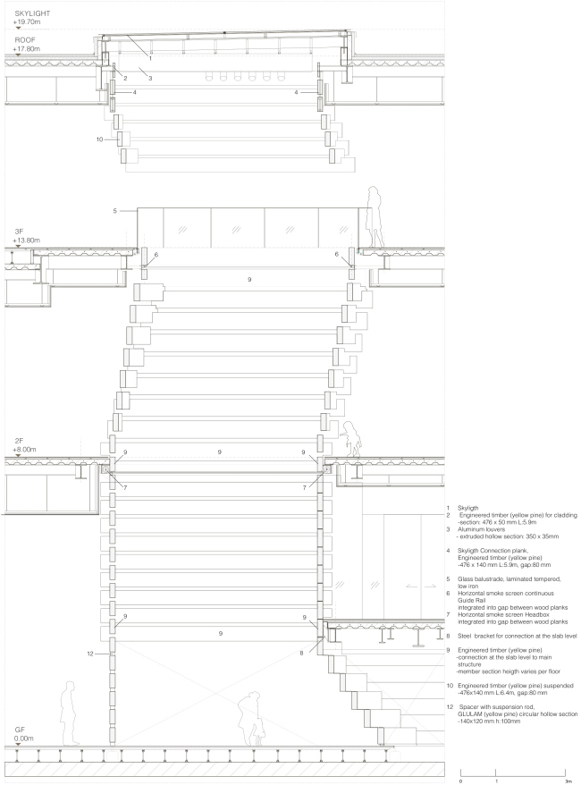
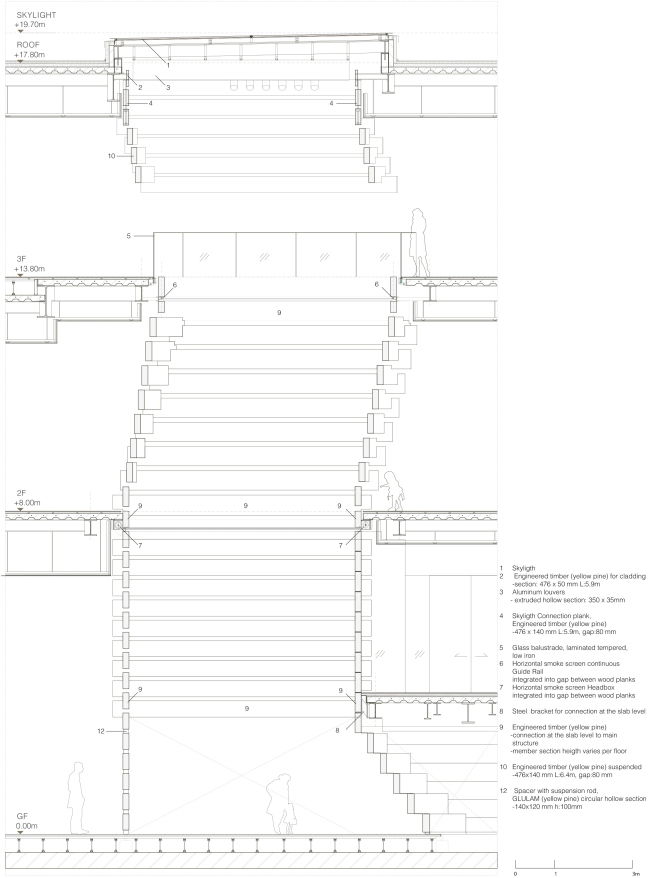
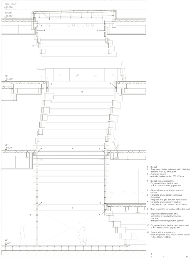
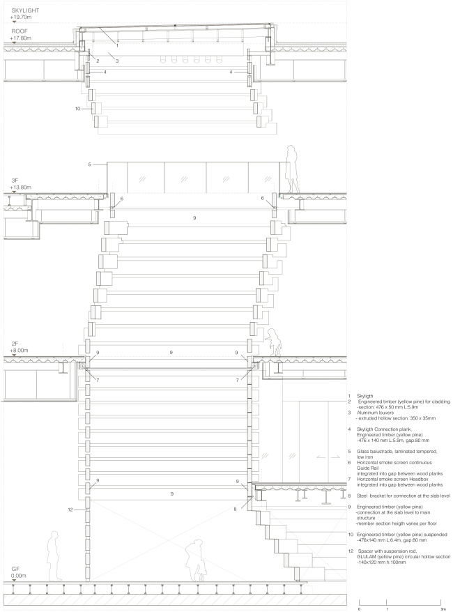
Музей современного искусства в Одунпазары (Odunpazari Modern Art Museum, OMM). Атриум, разрез
Музей современного искусства в Одунпазары (Odunpazari Modern Art Museum, OMM). Атриум, разрез
© Kengo Kuma and Associates
Музей современного искусства в Одунпазары (Odunpazari Modern Art Museum, OMM). Атриум, аксонометрическая проекция
Музей современного искусства в Одунпазары (Odunpazari Modern Art Museum, OMM). Атриум, аксонометрическая проекция
© Kengo Kuma and Associates
Музей современного искусства в Одунпазары (Odunpazari Modern Art Museum, OMM). Атриум, аксонометрическая проекция
Музей современного искусства в Одунпазары (Odunpazari Modern Art Museum, OMM). Атриум, аксонометрическая проекция
© Kengo Kuma and Associates
Музей современного искусства в Одунпазары (Odunpazari Modern Art Museum, OMM). Доступ к зданию, аксонометрическая проекция
Музей современного искусства в Одунпазары (Odunpazari Modern Art Museum, OMM). Доступ к зданию, аксонометрическая проекция
© Kengo Kuma and Associates
Музей современного искусства в Одунпазары (Odunpazari Modern Art Museum, OMM). Ориентация, аксонометрическая проекция
Музей современного искусства в Одунпазары (Odunpazari Modern Art Museum, OMM). Ориентация, аксонометрическая проекция
© Kengo Kuma and Associates
Музей современного искусства в Одунпазары (Odunpazari Modern Art Museum, OMM). Фасады сверху вниз: северный, южный, восточный, западный
Музей современного искусства в Одунпазары (Odunpazari Modern Art Museum, OMM). Фасады сверху вниз: северный, южный, восточный, западный
© Kengo Kuma and Associates