Размещено на портале Архи.ру (www.archi.ru)

01.10.2019

Европейская школа в римских традициях

Нина Фролова
Объект:
«Школа для Европы»
Адрес:
Италия, None, Парма.
Мастерская:
Zermani Associati Studio di Architettura

«Школа для Европы» в Парме по проекту Zermani Associati вмещает детский сад, начальную и среднюю школу.

«Школа для Европы»
«Школа для Европы»
Фото © Mauro Davoli, предоставлено Zermani Associati


Частная «Школа для Европы» (Scuola per l’Europa) в Парме входит в сеть «Европейских школ», существующую со середины XX века. Это школы с упором на «общеевропейские» знания и идеи, где большая часть преподавания ведется на местном языке, хотя в них есть и «международные» отделения.
Школа в Парме была основана в 2004, в наши дни там учатся дети в возрасте от 4 до 18 лет. Новое здание, открывшееся в 2017, рассчитано на 900 школьников.

Описание архитекторов:

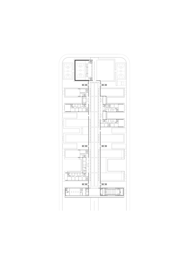
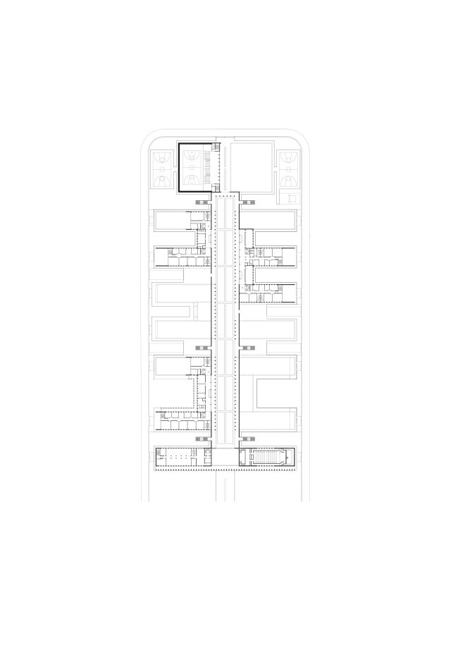
При взгляде с высоты нетрудно увидеть, что Паданская низменность больше других областей Италии отмечена матрицами древнеримской колонизации. Вековые следы, происходящие от Эмилиевой дороги в роли декуманус максимус, до сих пор сохранились как точная и узнаваемая карта территории, которая перешла от аграрного устройства к дорогам и городам. Внутри этой сети южная окраина Пармы определена каналами и границами сельскохозяйственных угодий. Участок проекта между магистралью Виа Лангирано и кампусом университета в этом плане символичен: большой прямоугольник, у которого длинная сторона параллельна Эмилиевой дороге, первой римской оси по направлению к завоеванию европейских земель.

«Школа для Европы»
«Школа для Европы»
Фото © Mauro Davoli, предоставлено Zermani Associati
«Школа для Европы»
«Школа для Европы»
Фото © Mauro Davoli, предоставлено Zermani Associati
«Школа для Европы»
«Школа для Европы»
Фото © Mauro Davoli, предоставлено Zermani Associati


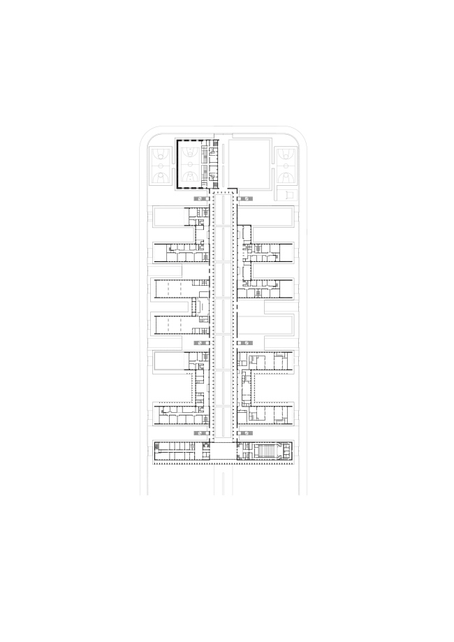
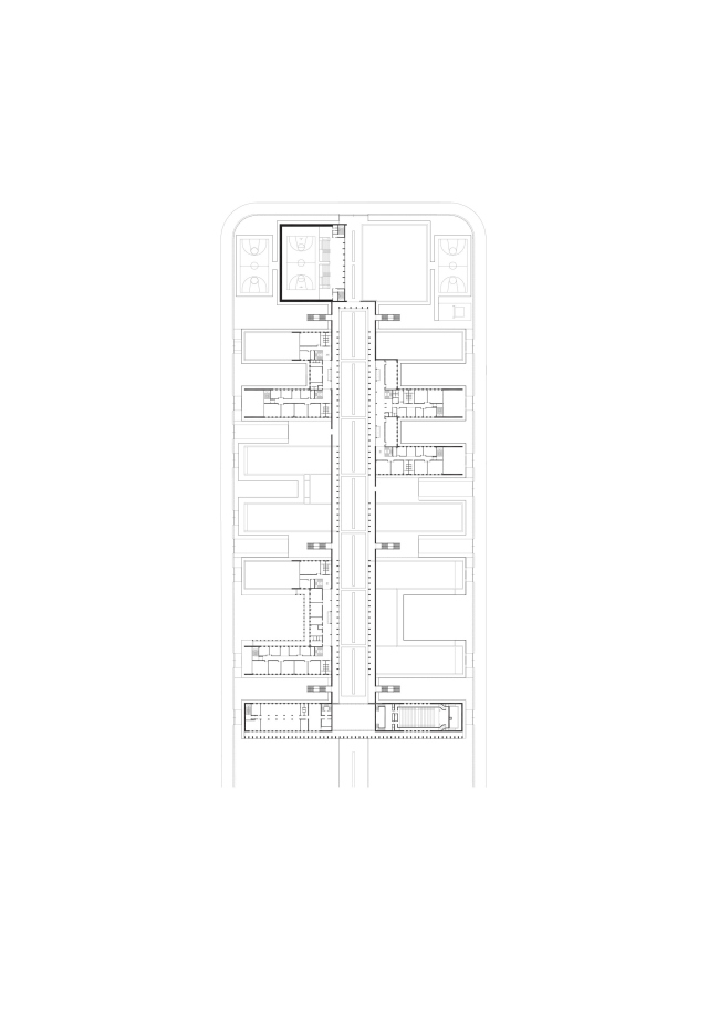
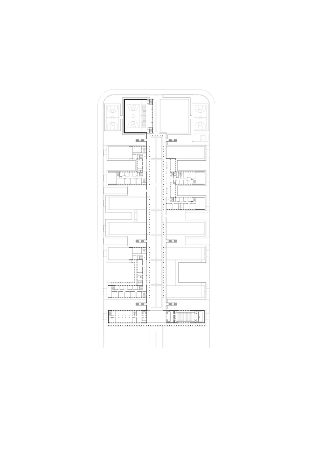
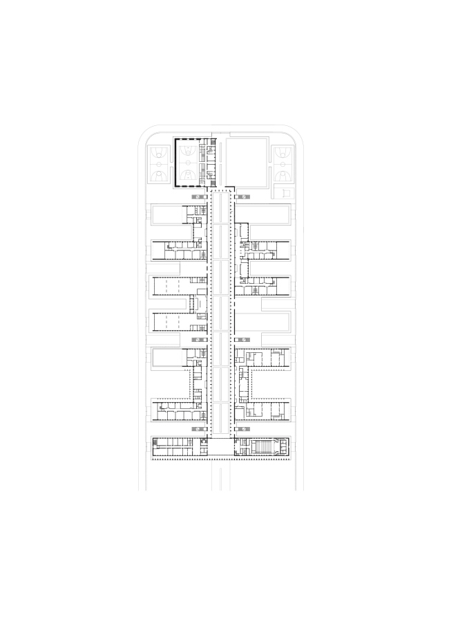
На «борозде» этого исторического следа заселения заложено основание самого проекта «Школы для Европы», его главный стержень. Он трактован как длинный клуатр и поддерживает объединяющий территориальный подход. Тот воплощен в масштабе дворов как сочетание необходимой застройки с функциональной интеграцией разных образовательных ступеней и сопутствующих сооружений.

«Школа для Европы»
«Школа для Европы»
Фото © Mauro Davoli, предоставлено Zermani Associati
«Школа для Европы»
«Школа для Европы»
Фото © Mauro Davoli, предоставлено Zermani Associati
«Школа для Европы»
«Школа для Европы»
Фото © Mauro Davoli, предоставлено Zermani Associati


Наконец, в здании есть портики: это оформление обращенного к городу (магистрали) фасада, а также главного клуатра и дворов, где центр занят лужайками. Портик становится в композиции распределителем и посредником, который закрепляет и соединяет пространство образования, город и остатки сельскохозяйственных угодий.

«Школа для Европы»
«Школа для Европы»
Фото © Mauro Davoli, предоставлено Zermani Associati
«Школа для Европы»
«Школа для Европы»
Фото © Mauro Davoli, предоставлено Zermani Associati
«Школа для Европы»
«Школа для Европы»
Фото © Mauro Davoli, предоставлено Zermani Associati


Таким образом, Европейская школа обращена к городу от главного портика, демонстрируя образ единства, в то время как внутри развита четкая автономия. Большие опоясанные портиками дворы отдельных учебных блоков распределены по сторонам клуатра и различаются длиной корпусов, обращенных к лужайкам дворов.

«Школа для Европы»
«Школа для Европы»
Фото © Mauro Davoli, предоставлено Zermani Associati
«Школа для Европы»
«Школа для Европы»
Фото © Mauro Davoli, предоставлено Zermani Associati
«Школа для Европы»
«Школа для Европы»
Фото © Mauro Davoli, предоставлено Zermani Associati


Фаланги дворов постепенно растворяются в архитектурно-природной системе, выступая как защищенные островки общения, учебы и игр.

«Школа для Европы»
«Школа для Европы»
Фото © Mauro Davoli, предоставлено Zermani Associati
«Школа для Европы»
«Школа для Европы»
Фото © Mauro Davoli, предоставлено Zermani Associati
«Школа для Европы»
«Школа для Европы»
Фото © Mauro Davoli, предоставлено Zermani Associati


Три абсолютных архитектурных и типологических элемента, примененных в разном масштабе – клуатр, дворы и портики – определяют ландшафтный проект, полностью выражая идентичность места и ее современный переход к европейскому горизонту.
«Школа для Европы»
«Школа для Европы»
Фото © Mauro Davoli, предоставлено Zermani Associati
«Школа для Европы»
«Школа для Европы»
Фото © Mauro Davoli, предоставлено Zermani Associati
«Школа для Европы»
«Школа для Европы»
Фото © Mauro Davoli, предоставлено Zermani Associati
«Школа для Европы»
«Школа для Европы»
© Zermani Associati
«Школа для Европы»
«Школа для Европы»
© Zermani Associati
«Школа для Европы»
«Школа для Европы»
© Zermani Associati