|
Центр искусств Aranya на китайском курорте Циньхуандао по проекту бюро Neri&Hu получил «орнаментальный» фасад из стеклофибробетонных модулей.
Заказчиком арт-центра выступил девелопер Aranya: новое здание расположено в жилом массиве этой компании на берегу Тихого океана. Заметим, что по соседству, в дюнах у воды, построен музей – филиал пекинского UCCA, так что на популярном у столичных жителей курорте Циньхуандао складывается своего рода «арт-сцена».
 
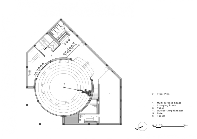
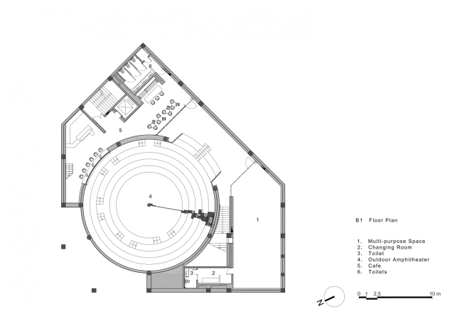
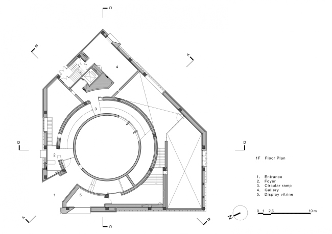
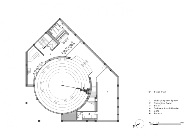
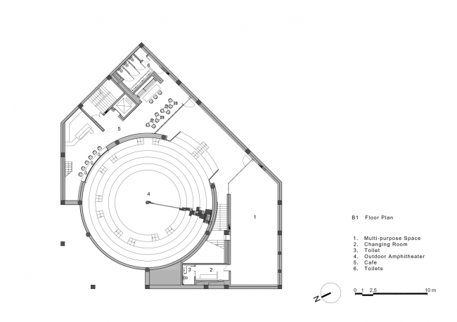
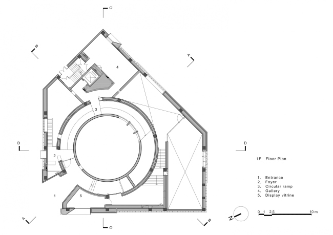
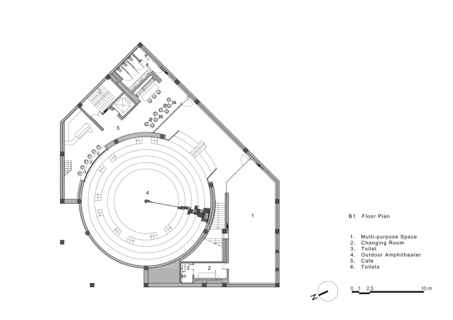
Архитекторы Neri&Hu учли двойную функцию своего здания: это не только художественная галерея, но и общественный центр для местных жителей. Поэтому в центр постройки помещен внутренний двор с амфитеатром. В обычные дни его «дно» можно заполнять водой, превращая в декоративный пруд, но вообще двор предназначен для собраний, представлений и других подобных мероприятий.

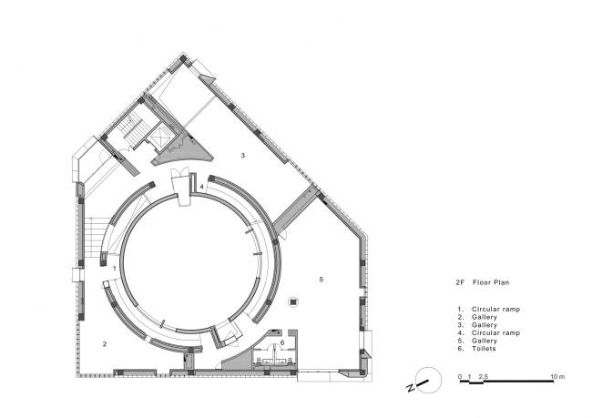
Расположенные на всех этажах выставочные залы посетители осматривают, медленно поднимаясь по спирали вокруг двора, который имеет форму перевернутого конуса. В финале маршрута они оказываются на крыше, откуда могут бросить взгляд как на окрестности, так и вниз – в амфитеатр.

Арт-центр Aranya сочетает разные виды бетона, которые подчеркивают его «материальность». Так, фасад составлен из стеклофибробетонных модулей, которые напоминают о постройках послевоенного модернизма. Также в здании можно найти панели с разными наполнителями и торкрет-бетон. Снаружи этот материал дополняют сталь с бронзовым гальванопокрытием и бамбук массивных дверей, внутри – бронза и древесина дуба. Центр искусств AranyaФото © Pedro Pegenaute
Центр искусств AranyaФото © Pedro Pegenaute
Центр искусств AranyaФото © Pedro Pegenaute
Центр искусств AranyaФото © Pedro Pegenaute
Центр искусств AranyaФото © Pedro PegenauteЦентр искусств AranyaФото © Pedro PegenauteЦентр искусств AranyaФото © Pedro PegenauteЦентр искусств AranyaФото © Pedro PegenauteЦентр искусств AranyaФото © Pedro PegenauteЦентр искусств AranyaФото © Pedro PegenauteЦентр искусств AranyaФото © Pedro Pegenaute
Центр искусств AranyaФото © Pedro PegenauteЦентр искусств AranyaФото © Pedro PegenauteЦентр искусств AranyaФото © Pedro PegenauteЦентр искусств AranyaФото © Pedro PegenauteЦентр искусств AranyaФото © Pedro PegenauteЦентр искусств AranyaФото © Pedro PegenauteЦентр искусств AranyaФото © Pedro PegenauteЦентр искусств AranyaФото © Xia ZhiЦентр искусств AranyaФото © Pedro Pegenaute
Центр искусств AranyaФото © Pedro Pegenaute
Центр искусств AranyaФото © Pedro Pegenaute
Центр искусств AranyaФото © Xia Zhi
Центр искусств AranyaФото © Pedro Pegenaute
Центр искусств AranyaФото © Pedro Pegenaute
Центр искусств AranyaФото © Pedro Pegenaute
Центр искусств AranyaФото © Pedro Pegenaute
Центр искусств AranyaФото © Pedro Pegenaute
Центр искусств Aranya. Эскиз Линдона Нери© Neri&Hu
Центр искусств Aranya. Эскиз Линдона Нери© Neri&Hu
Центр искусств Aranya© Neri&Hu
Центр искусств Aranya© Neri&Hu
Центр искусств Aranya© Neri&Hu
Центр искусств Aranya© Neri&Hu
Центр искусств Aranya© Neri&Hu
Центр искусств Aranya© Neri&Hu
Центр искусств Aranya© Neri&Hu
Центр искусств Aranya© Neri&Hu
Центр искусств Aranya© Neri&Hu
Центр искусств Aranya© Neri&Hu
Центр искусств Aranya© Neri&Hu
|