Размещено на портале Архи.ру (www.archi.ru)

12.09.2019

Яркие слои

Нина Фролова
Объект:
Центр биоразнообразия Naturalis
Адрес:
Нидерланды, None, Лейден.
Мастерская:
Neutelings Riedijk

Центр биоразнообразия Naturalis по проекту Neutelings Riedijk в Лейдене соединяет популярный музей с крупнейшей в мире естественнонаучной коллекцией и новаторскими лабораториями.

Центр биоразнообразия Naturalis
Центр биоразнообразия Naturalis
Фото: ScagliolaBrakkee / © Neutelings Riedijk Architects

Центр биоразнообразия Naturalis – наследник музея естественной истории, основанного по указу короля Нидерландов Виллема I в 1820. С тех пор он пережил несколько трансформаций, главная из которых случилась в начале 2010-х: к нему добавили зоологический музей Амстердамского университета и Национальный гербарий, один из самых крупных в мире. В результате возник просветительский и исследовательский центр, собрание которого (42 млн единиц хранения) входит в пятерку самых больших естественнонаучных коллекций на планете.
 
Центр биоразнообразия Naturalis
Центр биоразнообразия Naturalis
Фото: ScagliolaBrakkee / © Neutelings Riedijk Architects

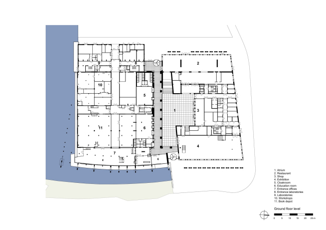
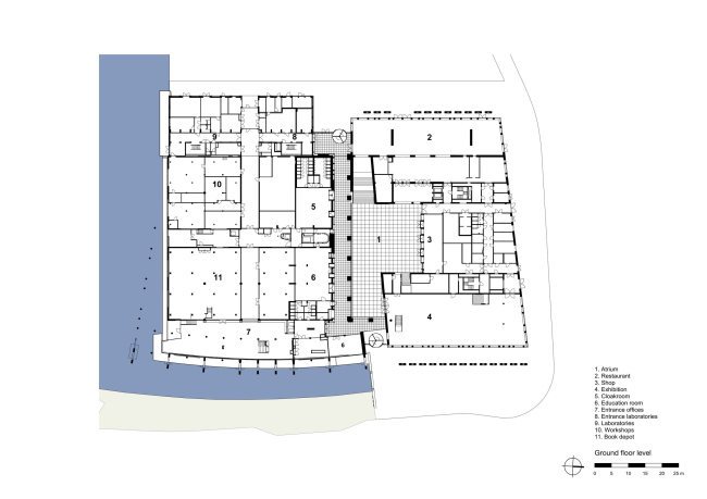
При этом популярность «Натуралиса» у широкой публики только росла, в год там бывает по 400 000 человек, поэтому открывшееся в 1998 здание пришлось оперативно расширить и перестроить. Архитекторы Neutelings Riedijk поместили в центре просторный атриум, который соединяет имевшиеся запасники и административные помещения с новым музеем и современными лабораториями на более чем 200 исследователей. Общая площадь учреждения – 38 000 м2, из них 18 000 м2 – реконструкция, а 20 000 – новое строительство.
 
Центр биоразнообразия Naturalis
Центр биоразнообразия Naturalis
Фото: ScagliolaBrakkee / © Neutelings Riedijk Architects

Фасад атриума – бетонная орнаментальная композиция из овалов и треугольников, напоминающая о структуре молекул. Такой же узор помещен и на перекрытия. Внутри он обшит красным травертином, который перемежается с 263 бетонными панелями по проекту модельера Ирис ван Херпен (Iris van Herpen). Белый бетон получил гладкость шелка – чтобы напоминать о футуристических платьях ван Херпен, а узоры вдохновлены предметами из коллекции «Натуралиса». Такая же полосатая структура – и на фасадах постройки.
 
Центр биоразнообразия Naturalis
Центр биоразнообразия Naturalis
Фото: ScagliolaBrakkee / © Neutelings Riedijk Architects

Вместе с поблескивающим кристаллами травертином белые панели создают впечатление контрастных слоев горных пород. Сходство усиливает напоминающий тропу сужающийся путь по атриуму – от выставочного зала и лабораторий на уровне земли к галереям верхнего этажа.
 
Центр биоразнообразия Naturalis
Центр биоразнообразия Naturalis
Фото: ScagliolaBrakkee / © Neutelings Riedijk Architects

Атриум также украшают работы дизайнера Торда Бонтье (Tord Boontje). Обычно он занимается мебелью, светильниками и узорчатыми тканями, а для «Натуралиса» сделал почти сотню настенных панелей «о чудесах природы», соединяющих графические и фото- мотивы.
Центр биоразнообразия Naturalis
Центр биоразнообразия Naturalis
Фото: ScagliolaBrakkee / © Neutelings Riedijk Architects
Центр биоразнообразия Naturalis
Центр биоразнообразия Naturalis
Фото: ScagliolaBrakkee / © Neutelings Riedijk Architects
Центр биоразнообразия Naturalis
Центр биоразнообразия Naturalis
Фото: ScagliolaBrakkee / © Neutelings Riedijk Architects
Центр биоразнообразия Naturalis
Центр биоразнообразия Naturalis
Фото: ScagliolaBrakkee / © Neutelings Riedijk Architects
Центр биоразнообразия Naturalis
Центр биоразнообразия Naturalis
Фото: ScagliolaBrakkee / © Neutelings Riedijk Architects
Центр биоразнообразия Naturalis
Центр биоразнообразия Naturalis
Фото: ScagliolaBrakkee / © Neutelings Riedijk Architects
Центр биоразнообразия Naturalis
Центр биоразнообразия Naturalis
Фото: ScagliolaBrakkee / © Neutelings Riedijk Architects
Центр биоразнообразия Naturalis
Центр биоразнообразия Naturalis
Фото: ScagliolaBrakkee / © Neutelings Riedijk Architects
Центр биоразнообразия Naturalis
Центр биоразнообразия Naturalis
Фото: ScagliolaBrakkee / © Neutelings Riedijk Architects
Центр биоразнообразия Naturalis
Центр биоразнообразия Naturalis
Фото: ScagliolaBrakkee / © Neutelings Riedijk Architects
Центр биоразнообразия Naturalis
Центр биоразнообразия Naturalis
Фото: ScagliolaBrakkee / © Neutelings Riedijk Architects
Центр биоразнообразия Naturalis
Центр биоразнообразия Naturalis
Фото: ScagliolaBrakkee / © Neutelings Riedijk Architects
Центр биоразнообразия Naturalis
Центр биоразнообразия Naturalis
© Neutelings Riedijk Architects
Центр биоразнообразия Naturalis
Центр биоразнообразия Naturalis
© Neutelings Riedijk Architects
Центр биоразнообразия Naturalis
Центр биоразнообразия Naturalis
© Neutelings Riedijk Architects
Центр биоразнообразия Naturalis
Центр биоразнообразия Naturalis
© Neutelings Riedijk Architects