Размещено на портале Архи.ру (www.archi.ru)

05.09.2019

В сложенном виде

Нина Фролова
Объект:
Здание центра ГО, проектного бюро и архива округа Кайхуа
Адрес:
Китай, None, Цюйчжоу.
Мастерская:
Архитектурный проектно-исследовательский институт Чжэцзянского университета (UAD)

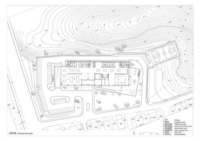
Здание командного центра ГО, проектного бюро и архива уезда Кайхуа на востоке Китая вписано в склон лесистой горы.

Здание центра ГО, проектного бюро и архива уезда Кайхуа
Здание центра ГО, проектного бюро и архива уезда Кайхуа
Фото © Zhou Yifan

Уезд Кайхуа входит в городской округ Цюйчжоу провинции Чжэцзян. Для Китая это типично: город (городской округ) может охватывать тысячи квадратных километров с полями, лесами, горами и различными поселениями. Сам уезд Кайхуа тоже включает в себя природные и сельскохозяйственные территории, а также «урбанизированное» ядро. Именно в нем и находится новое здание по проекту архитектурного института Чжэцзянского университета.
 
Здание центра ГО, проектного бюро и архива уезда Кайхуа
Здание центра ГО, проектного бюро и архива уезда Кайхуа
Фото © Zhou Yifan

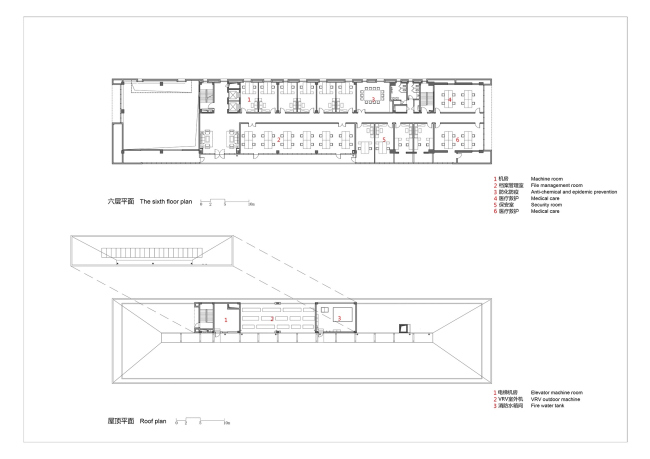
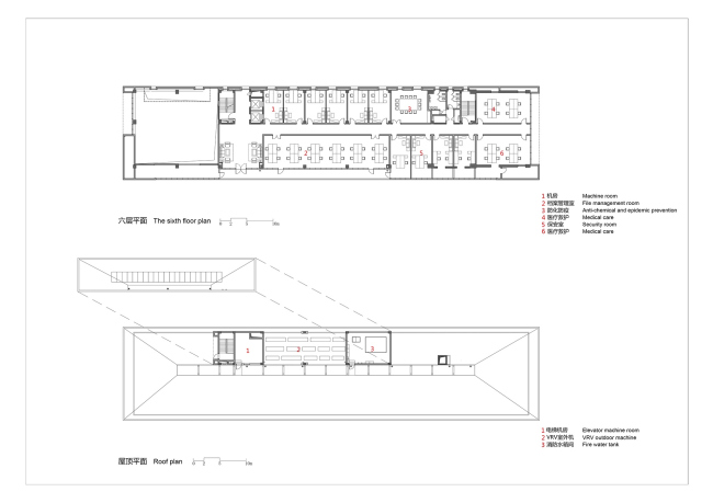
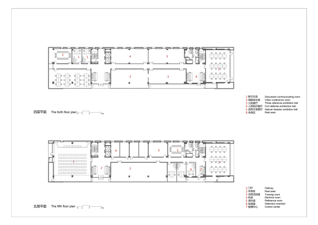
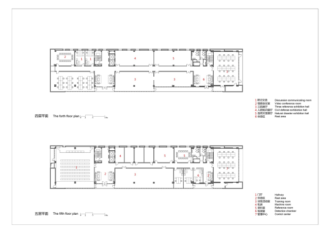
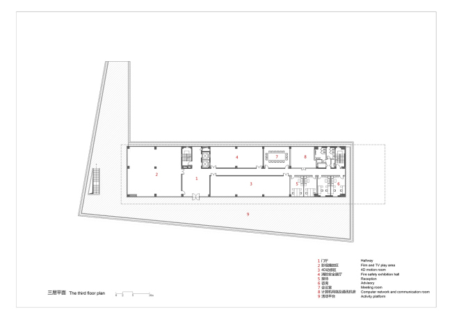
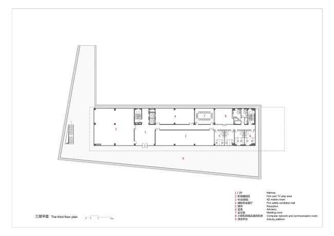
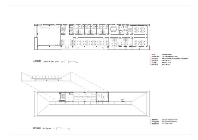
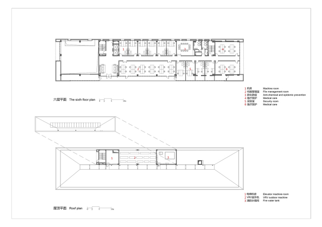
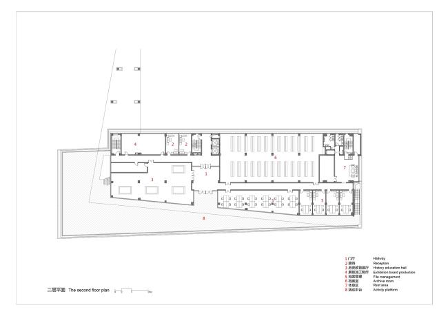
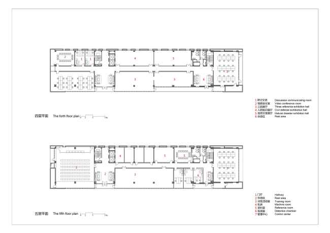
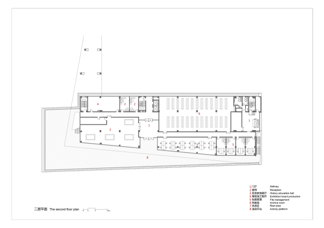
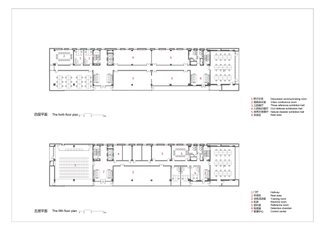
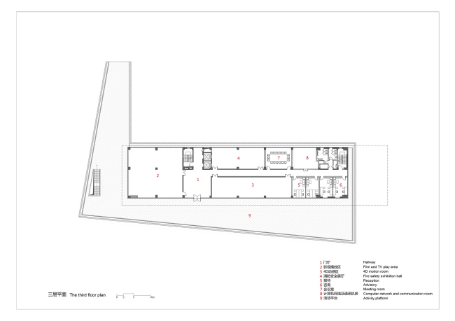
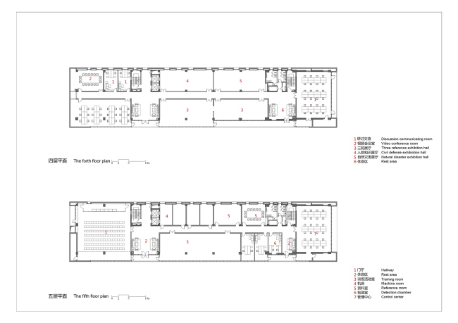
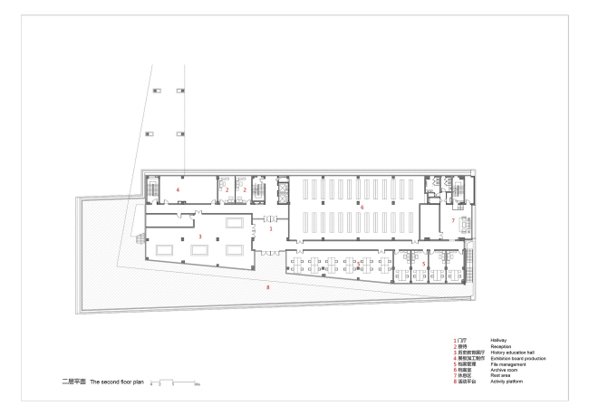
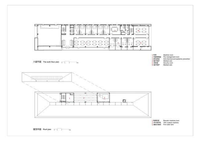
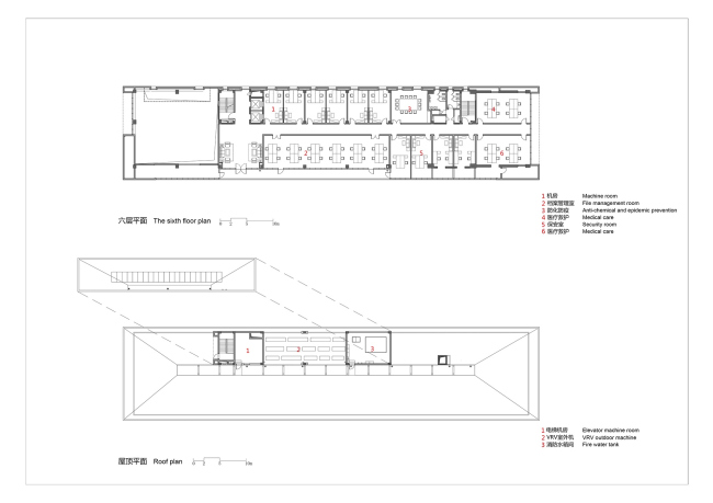
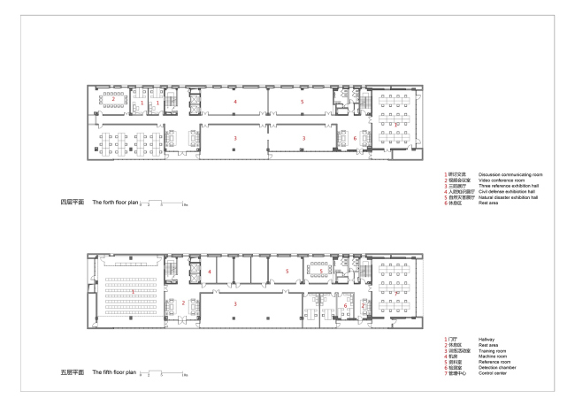
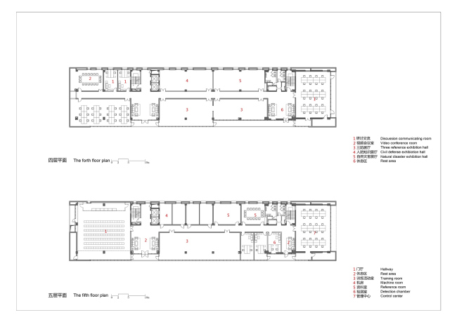
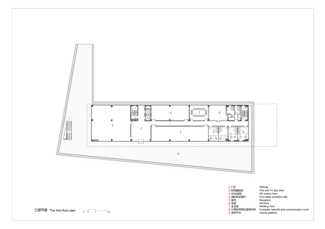
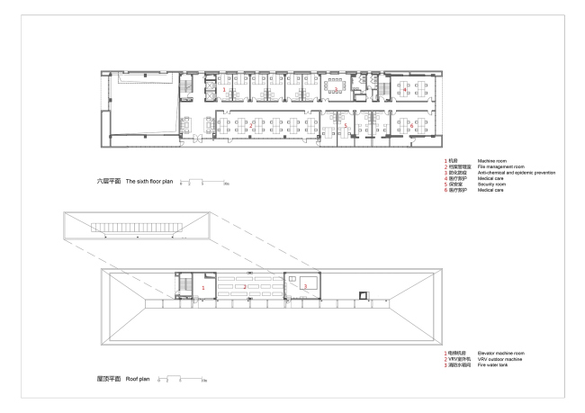
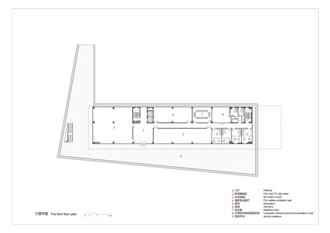
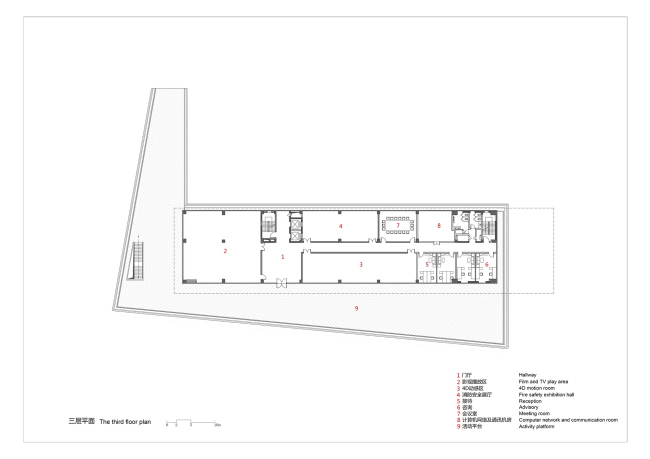
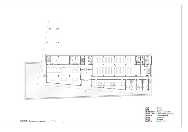
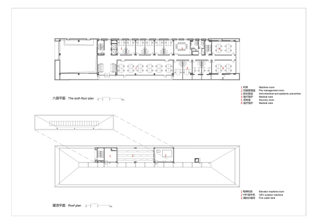
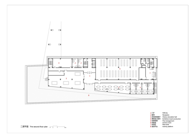
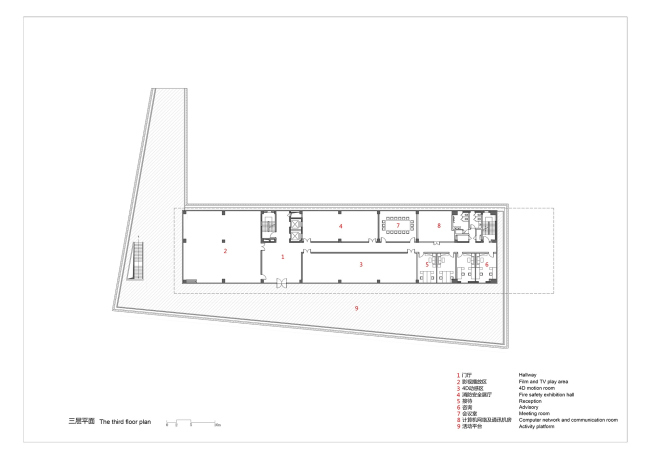
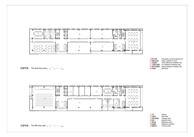
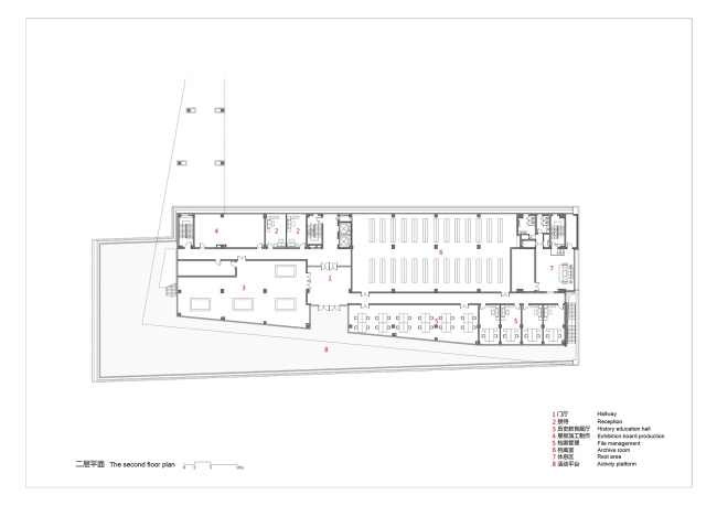
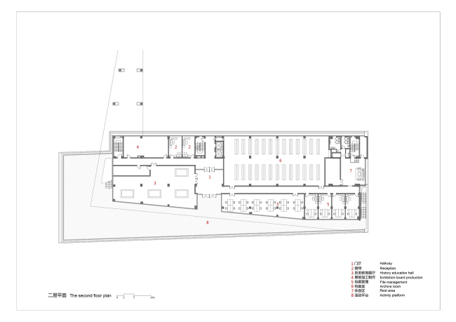
В корпусе на границе природного ландшафта – поросшей лесом горы – и застройки собраны самые разные службы. Внизу расположены городские архивы, выше – командный центр гражданской обороны и служебная столовая, а на самом верху – проектное бюро по вопросам жилья и строительства (городского развития).
 
Здание центра ГО, проектного бюро и архива уезда Кайхуа
Здание центра ГО, проектного бюро и архива уезда Кайхуа
Фото © Zhao Qiang

Здание состоит из двух ярко выраженных частей: как будто сложенной, как лист картона, платформы-стилобата и привычного трехэтажного офисного блока сверху. Однако окна, террасы, открытые переходы связывают эту постройку с окружающим ландшафтом, напоминая порой опоясывающие холм тропинки. От подобной дорожки выше по склону к зданию перекинут мостик, хотя попасть внутрь можно и на первом этаже.
Здание центра ГО, проектного бюро и архива уезда Кайхуа
Здание центра ГО, проектного бюро и архива уезда Кайхуа
Фото © Zhao Qiang
Здание центра ГО, проектного бюро и архива уезда Кайхуа
Здание центра ГО, проектного бюро и архива уезда Кайхуа
Фото © Zhao Qiang
Здание центра ГО, проектного бюро и архива уезда Кайхуа
Здание центра ГО, проектного бюро и архива уезда Кайхуа
Фото © Zhao Qiang
Здание центра ГО, проектного бюро и архива уезда Кайхуа
Здание центра ГО, проектного бюро и архива уезда Кайхуа
Фото © Zhao Qiang
Здание центра ГО, проектного бюро и архива уезда Кайхуа
Здание центра ГО, проектного бюро и архива уезда Кайхуа
Фото © Zhao Qiang
Здание центра ГО, проектного бюро и архива уезда Кайхуа
Здание центра ГО, проектного бюро и архива уезда Кайхуа
Фото © Zhao Qiang
Здание центра ГО, проектного бюро и архива уезда Кайхуа
Здание центра ГО, проектного бюро и архива уезда Кайхуа
Фото © Zhao Qiang
Здание центра ГО, проектного бюро и архива уезда Кайхуа
Здание центра ГО, проектного бюро и архива уезда Кайхуа
Фото © Zhao Qiang
Здание центра ГО, проектного бюро и архива уезда Кайхуа
Здание центра ГО, проектного бюро и архива уезда Кайхуа
Фото © Zhao Qiang
Здание центра ГО, проектного бюро и архива уезда Кайхуа
Здание центра ГО, проектного бюро и архива уезда Кайхуа
Фото © Zhao Qiang
Здание центра ГО, проектного бюро и архива уезда Кайхуа
Здание центра ГО, проектного бюро и архива уезда Кайхуа
Фото © Zhao Qiang
Здание центра ГО, проектного бюро и архива уезда Кайхуа
Здание центра ГО, проектного бюро и архива уезда Кайхуа
Фото © Zhao Qiang
Здание центра ГО, проектного бюро и архива уезда Кайхуа
Здание центра ГО, проектного бюро и архива уезда Кайхуа
Фото © Zhao Qiang
Здание центра ГО, проектного бюро и архива уезда Кайхуа
Здание центра ГО, проектного бюро и архива уезда Кайхуа
Фото © Zhao Qiang
Здание центра ГО, проектного бюро и архива уезда Кайхуа
Здание центра ГО, проектного бюро и архива уезда Кайхуа
Фото © Zhao Qiang
Здание центра ГО, проектного бюро и архива уезда Кайхуа
Здание центра ГО, проектного бюро и архива уезда Кайхуа
Фото © Zhao Qiang
Здание центра ГО, проектного бюро и архива уезда Кайхуа
Здание центра ГО, проектного бюро и архива уезда Кайхуа
Фото © Fan Mingming
Здание центра ГО, проектного бюро и архива уезда Кайхуа
Здание центра ГО, проектного бюро и архива уезда Кайхуа
Фото © Fan Mingming
Здание центра ГО, проектного бюро и архива уезда Кайхуа
Здание центра ГО, проектного бюро и архива уезда Кайхуа
© Architectural Design & Research Institute of Zhejiang University
Здание центра ГО, проектного бюро и архива уезда Кайхуа
Здание центра ГО, проектного бюро и архива уезда Кайхуа
© Architectural Design & Research Institute of Zhejiang University
Здание центра ГО, проектного бюро и архива уезда Кайхуа
Здание центра ГО, проектного бюро и архива уезда Кайхуа
© Architectural Design & Research Institute of Zhejiang University
Здание центра ГО, проектного бюро и архива уезда Кайхуа
Здание центра ГО, проектного бюро и архива уезда Кайхуа
© Architectural Design & Research Institute of Zhejiang University
Здание центра ГО, проектного бюро и архива уезда Кайхуа
Здание центра ГО, проектного бюро и архива уезда Кайхуа
© Architectural Design & Research Institute of Zhejiang University
Здание центра ГО, проектного бюро и архива уезда Кайхуа
Здание центра ГО, проектного бюро и архива уезда Кайхуа
© Architectural Design & Research Institute of Zhejiang University
Здание центра ГО, проектного бюро и архива уезда Кайхуа
Здание центра ГО, проектного бюро и архива уезда Кайхуа
© Architectural Design & Research Institute of Zhejiang University
Здание центра ГО, проектного бюро и архива уезда Кайхуа
Здание центра ГО, проектного бюро и архива уезда Кайхуа
© Architectural Design & Research Institute of Zhejiang University
Здание центра ГО, проектного бюро и архива уезда Кайхуа
Здание центра ГО, проектного бюро и архива уезда Кайхуа
© Architectural Design & Research Institute of Zhejiang University
Здание центра ГО, проектного бюро и архива уезда Кайхуа
Здание центра ГО, проектного бюро и архива уезда Кайхуа
© Architectural Design & Research Institute of Zhejiang University
Здание центра ГО, проектного бюро и архива уезда Кайхуа
Здание центра ГО, проектного бюро и архива уезда Кайхуа
© Architectural Design & Research Institute of Zhejiang University