Размещено на портале Архи.ру (www.archi.ru)

23.08.2019

Тет-а-тет с Заполярьем

Нина Фролова
Объект:
Гостиница Manshausen 2.0
Адрес:
Норвегия, None,
Мастерская:
Stinessen Arkitektur

Гостиница Manshausen 2.0 бюро Stinessen Arkitektur на северонорвежском морском побережье учитывает хрупкость заполярной природы.

Гостиница Manshausen 2.0
Гостиница Manshausen 2.0
Фото © Adrien Giret

«Курорт» Manshausen находится на островке Мансхёусен длиной всего полкилометра, но материк рядом – через совсем узкий пролив. Территориально это заполярная коммуна Стейген провинции Нурланн, а менее ста лет назад остров входил в торговый пост Грётёй, где возвращавшиеся с промысла рыбаки могли продать улов. С того времени на острове остались старая ферма и каменные причалы. Они и составили основу первой очереди гостиницы, которую полярный исследователь Бёрге Оусланд открыл в 2015. Бюро Stinessen Arkitektur отреставрировало дом, устроив там кухню, ресторан, а на втором этаже – библиотеку, и раскрыло его в сторону Лофотенских островов, а павильоны-номера на сваях разместило на причалах.
 
Гостиница Manshausen 2.0
Гостиница Manshausen 2.0
Фото © Kjell Ove Storvik

Те же архитекторы занимались и Manshausen 2.0, но перед ними стояла более сложная задача. Полярная природа очень хрупка, и даже небольшие повреждения в слое мха восстанавливаются годами. В Стейгене также немало ценных видов флоры и фауны, к примеру, уникально большая популяция орланов-белохвостов. При этом уже не осталось рукотворных объектов для вторичного использования: пришлось внедряться в природную среду. Как место строительства новых домиков-номеров выбрали скальные выступы на берегу: со стороны суши они касаются земли, а потом поднимаются на опорах и выступают консолями над водой.
 
Гостиница Manshausen 2.0
Гостиница Manshausen 2.0
Фото © Kjell Ove Storvik

Панорамное остекление со стороны моря позволяет круглые сутки быть наедине с природой, оставаясь в укрытии: климат здесь отличают частые и резкие смены погоды, сильные шторма, что прибавляет эффектности панорамам, но не всегда безопасно. Продуманный план позволил разместить на 30 м2 спальные места для 4–5 человек, кухню и столовую, удобную ванную комнату, а также вместительную кладовку, где можно разместить багаж и любое оборудование: сюда приезжают ходить на байдарках, заниматься дайвингом, альпинизмом – горы недалеко от побережья, кататься на лыжах.
 
Гостиница Manshausen 2.0
Гостиница Manshausen 2.0
Фото © Kjell Ove Storvik

Во вторую очередь также вошла сауна на скальном выступе рядом с открытым бассейном с морской водой. Вся она построена из вторсырья: сланцевая черепица взята из развалин старых построек, дерево и стекло – остались от первой очереди.
 
Гостиница Manshausen 2.0
Гостиница Manshausen 2.0
Фото © Kjell Ove Storvik

Близость моря сделала строительство номеров более ответственной задачей: были учтены сила ветра, высота волн, возможное повышение уровня мирового океана, а также эффектные виды и защита интерьера от посторонних взглядов. Просоленная среда и экстремальный климат определили выбор алюминиевых листов как обшивки, однако основным материалом стала перекрестно-клееная древесина (CLT), полученная в ходе компенсированной посадками вырубки сосен. Выполненное на заказ остекление лишено традиционных рамных конструкций. В интерьере, помимо дерева, использован натуральный линолеум. Все части постройки были рассчитаны на монтаж вручную, без использования тяжелой техники, чтобы она не вредила растительности.
 
Гостиница Manshausen 2.0
Гостиница Manshausen 2.0
Фото © Snorre Stinessen

Еще до открытия курорта остров был подключен к энергосети, однако Оусланд хочет в ближайшее время сделать его автономным: так, весь мусор перерабатывается на месте, вода – очищается. Постояльцы питаются выращенным на вновь освоенных наделах овощами, вареньем из собранных тут же ягод. Хлеб поставляет пекарня поблизости, рыбу и морепродукты привозят местные рыбаки. На Мансхёусене нет пластика – ни на суше, ни под водой: это первый подобный норвежский остров.
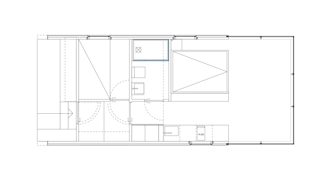
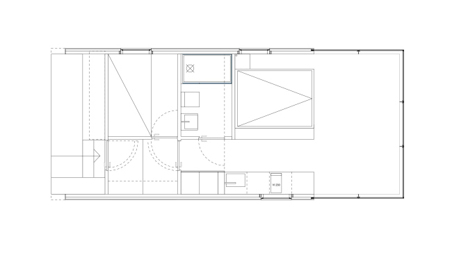
Гостиница Manshausen 2.0
Гостиница Manshausen 2.0
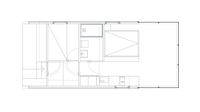
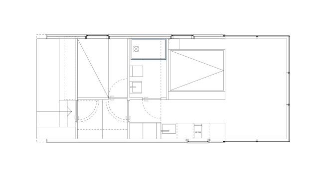
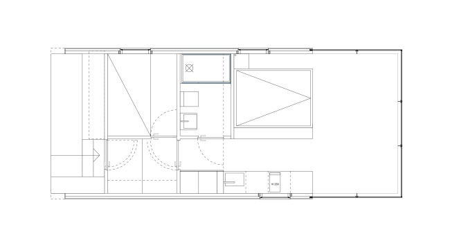
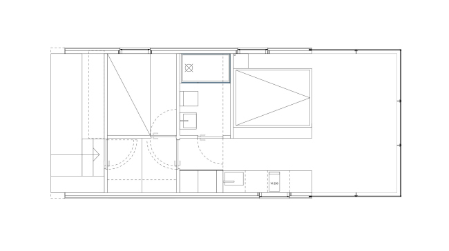
© Stinessen Arkitektur
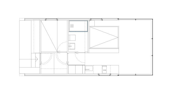
Гостиница Manshausen 2.0
Гостиница Manshausen 2.0
© Stinessen Arkitektur