Размещено на портале Архи.ру (www.archi.ru)

09.08.2019

Петля культуры

Нина Фролова
Объект:
Центр MÉCA
Адрес:
Франция, None, Бордо.
Мастерская:
BIG

В культурном центре MÉCA по проекту бюро BIG в Бордо выставочные и зрительные залы сочетаются с открытыми террасами на уровне земли, в «городской гостиной» и на крыше.

Центр MÉCA
Центр MÉCA
Фото © Laurian Ghinitoiu

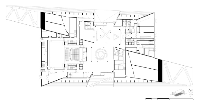
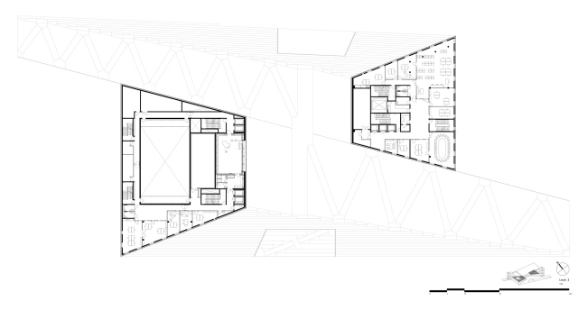
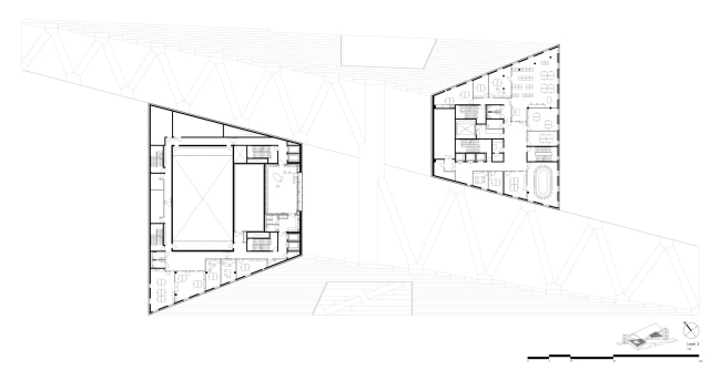
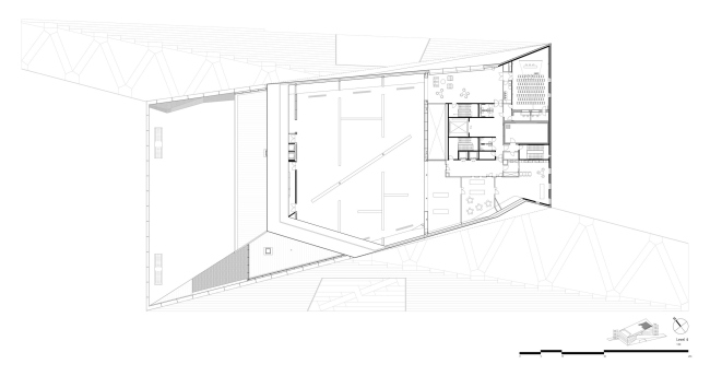
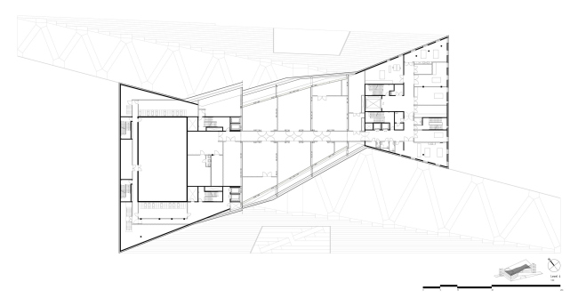
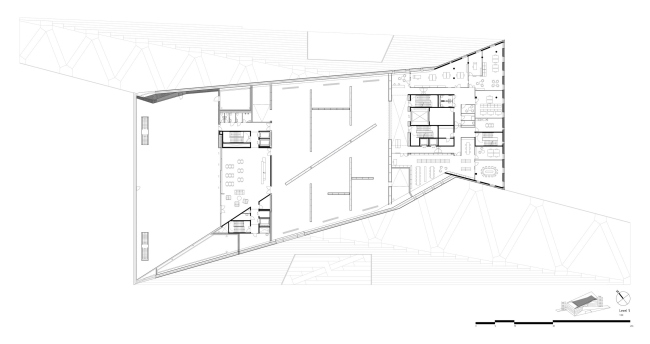
MÉCA расшифровывается как «Дом креативной экономики и культуры в Новой Аквитании»: на 18 000 м2 там размещены три государственных региональных учреждения – FRAC (современное искусство), ALCA (литература, кино и мультимедиа) и OARA (исполнительские искусства). Они обеспечивают доступ граждан к культуре и поддерживают авторов и художников всех профессий, давая им возможность заниматься творчеством.
 
Центр MÉCA
Центр MÉCA
Фото © Laurian Ghinitoiu

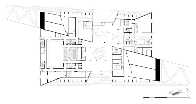
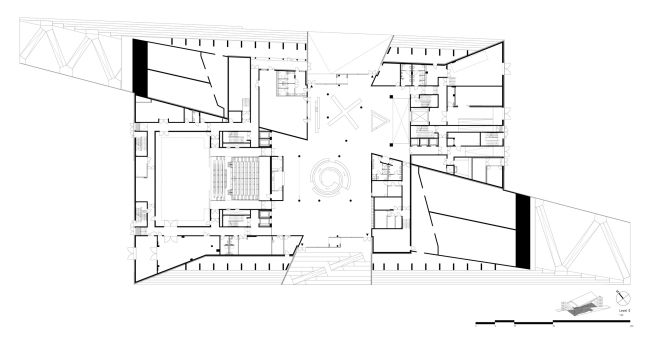
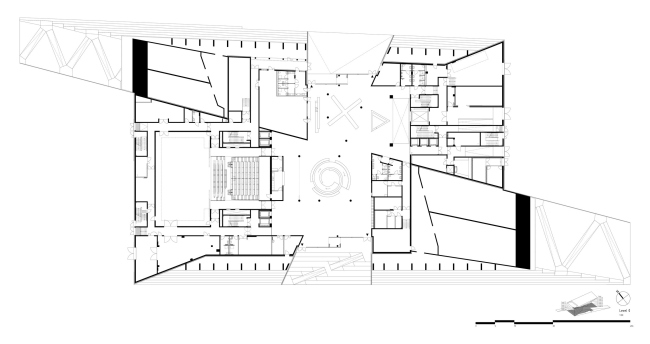
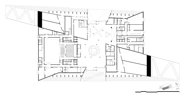
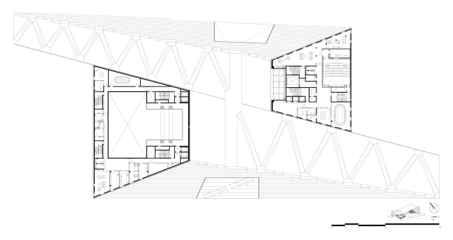
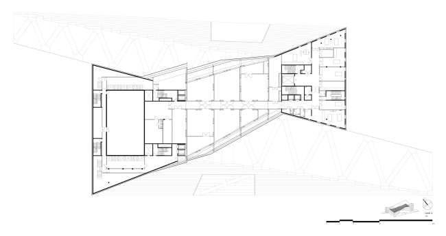
Архитекторы BIG и их парижские партнеры Freaks подумали при этом не только о завсегдатаях концертов и выставок, но и о более широкой публике. Чтобы привлечь ее в MÉCA, они сделали здание проницаемым, связанным с окружением: набережная реки Гаронны перед ним и городские улицы сзади плавно превращаются в променад, который ведет в «городскую гостиную» – террасу площадью 1100 м2 внизу большого проема, самой заметной части напоминающей рамку постройки. Там можно отдохнуть и полюбоваться рекой, а еще – заглянуть через большие окна в балетную студию OARA, а с другой стороны – через подобие перископа – в вестибюль внизу (оттуда таким же способом видна эта терраса). Сходство с гостиной усиливает «люстра» – подвешенная сверху аббревиатура MÉCA из светодиодов.
 
Центр MÉCA
Центр MÉCA
Фото © Laurian Ghinitoiu

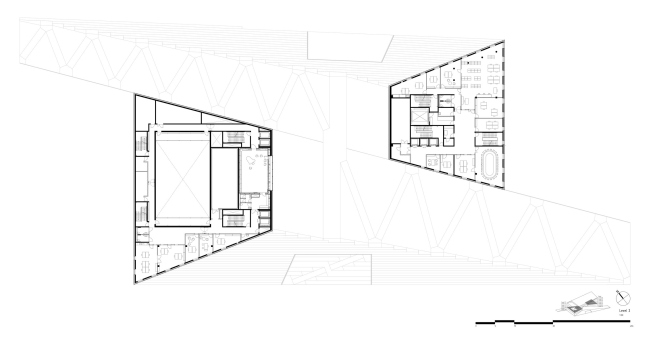
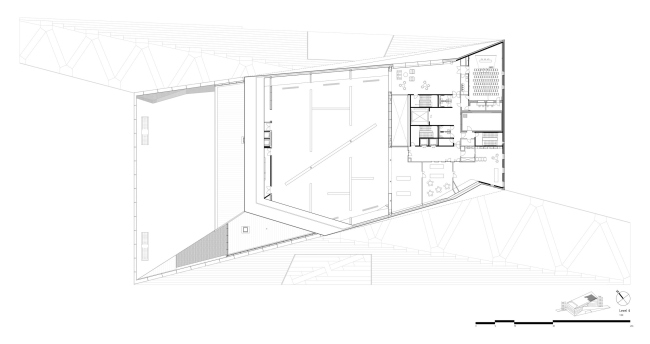
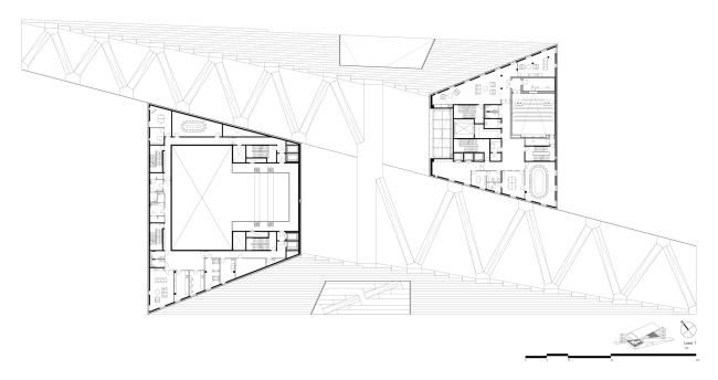
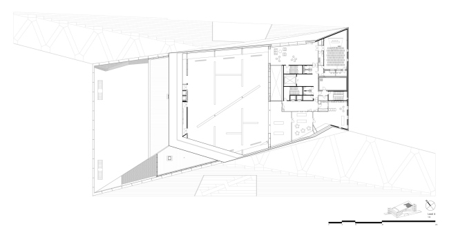
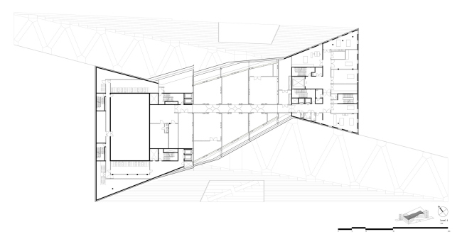
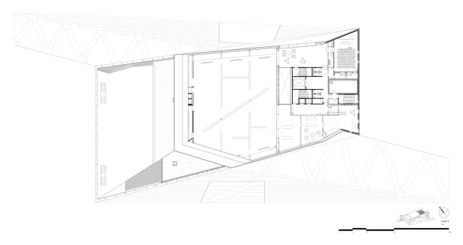
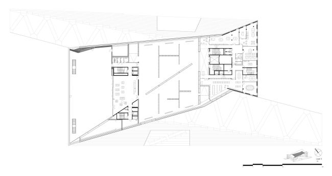
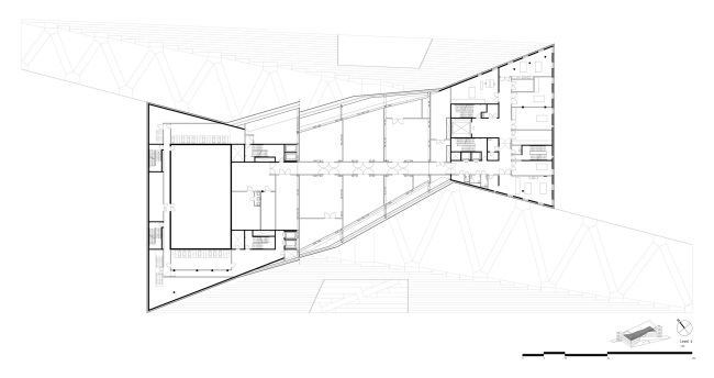
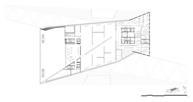
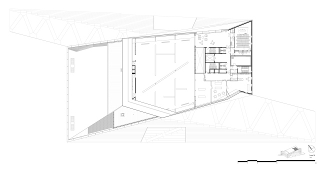
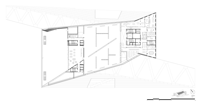
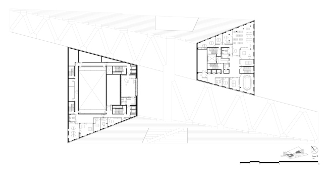
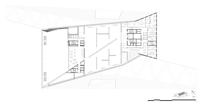
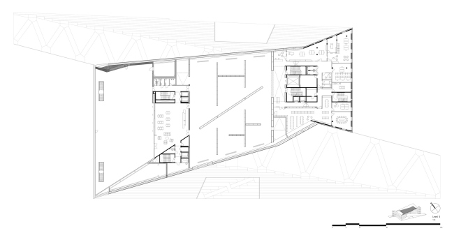
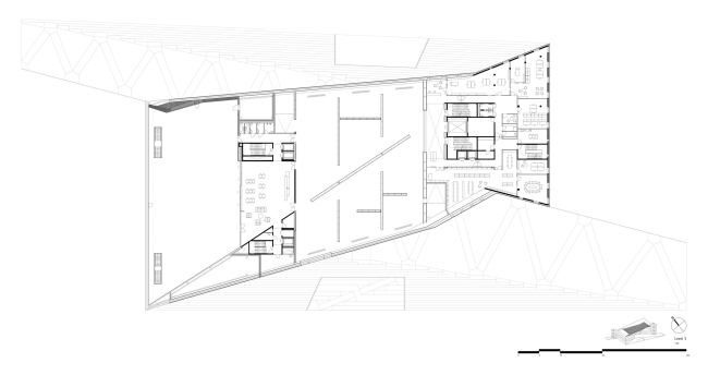
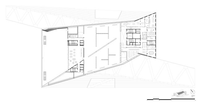
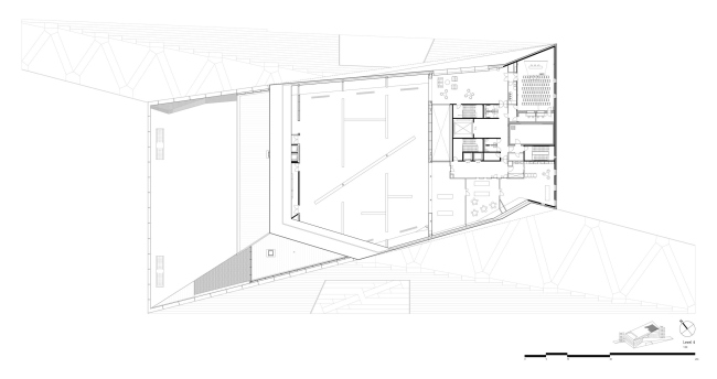
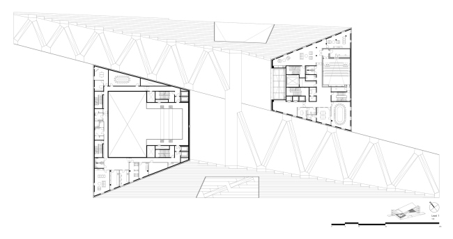
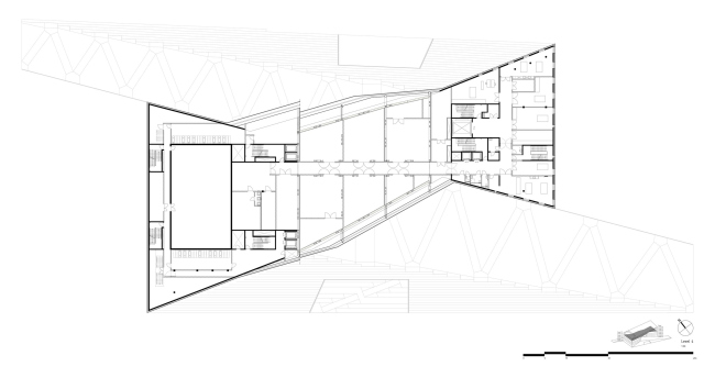
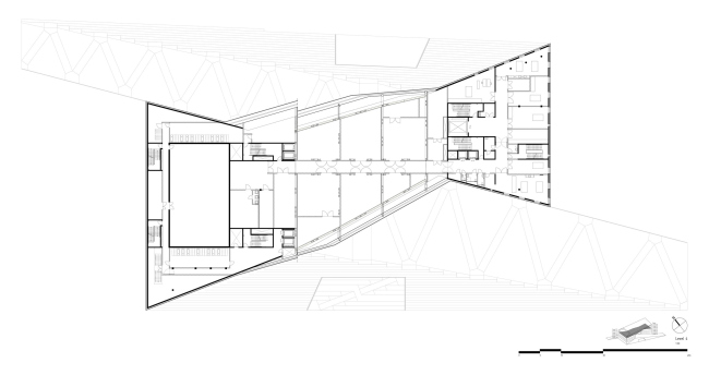
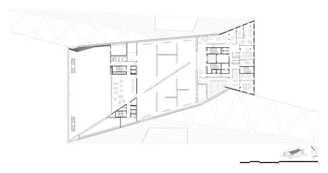
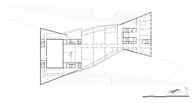
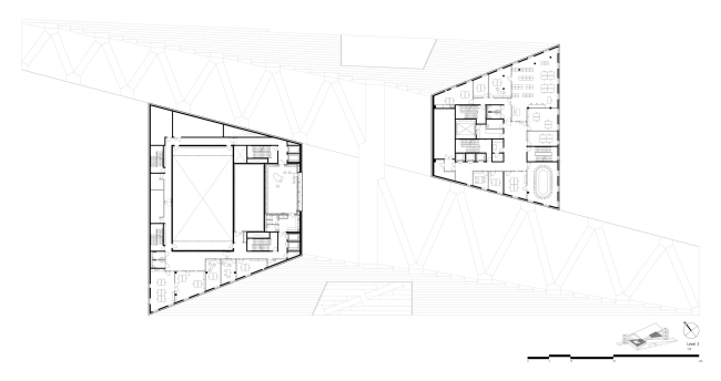
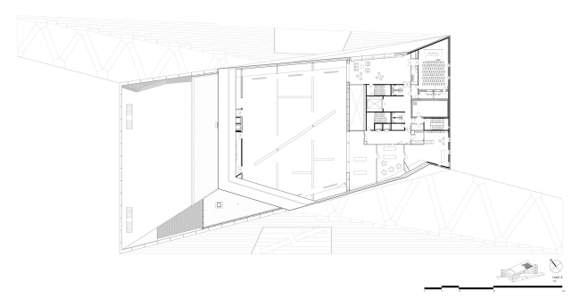
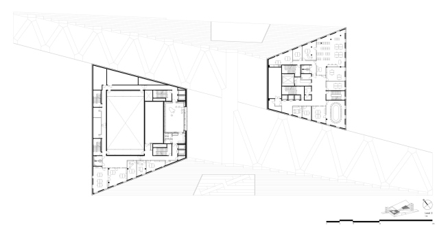
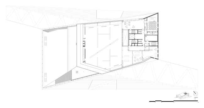
Бока «рамки» составляют, с одной стороны, пространства OARA с черным залом-трансформером на 250 мест и упомянутыми студиями, с другой – ALCA с декорированным красным кинозалом на 80 зрителей, двумя производственными студиями и «инкубатором» для проектов. Верхняя часть занята FRAC – выставочными галереями с потолками высотой 7 м, запасниками, мастерскими художников, залом на 90 человек и кафе. Терраса на крыше площадью 850 м2 подходит для инсталляций и представлений, концерты и подобные события можно устраивать и в «городской гостиной».
 
Центр MÉCA
Центр MÉCA
Фото © Laurian Ghinitoiu

На первом этаже находится главный вход MÉCA, вестибюль и ресторан Le CREM: для него архитекторы BIG создали мебель красного цвета и пробковые стулья, напомнив о виноделии, важнейшей индустрии региона.
 
Центр MÉCA
Центр MÉCA
Фото © Laurian Ghinitoiu

Фасады здания облицованы 4800 сборными бетонными панелями весом до 1,6 тонны: в их состав добавлены частицы золотистого песчаника, типичного для застройки Бордо. После обработки пескоструйными аппаратами поверхность панелей приобрела богатую фактуру, песчаник стал более заметен.
 
Центр MÉCA Фото © Laurian Ghinitoiu
Центр MÉCA
Фото © Laurian Ghinitoiu
Центр MÉCA Фото © Laurian Ghinitoiu
Центр MÉCA
Фото © Laurian Ghinitoiu
Центр MÉCA Фото © Laurian Ghinitoiu
Центр MÉCA
Фото © Laurian Ghinitoiu
Центр MÉCA Фото © Laurian Ghinitoiu
Центр MÉCA
Фото © Laurian Ghinitoiu
Центр MÉCA
Центр MÉCA
Фото © Laurian Ghinitoiu
Центр MÉCA
Центр MÉCA
Фото © Laurian Ghinitoiu
Центр MÉCA
Центр MÉCA
Фото © Laurian Ghinitoiu
Центр MÉCA
Центр MÉCA
Фото © Laurian Ghinitoiu
Центр MÉCA
Центр MÉCA
Фото © Florent Michel
Центр MÉCA
Центр MÉCA
Фото © Laurian Ghinitoiu
Центр MÉCA
Центр MÉCA
Фото © Laurian Ghinitoiu
Центр MÉCA
Центр MÉCA
Фото © Laurian Ghinitoiu
Центр MÉCA
Центр MÉCA
Фото © Laurian Ghinitoiu
Центр MÉCA
Центр MÉCA
Фото © Laurian Ghinitoiu
Центр MÉCA
Центр MÉCA
© BIG
Центр MÉCA © BIG
Центр MÉCA
© BIG
Центр MÉCA © BIG
Центр MÉCA
© BIG
Центр MÉCA © BIG
Центр MÉCA
© BIG
Центр MÉCA © BIG
Центр MÉCA
© BIG
Центр MÉCA © BIG
Центр MÉCA
© BIG
Центр MÉCA © BIG
Центр MÉCA
© BIG
Центр MÉCA © BIG
Центр MÉCA
© BIG
Центр MÉCA © BIG
Центр MÉCA
© BIG
Центр MÉCA
Центр MÉCA
© BIG
Центр MÉCA
Центр MÉCA
© BIG
Центр MÉCA
Центр MÉCA
© BIG
Центр MÉCA
Центр MÉCA
© BIG
Центр MÉCA
Центр MÉCA
© BIG
Центр MÉCA
Центр MÉCA
© BIG
Центр MÉCA
Центр MÉCA
© BIG
Центр MÉCA
Центр MÉCA
© BIG
Центр MÉCA
Центр MÉCA
© BIG
Центр MÉCA
Центр MÉCA
© BIG
Центр MÉCA
Центр MÉCA
© BIG
Центр MÉCA
Центр MÉCA
© BIG
Центр MÉCA
Центр MÉCA
© BIG
Центр MÉCA
Центр MÉCA
© BIG