Размещено на портале Архи.ру (www.archi.ru)

06.08.2019

Из кортена и бетона

Алина Измайлова

В Кишиневе открылся Центр творческих индустрий ARTCOR: проект мастерской Calujac Architecture соединяет здание 1950-х с новым корпусом.

В столице Молдовы недавно появился центр творческих индустрий под названием ARTCOR. Его основная идея – собрать под одной крышей предпринимателей, студентов, художников, чтобы стимулировать развитие культурных ресурсов страны. Проект разработало бюро кишиневского архитектора Максима Калужака. ARTCOR расположен в историческом центре города, в непосредственной близости от Государственной академии музыки, театра и изобразительных искусств, и корпус академии частично использован в его проекте.

Центр творческих индустрий ARTCOR в Кишиневе
Центр творческих индустрий ARTCOR в Кишиневе
© Volker Kreidler. Фотография предоставлена бюро Maxim Calujac

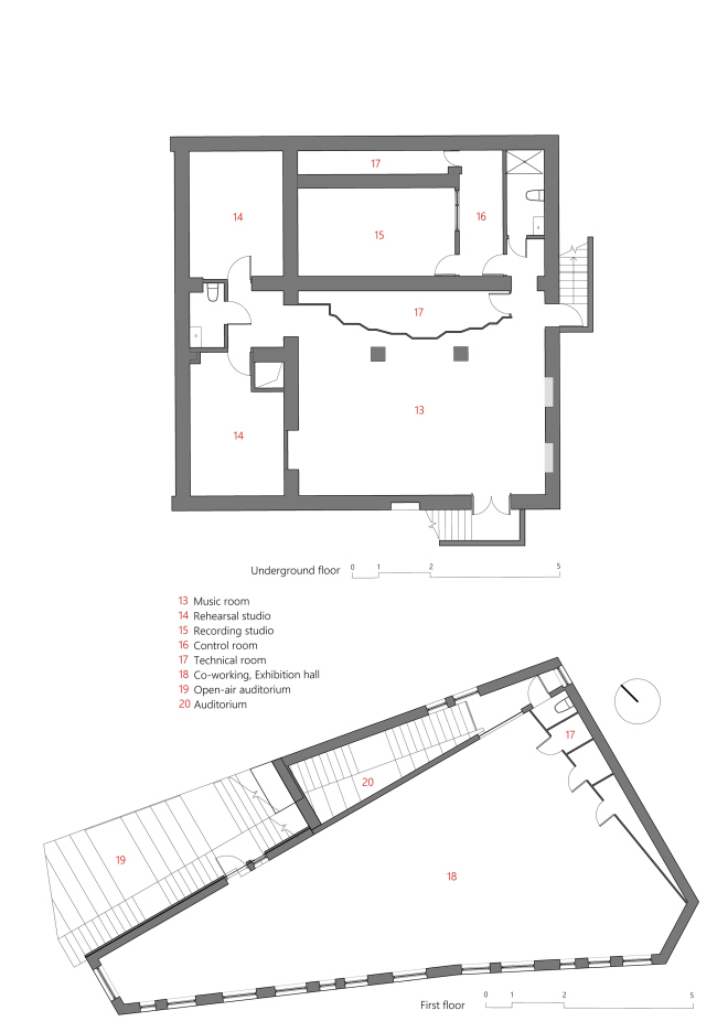
Общая площадь ARTCOR составляет 850 м2. Из них 450 «квадратов» находится непосредственно на территории академии – на первом этаже постройки 1950-х. Здесь нашлось место для мастерской, библиотеки и переговорных. Кроме того, в старом корпусе появились выделенные зоны для администрации центра, книжного магазина и лавки с объектами дизайна. Музыкальную часть, состоящую из студии звукозаписи и репетиционных залов, разместили в подвальном помещении.
Центр творческих индустрий ARTCOR в Кишиневе
Центр творческих индустрий ARTCOR в Кишиневе
© Volker Kreidler. Фотография предоставлена бюро Maxim Calujac

Оставшиеся 400 м2 разместили в новом блоке. Ему «поручили» роль многофункционального пространства, где будут происходить разного рода культурные и деловые события. Так, на первом этаже расположились выставочный зал и переговорная, на втором – еще один выставочный зал, лекционные аудитории, а также помещения для воркшопов и стартапов. Еще выше находится кровля – зеленая терраса, куда ведет лестница (она же – открытые трибуны), которую можно использовать для учебных занятий. Вид с крыши открывается на расположенную по соседству усадьбу Казимира-Кешко – памятник архитектуры конца XIX века.
Центр творческих индустрий ARTCOR в Кишиневе
Центр творческих индустрий ARTCOR в Кишиневе
© Volker Kreidler. Фотография предоставлена бюро Maxim Calujac

Новое здание для ARTCOR построено из железобетона, а по периметру закрыто листами кортеновской стали. На оставшейся бетонной части фасаде поместили барельефы в виде органов восприятия (и общения) – глаз, ртов, ушей. По мысли авторов, композиция должна напоминать о человеческой природе. Пространственное решение нового блока – в плане здание почти треугольное – продиктовано конфигурацией его участка в 1200 м2 и имеющимися рядом постройками, одна из которых – охраняемая государством усадьба семьи Казимира-Кешко.
Центр творческих индустрий ARTCOR в Кишиневе
Центр творческих индустрий ARTCOR в Кишиневе
© Volker Kreidler. Фотография предоставлена бюро Maxim Calujac

Облик интерьера определен конструктивной системой здания: тяжелый кессонный потолок, внутренние лестницы-трибуны, тонированный бетон стен.
Центр творческих индустрий ARTCOR в Кишиневе © Ivan Bezvusceac. Фотография предоставлена бюро Maxim Calujac
Центр творческих индустрий ARTCOR в Кишиневе
© Ivan Bezvusceac. Фотография предоставлена бюро Maxim Calujac
Центр творческих индустрий ARTCOR в Кишиневе © Ivan Bezvusceac. Фотография предоставлена бюро Maxim Calujac
Центр творческих индустрий ARTCOR в Кишиневе
© Ivan Bezvusceac. Фотография предоставлена бюро Maxim Calujac
Центр творческих индустрий ARTCOR в Кишиневе © Ivan Bezvusceac. Фотография предоставлена бюро Maxim Calujac
Центр творческих индустрий ARTCOR в Кишиневе
© Ivan Bezvusceac. Фотография предоставлена бюро Maxim Calujac
Центр творческих индустрий ARTCOR в Кишиневе © Ivan Bezvusceac. Фотография предоставлена бюро Maxim Calujac
Центр творческих индустрий ARTCOR в Кишиневе
© Ivan Bezvusceac. Фотография предоставлена бюро Maxim Calujac
Центр творческих индустрий ARTCOR в Кишиневе © Ivan Bezvusceac. Фотография предоставлена бюро Maxim Calujac
Центр творческих индустрий ARTCOR в Кишиневе
© Ivan Bezvusceac. Фотография предоставлена бюро Maxim Calujac

Архитекторам удалось получить дополнительные 300 м2, чтобы обустроить там общественное пространство. Для этого снесли старые склады и времянки. У входа рядом с проезжей частью поставили скульптуру «Древо знаний». Небольшая «каменная река» – не только декоративный элемент и «дорожная разметка», выделяющая маршрут для прогулок, но и часть ливневой канализации.
Центр творческих индустрий ARTCOR в Кишиневе © Ivan Bezvusceac. Фотография предоставлена бюро Maxim Calujac
Центр творческих индустрий ARTCOR в Кишиневе
© Ivan Bezvusceac. Фотография предоставлена бюро Maxim Calujac
Центр творческих индустрий ARTCOR в Кишиневе © Volker Kreidler. Фотография предоставлена бюро Maxim Calujac
Центр творческих индустрий ARTCOR в Кишиневе
© Volker Kreidler. Фотография предоставлена бюро Maxim Calujac
Центр творческих индустрий ARTCOR в Кишиневе © Volker Kreidler. Фотография предоставлена бюро Maxim Calujac
Центр творческих индустрий ARTCOR в Кишиневе
© Volker Kreidler. Фотография предоставлена бюро Maxim Calujac
Центр творческих индустрий ARTCOR в Кишиневе © Ivan Bezvusceac. Фотография предоставлена бюро Maxim Calujac
Центр творческих индустрий ARTCOR в Кишиневе
© Ivan Bezvusceac. Фотография предоставлена бюро Maxim Calujac
Центр творческих индустрий ARTCOR в Кишиневе © Volker Kreidler. Фотография предоставлена бюро Maxim Calujac
Центр творческих индустрий ARTCOR в Кишиневе
© Volker Kreidler. Фотография предоставлена бюро Maxim Calujac

Проект участвует в премии, организованной порталом ArchDaily, КБ Стрелка и институтом «Стрелка». В конкурсе могут участвовать молодые архитектурные бюро с постсоветского пространства. Имена трех победителей станут известны 19 августа.
Центр творческих индустрий ARTCOR в Кишиневе © Volker Kreidler. Фотография предоставлена бюро Maxim Calujac
Центр творческих индустрий ARTCOR в Кишиневе
© Volker Kreidler. Фотография предоставлена бюро Maxim Calujac
Центр творческих индустрий ARTCOR в Кишиневе © Volker Kreidler. Фотография предоставлена бюро Maxim Calujac
Центр творческих индустрий ARTCOR в Кишиневе
© Volker Kreidler. Фотография предоставлена бюро Maxim Calujac
Центр творческих индустрий ARTCOR в Кишиневе © Volker Kreidler. Фотография предоставлена бюро Maxim Calujac
Центр творческих индустрий ARTCOR в Кишиневе
© Volker Kreidler. Фотография предоставлена бюро Maxim Calujac
Центр творческих индустрий ARTCOR в Кишиневе
Центр творческих индустрий ARTCOR в Кишиневе
© Volker Kreidler. Фотография предоставлена бюро Maxim Calujac
Центр творческих индустрий ARTCOR в Кишиневе
Центр творческих индустрий ARTCOR в Кишиневе
© Ivan Bezvusceac. Фотография предоставлена бюро Maxim Calujac
Центр творческих индустрий ARTCOR в Кишиневе
Центр творческих индустрий ARTCOR в Кишиневе
© Ivan Bezvusceac. Фотография предоставлена бюро Maxim Calujac
Центр творческих индустрий ARTCOR в Кишиневе
Центр творческих индустрий ARTCOR в Кишиневе
© Volker Kreidler. Фотография предоставлена бюро Maxim Calujac
Центр творческих индустрий ARTCOR в Кишиневе
Центр творческих индустрий ARTCOR в Кишиневе
© Volker Kreidler. Фотография предоставлена бюро Maxim Calujac
Центр творческих индустрий ARTCOR в Кишиневе
Центр творческих индустрий ARTCOR в Кишиневе
© Volker Kreidler. Фотография предоставлена бюро Maxim Calujac
Центр творческих индустрий ARTCOR в Кишиневе
Центр творческих индустрий ARTCOR в Кишиневе
© Volker Kreidler. Фотография предоставлена бюро Maxim Calujac
Центр творческих индустрий ARTCOR в Кишиневе
Центр творческих индустрий ARTCOR в Кишиневе
© Ivan Bezvusceac. Фотография предоставлена бюро Maxim Calujac
Центр творческих индустрий ARTCOR в Кишиневе
Центр творческих индустрий ARTCOR в Кишиневе
© Volker Kreidler. Фотография предоставлена бюро Maxim Calujac
Центр творческих индустрий ARTCOR в Кишиневе
Центр творческих индустрий ARTCOR в Кишиневе
© Ivan Bezvusceac. Фотография предоставлена бюро Maxim Calujac
Центр творческих индустрий ARTCOR в Кишиневе
Центр творческих индустрий ARTCOR в Кишиневе
© Volker Kreidler. Фотография предоставлена бюро Maxim Calujac
Центр творческих индустрий ARTCOR в Кишиневе
Центр творческих индустрий ARTCOR в Кишиневе
© Volker Kreidler. Фотография предоставлена бюро Maxim Calujac
Центр творческих индустрий ARTCOR в Кишиневе
Центр творческих индустрий ARTCOR в Кишиневе
© Volker Kreidler. Фотография предоставлена бюро Maxim Calujac
Центр творческих индустрий ARTCOR в Кишиневе
Центр творческих индустрий ARTCOR в Кишиневе
© Ivan Bezvusceac. Фотография предоставлена бюро Maxim Calujac
Центр творческих индустрий ARTCOR в Кишиневе
Центр творческих индустрий ARTCOR в Кишиневе
© Ivan Bezvusceac. Фотография предоставлена бюро Maxim Calujac
Центр творческих индустрий ARTCOR в Кишиневе
Центр творческих индустрий ARTCOR в Кишиневе
© Ivan Bezvusceac. Фотография предоставлена бюро Maxim Calujac
Центр творческих индустрий ARTCOR в Кишиневе
Центр творческих индустрий ARTCOR в Кишиневе
© Maxim Calujac
Центр творческих индустрий ARTCOR в Кишиневе. Разрез
Центр творческих индустрий ARTCOR в Кишиневе. Разрез
© Maxim Calujac
Центр творческих индустрий ARTCOR в Кишиневе. План подземного этажа, план второго этажа,
Центр творческих индустрий ARTCOR в Кишиневе. План подземного этажа, план второго этажа,
© Maxim Calujac
Центр творческих индустрий ARTCOR в Кишиневе. План первых этажей обоих зданий
Центр творческих индустрий ARTCOR в Кишиневе. План первых этажей обоих зданий
© Maxim Calujac
Центр творческих индустрий ARTCOR в Кишиневе. План местности
Центр творческих индустрий ARTCOR в Кишиневе. План местности
© Maxim Calujac