Размещено на портале Архи.ру (www.archi.ru)

01.08.2019

Окна в большой мир

Нина Фролова
Объект:
Дом престарелых Санта-Каза-ди-Мизерикордия
Адрес:
Португалия, None, Понти-ди-Сор.

Дом престарелых в Понти-ди-Сор в центральной Португалии по проекту архитектора Нуну Пиедади Алешандри.

Дом престарелых Санта-Каза-ди-Мизерикордия
Дом престарелых Санта-Каза-ди-Мизерикордия
Фото © João Morgado

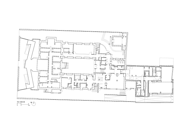
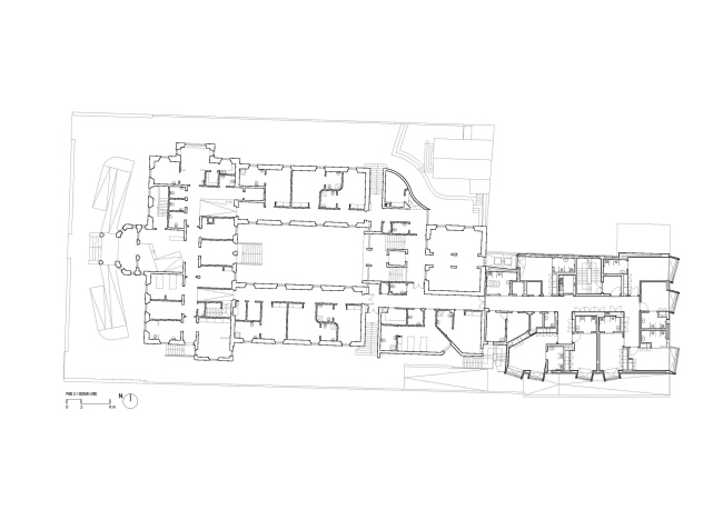
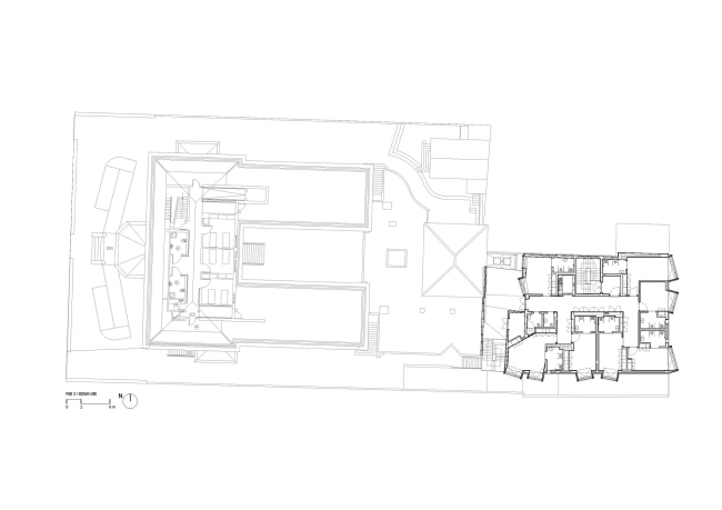
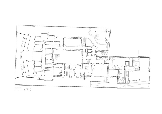
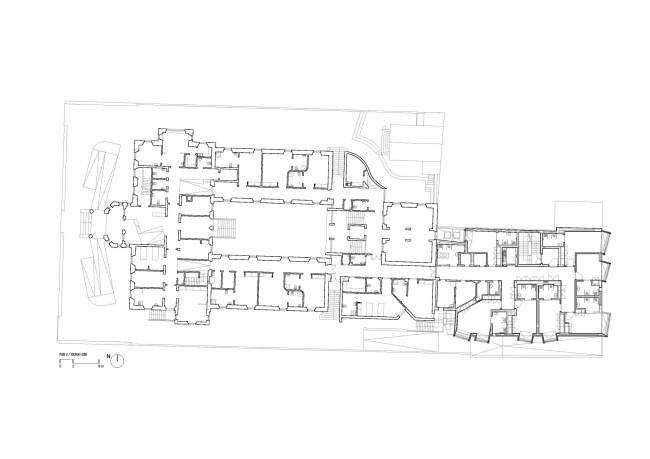
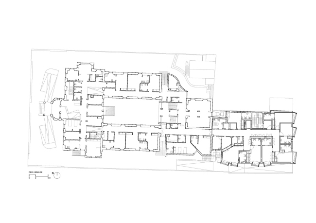
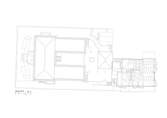
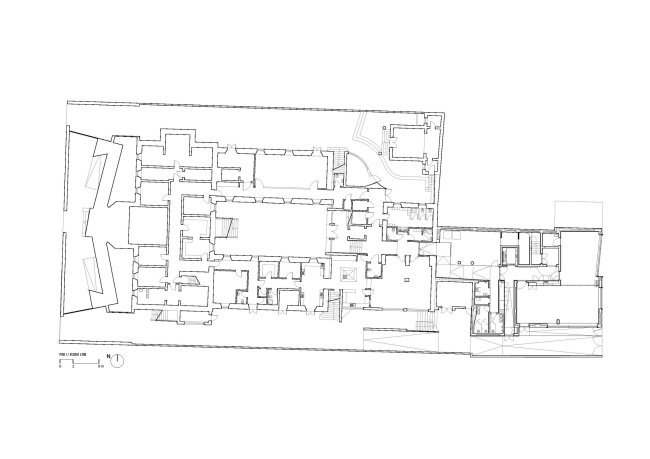
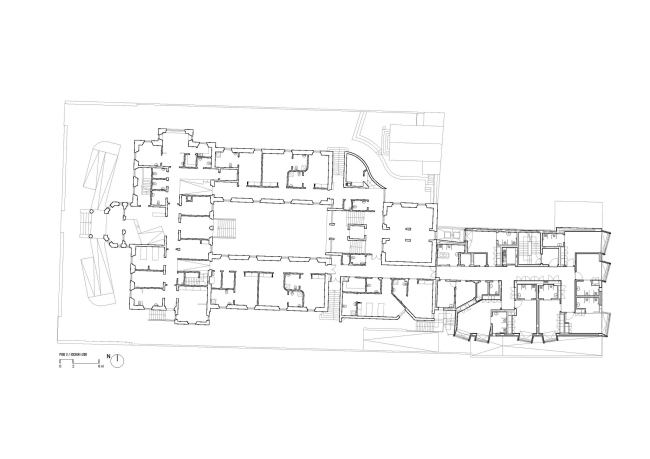
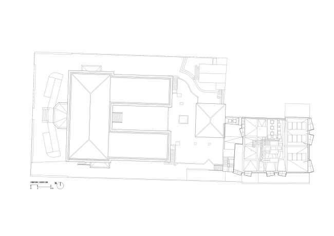
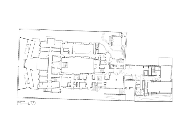
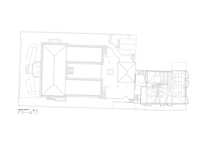
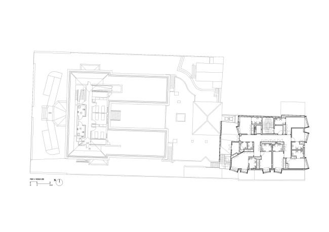
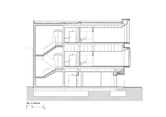
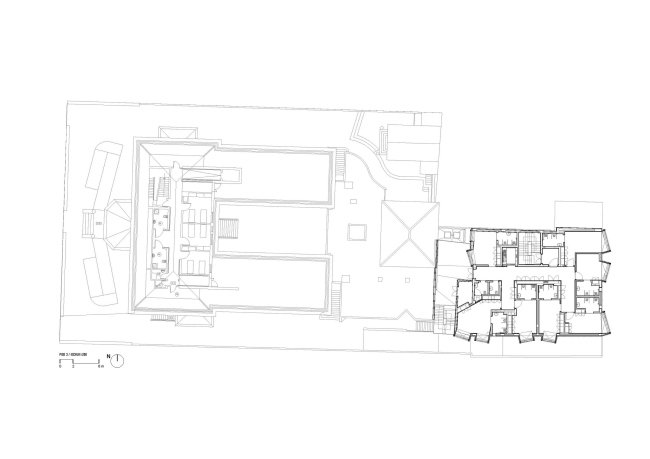
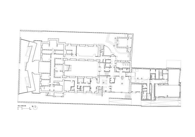
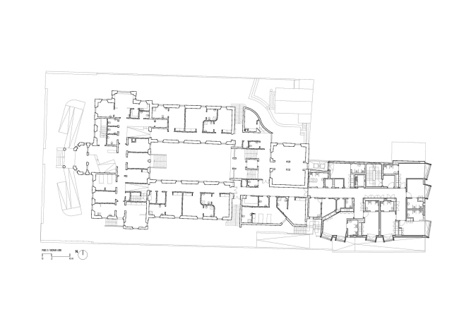
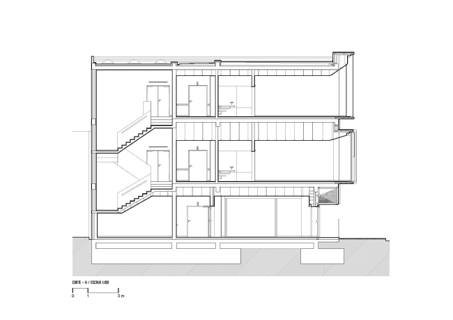
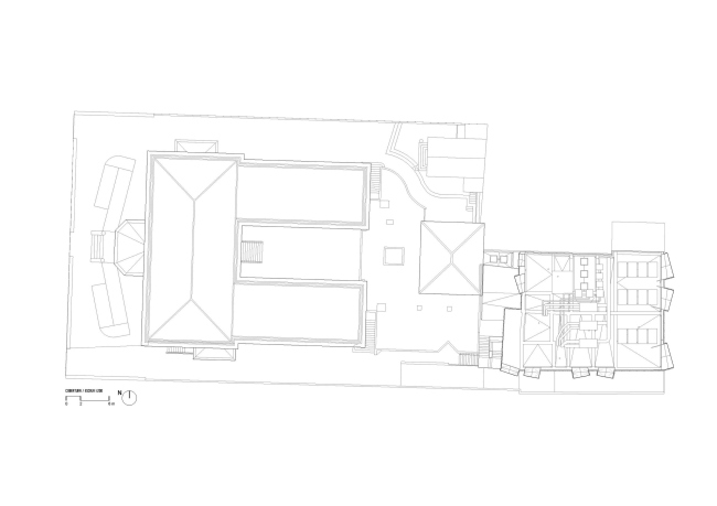
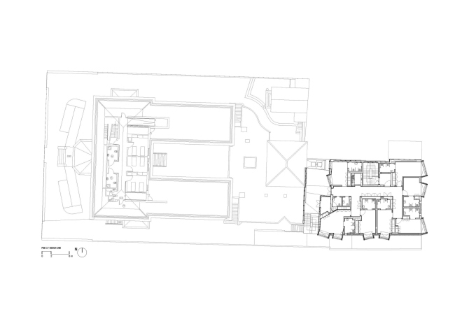
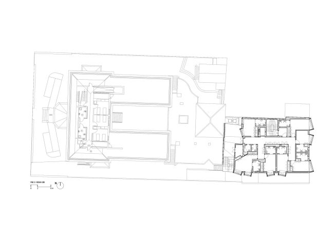
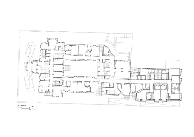
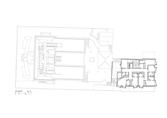
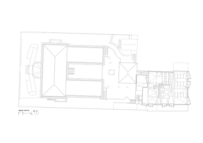
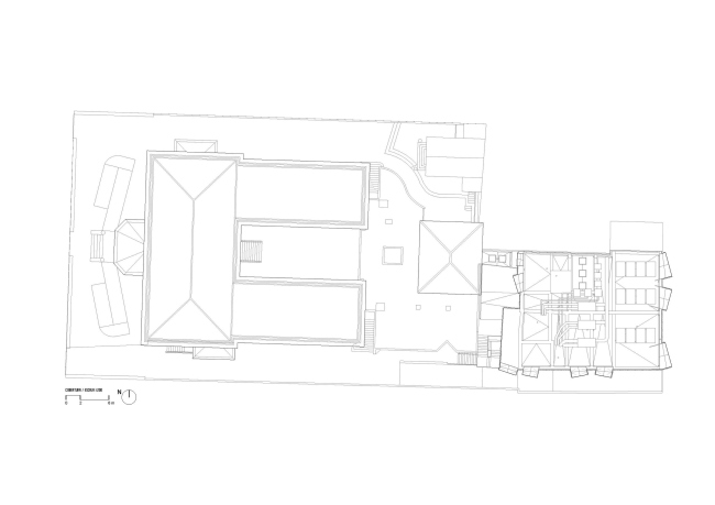
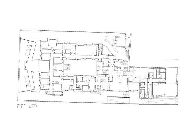
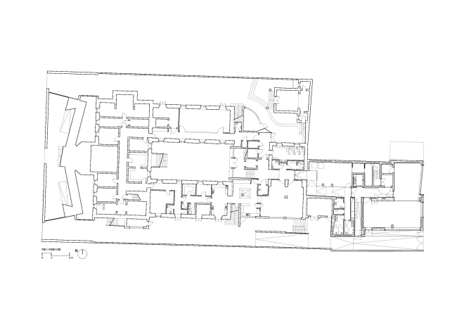
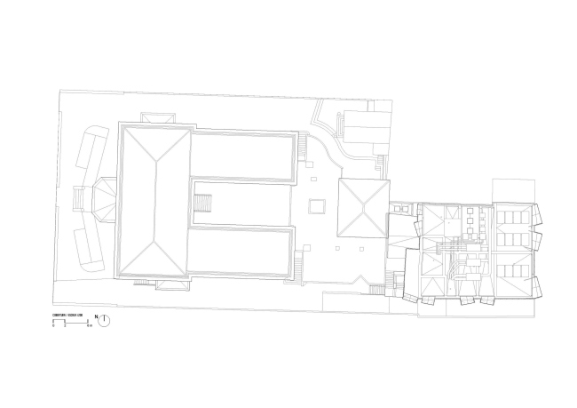
Новый корпус для существующего дома престарелых должен ликвидировать там дефицит площадей. Он вписан в остававшийся свободным угол участка и обращен на противоположную главному зданию улицу, точнее, зеленую набережную реки Сор. Между старой и новой частями созданы переходы.
 
Дом престарелых Санта-Каза-ди-Мизерикордия Фото © João Morgado
Дом престарелых Санта-Каза-ди-Мизерикордия
Фото © João Morgado
Дом престарелых Санта-Каза-ди-Мизерикордия Фото © João Morgado
Дом престарелых Санта-Каза-ди-Мизерикордия
Фото © João Morgado
Дом престарелых Санта-Каза-ди-Мизерикордия Фото © João Morgado
Дом престарелых Санта-Каза-ди-Мизерикордия
Фото © João Morgado
Дом престарелых Санта-Каза-ди-Мизерикордия Фото © João Morgado
Дом престарелых Санта-Каза-ди-Мизерикордия
Фото © João Morgado
Дом престарелых Санта-Каза-ди-Мизерикордия
Дом престарелых Санта-Каза-ди-Мизерикордия
Фото © João Morgado
Дом престарелых Санта-Каза-ди-Мизерикордия
Дом престарелых Санта-Каза-ди-Мизерикордия
Фото © João Morgado

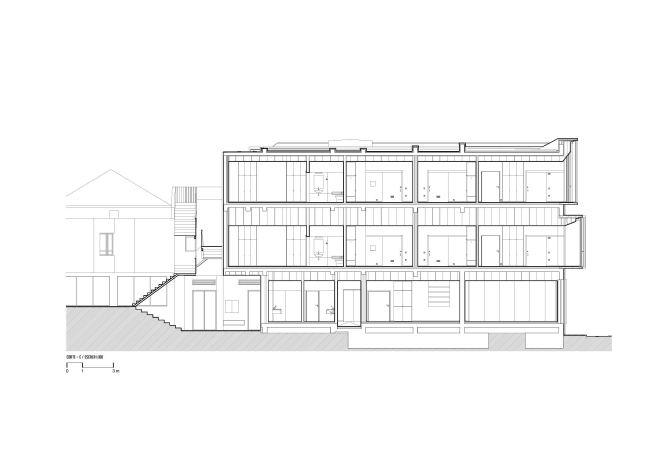
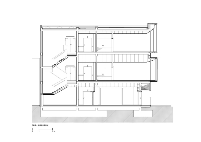
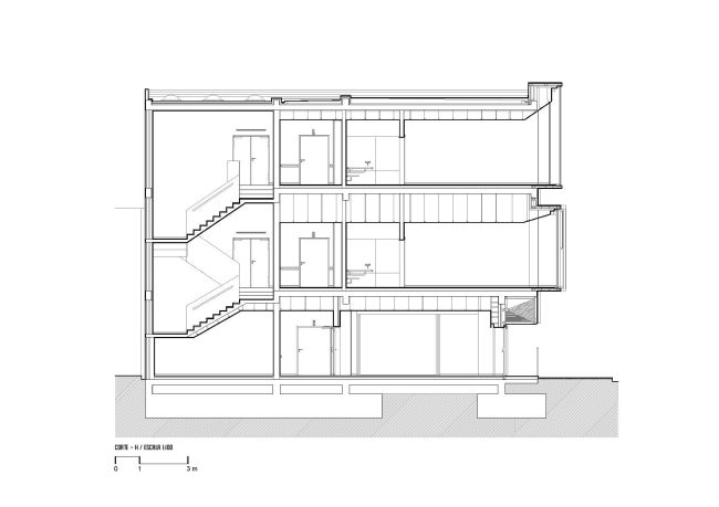
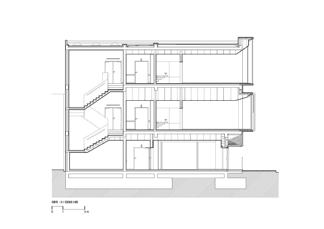
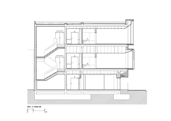
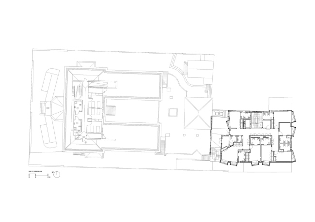
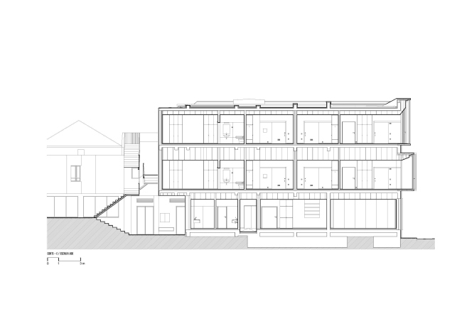
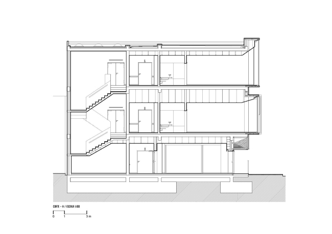
В современном здании 10 двойных и 4 одноместных комнат, каждая – со всеми необходимыми удобствами. Обусловленную размером участка компактность здания архитектор постарался нейтрализовать с помощью увеличенных оконных проемов. При высоте потолков в помещениях 2,7 м эти проемы достигают 3,5 – 4,5 м. В результате, они обеспечивают интерьеры солнечным светом (в жаркое время суток их, конечно, можно закрыть), а также видами города и зелени. Все это увеличивает уровень комфорта как пациентов, так и персонала.
 
Дом престарелых Санта-Каза-ди-Мизерикордия
Дом престарелых Санта-Каза-ди-Мизерикордия
Фото © João Morgado
Дом престарелых Санта-Каза-ди-Мизерикордия
Дом престарелых Санта-Каза-ди-Мизерикордия
Фото © João Morgado
Дом престарелых Санта-Каза-ди-Мизерикордия Фото © João Morgado
Дом престарелых Санта-Каза-ди-Мизерикордия
Фото © João Morgado
Дом престарелых Санта-Каза-ди-Мизерикордия Фото © João Morgado
Дом престарелых Санта-Каза-ди-Мизерикордия
Фото © João Morgado
Дом престарелых Санта-Каза-ди-Мизерикордия Фото © João Morgado
Дом престарелых Санта-Каза-ди-Мизерикордия
Фото © João Morgado
Дом престарелых Санта-Каза-ди-Мизерикордия Фото © João Morgado
Дом престарелых Санта-Каза-ди-Мизерикордия
Фото © João Morgado
Дом престарелых Санта-Каза-ди-Мизерикордия Фото © João Morgado
Дом престарелых Санта-Каза-ди-Мизерикордия
Фото © João Morgado
Дом престарелых Санта-Каза-ди-Мизерикордия Фото © João Morgado
Дом престарелых Санта-Каза-ди-Мизерикордия
Фото © João Morgado

С формальной точки зрения такие «эркеры» придают зданию скульптурность, подчеркивают его вертикальную направленность в окружении деревьев и выделяют во фронте застройки.
Дом престарелых Санта-Каза-ди-Мизерикордия
Дом престарелых Санта-Каза-ди-Мизерикордия
Фото © João Morgado
Дом престарелых Санта-Каза-ди-Мизерикордия
Дом престарелых Санта-Каза-ди-Мизерикордия
Фото © João Morgado
Дом престарелых Санта-Каза-ди-Мизерикордия
Дом престарелых Санта-Каза-ди-Мизерикордия
Фото © João Morgado
Дом престарелых Санта-Каза-ди-Мизерикордия
Дом престарелых Санта-Каза-ди-Мизерикордия
Фото © João Morgado
Дом престарелых Санта-Каза-ди-Мизерикордия
Дом престарелых Санта-Каза-ди-Мизерикордия
Фото © João Morgado
Дом престарелых Санта-Каза-ди-Мизерикордия
Дом престарелых Санта-Каза-ди-Мизерикордия
© Nuno Piedade Alexandre
Дом престарелых Санта-Каза-ди-Мизерикордия
Дом престарелых Санта-Каза-ди-Мизерикордия
© Nuno Piedade Alexandre
Дом престарелых Санта-Каза-ди-Мизерикордия
Дом престарелых Санта-Каза-ди-Мизерикордия
© Nuno Piedade Alexandre
Дом престарелых Санта-Каза-ди-Мизерикордия
Дом престарелых Санта-Каза-ди-Мизерикордия
© Nuno Piedade Alexandre
Дом престарелых Санта-Каза-ди-Мизерикордия
Дом престарелых Санта-Каза-ди-Мизерикордия
© Nuno Piedade Alexandre
Дом престарелых Санта-Каза-ди-Мизерикордия
Дом престарелых Санта-Каза-ди-Мизерикордия
© Nuno Piedade Alexandre
Дом престарелых Санта-Каза-ди-Мизерикордия
Дом престарелых Санта-Каза-ди-Мизерикордия
© Nuno Piedade Alexandre
Дом престарелых Санта-Каза-ди-Мизерикордия
Дом престарелых Санта-Каза-ди-Мизерикордия
© Nuno Piedade Alexandre