Размещено на портале Архи.ру (www.archi.ru)

29.07.2019

Право на площадь

Нина Фролова
Объект:
Площадь Пантеона – реконструкция
Адрес:
Франция, None, Париж.
Мастерская:
Emma Blanc Paysage

Архитекторы из команды Les MonumentalEs «вернули» горожанам площадь Пантеона в центре Парижа, при этом расширив ее функции и аудиторию.

Площадь Пантеона – реконструкция
Площадь Пантеона – реконструкция
Фото © Philippe Ruault

Старт проекту дала мэр Парижа Анн Идальго, запустив в 2015 программу «Переосмыслим наши площади», охватившую семь пространств в центре города. Ее цель – отдать площади Мадлен, Пантеона, Бастилии и т.д. пешеходам, велосипедистам, общественному транспорту, и уменьшить там число автомобилей: это улучшит экологическую ситуацию и понизит уровень стресса у горожан.

Команда Les MonumentalEs во главе с ландшафтными архитекторами Emma Blanc Paysage включает также архитекторов и строителей Collectif Etc, графического дизайнера Эммануэль Гийяр (Emmanuelle Guyard), специалистов по гендерным вопросам Genre et Ville, бюро по социальной интеграции и устойчивости Albert & Co. Этой команде были поручены площади Пантеона и Мадлен.
 
Площадь Пантеона до реконструкции Фото © Les MonumentalEs
Площадь Пантеона до реконструкции
Фото © Les MonumentalEs
Площадь Пантеона до реконструкции Фото © Les MonumentalEs
Площадь Пантеона до реконструкции
Фото © Les MonumentalEs
Площадь Пантеона до реконструкции Фото © Collectif Etc – Lucas Bonnel
Площадь Пантеона до реконструкции
Фото © Collectif Etc – Lucas Bonnel
Площадь Пантеона до реконструкции Фото © Les MonumentalEs
Площадь Пантеона до реконструкции
Фото © Les MonumentalEs

Огромный Пантеон служит усыпальницей выдающихся людей Франции; площадь вокруг него воспринималась как созданная по остаточному принципу. По ней двигались или по периметру, или обходили за оградой Пантеона. Архитекторы стали следить за ситуацией и выяснили, что на площади в основном проводят время учащиеся расположенных неподалеку вузов и коллежей, а также посещающие Пантеон туристы. Жители окрестных кварталов и горожане иных возрастных и социальных групп там не появлялись. Также было замечено, что женщины, в отличие от мужчин, почти не проводят там время в одиночку, то есть надо было придумать, как сделать пространство комфортным и привлекательным для них.
 
Площадь Пантеона – реконструкция
Площадь Пантеона – реконструкция
Фото © Philippe Ruault
Площадь Пантеона – реконструкция
Площадь Пантеона – реконструкция
Фото © Samuel Colin-Canivez
Площадь Пантеона – реконструкция
Площадь Пантеона – реконструкция
Фото © Philippe Ruault

Целями проекта было восстановить связи между Пантеоном и периметром площади, сделать ее более живой и приятной, дать больше пространства пешеходам, создать новую программу для общественного пространства, иначе организовать парковку, ввести озеленение.
 
Площадь Пантеона – реконструкция
Площадь Пантеона – реконструкция
Фото © Philippe Ruault
Площадь Пантеона – реконструкция
Площадь Пантеона – реконструкция
Фото © Philippe Ruault
Площадь Пантеона – реконструкция
Площадь Пантеона – реконструкция
Фото © Samuel Colin-Canivez

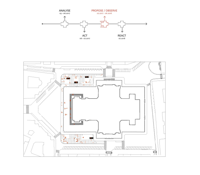
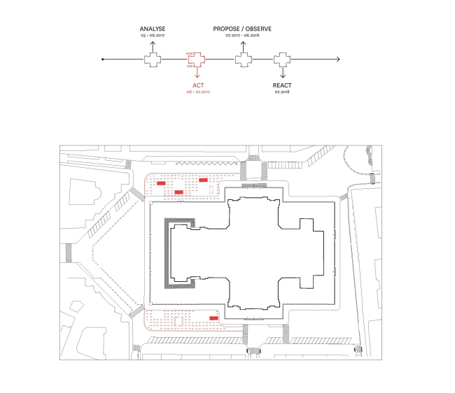
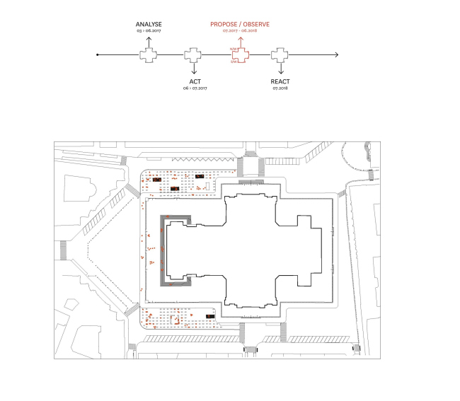
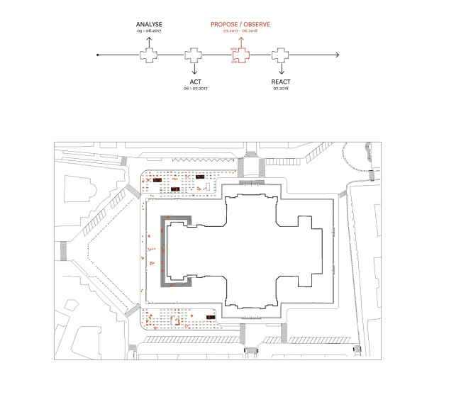
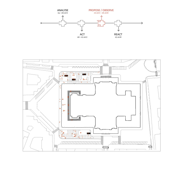
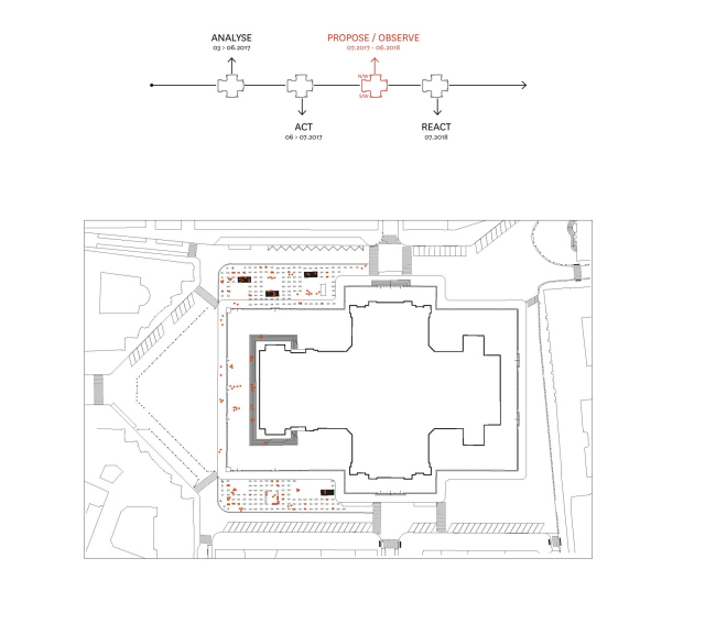
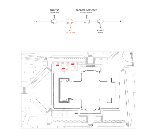
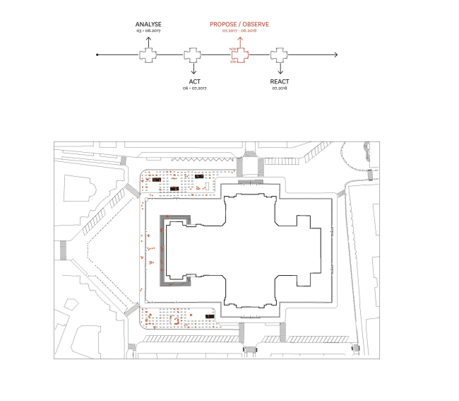
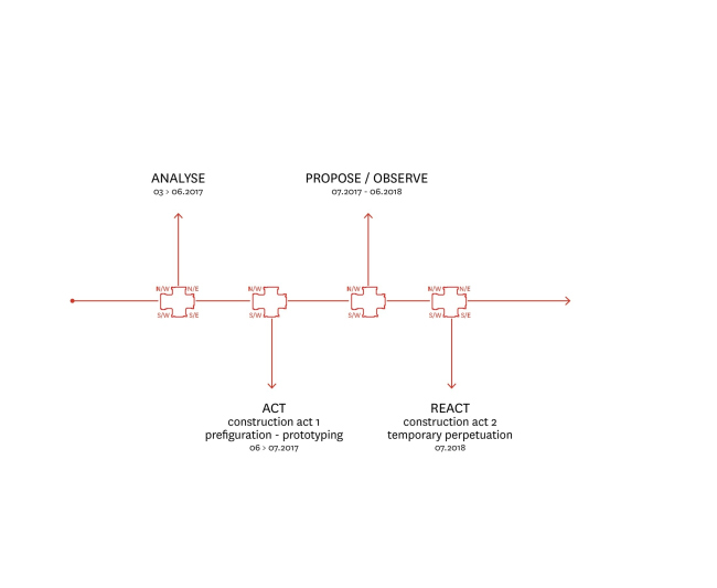
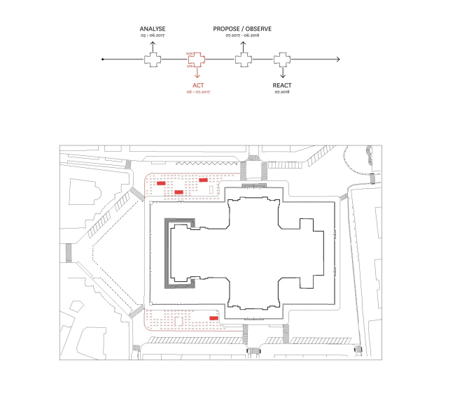
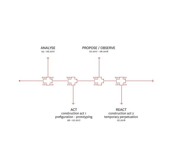
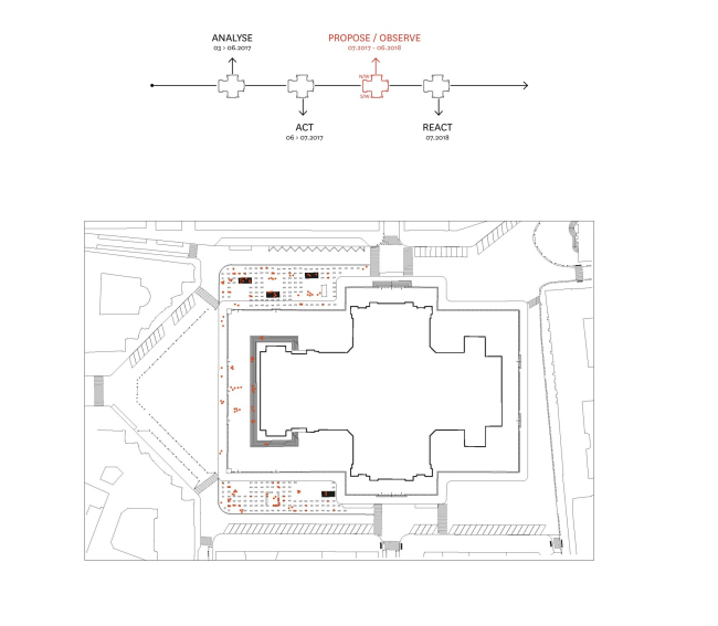
Анализ весной 2017-го стал первым этапом работы архитекторов, обосновавшихся на площади в контейнере-киоске (такие были выделены мэрией для всех семи объектов программы Идальго). Затем, летом, был реализован пробный проект – для тестирования идей архитекторов и сбора отзывов горожан. Важным принципом был максимум вариантов использования при минимуме средств. «Вторсырье» для него нашлось на складах столичной администрации: гранитный бортовой камень был использован в виде скамей на деревянных подставках или же как опоры для деревянных же платформ. Еще одной формой городской мебели стал длинный стол с лавками. В качестве спинок на платформах применили еще одну находку на складе – ренессансные маскароны с Нового моста (Пон-Неф), которые заменили на новые при его перестройке в XIX веке.
 
Площадь Пантеона – реконструкция. Пробный этап
Площадь Пантеона – реконструкция. Пробный этап
Фото © Les MonumentalEs

Материалы вполне соответствуют окружению (на площади гранитное мощение, здания вокруг облицованы песчаником). Предметы мебели расположили по прямоугольной сетке – вполне в духе классицистического Пантеона. Реализацией занималась фирма Albert & Co, которая обучает и трудоустраивает людей, нуждающихся в социальной интеграции.
 
Площадь Пантеона – реконструкция. Пробный этап
Площадь Пантеона – реконструкция. Пробный этап
Фото © Collectif Etc – Lucas Bonnel

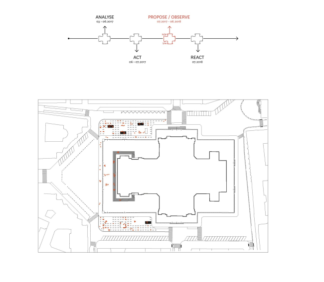
Ограничение движения автомобилей сразу снизило уровень шума (и при этом ощущения небезопасности), что важно для качественного общественного пространства. Были продуманы варианты маршрутов через площадь – на выбор пешеходов, а также созданы отдельные зоны по типу «меблировки». Блоки-скамьи понравились парам или одиночкам, на платформах располагались группы или пары. Зато длинный стол привлек сразу всех пользователей, включая «самостоятельных» женщин, что сделало его местом общения между незнакомыми людьми.
 
Площадь Пантеона – реконструкция. Пробный этап. Воркшоп-консультация с горожанами
Площадь Пантеона – реконструкция. Пробный этап. Воркшоп-консультация с горожанами
Фото © Les MonumentalEs

Площадь стали использовать для отдыха, чтения, выполнения домашнего задания или работы, а также для ланча на свежем воздухе. К студентам и туристам присоединились «обычные» парижане. Архитекторы организовали серию круглых столов на тему нового использования пространства и тактического урбанизма, на площади выступали артисты балета, художники, диджеи, оркестры и т.д. Были проведены воркшопы и консультации с горожанами, также авторы проекта поработали с учениками начальной школы. Особое место заняла феминистская повестка дня: в Пантеоне до сих пор было похоронено всего пять женщин, поэтому на одном из воркшопов на камнях площади участники написали имена выдающихся женщин, воспроизвели работу Джуди Чикаго «Званый ужин». Этим летом на деревянные части мебели Les MonumentalEs имена 200 женщин всех социальных групп, культур и эпох, отобранные специальным научным комитетом, нанесли уже перманентно в рамках арт-проекта Клэр Курдаво (Claire Courdavault).
 
Площадь Пантеона – реконструкция
Площадь Пантеона – реконструкция
Фото © Les MonumentalEs

Окончательный вариант проекта был реализован к июлю 2018 года. В отличие от пробной версии, стали более узкими доски платформ, там появились спинки и металлические каркасы. Мастера из городской администрации попросили скорректировать крепеж для более удобного ремонта, что и было сделано. Всем опрошенным горожанам хотелось озеленить площадь, однако охрана памятников не разрешила посадить там растения, поэтому пришлось пока ограничиться 40 деревьями в «вазонах».
Площадь Пантеона – реконструкция
Площадь Пантеона – реконструкция
Фото © Les MonumentalEs
Площадь Пантеона – реконструкция. Реализация пробного этапа
Площадь Пантеона – реконструкция. Реализация пробного этапа
Фото © Collectif Etc – Lucas Bonnel
Площадь Пантеона – реконструкция. Реализация пробного этапа
Площадь Пантеона – реконструкция. Реализация пробного этапа
Фото © Collectif Etc – Lucas Bonnel
Площадь Пантеона – реконструкция. Реализация пробного этапа
Площадь Пантеона – реконструкция. Реализация пробного этапа
Фото © Collectif Etc – Lucas Bonnel
Площадь Пантеона – реконструкция. Культурные мероприятия
Площадь Пантеона – реконструкция. Культурные мероприятия
Фото © Les MonumentalEs
Площадь Пантеона – реконструкция. Культурные мероприятия
Площадь Пантеона – реконструкция. Культурные мероприятия
Фото © Collectif Etc – Lucas Bonnel
Площадь Пантеона – реконструкция. Культурные мероприятия
Площадь Пантеона – реконструкция. Культурные мероприятия
Фото © Les MonumentalEs
Площадь Пантеона – реконструкция. Культурные мероприятия
Площадь Пантеона – реконструкция. Культурные мероприятия
Фото © Collectif Etc – Lucas Bonnel
Площадь Пантеона – реконструкция. Культурные мероприятия
Площадь Пантеона – реконструкция. Культурные мероприятия
Фото © Collectif Etc – Lucas Bonnel
Площадь Пантеона – реконструкция
Площадь Пантеона – реконструкция
© Les MonumentalEs
Площадь Пантеона – реконструкция
Площадь Пантеона – реконструкция
© Les MonumentalEs
Площадь Пантеона – реконструкция
Площадь Пантеона – реконструкция
© Les MonumentalEs
Площадь Пантеона – реконструкция
Площадь Пантеона – реконструкция
© Les MonumentalEs
Площадь Пантеона – реконструкция
Площадь Пантеона – реконструкция
© Les MonumentalEs
Площадь Пантеона – реконструкция
Площадь Пантеона – реконструкция
© Les MonumentalEs
Площадь Пантеона – реконструкция
Площадь Пантеона – реконструкция
© Les MonumentalEs