Размещено на портале Архи.ру (www.archi.ru)

16.07.2019

Местные продукты и материалы

Нина Фролова
Объект:
Японский ресторан Yamasen
Адрес:
Уганда, None, Кампала.
Мастерская:
Terrain Architects

Ресторан Yamasen в столице Уганды Кампале по проекту японского бюро Terrain выстроен из древесины эвкалипта и покрыт соломой.

Японский ресторан Yamasen
Японский ресторан Yamasen
Фото © Timothy Latim

Ресторан японской кухни Yamasen расположен в жилом районе – пригороде Кампалы; кроме собственно ресторана и кафе в здании также находится небольшой магазин. Идея заведения – обратить внимание посетителей на качественные местные продукты. Архитектура продолжает эту линию: бюро Terrain выбрало для строительства местные материалы, использовало угандийских рабочих, которые в процессе смогли освоить новые навыки. Кроме того, особые усилия были приложены к тому, чтобы сохранить растущие на участке пять деревьев.
 
Японский ресторан Yamasen
Японский ресторан Yamasen
Фото © Timothy Latim

Первый этаж и подземная часть с гаражом выполнены из бетона, выше использовано дерево, объемную кровлю покрыли соломой. Эвкалипт обычно используют только для стропил и лесов, так как эта древесина часто усыхает, гнется и трескается. Однако архитекторам Terrain удалось избежать этих проблем путем улучшения процесса сушки и распилки, как затем и использования тяжелой строительной техники.
 
Японский ресторан Yamasen
Японский ресторан Yamasen
Фото © Timothy Latim

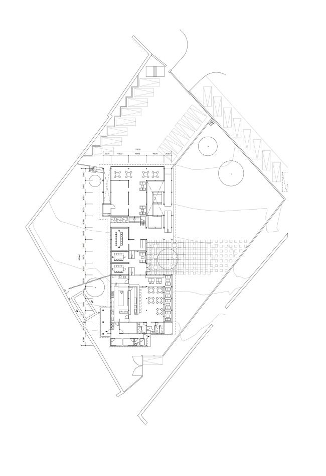
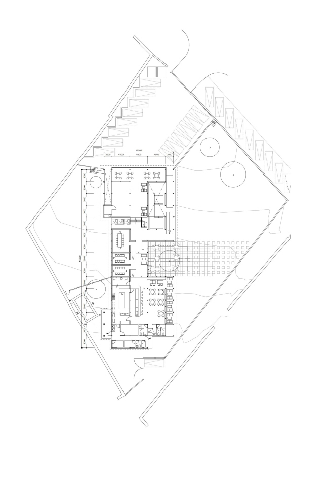
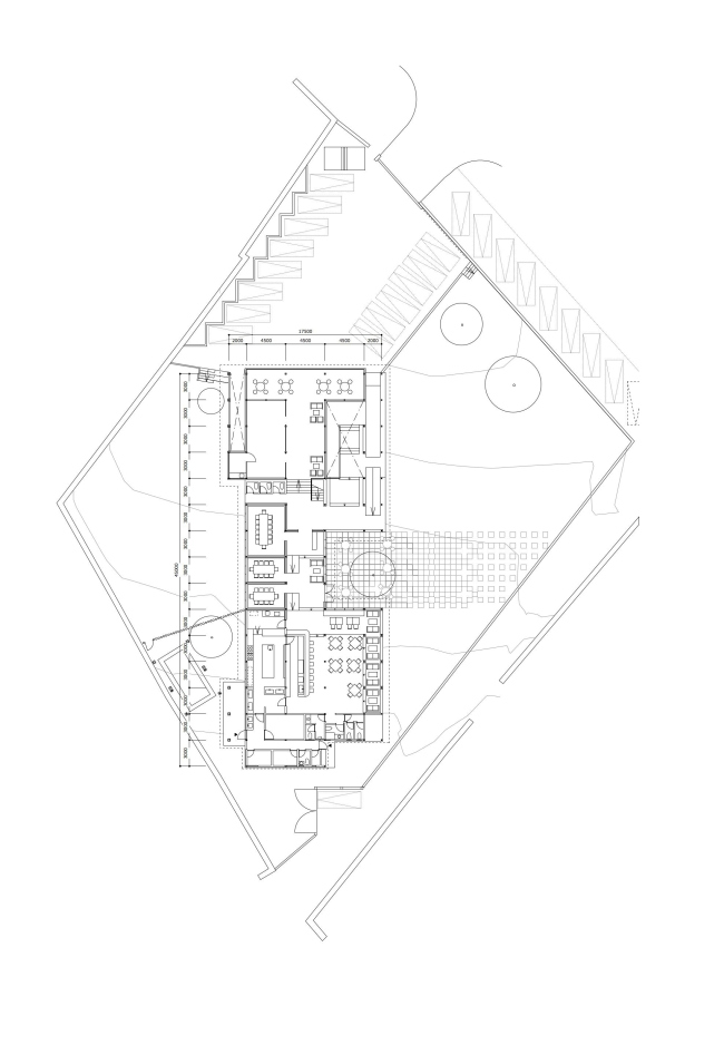
Рельеф участка пологий, это почти незаметно глазу, однако перепад уровней использован для устройства подземного уровня в верхней точке (в нижней у здания только два наземных яруса).
Японский ресторан Yamasen
Японский ресторан Yamasen
Фото © Timothy Latim
Японский ресторан Yamasen
Японский ресторан Yamasen
Фото © Timothy Latim
Японский ресторан Yamasen
Японский ресторан Yamasen
Фото © Timothy Latim
Японский ресторан Yamasen
Японский ресторан Yamasen
Фото © Timothy Latim
Японский ресторан Yamasen Фото © Timothy Latim
Японский ресторан Yamasen
Фото © Timothy Latim
Японский ресторан Yamasen Фото © Timothy Latim
Японский ресторан Yamasen
Фото © Timothy Latim
Японский ресторан Yamasen Фото © Timothy Latim
Японский ресторан Yamasen
Фото © Timothy Latim
Японский ресторан Yamasen Фото © Timothy Latim
Японский ресторан Yamasen
Фото © Timothy Latim
Японский ресторан Yamasen Фото © Timothy Latim
Японский ресторан Yamasen
Фото © Timothy Latim
Японский ресторан Yamasen
Японский ресторан Yamasen
Фото © Timothy Latim
Японский ресторан Yamasen
Японский ресторан Yamasen
Фото © Timothy Latim
Японский ресторан Yamasen
Японский ресторан Yamasen
Фото © Timothy Latim
Японский ресторан Yamasen
Японский ресторан Yamasen
Фото © Timothy Latim
Японский ресторан Yamasen
Японский ресторан Yamasen
Фото © Timothy Latim
Японский ресторан Yamasen
Японский ресторан Yamasen
© Terrain Architects
Японский ресторан Yamasen
Японский ресторан Yamasen
© Terrain Architects
Японский ресторан Yamasen
Японский ресторан Yamasen
© Terrain Architects
Японский ресторан Yamasen
Японский ресторан Yamasen
© Terrain Architects
Японский ресторан Yamasen
Японский ресторан Yamasen
© Terrain Architects
Японский ресторан Yamasen
Японский ресторан Yamasen
© Terrain Architects
Японский ресторан Yamasen
Японский ресторан Yamasen
© Terrain Architects
Японский ресторан Yamasen
Японский ресторан Yamasen
© Terrain Architects