Размещено на портале Архи.ру (www.archi.ru)

10.07.2019

Выдвижные ящики на фасаде

Нина Фролова
Объект:
Жилой массив «Сквер Маима» – реновация северной части
Адрес:
Франция, None, Тулуза.
Мастерская:
ppa architectures
Emma Blanc Paysage

Социальное жилье близ Тулузы на юге Франции по проекту бюро ppa architectures и Emma Blanc Paysage построено на месте жилого массива 1960-х: у новых домов есть большие озелененные балконы, вокруг восстановлено биоразнообразие.

Жилой массив «Сквер Маима» – реновация северной части
Жилой массив «Сквер Маима» – реновация северной части
Фото © Philippe Ruault

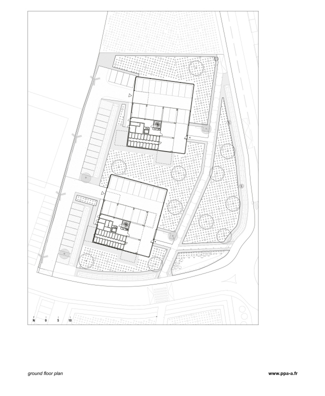
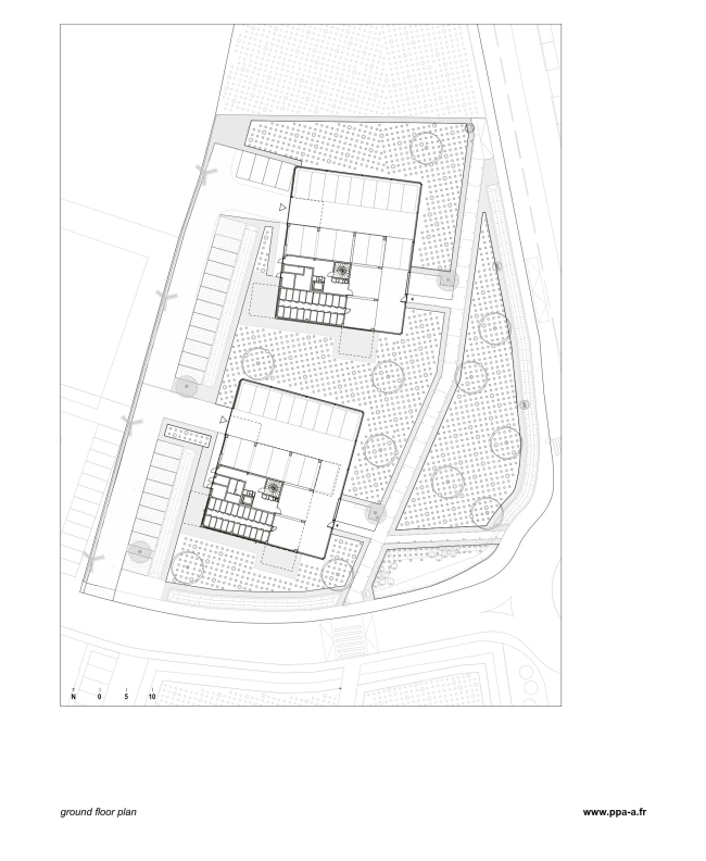
Массив «Сквер Маима» появился в Мюре, пригороде Тулузы, в 1960-е: в наши дни его планировочная схема с четырьмя длинными корпусами, отгораживающими внутреннее пространство со все менее востребованным торговым центром, устарела. Район нуждался в реконструкции и по социально-экономическим причинам. По инициативе города в 2011 девелопер Promologis пригласил для разработки проекта реновации, при которой все прежние жильцы получали квартиры в новых домах, бюро ppa architectures и ландшафтную студию Emma Blanc Paysage. В ходе первой очереди проекта три корпуса (173 квартиры) и торговый центр были заменены на шесть жилых домов (148 квартир) с общественными первыми этажами. Тогда же единственный сохранившийся корпус был реконструирован (40 квартир в общей собственности), его нижний ярус заняли магазины, перед ним устроили площадь для ярмарки выходного дня, собраний и праздников. В целом планировка изменилась на проницаемую, с разнообразным озеленением.
 
Жилой массив «Сквер Маима» до начала реновации
Жилой массив «Сквер Маима» до начала реновации
Фото © Airimage
Жилой массив «Сквер Маима» после реновации. На первом плане – первая очередь, на заднем – вторая (северная часть)
Жилой массив «Сквер Маима» после реновации. На первом плане – первая очередь, на заднем – вторая (северная часть)
Фото © Airimage
Жилой массив «Сквер Маима» – реновация северной части
Жилой массив «Сквер Маима» – реновация северной части
Фото © Philippe Ruault

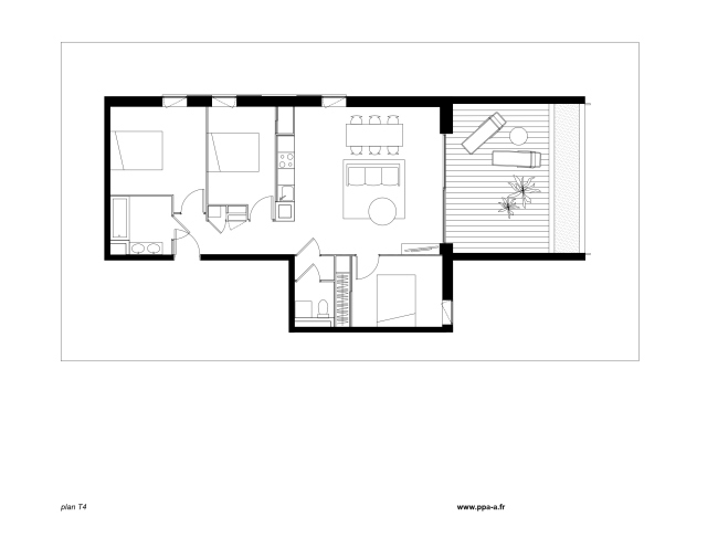
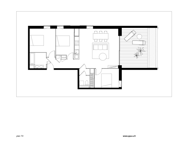
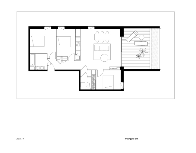
Дома первой очереди были сданы в 2014, а в прошлом году на участке к северу появились два корпуса социального жилья тех же авторов: 24 квартиры социальной аренд и 20 – в социальной собственности (бюджет – 3,75 млн евро). Их размер – две, три или четыре спальни.
 
Жилой массив «Сквер Маима» – реновация северной части
Жилой массив «Сквер Маима» – реновация северной части
Фото © Airimage
Жилой массив «Сквер Маима» – реновация северной части Фото © Philippe Ruault
Жилой массив «Сквер Маима» – реновация северной части
Фото © Philippe Ruault
Жилой массив «Сквер Маима» – реновация северной части Фото © Philippe Ruault
Жилой массив «Сквер Маима» – реновация северной части
Фото © Philippe Ruault
Жилой массив «Сквер Маима» – реновация северной части Фото © Philippe Ruault
Жилой массив «Сквер Маима» – реновация северной части
Фото © Philippe Ruault
Жилой массив «Сквер Маима» – реновация северной части
Жилой массив «Сквер Маима» – реновация северной части
Фото © Philippe Ruault

Цель обеих очередей проекта была ключевой для реновации послевоенного жилья во Франции: «резиденциалиазация» новых и обновленных районов, то есть повышение их удобства и привлекательности для жителей во всех аспектах. Новые пешеходные и велосипедные маршруты связали «Сквер Маима» с центром Мюре, гараж спрятали под землю, а наземные парковочные места поместили по периметру квартала. На первых этажах нет квартир, вестибюли служат промежуточным пространством между двором и жилищем, местом встречи соседей. Автомобильные потоки направили по границам района.
 
Жилой массив «Сквер Маима» – реновация северной части
Жилой массив «Сквер Маима» – реновация северной части
Фото © Philippe Ruault
Жилой массив «Сквер Маима» – реновация северной части. На заднем плане – дома первой очереди
Жилой массив «Сквер Маима» – реновация северной части. На заднем плане – дома первой очереди
Фото © Philippe Ruault
Жилой массив «Сквер Маима» – реновация северной части
Жилой массив «Сквер Маима» – реновация северной части
Фото © Philippe Ruault

С 1960-х до начала реновации плодородная почва здесь была по сути уничтожена, все открытые пространства – заасфальтированы. Специалисты бюро Emma Blanc Paysage тщательно восстановили почвенный профиль до глубины в один метр, используя в том числе измельченный бетон от снесенных корпусов. Он также пошел на мощение дорожек, а для двориков первой очереди применили бетонные панели демонтированного торгового центра. Для озеленения были выбраны разнообразные виды деревьев, кустарника, травянистых многолетников и т.д.
 
Жилой массив «Сквер Маима» – реновация северной части
Жилой массив «Сквер Маима» – реновация северной части
Фото © Philippe Ruault
Жилой массив «Сквер Маима» – реновация северной части
Жилой массив «Сквер Маима» – реновация северной части
Фото © Philippe Ruault
Жилой массив «Сквер Маима» – реновация северной части
Жилой массив «Сквер Маима» – реновация северной части
Фото © Philippe Ruault

Два корпуса второй очереди «вставлены» в питомник, созданный по инициативе Emma Blanc Paysage на их участке в ходе первого этапа проекта: высаженные там более чем 5000 деревьев использовались для озеленения обновленного «Сквера Маима» и других проектов девелопера Promologis.
 
Жилой массив «Сквер Маима» – реновация северной части
Жилой массив «Сквер Маима» – реновация северной части
Фото © Philippe Ruault
Жилой массив «Сквер Маима» – реновация северной части Фото © Philippe Ruault
Жилой массив «Сквер Маима» – реновация северной части
Фото © Philippe Ruault
Жилой массив «Сквер Маима» – реновация северной части Фото © Philippe Ruault
Жилой массив «Сквер Маима» – реновация северной части
Фото © Philippe Ruault
Жилой массив «Сквер Маима» – реновация северной части Фото © Philippe Ruault
Жилой массив «Сквер Маима» – реновация северной части
Фото © Philippe Ruault
Жилой массив «Сквер Маима» – реновация северной части
Жилой массив «Сквер Маима» – реновация северной части
Фото © Philippe Ruault

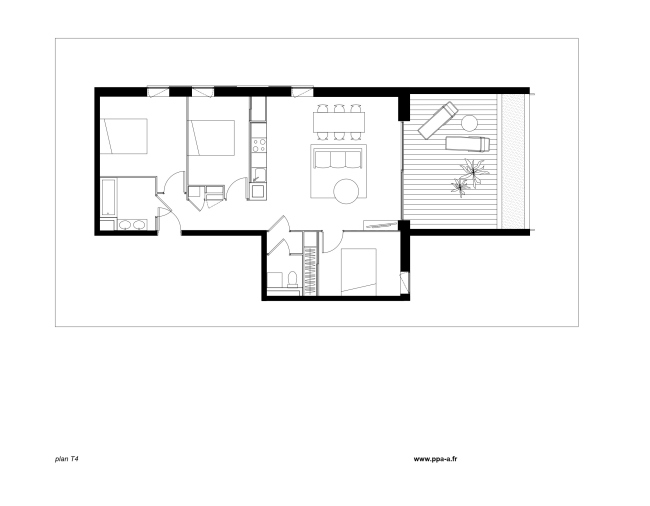
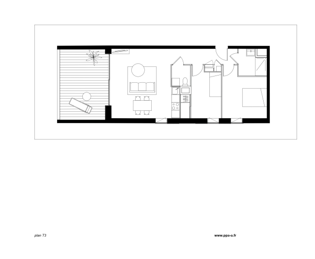
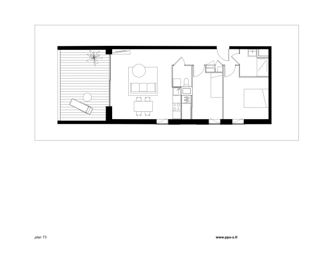
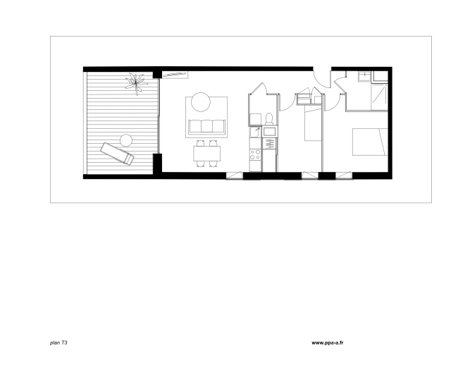
Растительная тема продолжена в виде озеленения балконов, также продуманного Emma Blanc Paysage. Сами балконы предложены ppa architectures как продолжение кухни и общей комнаты, увеличивающее их площадь вдвое и делающее квартиру похожей на виллу: это обширное приватное пространство под открытым небом, смягчающее границу между интерьером и окружением. Архитекторы представляют схему дома как поставленные друг на друга крестообразно полураскрытые спичечные коробки – или выдвинутые из комода ящики.
Жилой массив «Сквер Маима» – реновация северной части
Жилой массив «Сквер Маима» – реновация северной части
© ppa architectures
Жилой массив «Сквер Маима» – реновация северной части
Жилой массив «Сквер Маима» – реновация северной части
© ppa architectures
Жилой массив «Сквер Маима» – реновация северной части
Жилой массив «Сквер Маима» – реновация северной части
© ppa architectures
Жилой массив «Сквер Маима» – реновация северной части
Жилой массив «Сквер Маима» – реновация северной части
© ppa architectures
Жилой массив «Сквер Маима» – реновация северной части
Жилой массив «Сквер Маима» – реновация северной части
© ppa architectures
Жилой массив «Сквер Маима» – реновация северной части
Жилой массив «Сквер Маима» – реновация северной части
© ppa architectures
Жилой массив «Сквер Маима» – реновация северной части
Жилой массив «Сквер Маима» – реновация северной части
© ppa architectures
Жилой массив «Сквер Маима» – реновация северной части
Жилой массив «Сквер Маима» – реновация северной части
© ppa architectures
Жилой массив «Сквер Маима» – реновация северной части
Жилой массив «Сквер Маима» – реновация северной части
© ppa architectures
Жилой массив «Сквер Маима» – реновация северной части
Жилой массив «Сквер Маима» – реновация северной части
© ppa architectures
Жилой массив «Сквер Маима» – реновация северной части
Жилой массив «Сквер Маима» – реновация северной части
© ppa architectures
Жилой массив «Сквер Маима» – реновация северной части
Жилой массив «Сквер Маима» – реновация северной части
© ppa architectures
Жилой массив «Сквер Маима» – реновация северной части
Жилой массив «Сквер Маима» – реновация северной части
© Emma Blanc Paysage
Жилой массив «Сквер Маима» – реновация северной части
Жилой массив «Сквер Маима» – реновация северной части
© Emma Blanc Paysage
Жилой массив «Сквер Маима» – реновация северной части
Жилой массив «Сквер Маима» – реновация северной части
© Emma Blanc Paysage
Жилой массив «Сквер Маима» – реновация северной части
Жилой массив «Сквер Маима» – реновация северной части
© Emma Blanc Paysage
Жилой массив «Сквер Маима» – реновация северной части
Жилой массив «Сквер Маима» – реновация северной части
© Emma Blanc Paysage
Жилой массив «Сквер Маима» – реновация северной части
Жилой массив «Сквер Маима» – реновация северной части
© Emma Blanc Paysage