Размещено на портале Архи.ру (www.archi.ru)

28.06.2019

Стеклянные паруса

Нина Фролова
Объект:
Большой театр в Иу
Адрес:
Китай, None, Иу.
Мастерская:
MAD

Пекинское бюро MAD выиграло конкурс на проект Большого театра в городе Иу на востоке Китая: здание на воде должно напоминать джонку под парусами.

Большой театр в Иу
Большой театр в Иу
© MAD

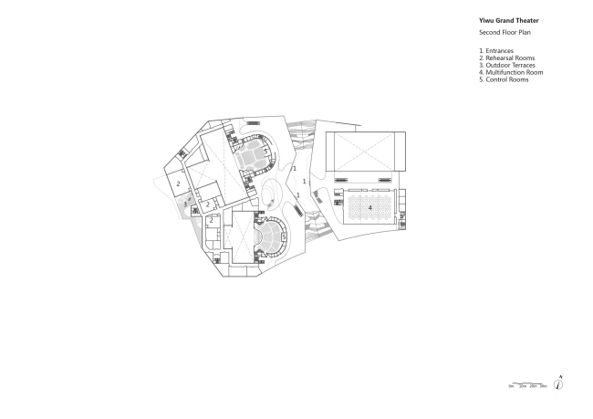
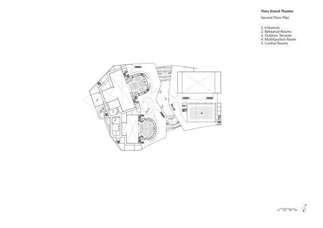
Театр начнут строить в 2020 на правом берегу реки Дунъян: на площади почти в 100 000 м2 появятся большой (1600 мест) и средний (1200) зрительные залы, а также международный конференц-центр (2000 мест). Заказчик, администрация Иу, решила дополнить культурной сферой «мягкую силу», приобретенную этим городом благодаря торговле. Так, там находится один из крупнейших в мире мелкооптовых рынков товаров народного потребления: продающиеся там елочные украшения, сувениры и т.д. затем заполняют полки магазинов в разных частях планеты. Кроме того, Иу играет важную роль в задуманной китайским правительством системе «Один пояс и один путь» из морского и сухопутного Шелковых путей XXI века.
Большой театр в Иу
Большой театр в Иу
© MAD

В конкурсе на проект нового театра бюро Ма Яньсуна обошло таких соперников, как Арата Исодзаки, Кристиан де Портзампарк и gmp. Проект MAD предполагает расположить здание на воде, на фоне горной гряды. Оно должно напоминать традиционное судно – джонку, в прошлом – характерный транспорт для торговцев Иу. Роль парусов играет полупрозрачные стеклянные фасады, своим силуэтом похожие и на характерный для этого региона, Цзяннань, свес кровли.
 
Большой театр в Иу
Большой театр в Иу
© MAD

Архитекторы планируют придать стеклу сходство с развевающейся шелковой тканью: отражаясь в воде, эти «паруса» создадут романтический образ театра. Одновременно такие фасады будут затенять помещения, при этом пропуская достаточно солнечного света. Зимой они создадут «парниковый эффект», нагревая интерьер, а летом помогут его вентилировать.
 
Большой театр в Иу
Большой театр в Иу
© MAD

С правым берегом театр свяжет автомобильная дорога, с левым – пешеходные мостики. Вокруг здания создадут озелененные общественные пространства с видами на город и окружающие его ландшафты.
Большой театр в Иу
Большой театр в Иу
© MAD
Большой театр в Иу
Большой театр в Иу
© MAD
Большой театр в Иу
Большой театр в Иу
© MAD
Большой театр в Иу
Большой театр в Иу
© MAD
Большой театр в Иу
Большой театр в Иу
© MAD
Большой театр в Иу
Большой театр в Иу
© MAD
Большой театр в Иу
Большой театр в Иу
© MAD
Большой театр в Иу
Большой театр в Иу
© MAD
Большой театр в Иу
Большой театр в Иу
© MAD
Большой театр в Иу
Большой театр в Иу
© MAD
Большой театр в Иу
Большой театр в Иу
© MAD
Большой театр в Иу
Большой театр в Иу
© MAD
Большой театр в Иу
Большой театр в Иу
© MAD
Большой театр в Иу
Большой театр в Иу
© MAD