Размещено на портале Архи.ру (www.archi.ru)

27.06.2019

Под сенью муз

Нина Фролова
Объект:
Студенческое общежитие на кампусе Париж-Сакле
Адрес:
Франция, None, Жиф-сюр-Иветт.
Мастерская:
LAN

Студенческое общежитие по проекту бюро LAN на мега-кампусе Париж-Сакле соединило вуз, парк и городскую среду, а также античные мотивы на фасадах.

Студенческое общежитие на кампусе Париж-Сакле
Студенческое общежитие на кампусе Париж-Сакле
Фото © Charly Broyez

Кампус Париж-Сакле в границах Большого Парижа – масштабный проект, объединяющий целую серию крупных вузов и исследовательских учреждений. Его реализация связана с развитием значительной территории, включающей и существующие города и поселения. В воплощении этого замысла участвуют крупнейшие архитектурные бюро, к примеру, OMA или Со Фудзимото.
 
Студенческое общежитие на кампусе Париж-Сакле
Студенческое общежитие на кампусе Париж-Сакле
Фото © Fabrice Fouillet

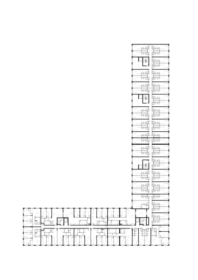
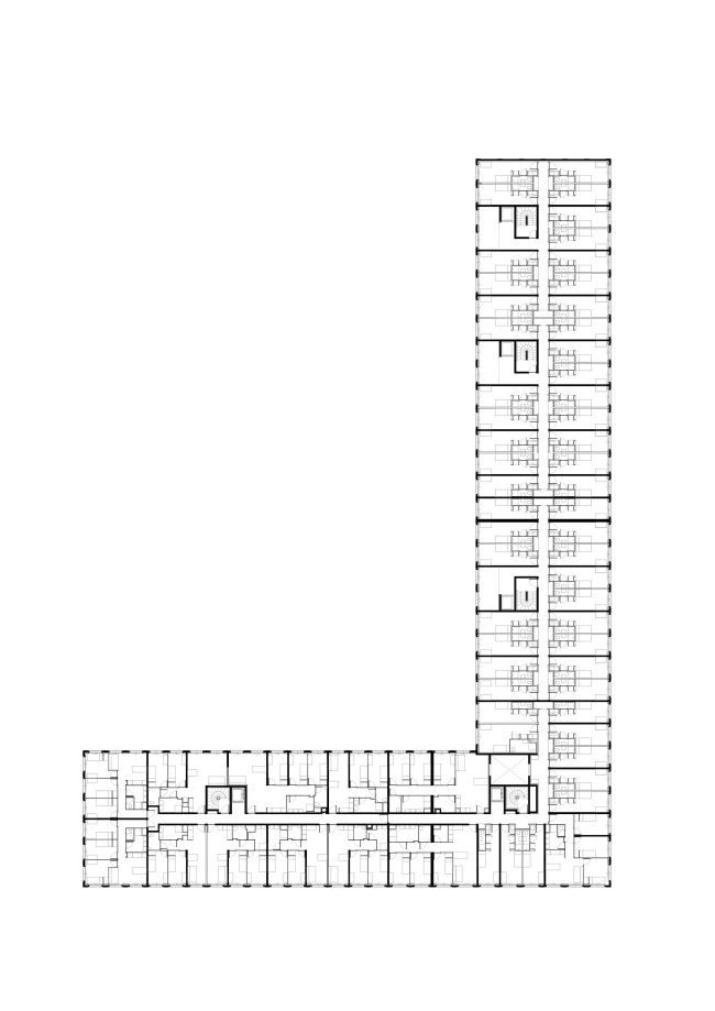
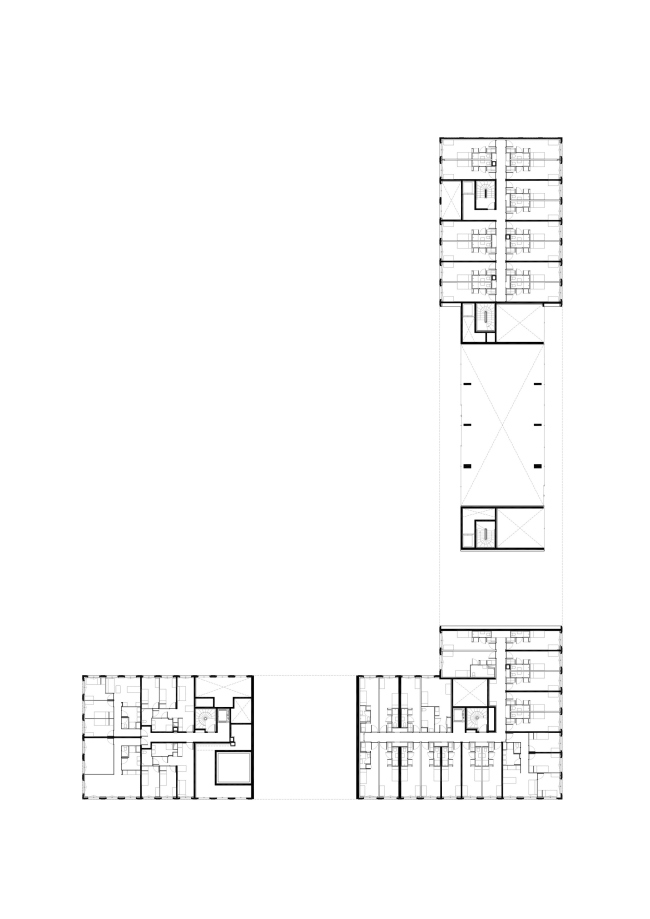
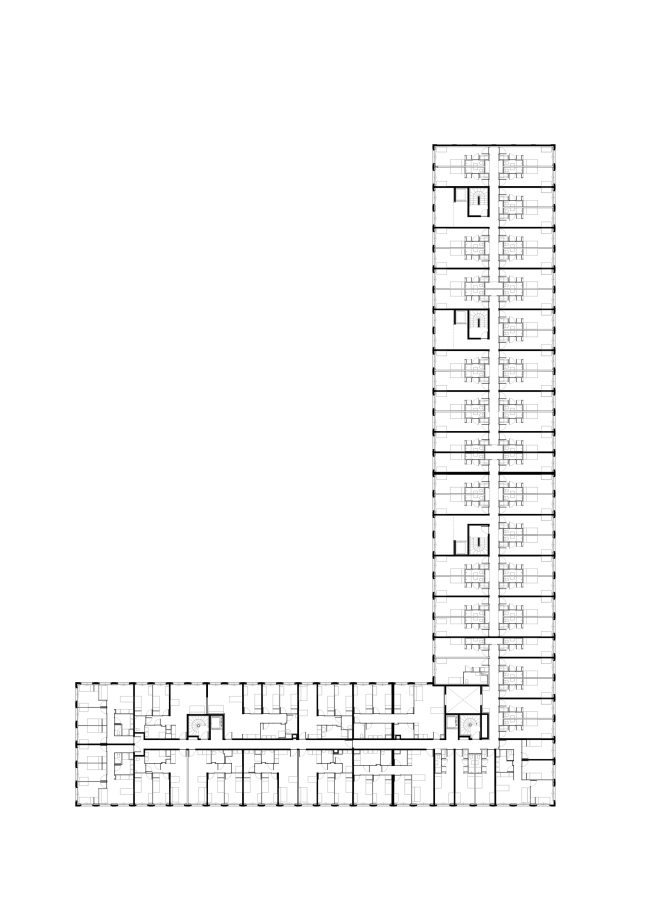
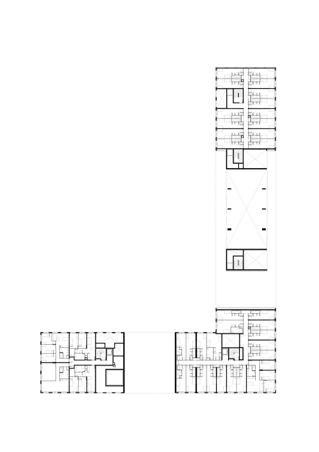
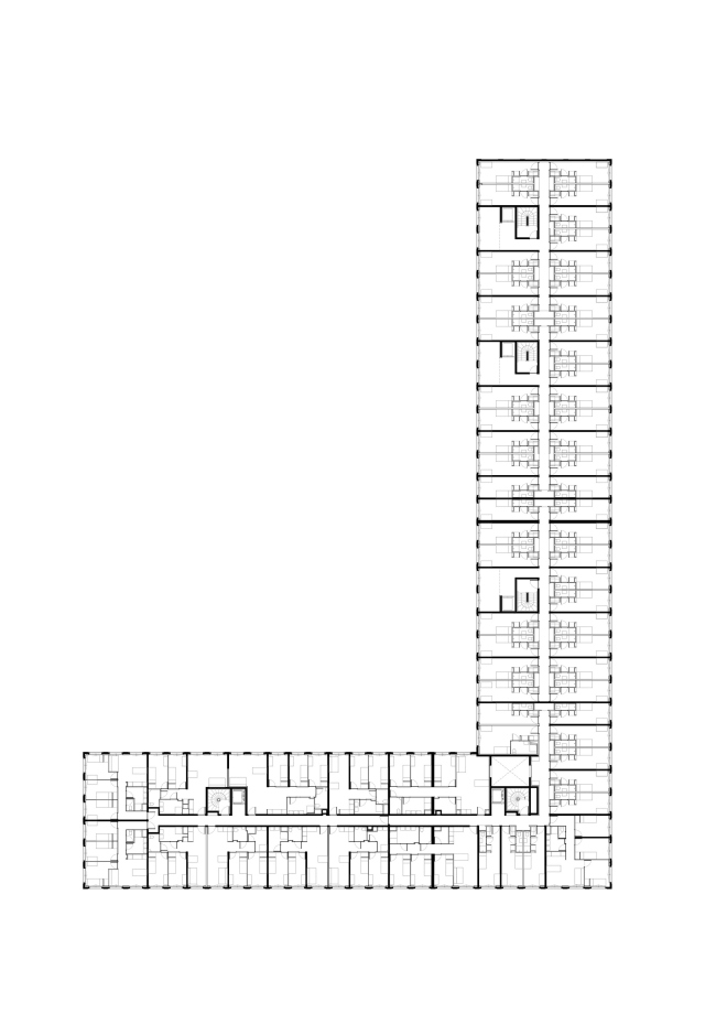
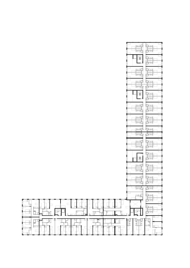
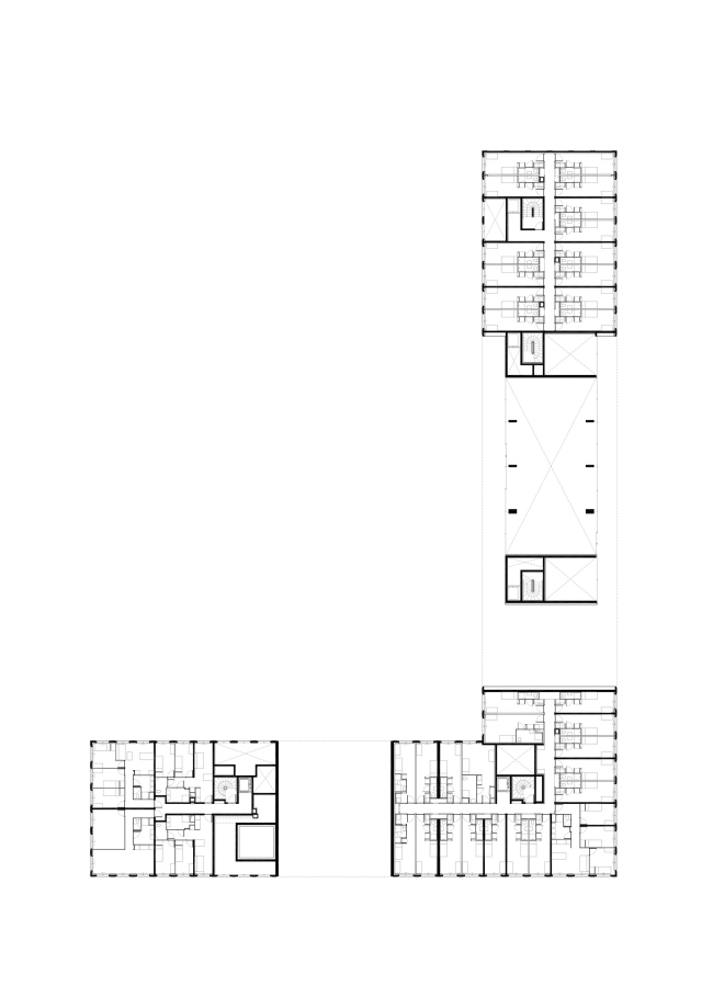
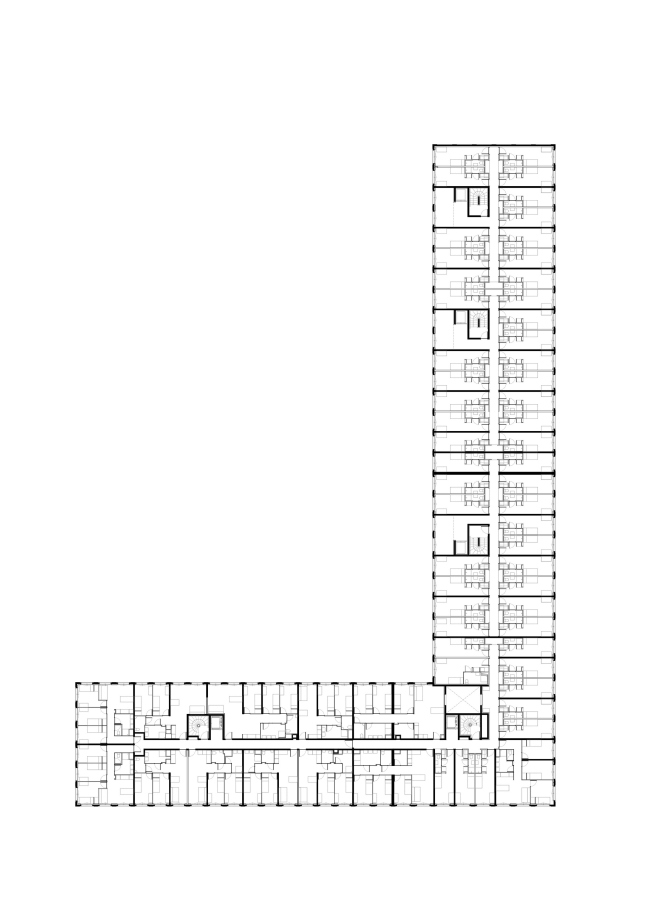
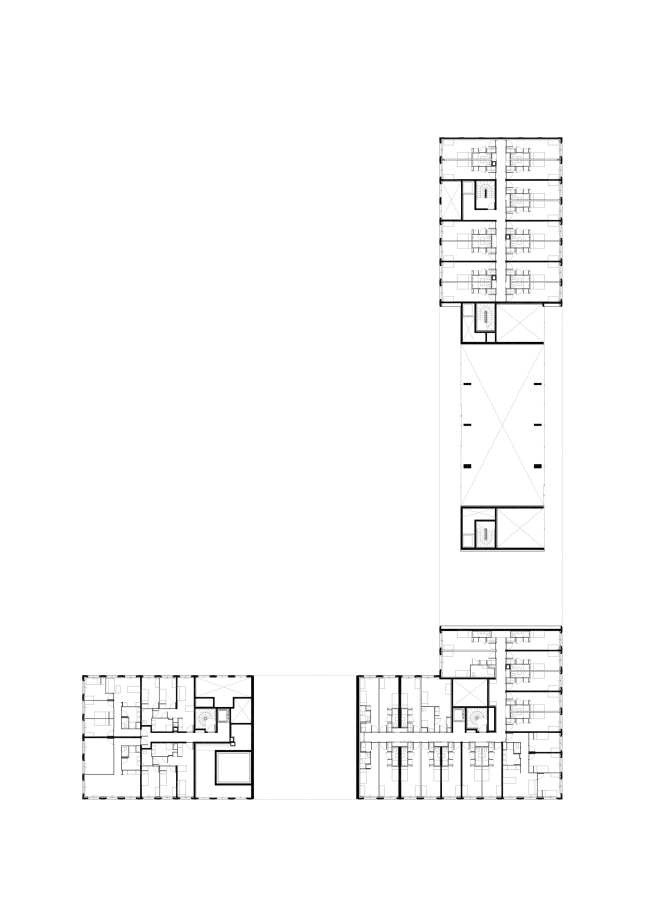
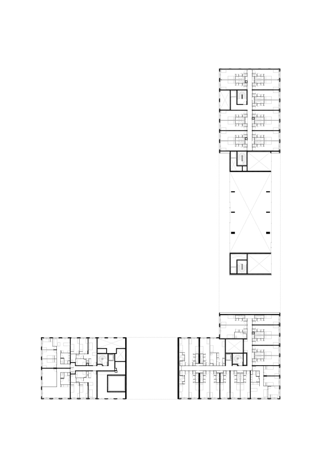
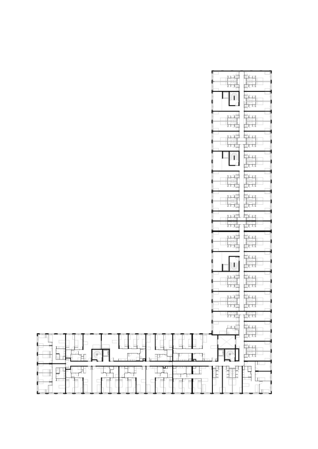
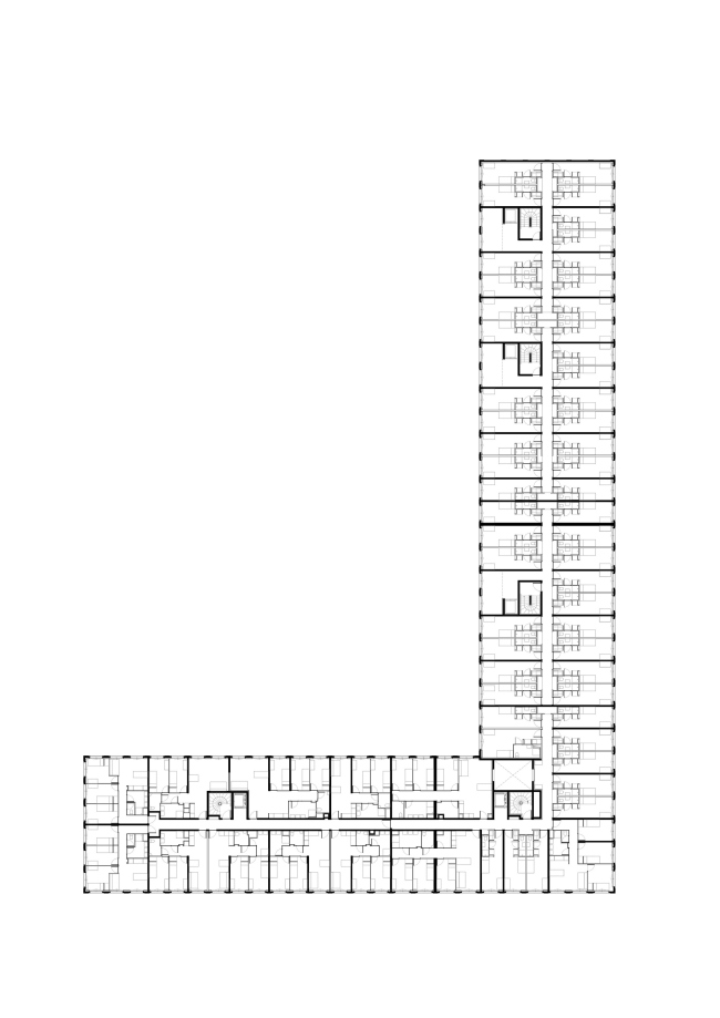
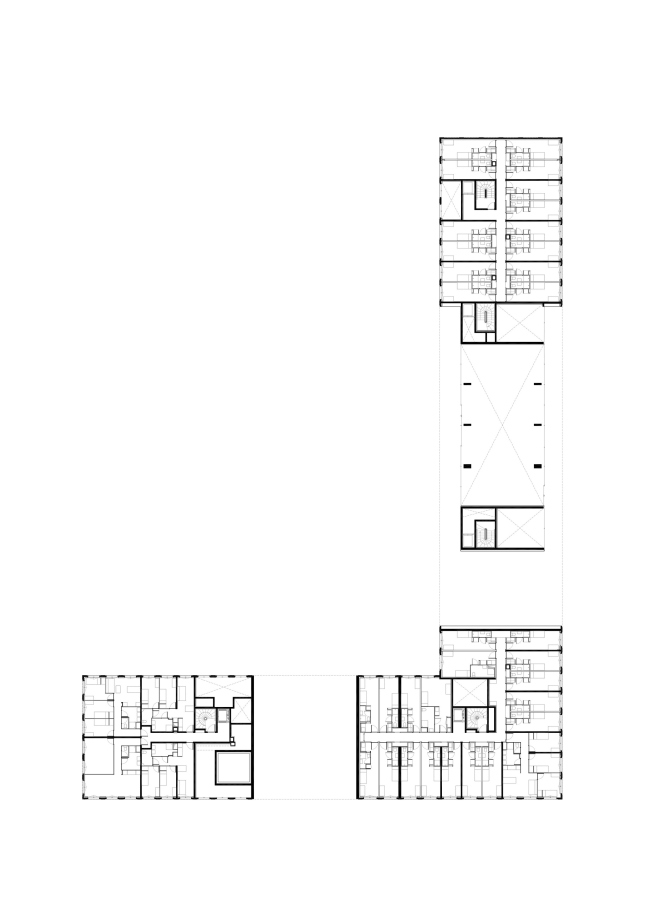
Архитекторы LAN в рамках этого проекта реализовали комплекс студенческого общежития на 1082 человек (900 единиц жилья), один из крупнейших в истории страны. Он занял блок B (точнее, участки B6, B7 и B8) кампуса Париж-Сакле, соединяющий городскую застройку («семейные» дома, общественные учреждения, сервисная инфраструктура) с зоной учебных корпусов, спортивных сооружений и студенческого жилья. Цель такой связи – свести на нет частую для крупных вузовских ансамблей оторванность от окружения.
 
Студенческое общежитие на кампусе Париж-Сакле
Студенческое общежитие на кампусе Париж-Сакле
Фото © Fabrice Fouillet

По периметру участка расположены три прямоугольных корпуса, где находится 70% жилья для студентов, а в центре создан парк, где в роли садовых павильонов выступают еще пять корпусов – меньше размером и круглые в плане. Они названы «Музами» в честь античных покровительниц искусств и наук, и потому на бетонные панели их фасадов нанесены изображения этих божеств с римского саркофага Муз из Лувра. В этой связи можно вспомнить жилье в лондонской Олимпийской деревне с рельефами – копиями фриза Парфенона.
 
Студенческое общежитие на кампусе Париж-Сакле
Студенческое общежитие на кампусе Париж-Сакле
Фото © Fabrice Fouillet

Если внешние корпуса выглядят строго, их фасады с жесткой сеткой окон выполнены из окрашенного в массе бетона черного и серого цветов, то круглые, парковые здания лишены иерархичности, там нет главного входа или перспективы. Благодаря такому геометрическому решению удалось поэкспериментировать с планировками, разделив спальню и дневную зону. Кроме того, круглая форма позволила в целом сократить длину внешних стен, одновременно увеличив ее для каждой квартиры. Лестнично-лифтовой узел помещен в центре, на каждом этаже – 14 комнат площадью в среднем 18,5 м2 каждая.
 
Студенческое общежитие на кампусе Париж-Сакле
Студенческое общежитие на кампусе Париж-Сакле
Фото © Charly Broyez

Внешние корпуса выходят своими остекленными вестибюлями в парк: в целом, на первом этаже там много стекла, дерева и проемов.
 
Студенческое общежитие на кампусе Париж-Сакле
Студенческое общежитие на кампусе Париж-Сакле
Фото © Charly Broyez

Общая площадь комплекса – 14 603 м2, бюджет – 40 млн евро. Среди типов жилья там есть как студии, сгруппированные вокруг кластеров из общественных помещений, так и квартиры на несколько студентов.
 
Студенческое общежитие на кампусе Париж-Сакле
Студенческое общежитие на кампусе Париж-Сакле
Фото © Charly Broyez

Ландшафтом занималось берлинское бюро Topotek 1, также в проекте принимали участие Clément Vergély Architectes.
Студенческое общежитие на кампусе Париж-Сакле
Студенческое общежитие на кампусе Париж-Сакле
Фото © Fabrice Fouillet
Студенческое общежитие на кампусе Париж-Сакле
Студенческое общежитие на кампусе Париж-Сакле
Фото © Fabrice Fouillet
Студенческое общежитие на кампусе Париж-Сакле
Студенческое общежитие на кампусе Париж-Сакле
Фото © Fabrice Fouillet
Студенческое общежитие на кампусе Париж-Сакле
Студенческое общежитие на кампусе Париж-Сакле
© LAN
Студенческое общежитие на кампусе Париж-Сакле
Студенческое общежитие на кампусе Париж-Сакле
© LAN
Студенческое общежитие на кампусе Париж-Сакле
Студенческое общежитие на кампусе Париж-Сакле
© LAN
Студенческое общежитие на кампусе Париж-Сакле
Студенческое общежитие на кампусе Париж-Сакле
© LAN
Студенческое общежитие на кампусе Париж-Сакле
Студенческое общежитие на кампусе Париж-Сакле
© LAN
Студенческое общежитие на кампусе Париж-Сакле
Студенческое общежитие на кампусе Париж-Сакле
© LAN
Студенческое общежитие на кампусе Париж-Сакле
Студенческое общежитие на кампусе Париж-Сакле
© LAN
Студенческое общежитие на кампусе Париж-Сакле
Студенческое общежитие на кампусе Париж-Сакле
© LAN
Студенческое общежитие на кампусе Париж-Сакле
Студенческое общежитие на кампусе Париж-Сакле
© LAN
Студенческое общежитие на кампусе Париж-Сакле
Студенческое общежитие на кампусе Париж-Сакле
© LAN
Студенческое общежитие на кампусе Париж-Сакле
Студенческое общежитие на кампусе Париж-Сакле
© LAN
Студенческое общежитие на кампусе Париж-Сакле
Студенческое общежитие на кампусе Париж-Сакле
© LAN
Студенческое общежитие на кампусе Париж-Сакле
Студенческое общежитие на кампусе Париж-Сакле
© LAN