Размещено на портале Архи.ру (www.archi.ru)

21.06.2019

Третья жизнь контейнеров

Нина Фролова
Объект:
Павильон курорта Orenda на острове Чунминдао
Адрес:
Китай, None, Шанхай.
Мастерская:
Yiduan Shanghai Interior Design

Старое сооружение из транспортных контейнеров после реконструкции по проекту бюро Yiduan Shanghai Interior Design стало павильоном для курорта в устье реки Янцзы.

Павильон курорта Orenda на острове Чунминдао
Павильон курорта Orenda на острове Чунминдао
Фото © Zhu Enlong

Павильон из 10 стандартных транспортных контейнеров находится на острове Чунминдао в устье реки Янцзы, административно – в границах Шанхая. Его требовалось приспособить для размещения стойки администратора и выставочной зоны курортного комплекса Orenda – значительно увеличив площадь, и при этом отремонтировать.
 
Павильон курорта Orenda на острове Чунминдао Фото © Zhu Enlong
Павильон курорта Orenda на острове Чунминдао
Фото © Zhu Enlong
Павильон курорта Orenda на острове Чунминдао Фото © Zhu Enlong
Павильон курорта Orenda на острове Чунминдао
Фото © Zhu Enlong
Павильон курорта Orenda на острове Чунминдао Фото © Zhu Enlong
Павильон курорта Orenda на острове Чунминдао
Фото © Zhu Enlong
Павильон курорта Orenda на острове Чунминдао Фото © Zhu Enlong
Павильон курорта Orenda на острове Чунминдао
Фото © Zhu Enlong
Павильон курорта Orenda на острове Чунминдао
Павильон курорта Orenda на острове Чунминдао
Фото © Zhu Enlong
Павильон до реконструкции © Yiduan Shanghai Interior Design
Павильон до реконструкции
© Yiduan Shanghai Interior Design
Павильон до реконструкции © Yiduan Shanghai Interior Design
Павильон до реконструкции
© Yiduan Shanghai Interior Design
Павильон до реконструкции © Yiduan Shanghai Interior Design
Павильон до реконструкции
© Yiduan Shanghai Interior Design
Павильон до реконструкции © Yiduan Shanghai Interior Design
Павильон до реконструкции
© Yiduan Shanghai Interior Design
Павильон до реконструкции © Yiduan Shanghai Interior Design
Павильон до реконструкции
© Yiduan Shanghai Interior Design
Павильон до реконструкции © Yiduan Shanghai Interior Design
Павильон до реконструкции
© Yiduan Shanghai Interior Design
Павильон до реконструкции © Yiduan Shanghai Interior Design
Павильон до реконструкции
© Yiduan Shanghai Interior Design

Особую проблему представляла форма контейнеров – длинная и довольно узкая. Поэтому авторы проекта добавили к каждому из десяти блоков по «близнецу» – решетчатому объему из деревянных профилей. Эти проницаемые формы обеспечивают сооружению необходимое пространство (1800 м2) и создают контраст с закрытыми контейнерами, размывая границу с окружением. Колорит также сменился – на сочетание белого и цвета древесины. Акцент в композиции создает река, через которую павильон перекинут как мост.
 
Павильон курорта Orenda на острове Чунминдао
Павильон курорта Orenda на острове Чунминдао
Фото © Zhu Enlong
Павильон курорта Orenda на острове Чунминдао
Павильон курорта Orenda на острове Чунминдао
Фото © Zhu Enlong
Павильон курорта Orenda на острове Чунминдао
Павильон курорта Orenda на острове Чунминдао
Фото © Zhu Enlong

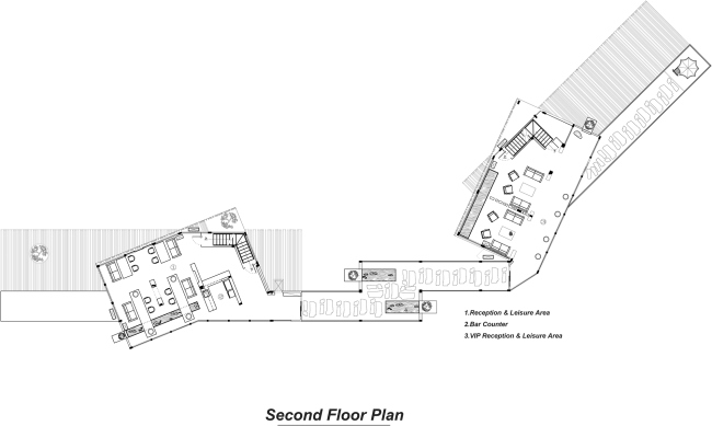
На первом этаже находится стойка администратора и выставочная зона, на втором – простое кафе, на самом верху – офисы и переговорная.
Павильон курорта Orenda на острове Чунминдао
Павильон курорта Orenda на острове Чунминдао
Фото © Zhu Enlong
Павильон курорта Orenda на острове Чунминдао
Павильон курорта Orenda на острове Чунминдао
Фото © Zhu Enlong
Павильон курорта Orenda на острове Чунминдао
Павильон курорта Orenda на острове Чунминдао
Фото © Zhu Enlong
Павильон курорта Orenda на острове Чунминдао
Павильон курорта Orenda на острове Чунминдао
Фото © Zhu Enlong
Павильон курорта Orenda на острове Чунминдао
Павильон курорта Orenda на острове Чунминдао
Фото © Zhu Enlong
Павильон курорта Orenda на острове Чунминдао
Павильон курорта Orenda на острове Чунминдао
Фото © Zhu Enlong
Павильон курорта Orenda на острове Чунминдао
Павильон курорта Orenda на острове Чунминдао
Фото © Zhu Enlong
Павильон курорта Orenda на острове Чунминдао
Павильон курорта Orenda на острове Чунминдао
Фото © Zhu Enlong
Павильон курорта Orenda на острове Чунминдао
Павильон курорта Orenda на острове Чунминдао
Фото © Zhu Enlong
Павильон курорта Orenda на острове Чунминдао
Павильон курорта Orenda на острове Чунминдао
Фото © Zhu Enlong
Павильон курорта Orenda на острове Чунминдао
Павильон курорта Orenda на острове Чунминдао
Фото © Zhu Enlong
Павильон курорта Orenda на острове Чунминдао
Павильон курорта Orenda на острове Чунминдао
Фото © Zhu Enlong
Павильон курорта Orenda на острове Чунминдао
Павильон курорта Orenda на острове Чунминдао
Фото © Zhu Enlong
Павильон курорта Orenda на острове Чунминдао
Павильон курорта Orenda на острове Чунминдао
Фото © Zhu Enlong
Павильон курорта Orenda на острове Чунминдао
Павильон курорта Orenda на острове Чунминдао
Фото © Zhu Enlong
Павильон курорта Orenda на острове Чунминдао
Павильон курорта Orenda на острове Чунминдао
Фото © Zhu Enlong
Павильон курорта Orenda на острове Чунминдао
Павильон курорта Orenda на острове Чунминдао
© Yiduan Shanghai Interior Design
Павильон курорта Orenda на острове Чунминдао
Павильон курорта Orenda на острове Чунминдао
© Yiduan Shanghai Interior Design
Павильон курорта Orenda на острове Чунминдао
Павильон курорта Orenda на острове Чунминдао
© Yiduan Shanghai Interior Design
Павильон курорта Orenda на острове Чунминдао
Павильон курорта Orenda на острове Чунминдао
© Yiduan Shanghai Interior Design
Павильон курорта Orenda на острове Чунминдао
Павильон курорта Orenda на острове Чунминдао
© Yiduan Shanghai Interior Design