Размещено на портале Архи.ру (www.archi.ru)

20.06.2019

Археология новейшей эпохи

Нина Фролова
Объект:
Библиотека и учебный центр Hexagone
Адрес:
Франция, None, Марсель.

Сохранив следы времени, архитектор Реми Марчано превратил студенческую столовую 1960-х в современные библиотеку и учебный центр для университета Экс-Марсель.

Библиотека и учебный центр Hexagone
Библиотека и учебный центр Hexagone
Фото © Takuji Shimmura

Университетский кампус Люмини в одноименном районе Марселя переживает сейчас масштабную реновацию. Важной ее частью стала реконструкция его центрального здания, студенческой столовой, построенной в 1966 по проекту Рене Эгже. Последние пятнадцать лет здание было заброшено, в особенно плохом состоянии оказались фасады: их пришлось заменить полностью. Но архитектор Реми Марчано сохранил бетонную конструкцию, причем не стал скрывать следы времени: он называет такой подход «современной археологией».
 
Библиотека и учебный центр Hexagone
Библиотека и учебный центр Hexagone
Фото © Takuji Shimmura
Библиотека и учебный центр Hexagone до реконструкции © Rémy Marciano Architecte
Библиотека и учебный центр Hexagone до реконструкции
© Rémy Marciano Architecte
Библиотека и учебный центр Hexagone до реконструкции © Rémy Marciano Architecte
Библиотека и учебный центр Hexagone до реконструкции
© Rémy Marciano Architecte
Библиотека и учебный центр Hexagone до реконструкции © Rémy Marciano Architecte
Библиотека и учебный центр Hexagone до реконструкции
© Rémy Marciano Architecte
Библиотека и учебный центр Hexagone
Библиотека и учебный центр Hexagone
Фото © Takuji Shimmura
Библиотека и учебный центр Hexagone Фото © Takuji Shimmura
Библиотека и учебный центр Hexagone
Фото © Takuji Shimmura
Библиотека и учебный центр Hexagone Фото © Takuji Shimmura
Библиотека и учебный центр Hexagone
Фото © Takuji Shimmura
Библиотека и учебный центр Hexagone Фото © Takuji Shimmura
Библиотека и учебный центр Hexagone
Фото © Takuji Shimmura

Новые фасады с белыми «жалюзи» подчеркивают шестигранную форму здания, давшую ему изначальное название – Hexagone. Геометрический объем заметен издалека на фоне дикого пейзажа: рядом расположен национальный парк Каланки.
 
Библиотека и учебный центр Hexagone Фото © Takuji Shimmura
Библиотека и учебный центр Hexagone
Фото © Takuji Shimmura
Библиотека и учебный центр Hexagone Фото © Takuji Shimmura
Библиотека и учебный центр Hexagone
Фото © Takuji Shimmura
Библиотека и учебный центр Hexagone Фото © Takuji Shimmura
Библиотека и учебный центр Hexagone
Фото © Takuji Shimmura
Библиотека и учебный центр Hexagone Фото © Takuji Shimmura
Библиотека и учебный центр Hexagone
Фото © Takuji Shimmura
Библиотека и учебный центр Hexagone Фото © Takuji Shimmura
Библиотека и учебный центр Hexagone
Фото © Takuji Shimmura
Библиотека и учебный центр Hexagone Фото © Takuji Shimmura
Библиотека и учебный центр Hexagone
Фото © Takuji Shimmura
Библиотека и учебный центр Hexagone
Библиотека и учебный центр Hexagone
Фото © Takuji Shimmura
Библиотека и учебный центр Hexagone
Библиотека и учебный центр Hexagone
Фото © Takuji Shimmura

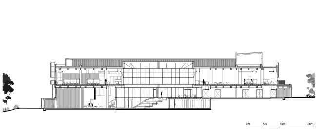
В здании появился центральный атриум со ступенями-трибунами, место общения и занятий студентов. Остекленные фасады – внешний и двора – обеспечивают интерьер солнечным светом.
 
Библиотека и учебный центр Hexagone
Библиотека и учебный центр Hexagone
Фото © Takuji Shimmura
Библиотека и учебный центр Hexagone
Библиотека и учебный центр Hexagone
Фото © Takuji Shimmura
Библиотека и учебный центр Hexagone
Библиотека и учебный центр Hexagone
Фото © Takuji Shimmura

На общей площади почти в 8000 м2 расположены библиотека, кинозал, кафе-бар, центр изучения иностранных языков, «бюро студенческой жизни», служба профориентации, отдел международных связей и т.д.
Библиотека и учебный центр Hexagone Фото © Takuji Shimmura
Библиотека и учебный центр Hexagone
Фото © Takuji Shimmura
Библиотека и учебный центр Hexagone Фото © Takuji Shimmura
Библиотека и учебный центр Hexagone
Фото © Takuji Shimmura
Библиотека и учебный центр Hexagone Фото © Takuji Shimmura
Библиотека и учебный центр Hexagone
Фото © Takuji Shimmura
Библиотека и учебный центр Hexagone Фото © Takuji Shimmura
Библиотека и учебный центр Hexagone
Фото © Takuji Shimmura
Библиотека и учебный центр Hexagone
Библиотека и учебный центр Hexagone
Фото © Takuji Shimmura
Библиотека и учебный центр Hexagone Фото © Takuji Shimmura
Библиотека и учебный центр Hexagone
Фото © Takuji Shimmura
Библиотека и учебный центр Hexagone Фото © Takuji Shimmura
Библиотека и учебный центр Hexagone
Фото © Takuji Shimmura
Библиотека и учебный центр Hexagone Фото © Takuji Shimmura
Библиотека и учебный центр Hexagone
Фото © Takuji Shimmura
Библиотека и учебный центр Hexagone Фото © Takuji Shimmura
Библиотека и учебный центр Hexagone
Фото © Takuji Shimmura
Библиотека и учебный центр Hexagone
Библиотека и учебный центр Hexagone
Фото © Takuji Shimmura
Библиотека и учебный центр Hexagone
Библиотека и учебный центр Hexagone
© Rémy Marciano Architecte
Библиотека и учебный центр Hexagone
Библиотека и учебный центр Hexagone
© Rémy Marciano Architecte
Библиотека и учебный центр Hexagone
Библиотека и учебный центр Hexagone
© Rémy Marciano Architecte
Библиотека и учебный центр Hexagone
Библиотека и учебный центр Hexagone
© Rémy Marciano Architecte
Библиотека и учебный центр Hexagone
Библиотека и учебный центр Hexagone
© Rémy Marciano Architecte
Библиотека и учебный центр Hexagone
Библиотека и учебный центр Hexagone
© Rémy Marciano Architecte