Размещено на портале Архи.ру (www.archi.ru)

17.06.2019

Лаборатория шоппинга

Нина Фролова
Объект:
Центральный универмаг Galeries Lafayette на Елисейских полях
Адрес:
Франция, None, Париж.
Мастерская:
BIG

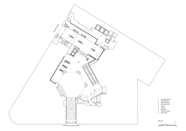
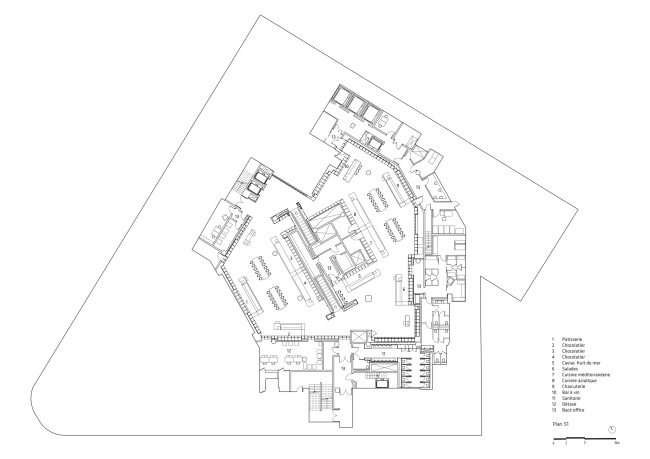
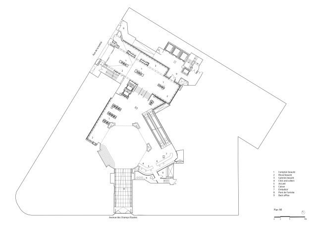
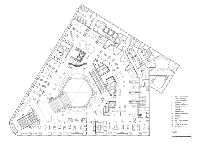
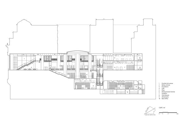
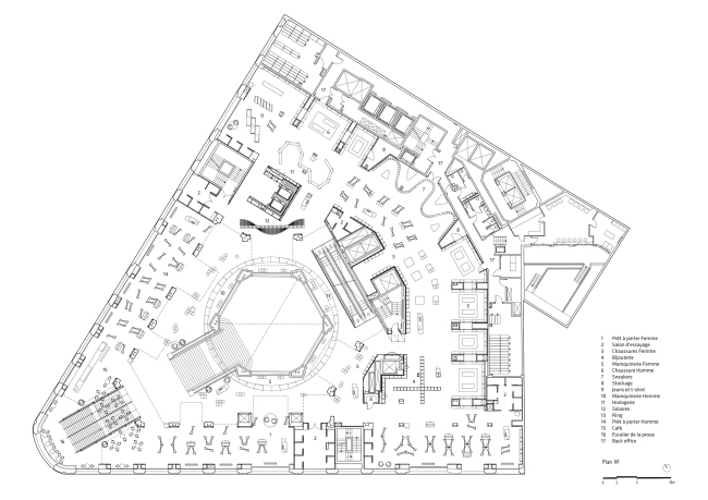
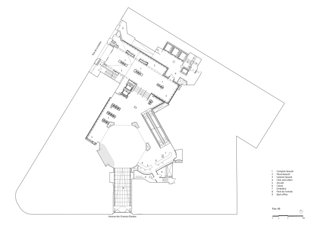
Архитекторы BIG превратили банковское здание 1930-х на Елисейских полях в Париже в центральный универмаг Galeries Lafayette.

Центральный универмаг Galeries Lafayette на Елисейских полях
Центральный универмаг Galeries Lafayette на Елисейских полях
Фото © Salem Mostefaoui

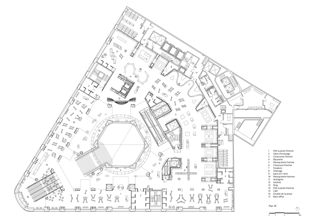
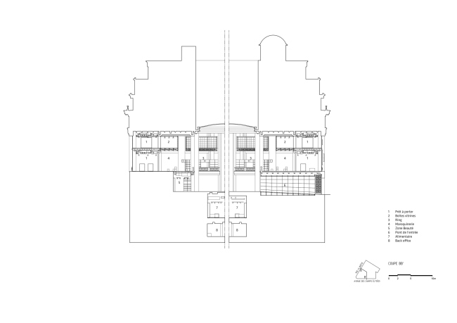
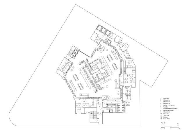
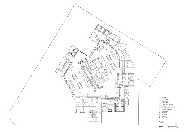
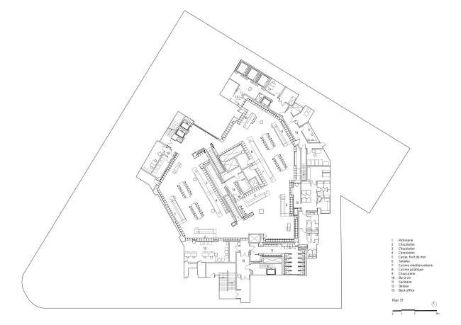
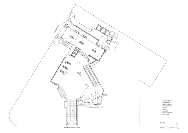
Новый универмаг стал самым крупным магазином на Елисейских полях (6800 м2): это не только центральный «пункт» сети Galeries Lafayette, но и «концепт-стор», торговая лаборатория, как называют ее архитекторы. Расположение в бывшем здании американского банка 1932 года в стиле ар деко (архитектор Андре Арфидсон) определило появление дорогих, необычных материалов и продуманных деталей, которые, однако, использованы в новаторском ключе. Старая традиция роскошного универмага в центре города дополнена здесь современными тенденциями: пространствами для проведения различных мероприятий, сочетанием новейших и солидных марок, ориентацией на «впечатление» и «опыт» посетителя.
 
Центральный универмаг Galeries Lafayette на Елисейских полях Фото © Delfino Sisto Legnani & Marco Cappelletti
Центральный универмаг Galeries Lafayette на Елисейских полях
Фото © Delfino Sisto Legnani & Marco Cappelletti
Центральный универмаг Galeries Lafayette на Елисейских полях Фото © Salem Mostefaoui
Центральный универмаг Galeries Lafayette на Елисейских полях
Фото © Salem Mostefaoui
Центральный универмаг Galeries Lafayette на Елисейских полях
Центральный универмаг Galeries Lafayette на Елисейских полях
Фото © Florent Michel
Центральный универмаг Galeries Lafayette на Елисейских полях
Центральный универмаг Galeries Lafayette на Елисейских полях
Фото © Delfino Sisto Legnani & Marco Cappelletti
Центральный универмаг Galeries Lafayette на Елисейских полях Фото © Delfino Sisto Legnani & Marco Cappelletti
Центральный универмаг Galeries Lafayette на Елисейских полях
Фото © Delfino Sisto Legnani & Marco Cappelletti
Центральный универмаг Galeries Lafayette на Елисейских полях Фото © Delfino Sisto Legnani & Marco Cappelletti
Центральный универмаг Galeries Lafayette на Елисейских полях
Фото © Delfino Sisto Legnani & Marco Cappelletti
Центральный универмаг Galeries Lafayette на Елисейских полях Фото © Delfino Sisto Legnani & Marco Cappelletti
Центральный универмаг Galeries Lafayette на Елисейских полях
Фото © Delfino Sisto Legnani & Marco Cappelletti
Центральный универмаг Galeries Lafayette на Елисейских полях Фото © Florent Michel
Центральный универмаг Galeries Lafayette на Елисейских полях
Фото © Florent Michel
Центральный универмаг Galeries Lafayette на Елисейских полях Фото © Delfino Sisto Legnani & Marco Cappelletti
Центральный универмаг Galeries Lafayette на Елисейских полях
Фото © Delfino Sisto Legnani & Marco Cappelletti
Центральный универмаг Galeries Lafayette на Елисейских полях Фото © Delfino Sisto Legnani & Marco Cappelletti
Центральный универмаг Galeries Lafayette на Елисейских полях
Фото © Delfino Sisto Legnani & Marco Cappelletti

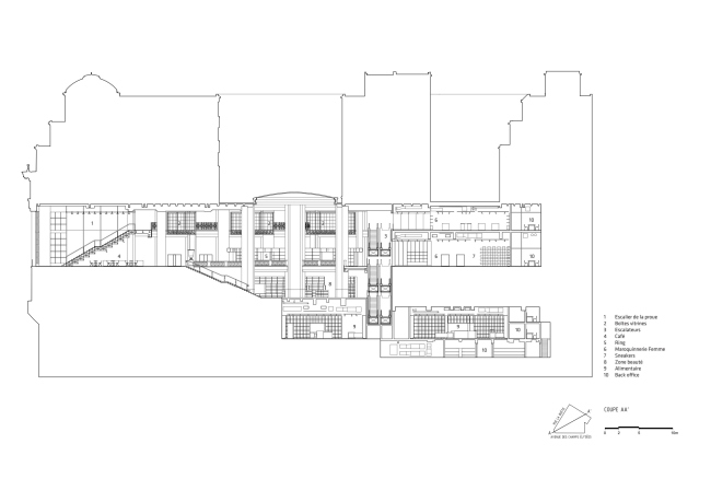
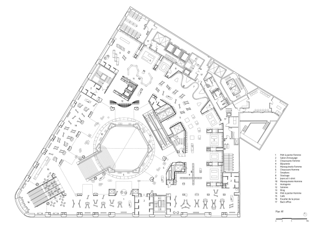
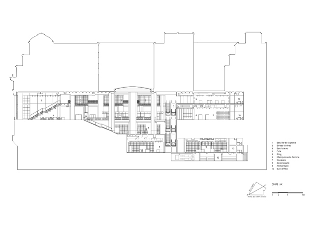
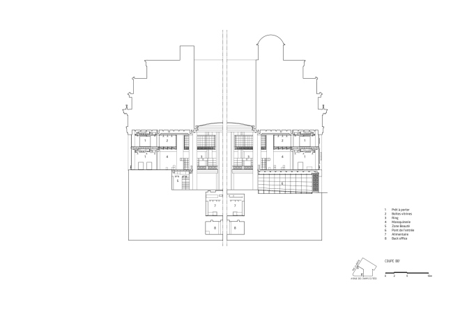
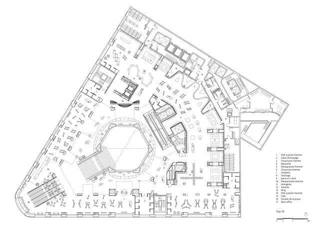
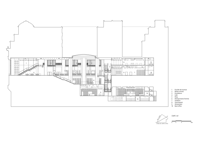
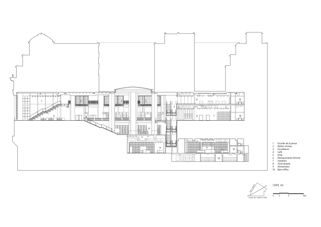
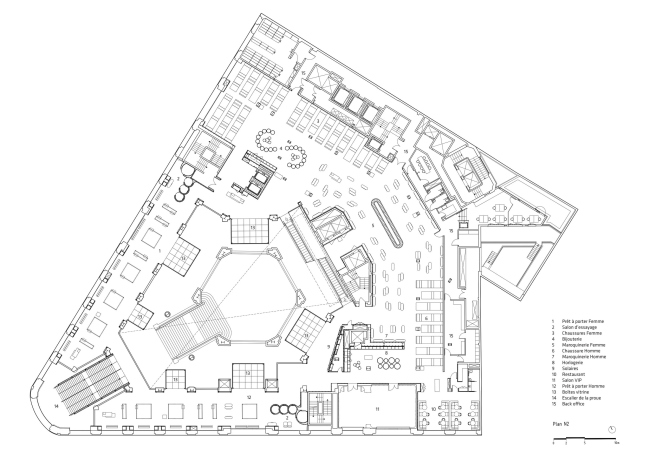
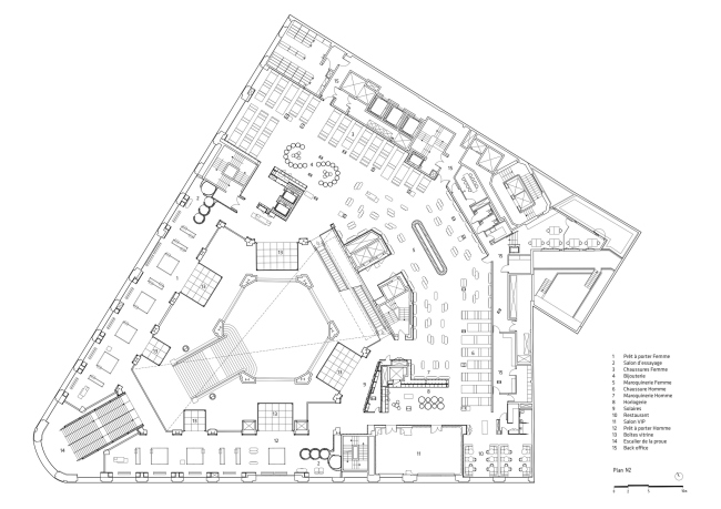
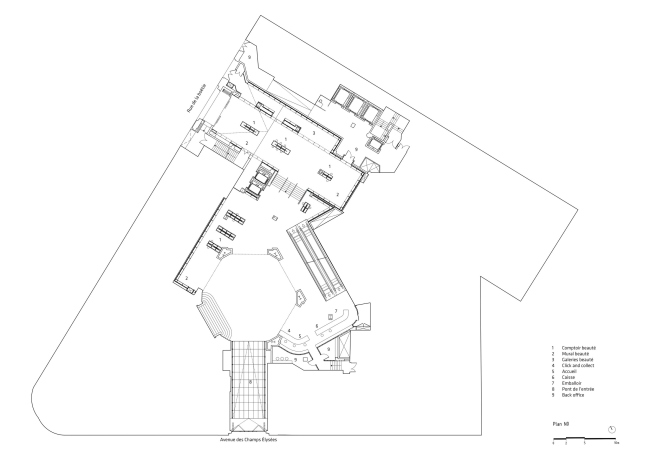
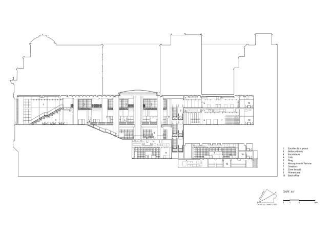
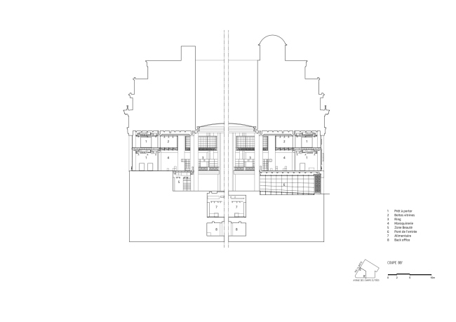
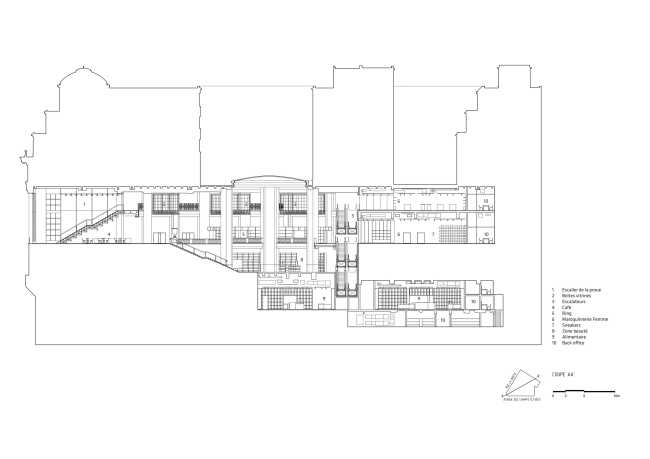
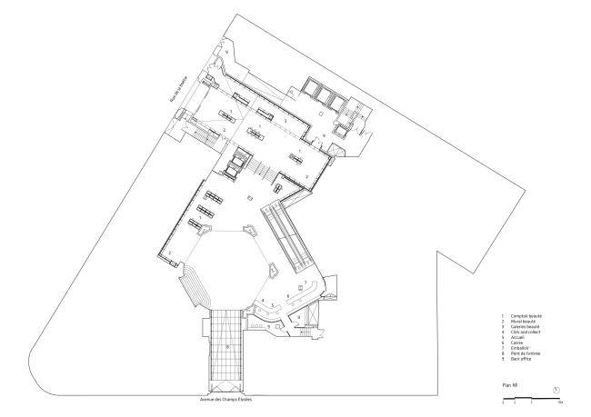
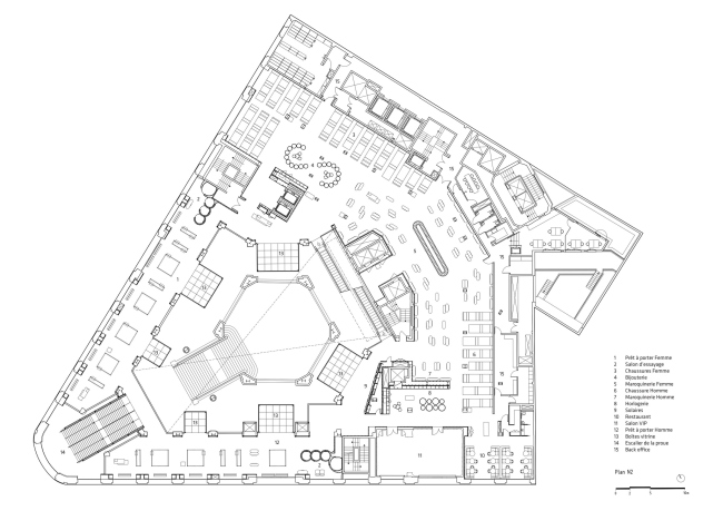
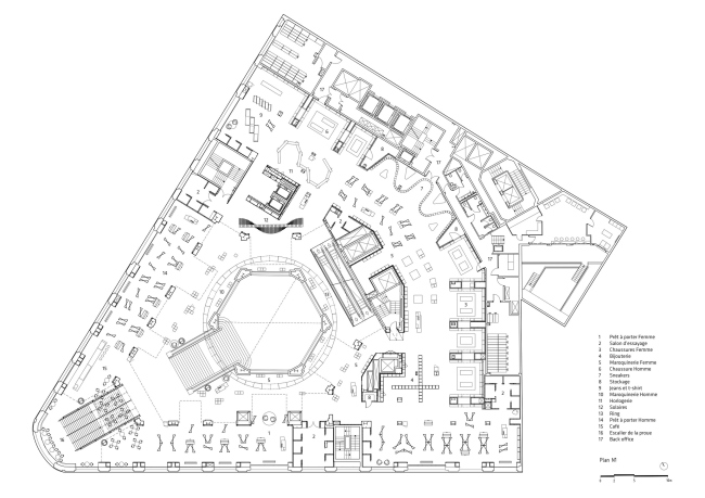
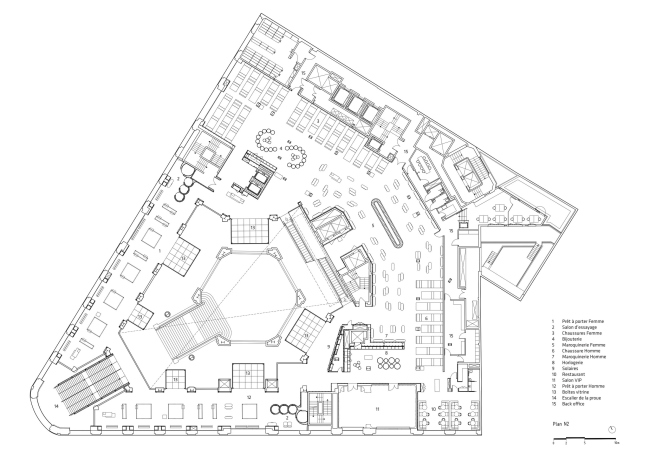
Вход оформлен как светящийся «мост», ведущий в эффектный круглый атриум с тщательно отреставрированным стеклянным куполом. Первый этаж – это «городская гостиная», где можно проводить показы мод, презентации новых товаров и т.д. Главная лестница в такие моменты становится зрительскими рядами, а в обычное время по ней можно попасть на второй ярус, с огибающими атриум прилавками и витринами из золотистого перфорированного металла. Там и в остальных пространствах размещены «актуальные» марки, продаются кроссовки и гаджеты особых серий, ювелирные украшения, устроена джинсовая «лаборатория».
 
Центральный универмаг Galeries Lafayette на Елисейских полях
Центральный универмаг Galeries Lafayette на Елисейских полях
Фото © Salem Mostefaoui
Центральный универмаг Galeries Lafayette на Елисейских полях
Центральный универмаг Galeries Lafayette на Елисейских полях
Фото © Salem Mostefaoui
Центральный универмаг Galeries Lafayette на Елисейских полях
Центральный универмаг Galeries Lafayette на Елисейских полях
Фото © Florent Michel
Центральный универмаг Galeries Lafayette на Елисейских полях Фото © Florent Michel
Центральный универмаг Galeries Lafayette на Елисейских полях
Фото © Florent Michel
Центральный универмаг Galeries Lafayette на Елисейских полях Фото © Florent Michel
Центральный универмаг Galeries Lafayette на Елисейских полях
Фото © Florent Michel

Все этажи магазина можно охватить взглядом из атриума. Выше ведут эскалаторы, оформленные теми же материалами, что и это ключевое пространство. Торговая мебель трактуется архитекторами как арт-объект или архитектурное сооружение. Ковры как будто превращаются в примерочные, витрины-подставки для обуви – в скамьи для ее примерки, прилавки – в скульптуры. С верхнего, четвертого яруса в атриум выступают остекленные консоли для «спецпроектов».
 
Центральный универмаг Galeries Lafayette на Елисейских полях
Центральный универмаг Galeries Lafayette на Елисейских полях
Фото © Florent Michel

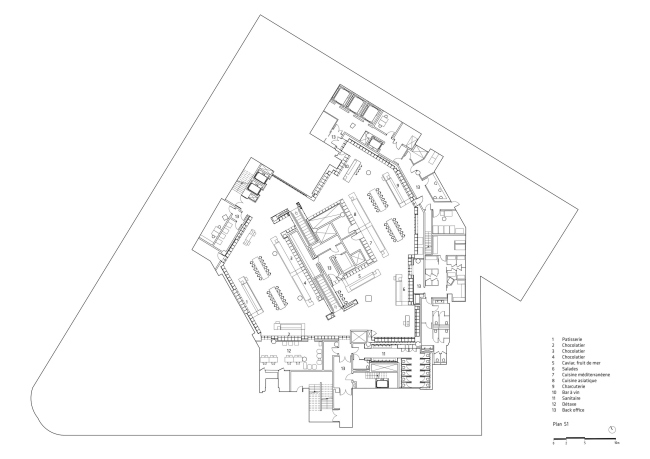
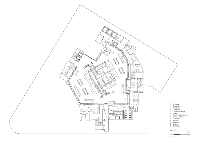
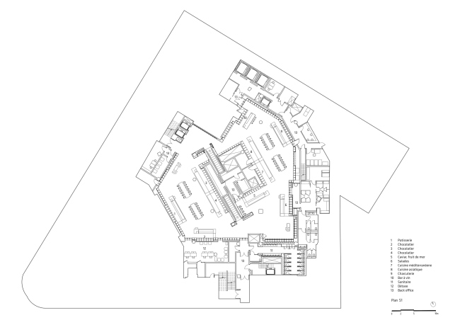
На цокольном этаже устроен «парижский фуд-корт», где можно пообедать или купить разнообразные продукты, на втором ярусе – «кофейный салон» Citron, а на третьем – ресторан Oursin с видами на город. Оба эти заведения оформил модельер Симон Порт Жакмюс, оператором выступила компания Caviar Kaspia.
Центральный универмаг Galeries Lafayette на Елисейских полях
Центральный универмаг Galeries Lafayette на Елисейских полях
Фото © Matthieu Salvaing
Центральный универмаг Galeries Lafayette на Елисейских полях
Центральный универмаг Galeries Lafayette на Елисейских полях
Фото © Florent Michel
Центральный универмаг Galeries Lafayette на Елисейских полях
Центральный универмаг Galeries Lafayette на Елисейских полях
Фото © Florent Michel
Центральный универмаг Galeries Lafayette на Елисейских полях Фото © Florent Michel
Центральный универмаг Galeries Lafayette на Елисейских полях
Фото © Florent Michel
Центральный универмаг Galeries Lafayette на Елисейских полях Фото © Florent Michel
Центральный универмаг Galeries Lafayette на Елисейских полях
Фото © Florent Michel
Центральный универмаг Galeries Lafayette на Елисейских полях Фото © Florent Michel
Центральный универмаг Galeries Lafayette на Елисейских полях
Фото © Florent Michel
Центральный универмаг Galeries Lafayette на Елисейских полях
Центральный универмаг Galeries Lafayette на Елисейских полях
Фото © Florent Michel
Центральный универмаг Galeries Lafayette на Елисейских полях
Центральный универмаг Galeries Lafayette на Елисейских полях
Фото © Florent Michel
Центральный универмаг Galeries Lafayette на Елисейских полях
Центральный универмаг Galeries Lafayette на Елисейских полях
Фото © Florent Michel
Центральный универмаг Galeries Lafayette на Елисейских полях Фото © Delfino Sisto Legnani & Marco Cappelletti
Центральный универмаг Galeries Lafayette на Елисейских полях
Фото © Delfino Sisto Legnani & Marco Cappelletti
Центральный универмаг Galeries Lafayette на Елисейских полях Фото © Salem Mostefaoui
Центральный универмаг Galeries Lafayette на Елисейских полях
Фото © Salem Mostefaoui
Центральный универмаг Galeries Lafayette на Елисейских полях Фото © Matthieu Salvaing
Центральный универмаг Galeries Lafayette на Елисейских полях
Фото © Matthieu Salvaing
Центральный универмаг Galeries Lafayette на Елисейских полях
Центральный универмаг Galeries Lafayette на Елисейских полях
© BIG
Центральный универмаг Galeries Lafayette на Елисейских полях
Центральный универмаг Galeries Lafayette на Елисейских полях
© BIG
Центральный универмаг Galeries Lafayette на Елисейских полях
Центральный универмаг Galeries Lafayette на Елисейских полях
© BIG
Центральный универмаг Galeries Lafayette на Елисейских полях
Центральный универмаг Galeries Lafayette на Елисейских полях
© BIG
Центральный универмаг Galeries Lafayette на Елисейских полях
Центральный универмаг Galeries Lafayette на Елисейских полях
© BIG
Центральный универмаг Galeries Lafayette на Елисейских полях
Центральный универмаг Galeries Lafayette на Елисейских полях
© BIG
Центральный универмаг Galeries Lafayette на Елисейских полях
Центральный универмаг Galeries Lafayette на Елисейских полях
© BIG
Центральный универмаг Galeries Lafayette на Елисейских полях
Центральный универмаг Galeries Lafayette на Елисейских полях
© BIG
Центральный универмаг Galeries Lafayette на Елисейских полях
Центральный универмаг Galeries Lafayette на Елисейских полях
© BIG
Центральный универмаг Galeries Lafayette на Елисейских полях
Центральный универмаг Galeries Lafayette на Елисейских полях
© BIG
Центральный универмаг Galeries Lafayette на Елисейских полях
Центральный универмаг Galeries Lafayette на Елисейских полях
© BIG
Центральный универмаг Galeries Lafayette на Елисейских полях
Центральный универмаг Galeries Lafayette на Елисейских полях
© BIG
Центральный универмаг Galeries Lafayette на Елисейских полях
Центральный универмаг Galeries Lafayette на Елисейских полях
© BIG