Размещено на портале Архи.ру (www.archi.ru)

06.06.2019

Палаццо для кроссовок

Нина Фролова
Объект:
Штаб-квартира компании ASICS
Адрес:
Нидерланды, None, Хофддорп.
Мастерская:
Powerhouse Company

Региональная штаб-квартира компании ASICS близ Амстердама по проекту Powerhouse Company.

Штаб-квартира компании ASICS
Штаб-квартира компании ASICS
Фото © Sebastian van Damme

В штаб-квартире японского производителя спортивной одежды ASICS в голландском городе Хофддорп занимаются делами этой компании на территории Европы, Ближнего Востока и Африки. Здание находится в одном из самых «зеленых» и озелененных офисных парков Нидерландов, а из его окон открывается вид на объект Всемирного наследия – линию оборонительных сооружений Амстердама.
 
Штаб-квартира компании ASICS
Штаб-квартира компании ASICS
Фото © Sebastian van Damme
Штаб-квартира компании ASICS Фото © Sebastian van Damme
Штаб-квартира компании ASICS
Фото © Sebastian van Damme
Штаб-квартира компании ASICS Фото © Sebastian van Damme
Штаб-квартира компании ASICS
Фото © Sebastian van Damme
Штаб-квартира компании ASICS Фото © Sebastian van Damme
Штаб-квартира компании ASICS
Фото © Sebastian van Damme
Штаб-квартира компании ASICS Фото © Sebastian van Damme
Штаб-квартира компании ASICS
Фото © Sebastian van Damme
Штаб-квартира компании ASICS Фото © Sebastian van Damme
Штаб-квартира компании ASICS
Фото © Sebastian van Damme
Штаб-квартира компании ASICS Фото © Sebastian van Damme
Штаб-квартира компании ASICS
Фото © Sebastian van Damme
Штаб-квартира компании ASICS Фото © Sebastian van Damme
Штаб-квартира компании ASICS
Фото © Sebastian van Damme
Штаб-квартира компании ASICS Фото © Sebastian van Damme
Штаб-квартира компании ASICS
Фото © Sebastian van Damme

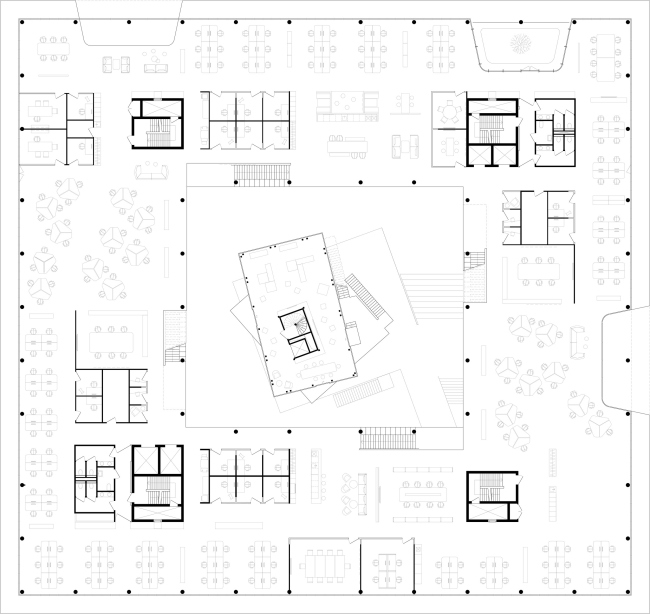
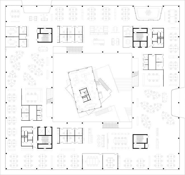
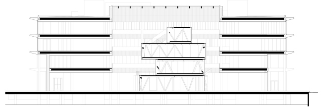
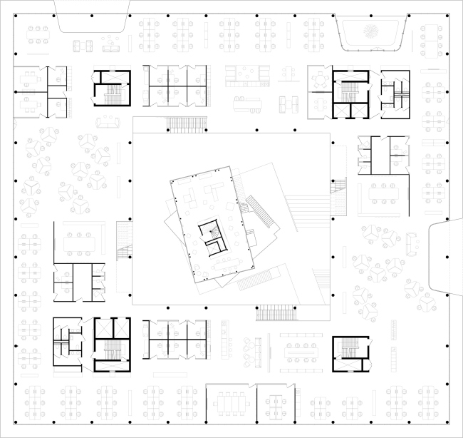
В плане постройка, которую авторы сравнивают с палаццо – каре с большим атриумом в центре. Туда выходят в виде балконов четыре офисных этажа, лишенные колонн пространства площадью 2800 м2 каждый. В центре атриума помещен напоминающий стопку коробок ASICS World, который сочетает функции места для собраний, подиума и центра дизайна. На уровне первого этажа его окружают столовая, Power Health Bar, фирменные спортзал и магазин. Атриум пересекают «игривые» лестницы – место неформальных встреч сотрудников.
 
Штаб-квартира компании ASICS
Штаб-квартира компании ASICS
Фото © Sebastian van Damme
Штаб-квартира компании ASICS
Штаб-квартира компании ASICS
Фото © Sebastian van Damme
Штаб-квартира компании ASICS
Штаб-квартира компании ASICS
Фото © Sebastian van Damme

Гибкая планировка позволит зданию соответствовать своей функции насколько возможно долго. Обилие солнечного света сочетается с защитой от перегрева: горизонтальные профили затеняют стеклянные фасады. На каждом этаже есть открытые ниши-террасы, где сотрудники могут отдохнуть. Зданием управляет «умная» система, постоянно замеряющая в интерьере температуру, уровень освещенности и содержание CO2, но на программу климатконтроля и светильники можно влиять и индивидуально, с помощью приложения для смартфона. Здание претендует на «золотой» эко-сертификат LEED и такой же уровень сертификации WELL, определяющей состояние здоровья пользователей постройки.
Штаб-квартира компании ASICS
Штаб-квартира компании ASICS
Фото © Sebastian van Damme
Штаб-квартира компании ASICS
Штаб-квартира компании ASICS
Фото © Sebastian van Damme
Штаб-квартира компании ASICS
Штаб-квартира компании ASICS
Фото © Sebastian van Damme
Штаб-квартира компании ASICS
Штаб-квартира компании ASICS
Фото © Sebastian van Damme
Штаб-квартира компании ASICS
Штаб-квартира компании ASICS
Фото © Sebastian van Damme
Штаб-квартира компании ASICS
Штаб-квартира компании ASICS
Фото © alek photography
Штаб-квартира компании ASICS
Штаб-квартира компании ASICS
Фото © alek photography
Штаб-квартира компании ASICS
Штаб-квартира компании ASICS
© Powerhouse Company
Штаб-квартира компании ASICS
Штаб-квартира компании ASICS
© Powerhouse Company
Штаб-квартира компании ASICS
Штаб-квартира компании ASICS
© Powerhouse Company
Штаб-квартира компании ASICS
Штаб-квартира компании ASICS
© Powerhouse Company
Штаб-квартира компании ASICS
Штаб-квартира компании ASICS
© Powerhouse Company