Размещено на портале Архи.ру (www.archi.ru)

21.05.2019

Призыв к культуре

Нина Фролова
Объект:
Музей новейшего искусства MARe
Адрес:
Румыния, None, Бухарест.
Мастерская:
YTAA

Музей новейшего искусства MARe в Бухаресте по проекту ливанского бюро YTAA – реконструкция типичной виллы 1930-х.

Музей новейшего искусства MARe
Музей новейшего искусства MARe
Фото © Cosmin Dragomir

Частный музей новейшего искусства MARe посвящен румынскому искусству за последние полвека. Собрал его коллекцию ливанский предприниматель Роже Акури, один из создателей крупнейшей в Румынии фармацевтической компании A&D Pharma. Одновременно он партнер и со-основатель бейрутского архитектурного бюро YTAA (Youssef Tohme Architects and Associates), которое и занялось зданием для его музея.
 
Музей новейшего искусства MARe
Музей новейшего искусства MARe
Фото © Cosmin Dragomir
Музей новейшего искусства MARe Фото © Cosmin Dragomir
Музей новейшего искусства MARe
Фото © Cosmin Dragomir
Музей новейшего искусства MARe Фото © Toufic Dagher
Музей новейшего искусства MARe
Фото © Toufic Dagher
Музей новейшего искусства MARe Фото © Cosmin Dragomir
Музей новейшего искусства MARe
Фото © Cosmin Dragomir
Музей новейшего искусства MARe Фото © Cosmin Dragomir
Музей новейшего искусства MARe
Фото © Cosmin Dragomir
Музей новейшего искусства MARe Фото © Cosmin Dragomir
Музей новейшего искусства MARe
Фото © Cosmin Dragomir
Музей новейшего искусства MARe Фото © Cosmin Dragomir
Музей новейшего искусства MARe
Фото © Cosmin Dragomir
Музей новейшего искусства MARe Фото © Cosmin Dragomir
Музей новейшего искусства MARe
Фото © Cosmin Dragomir
Музей новейшего искусства MARe Фото © Cosmin Dragomir
Музей новейшего искусства MARe
Фото © Cosmin Dragomir
Музей новейшего искусства MARe Фото © Cosmin Dragomir
Музей новейшего искусства MARe
Фото © Cosmin Dragomir
Музей новейшего искусства MARe
Музей новейшего искусства MARe
Фото © Toufic Dagher

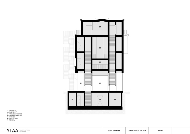
Основой стала городская вилла 1930-х, ничем не примечательная кроме того, что в конце 1940-х там жила влиятельнейшая румынская коммунистка, министр иностранных дел Анна Паукер. Архитекторы увидели в реконструкции возможность «воспроизвести» жилище в виде музея, превратив сооружение в обращенный к Бухаресту призыв к культуре, а также к конфронтации с прошлым, с историей – в противовес принципу «чистого листа» глобализации. Авторы отказались от строительства нового с нуля и от консервации старого: в результате, получилась «призрачная фигура» виллы, обозначающая преемственность и призванная вызывать вопросы.
 
Вилла до реконструкции © YTAA – Youssef Tohme Architects and Associates
Вилла до реконструкции
© YTAA – Youssef Tohme Architects and Associates
Вилла до реконструкции © YTAA – Youssef Tohme Architects and Associates
Вилла до реконструкции
© YTAA – Youssef Tohme Architects and Associates
Вилла до реконструкции © YTAA – Youssef Tohme Architects and Associates
Вилла до реконструкции
© YTAA – Youssef Tohme Architects and Associates
Музей новейшего искусства MARe
Музей новейшего искусства MARe
Фото © Cosmin Dragomir
Музей новейшего искусства MARe
Музей новейшего искусства MARe
Фото © Cosmin Dragomir

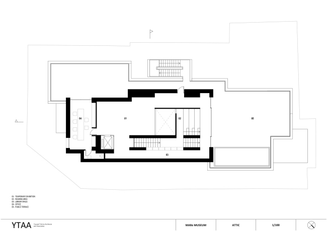
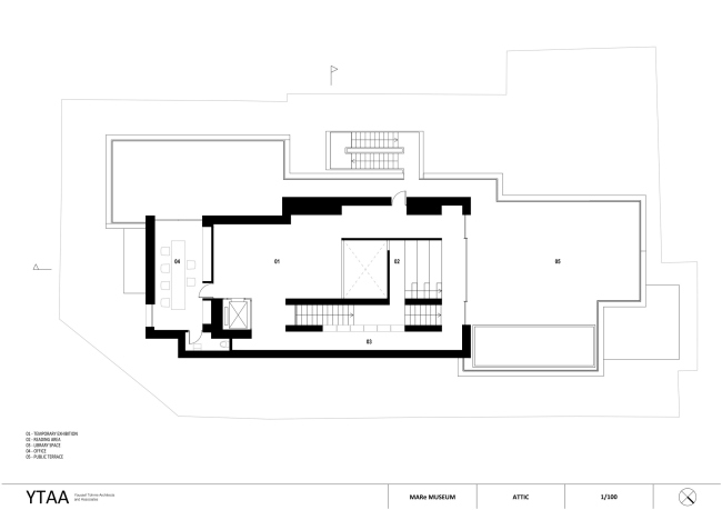
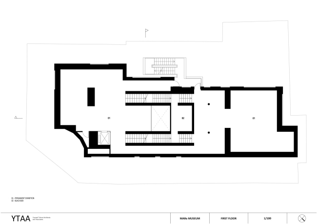
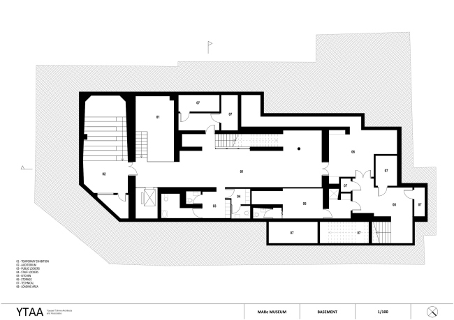
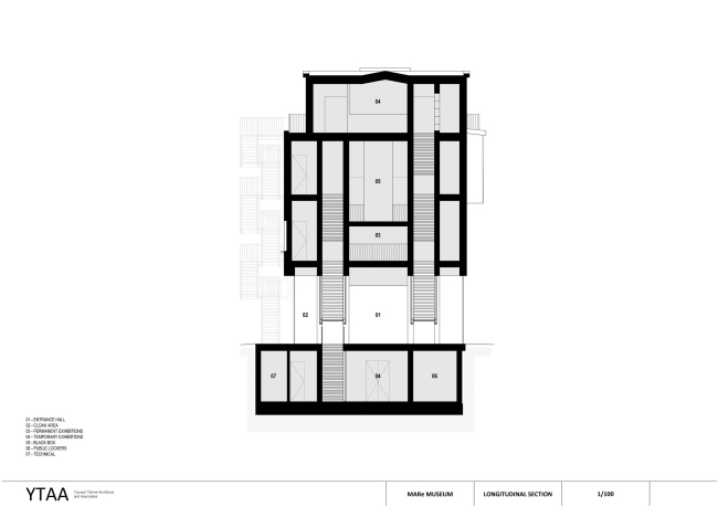
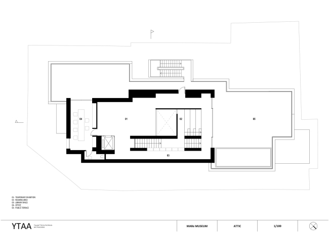
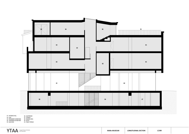
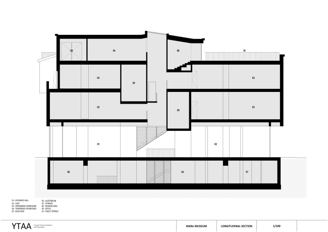
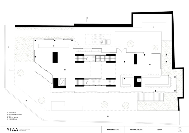
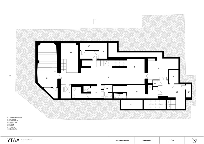
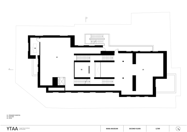
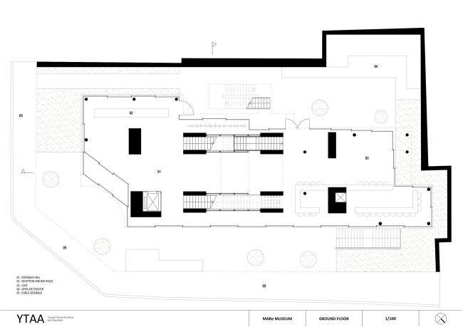
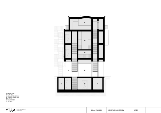
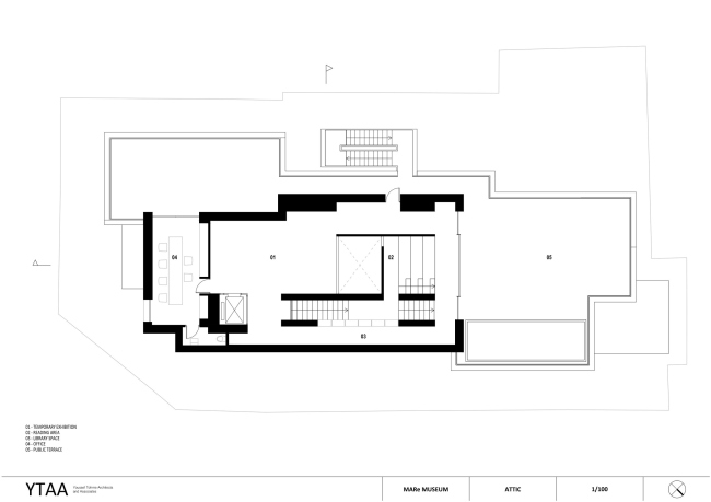
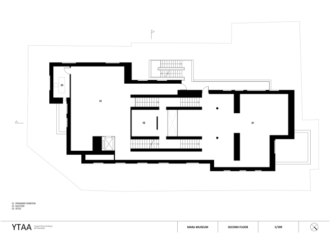
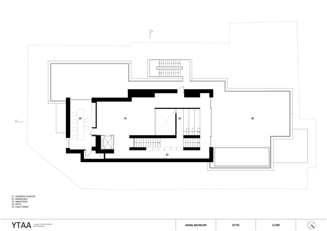
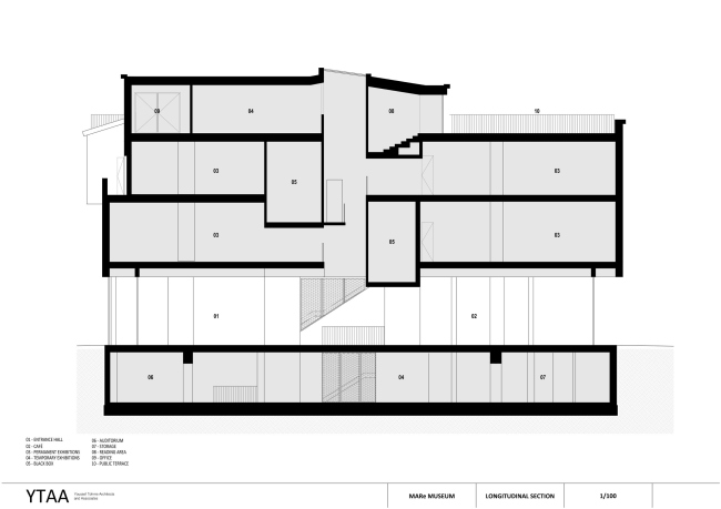
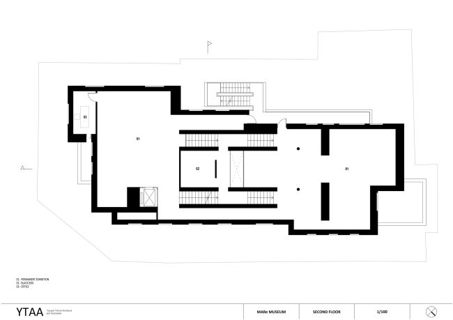
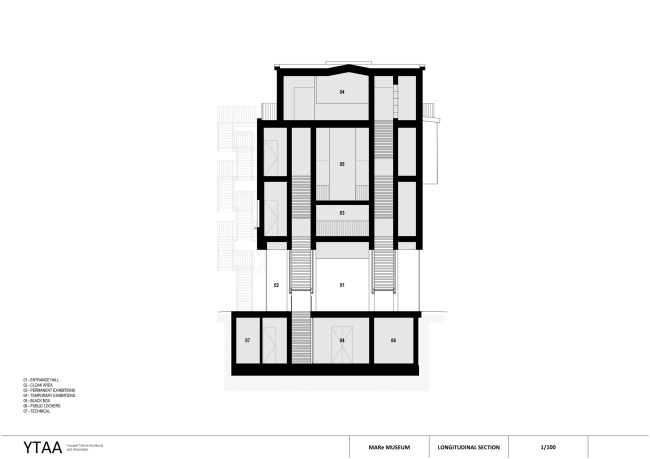
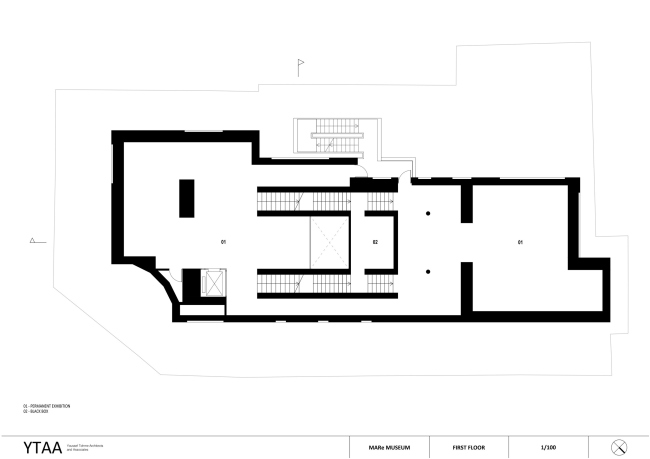
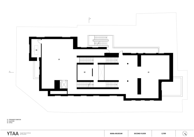
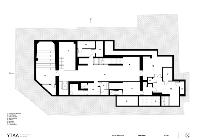
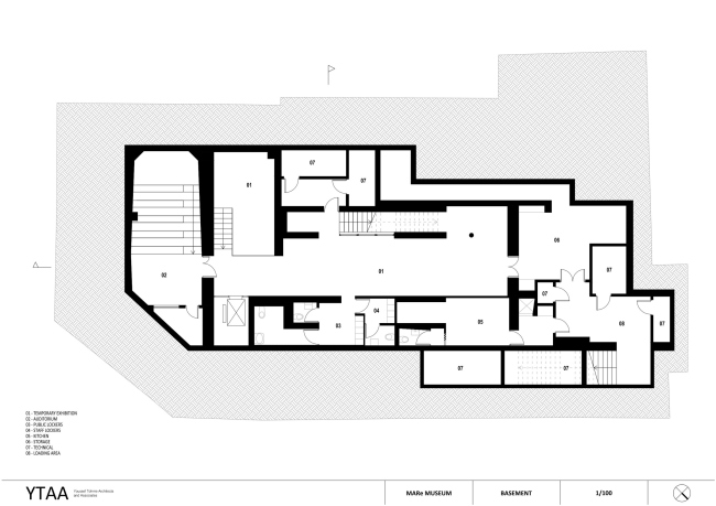
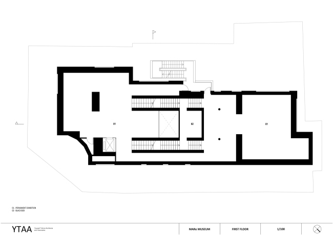
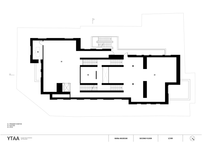
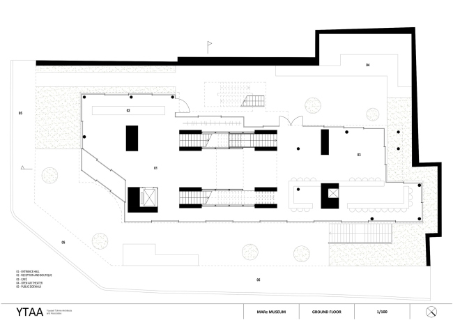
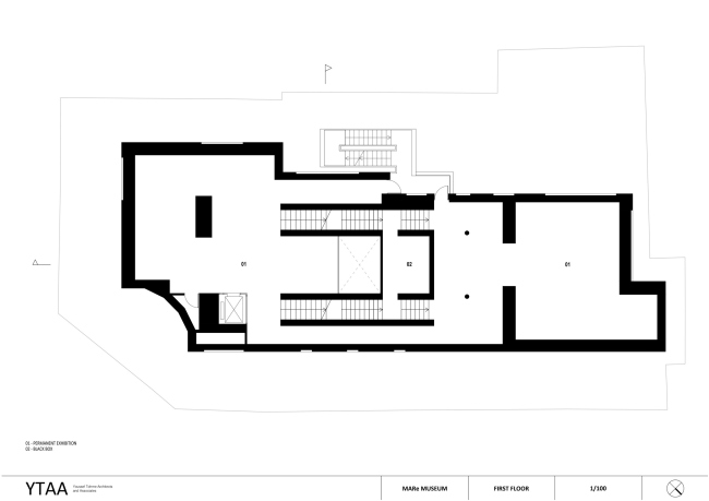
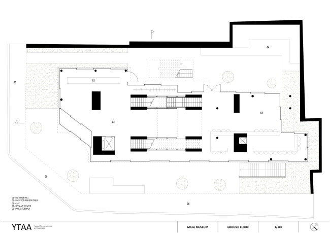
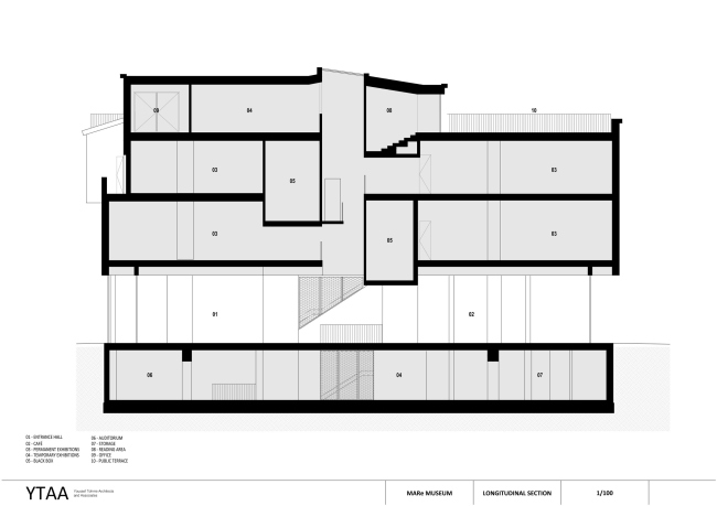
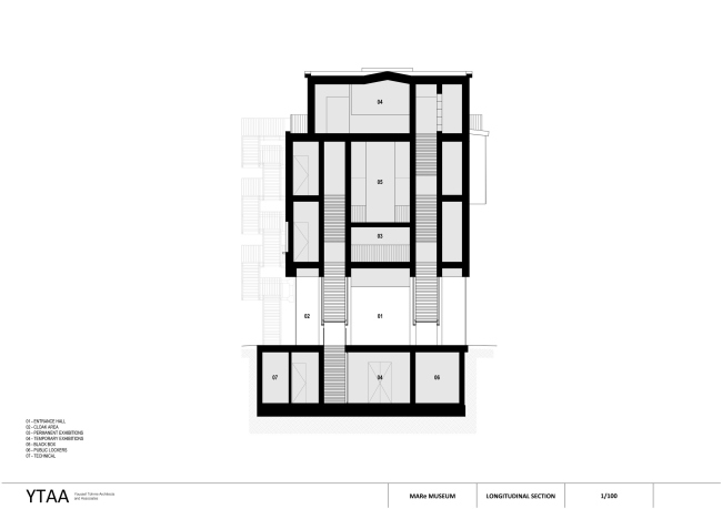
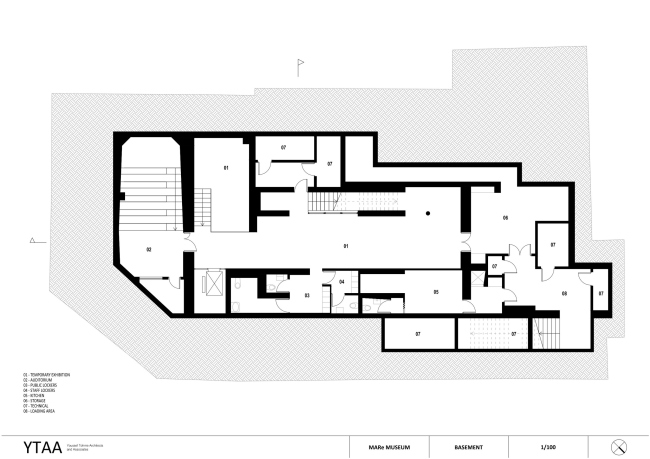
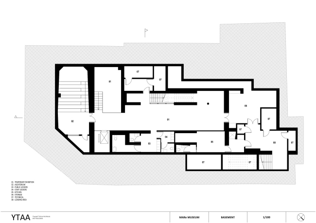
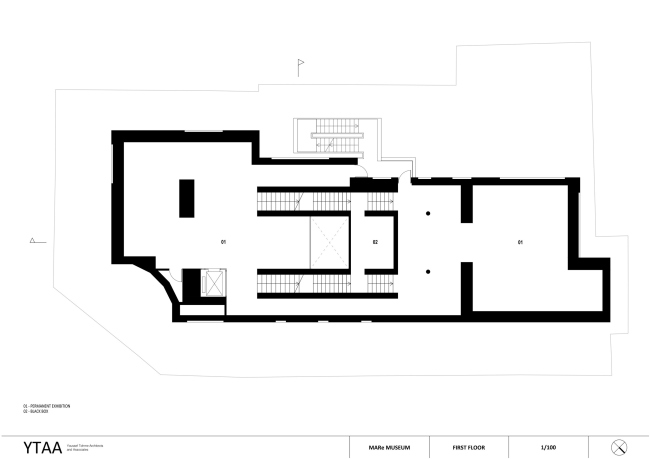
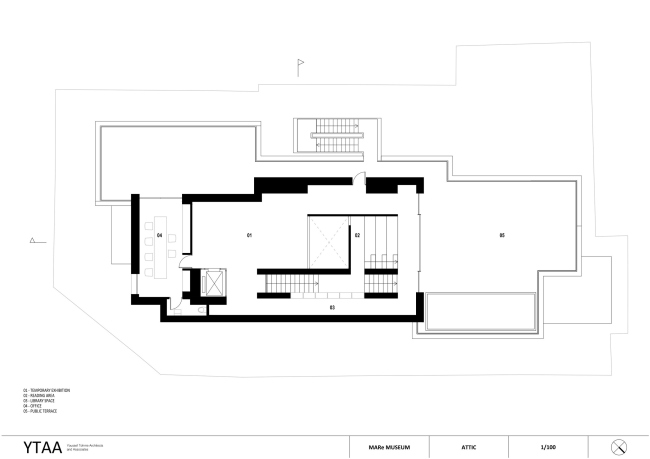
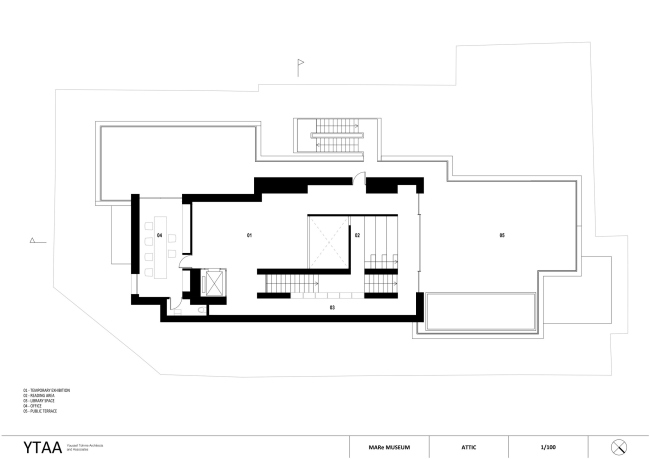
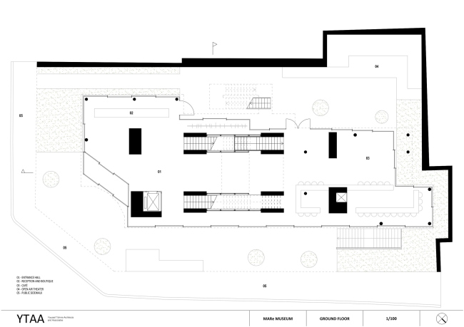
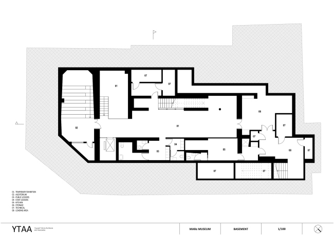
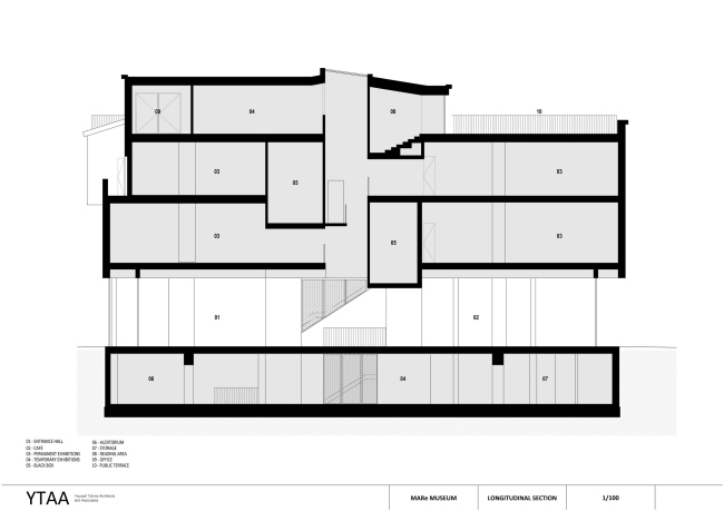
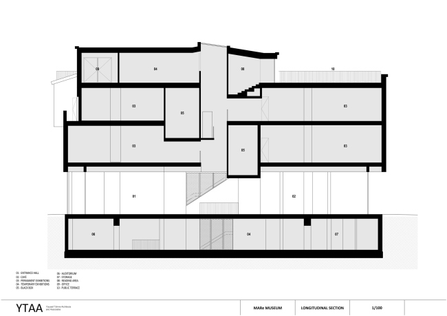
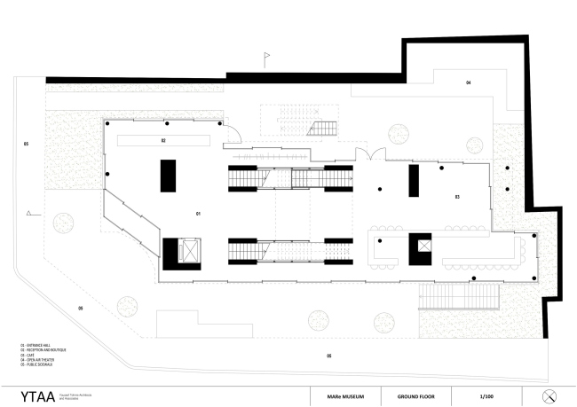
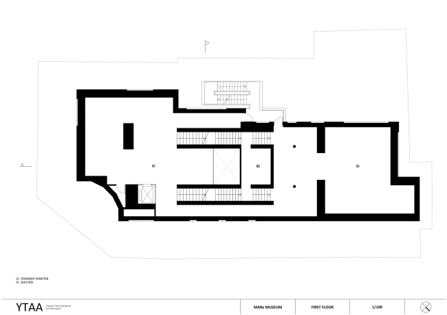
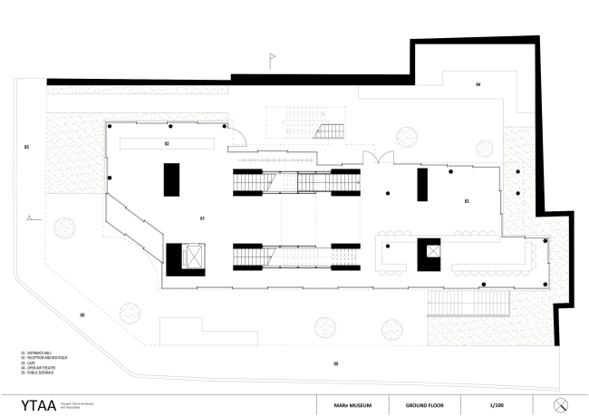
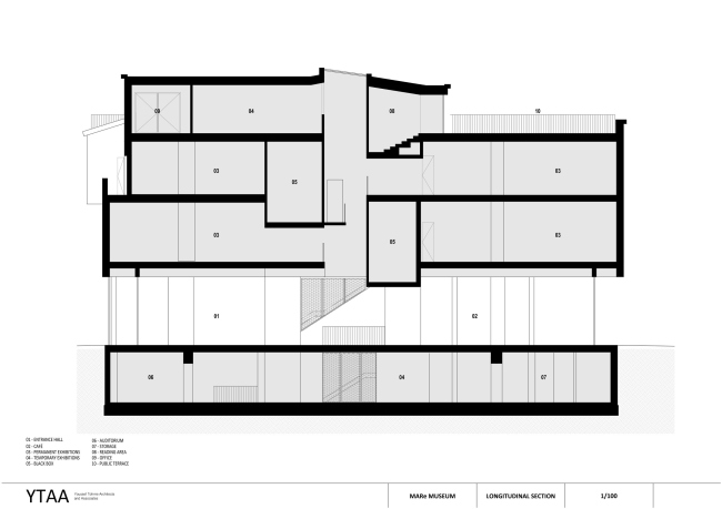
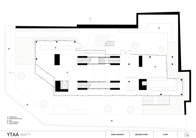
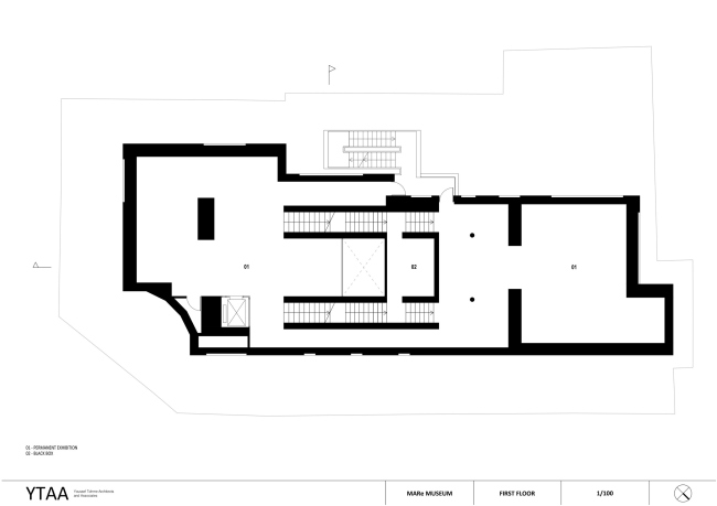
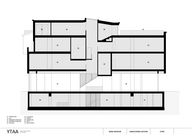
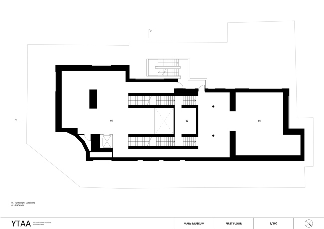
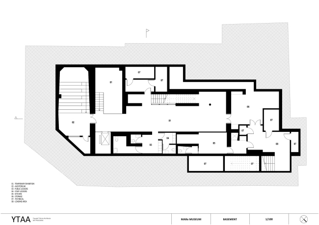
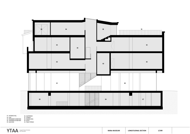
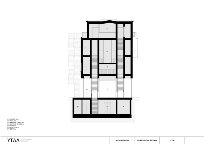
Обращенный к городу первый этаж с вестибюлем и кафе сделан прозрачным. Ниже, в цоколе, и на четвертом, верхнем, этаже устроены залы временных выставок, на втором и третьем ярусах показана постоянная коллекция. Фасады из темного кирпича подчеркнуто скульптурны, напоминая о прежних архитектурных формах в формате абстракции.
 
Музей новейшего искусства MARe
Музей новейшего искусства MARe
Фото © Toufic Dagher
Музей новейшего искусства MARe
Музей новейшего искусства MARe
Фото © Cosmin Dragomir
Музей новейшего искусства MARe
Музей новейшего искусства MARe
Фото © Cosmin Dragomir

В интерьере главную роль играет черный атриум с двумя лестницами, где схема циркуляции заставляет останавливаться, задумываться – или же неожиданно встречаться с другими посетителями. В этой же «антисистеме» помещены два зала (black box) для работ международных художников. В музее также есть аудитория, читальная зона, открытый театр и сад, а также терраса на крыше.
Музей новейшего искусства MARe
Музей новейшего искусства MARe
Фото © Cosmin Dragomir
Музей новейшего искусства MARe
Музей новейшего искусства MARe
Фото © Cosmin Dragomir
Музей новейшего искусства MARe
Музей новейшего искусства MARe
Фото © Cosmin Dragomir
Музей новейшего искусства MARe
Музей новейшего искусства MARe
Фото © Toufic Dagher
Музей новейшего искусства MARe Фото © Cosmin Dragomir
Музей новейшего искусства MARe
Фото © Cosmin Dragomir
Музей новейшего искусства MARe Фото © Cosmin Dragomir
Музей новейшего искусства MARe
Фото © Cosmin Dragomir
Музей новейшего искусства MARe Фото © Cosmin Dragomir
Музей новейшего искусства MARe
Фото © Cosmin Dragomir
Музей новейшего искусства MARe Фото © Cosmin Dragomir
Музей новейшего искусства MARe
Фото © Cosmin Dragomir
Музей новейшего искусства MARe Фото © Toufic Dagher
Музей новейшего искусства MARe
Фото © Toufic Dagher
Музей новейшего искусства MARe Фото © Toufic Dagher
Музей новейшего искусства MARe
Фото © Toufic Dagher
Музей новейшего искусства MARe Фото © Toufic Dagher
Музей новейшего искусства MARe
Фото © Toufic Dagher
Музей новейшего искусства MARe
Музей новейшего искусства MARe
Фото © Toufic Dagher
Музей новейшего искусства MARe
Музей новейшего искусства MARe
Фото © Cosmin Dragomir
Музей новейшего искусства MARe
Музей новейшего искусства MARe
Фото © Cosmin Dragomir
Музей новейшего искусства MARe
Музей новейшего искусства MARe
Фото © Cosmin Dragomir
Музей новейшего искусства MARe
Музей новейшего искусства MARe
Фото © Toufic Dagher
Музей новейшего искусства MARe
Музей новейшего искусства MARe
© YTAA – Youssef Tohme Architects and Associates
Музей новейшего искусства MARe
Музей новейшего искусства MARe
© YTAA – Youssef Tohme Architects and Associates
Музей новейшего искусства MARe
Музей новейшего искусства MARe
© YTAA – Youssef Tohme Architects and Associates
Музей новейшего искусства MARe
Музей новейшего искусства MARe
© YTAA – Youssef Tohme Architects and Associates
Музей новейшего искусства MARe
Музей новейшего искусства MARe
© YTAA – Youssef Tohme Architects and Associates
Музей новейшего искусства MARe
Музей новейшего искусства MARe
© YTAA – Youssef Tohme Architects and Associates
Музей новейшего искусства MARe
Музей новейшего искусства MARe
© YTAA – Youssef Tohme Architects and Associates