Размещено на портале Архи.ру (www.archi.ru)

08.05.2019

Лучше прежнего

Нина Фролова
Объект:
Atlas – главное здание Технического университета Эйндховена
Адрес:
Нидерланды, None, Эйндховен.
Мастерская:
Team V Architectuur

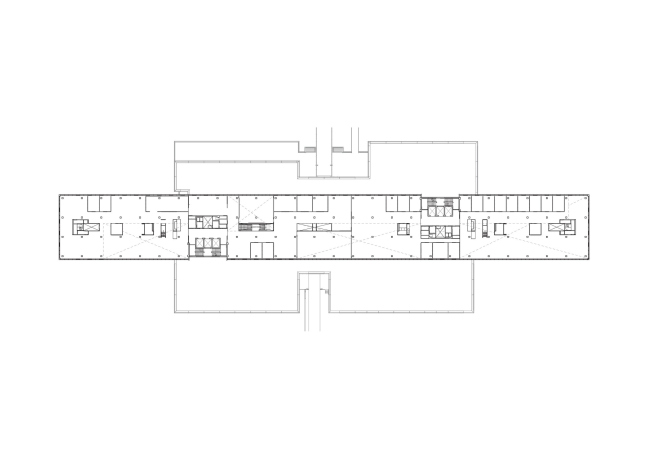
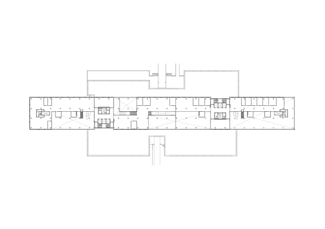
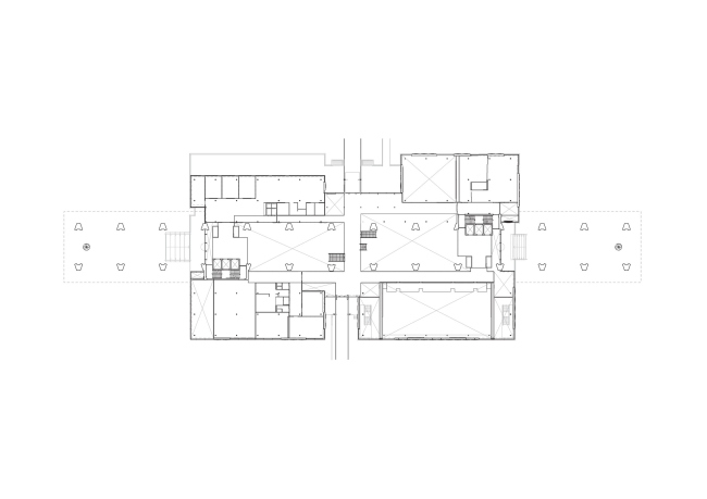
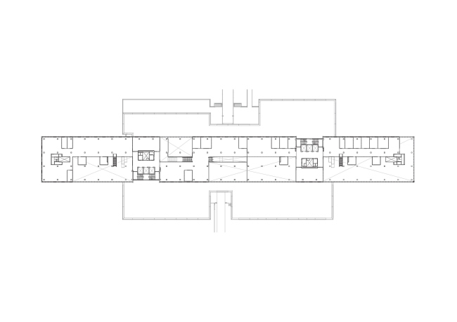
Главное здание Технического университета Эйндховена, модернистская постройка начала 1960-х, после реконструкции по проекту Team V Architectuur стало одним из самых «зеленых» учебных заведений Нидерландов.

Atlas – главное здание Технического университета Эйндховена
Atlas – главное здание Технического университета Эйндховена
Фото © Jannes Linders

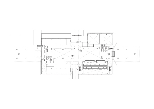
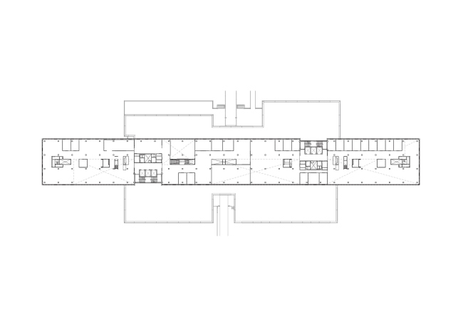
Корпус Atlas Технического университета Эйндховена был построен в 1959–1963 по проекту Самуэла ван Эмбдена. В наши дни сооружение уже не соответствовало стандартам по состоянию инженерных систем, планировке, функциональности, однако из-за его историко-культурной ценности руководство вуза приняло решение о реконструкции, а не сносе. Проект Team V Architectuur и инженерных бюро Van Rossum, Valstar Simonis и Peutz разрабатывался в рамках программы превращения довольно замкнутого университетского кампуса в открытый научный парк международного уровня.
 
Вид главного здания ТУ Эйндховен до реконструкции Фото: daveboy via flickr.com / Wikimedia Commons. Лицензия Creative Commons Attribution-Share Alike 2.0 Generic
Вид главного здания ТУ Эйндховен до реконструкции
Фото: daveboy via flickr.com / Wikimedia Commons. Лицензия Creative Commons Attribution-Share Alike 2.0 Generic
Вид главного здания ТУ Эйндховен до реконструкции Фото: Arno van den Tillaart via flickr.com / Wikimedia Commons. Лицензия Creative Commons Attribution 2.0 Generic
Вид главного здания ТУ Эйндховен до реконструкции
Фото: Arno van den Tillaart via flickr.com / Wikimedia Commons. Лицензия Creative Commons Attribution 2.0 Generic
Atlas – главное здание Технического университета Эйндховена
Atlas – главное здание Технического университета Эйндховена
Фото © Jannes Linders
Atlas – главное здание Технического университета Эйндховена
Atlas – главное здание Технического университета Эйндховена
Фото © Egbert de Boer
Atlas – главное здание Технического университета Эйндховена
Atlas – главное здание Технического университета Эйндховена
Фото © Egbert de Boer
Atlas – главное здание Технического университета Эйндховена
Atlas – главное здание Технического университета Эйндховена
Фото © Egbert de Boer
Atlas – главное здание Технического университета Эйндховена
Atlas – главное здание Технического университета Эйндховена
Фото © Jannes Linders
Atlas – главное здание Технического университета Эйндховена
Atlas – главное здание Технического университета Эйндховена
Фото © Jannes Linders

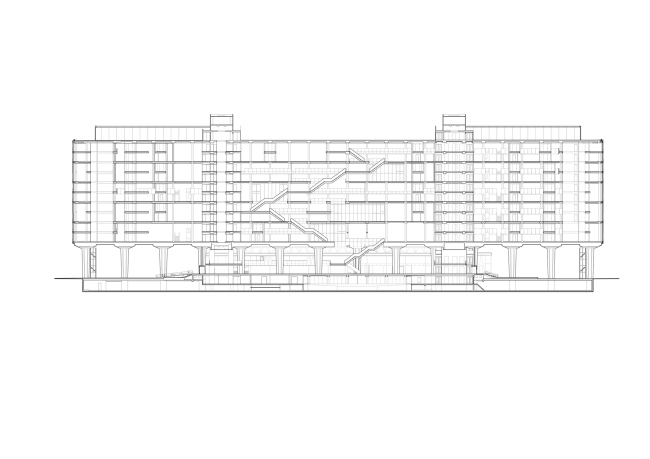
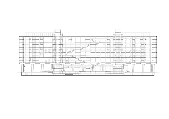
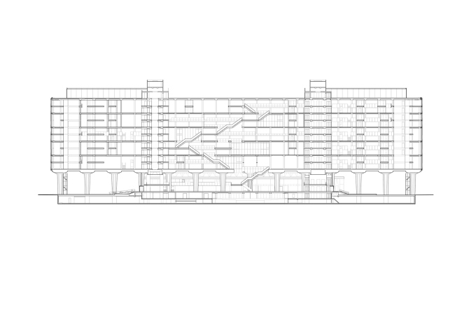
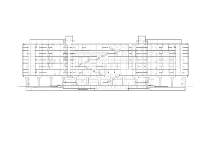
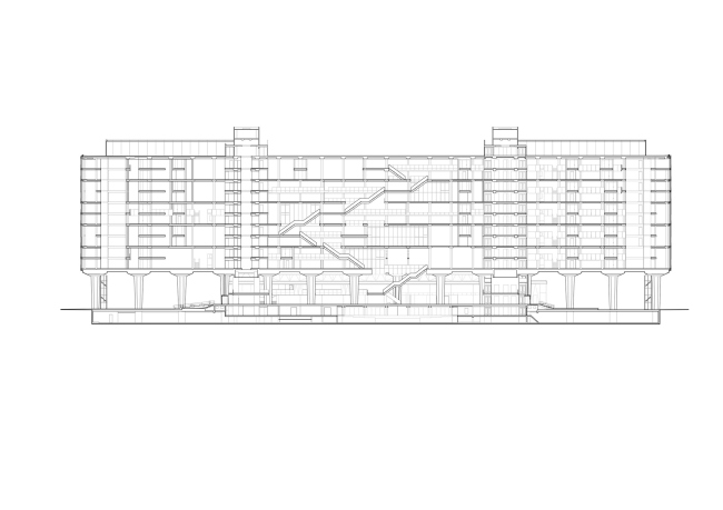
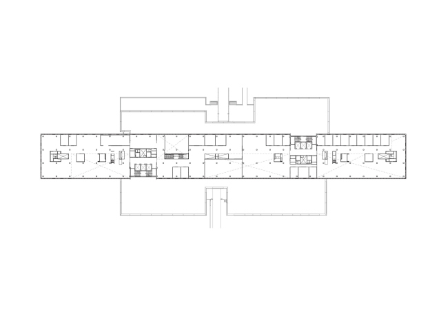
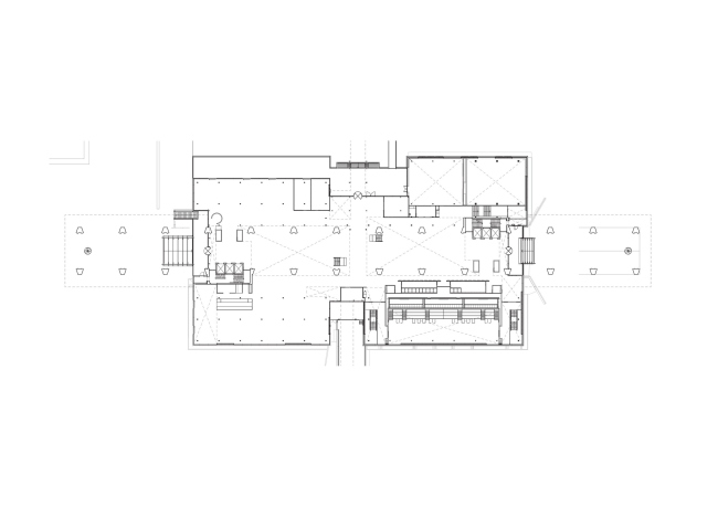
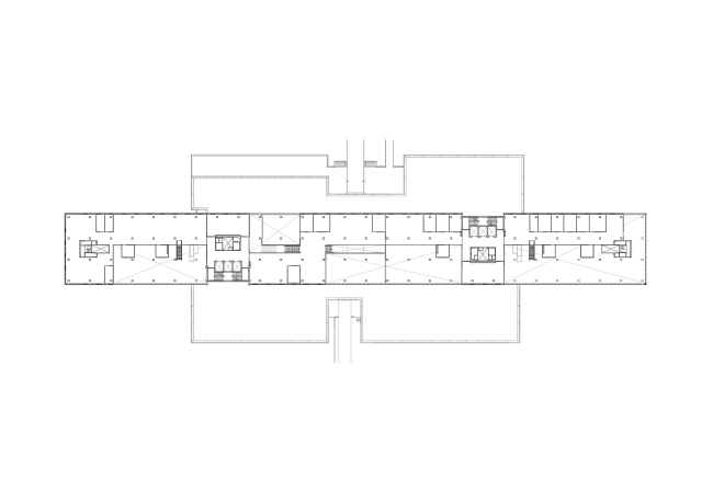
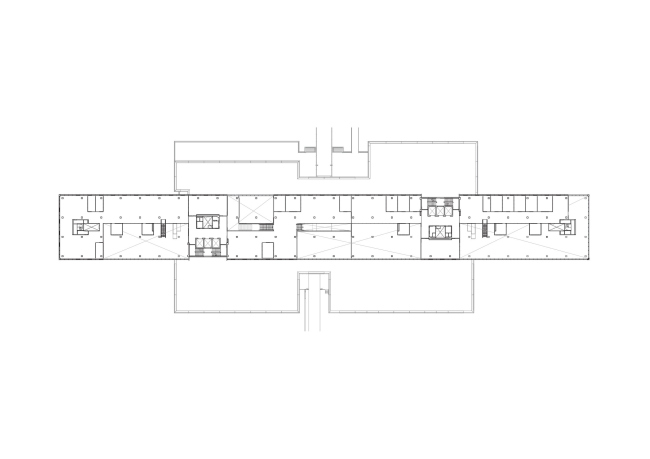
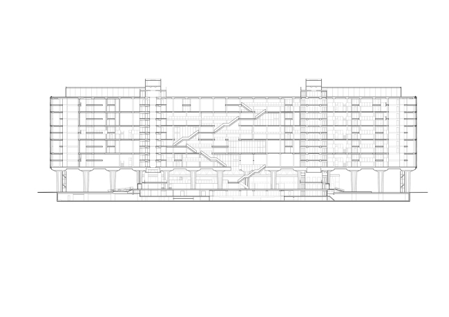
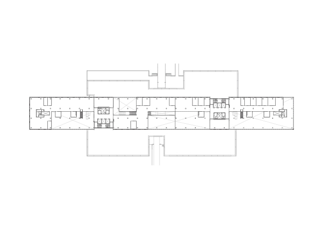
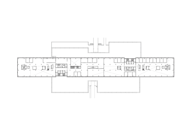
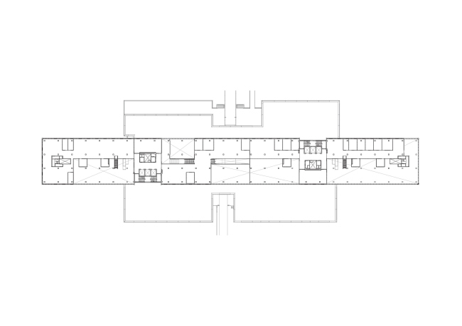
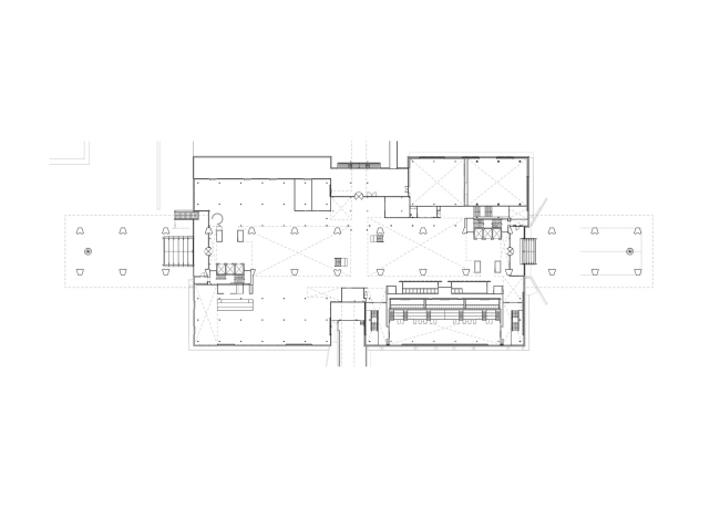
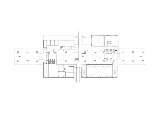
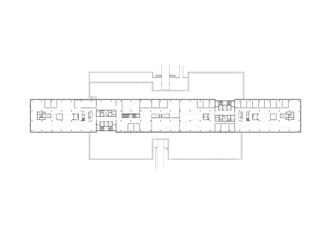
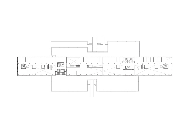
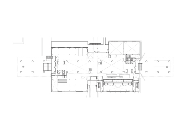
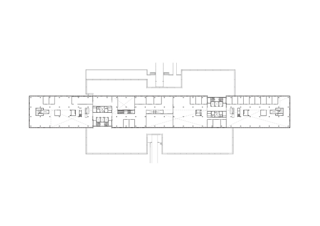
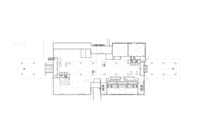
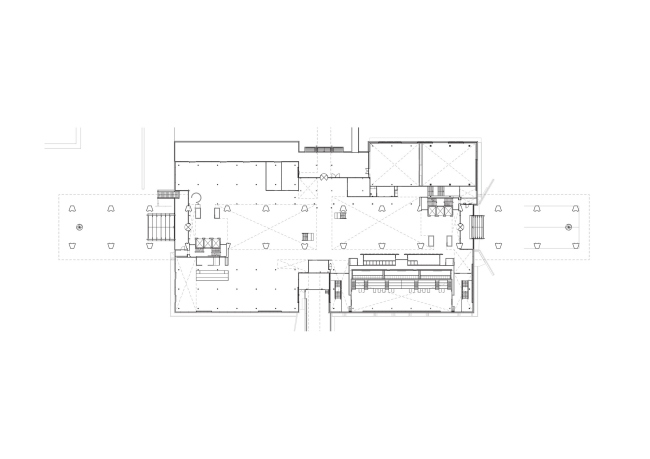
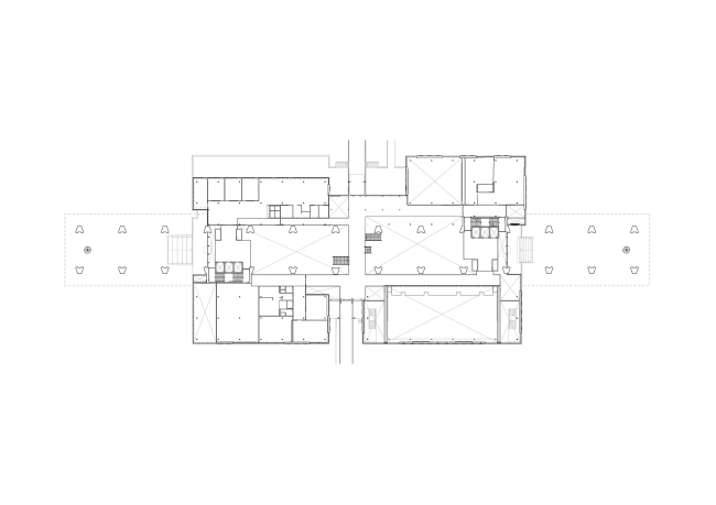
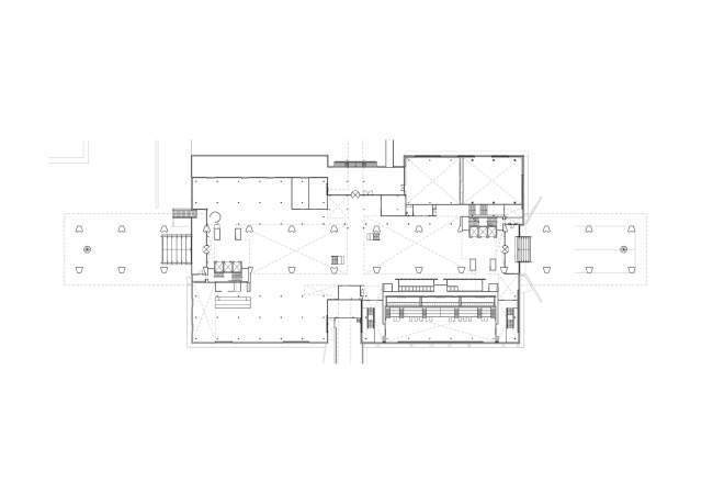
Оригинальные бетонные поверхности в интерьере подчеркнула новая ярко-красная лестница, которая почти не задевает перекрытия, проникая в уже существующие проемы. Вокруг нее организованы помещения общего пользования – лекционные аудитории и классы для практических занятий. Также лестница связывает два факультета, размещенные в противоположных концах постройки.
 
Atlas – главное здание Технического университета Эйндховена
Atlas – главное здание Технического университета Эйндховена
Фото © Jannes Linders

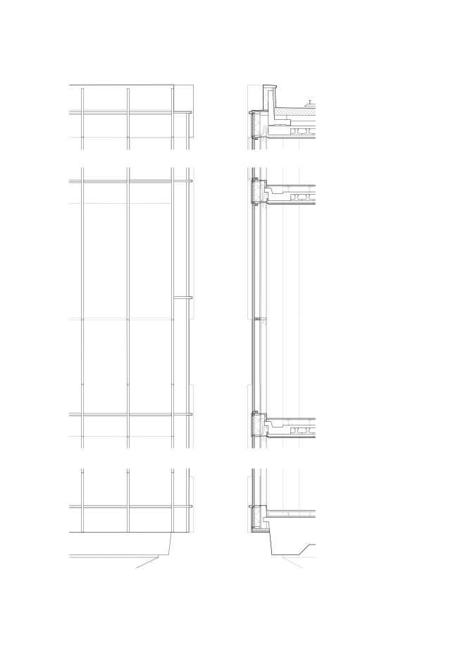
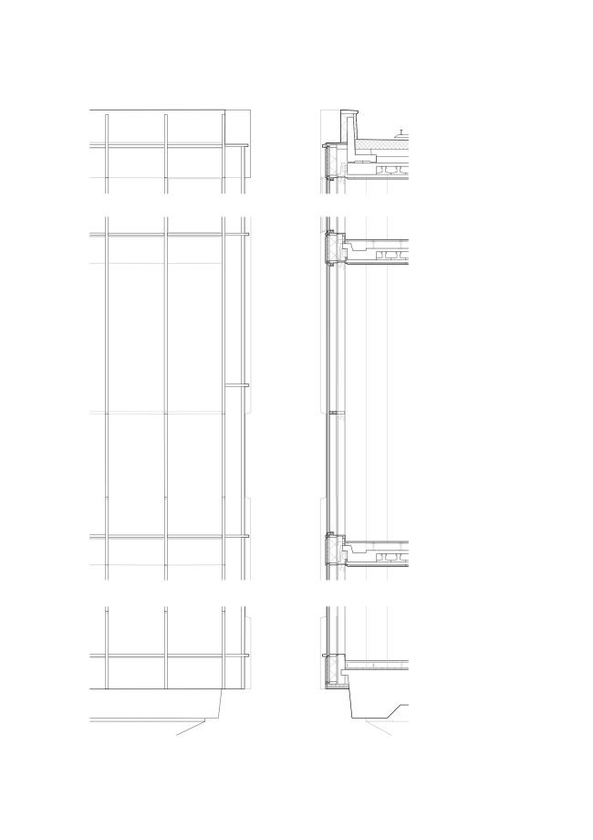
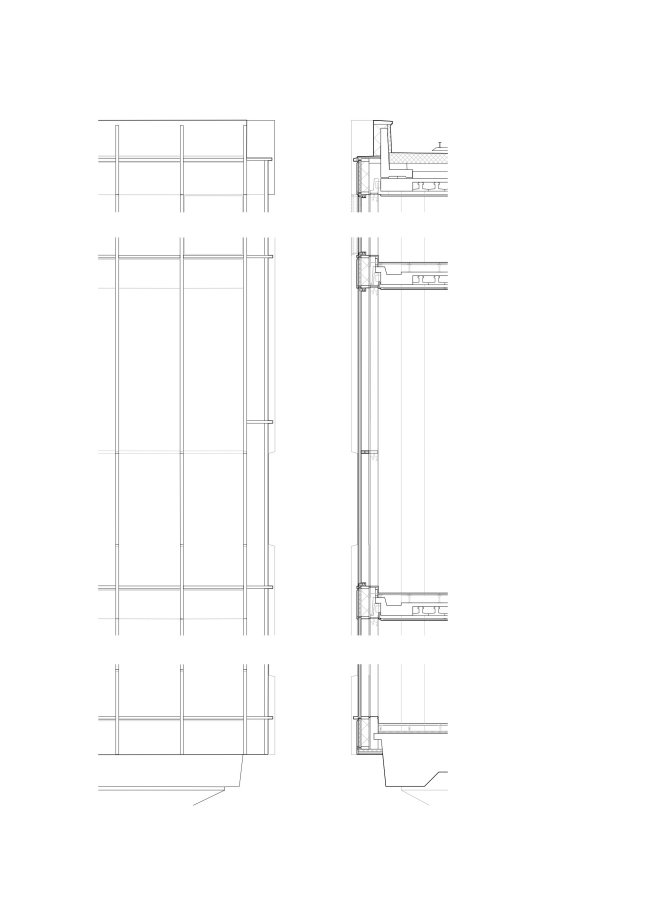
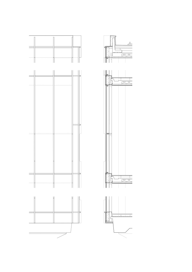
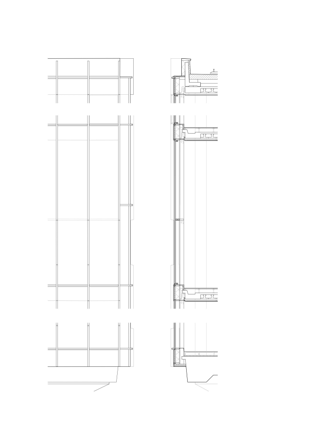
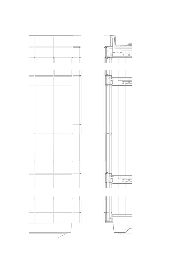
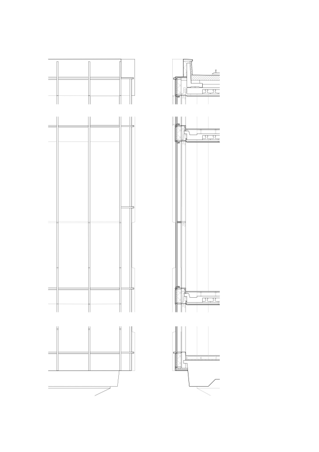
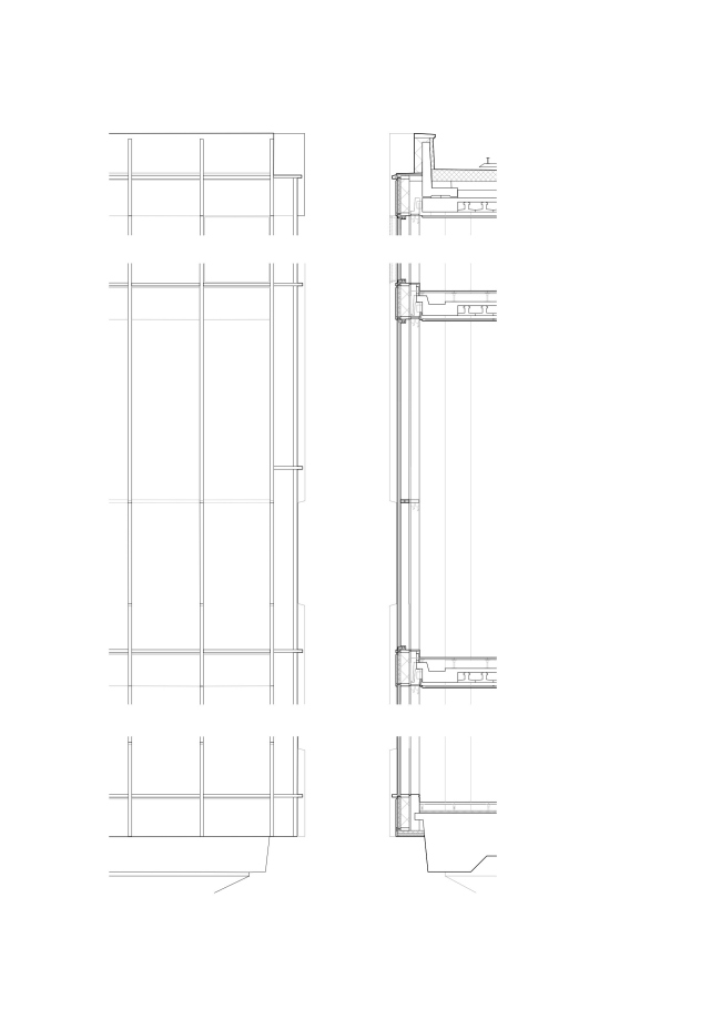
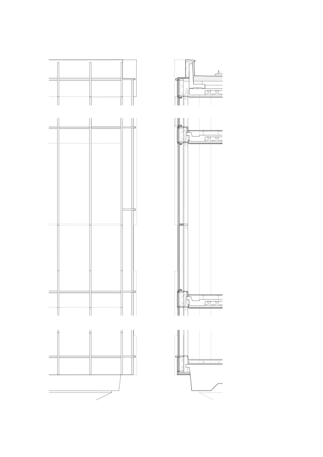
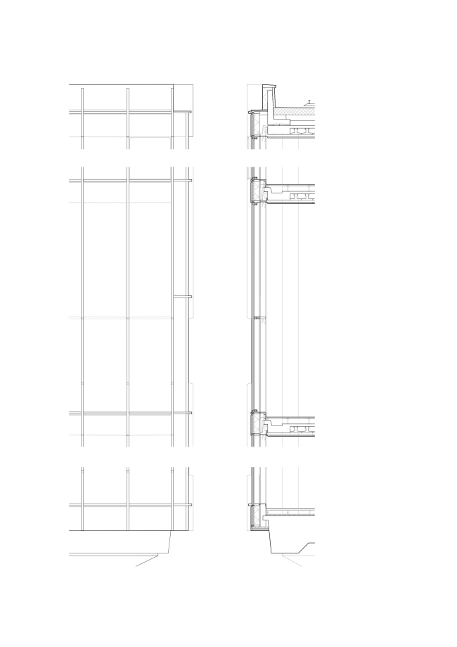
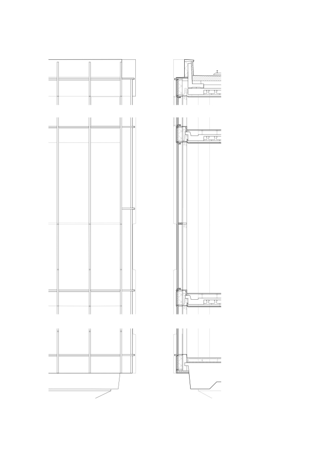
Тройной стеклянный фасад, когда его встроенные жалюзи опущены, сопоставим по термальным качествам с изолированной пустотелой стеной. В летние ночи панорамные окна открываются, чтобы естественным образом охладить и проветрить помещения.
 
Atlas – главное здание Технического университета Эйндховена
Atlas – главное здание Технического университета Эйндховена
Фото © Jannes Linders

Авторы проекта совместно с университетским Институтом «умного» освещения разработали экономную светодиодную систему с пониженным уровнем освещенности. Она также работает как экспериментальная установка, позволяющая тестировать разные режимы и собирать данные для исследований. Пользователи могут управлять светильниками с помощью приложения на смартфоне, таким же образом возможно настроить температуру в комнате или забронировать переговорную.
 
Atlas – главное здание Технического университета Эйндховена
Atlas – главное здание Технического университета Эйндховена
Фото © Jannes Linders

Корпус Atlas площадью 41,5 тыс. м2 получил высший сертификат системы BREEAM – «выдающийся» (Outstanding): он стал первым реконструированным образовательным учреждением в Нидерландах с таким уровнем устойчивости. Сейчас Team V Architectuur работает над двумя схожими проектами – другими корпусами авторства ван Эмбдена в ТУ Эйндховен: Laplace (1972, 12 тыс. м2) и Gemini (1974, 34 тыс. м2).
Atlas – главное здание Технического университета Эйндховена
Atlas – главное здание Технического университета Эйндховена
Фото © Jannes Linders
Atlas – главное здание Технического университета Эйндховена
Atlas – главное здание Технического университета Эйндховена
Фото © Jannes Linders
Atlas – главное здание Технического университета Эйндховена
Atlas – главное здание Технического университета Эйндховена
Фото © Jannes Linders
Atlas – главное здание Технического университета Эйндховена
Atlas – главное здание Технического университета Эйндховена
Фото © Jannes Linders
Atlas – главное здание Технического университета Эйндховена
Atlas – главное здание Технического университета Эйндховена
Фото © Jannes Linders
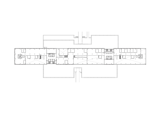
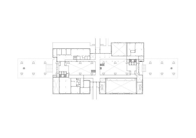
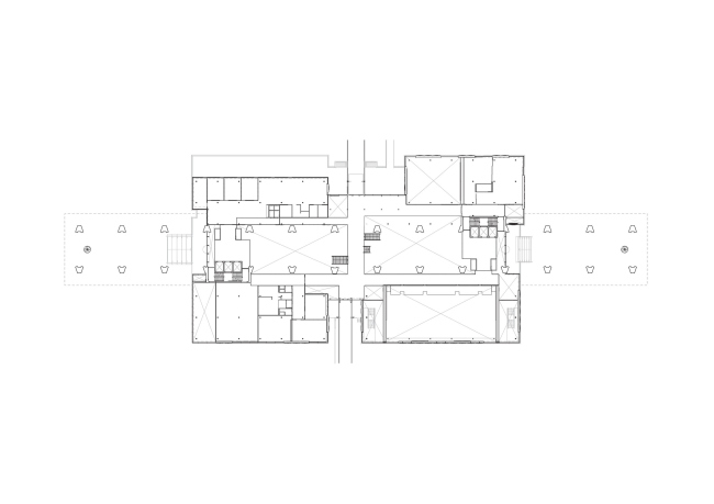
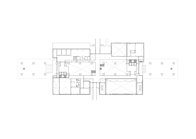
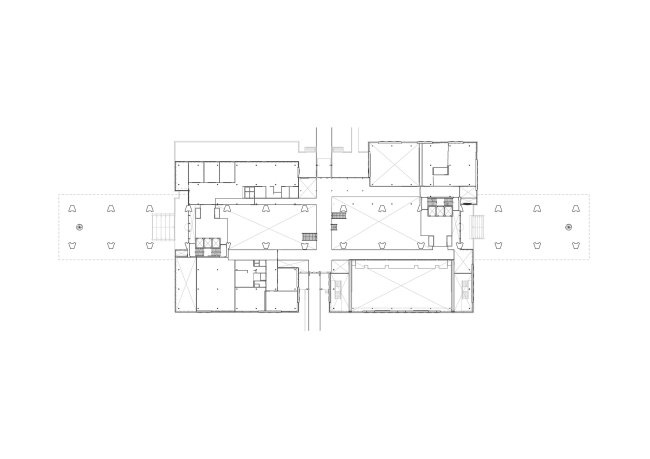
Atlas – главное здание Технического университета Эйндховена
Atlas – главное здание Технического университета Эйндховена
© Team V Architectuur
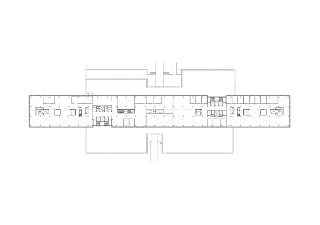
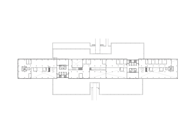
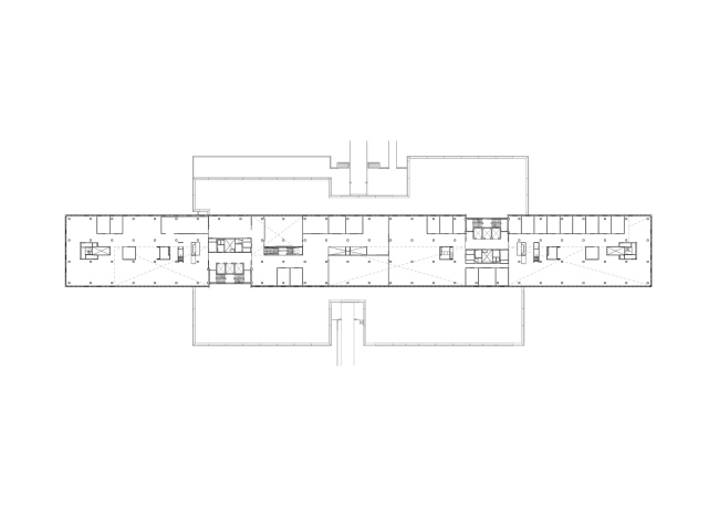
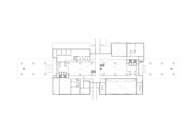
Atlas – главное здание Технического университета Эйндховена
Atlas – главное здание Технического университета Эйндховена
© Team V Architectuur
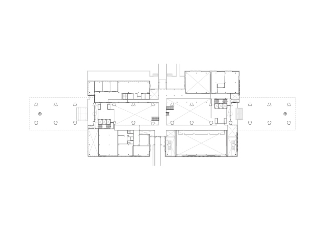
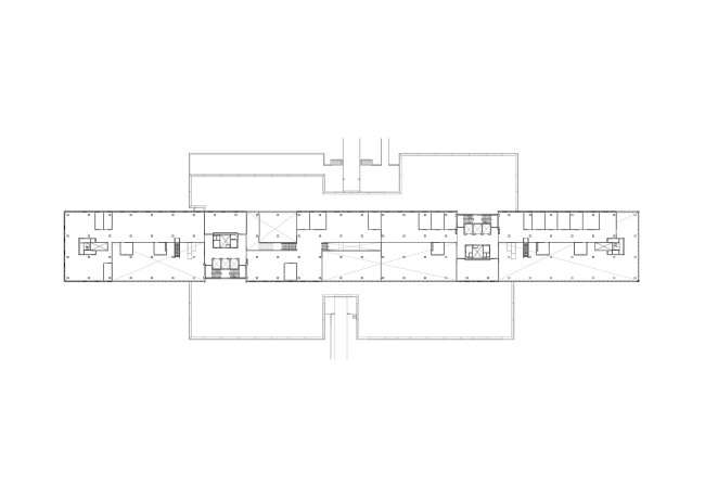
Atlas – главное здание Технического университета Эйндховена
Atlas – главное здание Технического университета Эйндховена
© Team V Architectuur
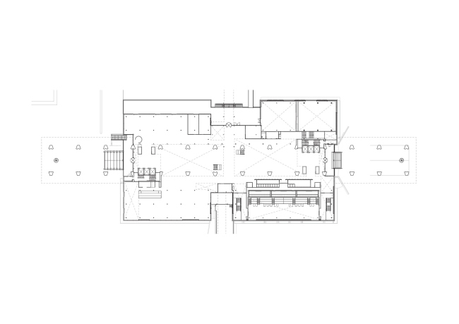
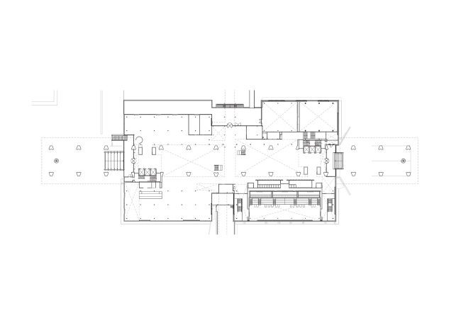
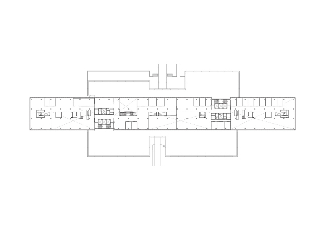
Atlas – главное здание Технического университета Эйндховена
Atlas – главное здание Технического университета Эйндховена
© Team V Architectuur
Atlas – главное здание Технического университета Эйндховена
Atlas – главное здание Технического университета Эйндховена
© Team V Architectuur
Atlas – главное здание Технического университета Эйндховена
Atlas – главное здание Технического университета Эйндховена
© Team V Architectuur
Atlas – главное здание Технического университета Эйндховена
Atlas – главное здание Технического университета Эйндховена
© Team V Architectuur
Atlas – главное здание Технического университета Эйндховена
Atlas – главное здание Технического университета Эйндховена
© Team V Architectuur
Atlas – главное здание Технического университета Эйндховена
Atlas – главное здание Технического университета Эйндховена
© Team V Architectuur
Atlas – главное здание Технического университета Эйндховена
Atlas – главное здание Технического университета Эйндховена
© Team V Architectuur
Atlas – главное здание Технического университета Эйндховена
Atlas – главное здание Технического университета Эйндховена
© Team V Architectuur
Atlas – главное здание Технического университета Эйндховена
Atlas – главное здание Технического университета Эйндховена
© Team V Architectuur
Atlas – главное здание Технического университета Эйндховена
Atlas – главное здание Технического университета Эйндховена
© Team V Architectuur
Atlas – главное здание Технического университета Эйндховена
Atlas – главное здание Технического университета Эйндховена
© Team V Architectuur