Размещено на портале Архи.ру (www.archi.ru)

05.06.2019

МАРХИ-2019: 10 проектов на тему «Школа»

Архитектор:
Михаил Канунников
Всеволод Медведев
Мастерская:
Четвертое измерение

Школа для детей с инвалидностью, воспитательная колония для малолетних преступников, интернат для детей-сирот – студенты МАРХИ создают новый образ современного образования.

В уходящем учебном году 2018/2019 студенты МАРХИ кафедры «ПРОМ» под руководством Всеволода Медведева, Михаила Канунникова и Елизаветы Медведевой работали над проектами образовательных учебных заведений. Преподаватели предложили им три направления: школа для детей с инвалидностью, воспитательная колония и школа-интернат для детей-сирот.

Всеволод Медведев,
руководитель архитектурного бюро «Четвертое измерение»,
доцент кафедры «Архитектура промышленных зданий» МАРХИ:


«Мы решили разработать специальные школы. Каждая из них интересна своими особенностями. Например, воспитательная колония – это школа со строгим разделением на группы подростков и учебно-производственный центр, а также охраняемый периметр всей территории. Интернат для сирот – сложное сочетание школы и жилья. А школа для детей с инвалидностью – сплав жестких коммуникационных, социальных и санитарных требований.

В качестве площадок для проектирования были выбраны реальные участки в Москве и ближайшем Подмосковье: заброшенные пионерские лагеря, воспитательные колонии, требующие реконструкции, недействующие школы и интернаты.

Состав проекта мы традиционно предложили расширить относительно базового задания института. Основной посыл каждого проекта – поиск нового образа школы и ее планировочной структуры. Перед студентами ставилась задача понять, почувствовать и попробовать найти свой подход к решению проблемы взаимодействия особенных детей с обществом. Пусть даже вразрез с действующими нормами проектирования. Они непостоянны. Подход к образованию меняется, строительные технологии и конструкции постоянно совершенствуются. Вместе с этим должны меняться и школы – начиная со здания и оканчивая самой методикой обучения детей».

Публикуем 10 лучших студенческих проектов на тему «Школа»:


Аня Воробьева
Школа для детей с расстройством аутического спектра
Школа для детей с РАС. Автор: Аня Воробьева
Школа для детей с РАС. Автор: Аня Воробьева

Идея проекта – создание благоприятной среды для развития и успешного обучения детей с аутизмом. Основной инструмент – особый подход к формированию и наполнению внутреннего пространства школы.

Учебная часть имеет спокойный и обособленный характер, что позволяет сосредоточиться на образовательном процессе. Все помещения отличаются по размерам и форме. Универсальные классы выглядят более традиционно. Специальные кабинеты с лабораториями и творческие мастерские для занятий музыкой и рисованием имеют округлые или изогнутые очертания. Индивидуальные решения для каждого помещения позволяют детям легче ориентироваться в пространстве.
Школа для детей с РАС. Автор: Аня Воробьева
Школа для детей с РАС. Автор: Аня Воробьева

Кабинеты оборудованы трансформируемой мебелью и раздвижными перегородками. Таким образом пространство подстраивается под нужды и потребности ребенка. Важная деталь – «островки уединения», сенсорные комнаты для отдыха наедине с собой.

К зоне обучения примыкают рекреации – тоже трансформируемые – с зимними садами, территориями общения и «островками уединения».
Школа для детей с РАС. Автор: Аня Воробьева
Школа для детей с РАС. Автор: Аня Воробьева

Учебная часть связана с так называемой зоной «городской адаптации» стеклянным атриумом, где по вертикали располагаются все игровые и развлекательные активности. По мысли автора проекта, это своеобразное окно во внешний мир, которое сохраняет ощущение безопасности.

Архитектурный образ здания подчеркивает его открытость. Дети с аутизмом не всегда легко идут на контакт с обществом. И здание словно бы пытается за них этот контакт наладить. Его лаконичный прямоугольный в плане объем буквально изрезан стеклянными вогнутыми параболоидами. И только фасадное ограждение из перфорированных панелей проводит некую границу между школой и городом, позволяя детям чувствовать себя внутри комфортно и защищенно.
Школа для детей с РАС. Автор: Аня Воробьева
Школа для детей с РАС. Автор: Аня Воробьева
***

Яна Курилова
Школа в Быково / Hidden School
Hidden School. Автор: Яна Курилова
Hidden School. Автор: Яна Курилова

Проект лесной школы разработан для детей с заболеваниями органов дыхания. Участок проектирования расположен в наиболее благоприятной для них среде – в сосновом лесу на территории поселка Быково Московской области. В настоящее время там находится действующая школа-интернат.
Hidden School. Автор: Яна Курилова
Hidden School. Автор: Яна Курилова

Автор проекта постаралась сохранить все деревья на участке. Поэтому объем школы получился достаточно распластанным, с заметными смещениями отдельных элементов. Тело здания с плоской кровлей приподнято над уровнем земли на один этаж на тонких «ногах»-колоннах, напоминающих стволы сосен. Фасады выполнены из стекла и зеркальных панелей. Все это делает архитектурное вторжение в лес деликатным.
Hidden School. Автор: Яна Курилова
Hidden School. Автор: Яна Курилова

Внутри все здание разбито на самодостаточные модули классов и учебных аудиторий. Именно сдвижка этих модулей позволила сохранить нетронутым сосновый бор. Учебные помещения связывает единое рекреационное пространство. Оно превращено в большую библиотеку с книжными полками вдоль стен, уголками для уединенного чтения и зонами для общения с друзьями.

Второй этаж опоясывает балкон. В теплую погоду на него можно выйти, чтобы подышать свежим воздухом. Кроме того, классные комнаты оборудованы раздвижными стеклянными перегородками. С их помощью классы трансформируются в открытые летние помещения. Для прогулок зимой в уровне первого этажа устроены три оранжереи.
Hidden School. Автор: Яна Курилова
Hidden School. Автор: Яна Курилова
***

Варя Небольсина
Школа для детей с нарушениями слуха, зрения, речи
Автор: Варя Небольсина
Автор: Варя Небольсина

Основная идея проекта состоит в создании единого образовательного пространства для здоровых детей и детей с нарушениями слуха, зрения или речи. Совместное обучение, как считает автор проекта, – важный опыт социализации, подготовка детей к дальнейшей самостоятельной жизни.

Школа располагается в Москве, на улице 8-го марта, рядом с реабилитационным центром для детей с инвалидностью. По мысли автора проекта, такое соседство позволит школе работать в комплексе с центром.
Автор: Варя Небольсина
Автор: Варя Небольсина

Здание школы представляет собой протяженный объем под двускатной кровлей. В плане оно имеет форму незавершенного знака бесконечности. В одном из «хвостов» знака располагается начальная школа, со стороны улицы 8-го марта. В другом – школа для старших классов с отдельным входом со двора. Крылья школы объединяет общий внутренний двор.
Автор: Варя Небольсина
Автор: Варя Небольсина

Внутри нет лестниц. Попасть с первого этажа на второй можно, непрерывно двигаясь по коридору-пандусу. Закрученное в петлю двухэтажное здание, благодаря плавному повышению уровня пола, в наивысшей точке достигает высоты четырех этажей.

Зигзагообразная траектория стен в крыле старшей школы облегчает навигацию для детей с нарушением зрения. Для учеников младших классов стены, напротив, скруглены, углы отсутствуют.

Помимо самой школы на территории располагаются здания, где во внеурочное время дети могут заниматься живописью, скульптурой, робототехникой, танцами, зоологией. Также здесь можно изучать язык брайля или жестов.
Автор: Варя Небольсина
Автор: Варя Небольсина
***

Денис Омельченко
Школа перформанса для трудных подростков
Школа перформанса. Автор: Денис Омельченко
Школа перформанса. Автор: Денис Омельченко

Школа для трудных подростков расположена рядом со станцией метро «Речной вокзал». Предполагается, что в здании будут постоянно проживать и обучаться 272 ребенка возрастом от 11 до 14 лет.
Школа перформанса. Автор: Денис Омельченко
Школа перформанса. Автор: Денис Омельченко

Шестиэтажное здание школы походит на фрагмент гигантского моста, под полотном которого подвешены десять стеклянных кубов-аудиторий. Кубы парят над землей. По замыслу автора, так создается ощущение оторванности подростков от проблем и дурных мыслей. В стеклянных аудиториях дети занимаются медитацией, осваивают техники самоконтроля, работают над физическим совершенствованием своего тела. Для юных нарушителей это основной способ осмыслить и преодолеть свои трудности.
Школа перформанса. Автор: Денис Омельченко
Школа перформанса. Автор: Денис Омельченко

«Опора моста» вмещает жилые комнаты для учеников. Весь шестой этаж занимают учебные классы для общеобразовательных предметов. На первом этаже организованы входная зона и амфитеатр, где регулярно проходят представления и перформансы. Для учащихся это возможность высказаться, проявить свою индивидуальность.
Школа перформанса. Автор: Денис Омельченко
Школа перформанса. Автор: Денис Омельченко
***

Алёна Сорокина
Школа для детей-сирот
Школа для детей сирот. Автор: Алёна Сорокина
Школа для детей сирот. Автор: Алёна Сорокина

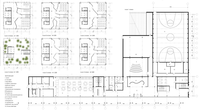
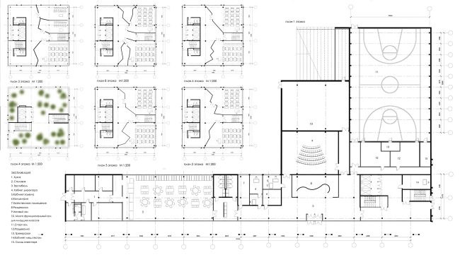
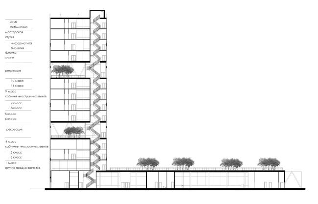
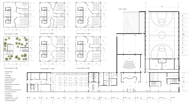
Вертикальная школа спроектирована для детей-сирот на Поварской улице в Москве. Ее основной объем разбит на три крупных блока, возвышающихся один над другим. Нижний блок вмещает начальную школу. Следующий – классы для учеников среднего звена. В вершине здания расположены специализированные классы для занятий физикой, химией, биологией и информатикой. Там же находятся учительская и административные помещения. На одном этаже каждого блока расположено по два учебных класса.
Школа для детей сирот. Автор: Алёна Сорокина
Школа для детей сирот. Автор: Алёна Сорокина

Пространство этажей между стеклянными блоками отдано под устройство зимних садов. Там дети могут проводить свободное время после занятий и на переменах. Горизонталь первого этажа, из которого вырастает многоэтажный ствол школы, вмещает входную группу, столовую, спортивный и актовый залы.
Школа для детей сирот. Автор: Алёна Сорокина
Школа для детей сирот. Автор: Алёна Сорокина

Само здание подталкивает своих учеников к постоянному росту. Каждый год, переходя на следующий уровень знаний, дети поднимаются на один этаж выше над землей, открывая для себя новые горизонты.
Школа для детей сирот. Автор: Алёна Сорокина
Школа для детей сирот. Автор: Алёна Сорокина
***

Саша Терехова
Школа-интернат «Древо»
Проект «древо» – интернат для детей-сирот. Автор:
Проект «древо» – интернат для детей-сирот. Автор:

Школа-интернат расположена вблизи подмосковного города Истра. Автор проекта изобразила план школы в виде дерева, где сложная корневая система – это здание школы, а крупные овальные плоды на ветвях – жилые дома-капсулы.
Проект «древо» – интернат для детей-сирот. Автор: Саша Терехова
Проект «древо» – интернат для детей-сирот. Автор: Саша Терехова

Форма четырехэтажной школы – сложная, изогнутая, напоминающая горный рельеф. Каждый следующий этаж смещен относительно предыдущего. В местах смещения сформированы широкие открытые террасы с зонами отдыха и общения.

Младшая, средняя и старшая школы занимают каждая свой ярус. Везде учебные кабинеты и аудитории выходят в единое рекреационное пространство. В рекреациях предусмотрены самые разные формы досуга – как развлекательного, так и познавательного характера. Есть также творческие и ремесленные мастерские.

Интерьеры школьных помещений – просторные и светлые. Панорамное остекление с вертикальными автоматическими жалюзи в классах насыщают пространство естественным светом.
Проект «древо» – интернат для детей-сирот. Автор: Саша Терехова
Проект «древо» – интернат для детей-сирот. Автор: Саша Терехова

Жилые дома для детей решены в виде овальных капсул разного размера и вместимости. Для младших школьников – капсулы покрупнее, на 18-20 детей с отдельными комнатами для воспитателей. Для учащихся средней школы – капсулы на 6-12 человек. Самые компактные дома – для старшеклассников. В них размещаются 2-4 человека. Таким способом автор проекта решает проблему социализации детей, воспитывающихся без родителей.

Школу и жилой блок объединяет большой двор со спортивными и игровыми площадками.
Проект «древо» – интернат для детей-сирот. Автор: Саша Терехова
Проект «древо» – интернат для детей-сирот. Автор: Саша Терехова

***

Маша Чельцова-Бебутова
Школа для детей-сирот в Северном Тушино
Школа для детей-сирот. Автор: Маша Чельцова-Бебутова
Школа для детей-сирот. Автор: Маша Чельцова-Бебутова

Школа для детей-сирот расположена в Москве, в районе Северное Тушино. Участок лежит на границе между городской застройкой и крупным лесопарком. Местоположение определило главную мысль проекта – объединить на одном участке городское и деревенское пространство.
Школа для детей-сирот. Автор: Маша Чельцова-Бебутова
Школа для детей-сирот. Автор: Маша Чельцова-Бебутова

В сторону города обращена школа, формирующая фронт улицы. Главный ее фасад имеет протяженность почти 300 м. Он воспроизводит фрагмент застройки из невысоких, примыкающих друг к другу домов со стеклянными витражами. Силуэт формируют кровли: остроугольные двускатные, скошенные, плоские и даже полукруглые. К парку развернуты небольшие двух- трехэтажные жилые дома. Они создают атмосферу спокойной деревенской жизни.
Школа для детей-сирот. Автор: Маша Чельцова-Бебутова
Школа для детей-сирот. Автор: Маша Чельцова-Бебутова

В школе дети учатся в две смены, занимаются исследовательской работой в лабораториях, посещают дополнительные занятия в художественных мастерских, находят единомышленников среди своих сверстников и тем самым пытаются компенсировать отсутствие общения с семьей.

Жилая и учебная части объединены общим двором. Двор пересекает искусственный ручей. Через него перекинуты несколько пешеходных мостиков. Ручей – это условная граница между городом и деревней. Городской берег водоема наполняют спортивные и игровые площадки, а зеленый деревенский берег создан для отдыха на природе.
Школа для детей-сирот. Автор: Маша Чельцова-Бебутова
Школа для детей-сирот. Автор: Маша Чельцова-Бебутова
***

Дима Чудаев
Школа-интернат для малолетних преступников
Школа-интернат для малолетних преступников. Автор: Дима Чудаев
Школа-интернат для малолетних преступников. Автор: Дима Чудаев

Школа-интернат на 288 человек располагается на западной окраине Южного Бутово, на месте существующего оврага. Его автор проекта предлагает наполнить водой. Словно ров он будет окружать пятиэтажное здание школы. Связь с городом предлагается сохранить за счет четырех проездов, сходящихся в центре площадки.
Школа-интернат для малолетних преступников. Автор: Дима Чудаев
Школа-интернат для малолетних преступников. Автор: Дима Чудаев

По словам автора проекта, архитектурный образ родился «из ассоциации с колкостью и конфликтностью трудного ребенка». Поэтому вытянутый прямоугольный объем буквально изрезан вертикальными, ощетинившимися пластинами из ржавого металла. Наряду с этим есть панорамное остекление в учебных классах и жилых комнатах подростков. И это попытка преодолеть конфликт с внешним миром.

Мальчики и девочки обучаются и живут раздельно. Их жилые и учебные зоны разведены по этажам. Третий этаж занимают 18 жилых блоков для мальчиков. В каждом блоке – два кубрика. Проживание – по четыре человека. Учебные классы для мальчиков организованы этажом ниже. Аналогично, только для девочек, решен четвертый жилой уровень. Занятия для девочек проходят на последнем, пятом этаже.

Общим остается только первый ярус, где располагаются холл, столовая, актовый и спортивный залы, комнаты для встречи с родителями. Прогулочная зона организована на эксплуатируемой кровле. Дефицит территории вокруг здания компенсируется за счет холодных прогулочных галерей на каждом из жилых уровней.
Школа-интернат для малолетних преступников. Автор: Дима Чудаев
Школа-интернат для малолетних преступников. Автор: Дима Чудаев

Важная часть проекта – классы для творческих занятий подростков. В неотапливаемых галереях организованы пространства для создания граффити. Отдельно на территории школы запроектирован небольшой экспоцентр, где будут постоянно демонстрироваться созданные детьми произведения. По замыслу автора, именно искусство сможет разрушить барьер между детьми и социумом.
Школа-интернат для малолетних преступников. Автор: Дима Чудаев
Школа-интернат для малолетних преступников. Автор: Дима Чудаев
***

Женя Чумаченко
Школа для детей с церебральным параличом
Школа для детей с ДЦП. Автор: Женя Чумаченко
Школа для детей с ДЦП. Автор: Женя Чумаченко

Школу для детей с церебральным параличом предлагается построить в Москве, на улице 8-го марта. Здание выполняет функции не только школы, но и реабилитационного центра, где дети постоянно живут в течение учебного года и получают необходимое им лечение.
Школа для детей с ДЦП. Автор: Женя Чумаченко
Школа для детей с ДЦП. Автор: Женя Чумаченко

Трехэтажный объем с наклонными витражами фасадов поделен на три основных сектора: учебный, жилой и оздоровительный. Плавно очерченные корпуса связаны между собой остекленной отапливаемой галереей.

В учебном блоке на первом этаже занимаются ученики младших классов. Для них предусмотрен автономный выход во двор и на игровые площадки. Также на первом этаже оборудованы кабинеты профильных предметов для старшеклассников. Детский универсальный зал вынесен в отдельный уличный объем, но вход в него предусмотрен и из здания, в уровне второго этажа. Учебные классы для среднего звена и актовый зал занимают практически весь второй этаж. На третьем этаже располагаются библиотека и спортивный зал. Центральное ядро школы – большой атриум с зонами отдыха.
Школа для детей с ДЦП. Автор: Женя Чумаченко
Школа для детей с ДЦП. Автор: Женя Чумаченко

В жилом секторе на этаже располагается по 8 комнат. Дети проживают по 4 человека (2 ребенка с сопровождающими). Помимо этого, есть небольшой кинотеатр и столовая. Жилой блок связан с оздоровительным теплым переходом.

Для постоянного и своевременного медицинского обслуживания во всех частях школы созданы так называемые «капсулы релаксации» – место, где ребенок не только получает помощь специалистов, но и просто проводит время наедине с собой. А для общения со сверстниками в здании обустроено множество рекреаций и игровых зон.
Школа для детей с ДЦП. Автор: Женя Чумаченко
Школа для детей с ДЦП. Автор: Женя Чумаченко
***

Аня Шикова
Школа-интернат для детей-сирот
Школа-интернат. Автор: Аня Шикова
Школа-интернат. Автор: Аня Шикова

Школа-интернат расположена в районе Метрогородок, рядом с огромным парком Лосиный остров. Комплекс состоит из трех частей: учебный блок и жилые комнаты для младших детей, школа и жилье для старших детей, а также центр молодежи. Общий двор и прогулочная зона связывают все корпуса с территорией Лосиного острова.
Школа-интернат. Автор: Аня Шикова
Школа-интернат. Автор: Аня Шикова

В своем проекте Анна Шикова пытается решить проблему «комплекса гостя» у детей-сирот, лишенных собственного дома. Новая школа-пансион становится не только настоящим домом для своих учеников, но и притягивает детей из других школ и жилых районов. Главными центрами притяжения являются спортивные площадки на территории пансионата, веревочный парк и молодежный центр.

Жилое пространство организовано таким образом, чтобы дети могли свободно приглашать к себе гостей. Для этого в их комнатах, рассчитанных на 4 человека, есть уютные гостиные.
Школа-интернат. Автор: Аня Шикова
Школа-интернат. Автор: Аня Шикова

В школе предусмотрены классы с возможностью трансформации и многофункциональные аудитории. Отапливаемый подземный коридор соединяет старшую школу с молодежным центром. Также в этом коридоре расположены кабинеты для одиночных и совместных занятий музыкой.
Школа-интернат. Автор: Аня Шикова
Школа-интернат. Автор: Аня Шикова
***