Размещено на портале Архи.ру (www.archi.ru)

18.04.2019

Вставки в памятник

Нина Фролова
Объект:
Здание Сената Канады
Адрес:
Канада, None, Оттава.
Мастерская:
Diamond Schmitt

В историческом здании вокзала в Оттаве архитекторы Diamond Schmitt и KWC разместили Сенат Канады – на время десятилетней реконструкции комплекса Парламента страны.

Здание Сената Канады
Здание Сената Канады
Фото © Tom Arban Photography

Оттавский железнодорожный вокзал в стиле боз-ар открылся в 1912: образцом для него послужил ныне снесенный Пенсивальванский вокзал в Нью-Йорке, а для того, в свою очередь – термы Каракаллы в Риме. В 1966 это здание вокзала в столице Канады закрыли, но вскоре оно заработало как правительственный конференц-центр. В XXI веке началась масштабная реконструкция расположенного поблизости парламентского комплекса, и, когда очередь дошла до его Центрального блока, встал вопрос о временном пристанище для Сената. Временного – в широком смысле, так как работы займут не менее десяти лет. А когда Сенат вернется в прежнее здание, на вокзале станут проводить съезды и разместят госслужащих.
 
Здание Сената Канады
Здание Сената Канады
Фото © Tom Arban Photography

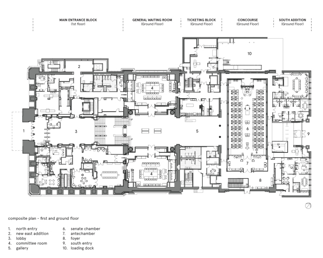
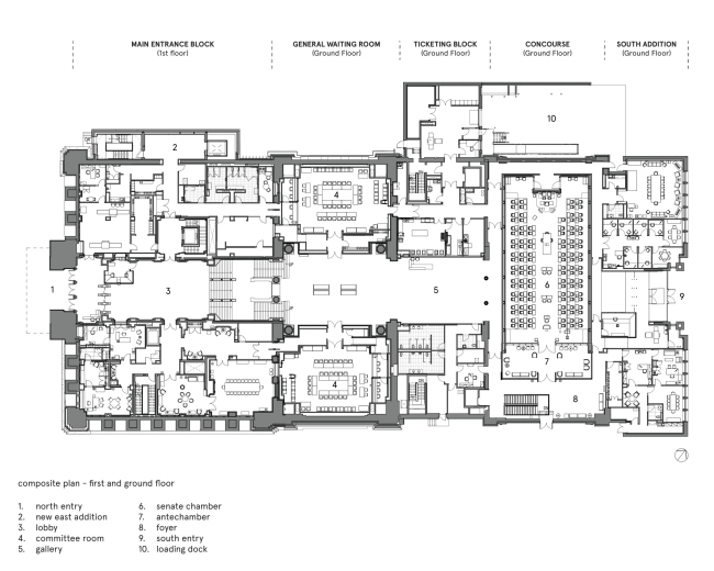
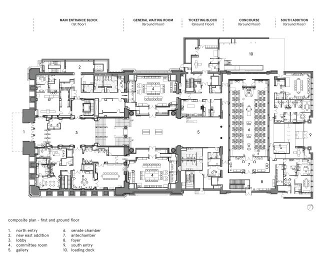
Архитекторам Diamond Schmitt и KWC было поручено расположить в здании зал заседаний для Сената, большое и два средних помещения для комитетов, различные вспомогательные, а также общественные зоны, которые были особенно важны, потому что здание было закрыто для публики с 1966.
 
Здание Сената Канады
Здание Сената Канады
Фото © Tom Arban Photography

Новый облик получил восточный фасад, изначально оставшийся неразработанным. Зал заседаний встроили в основной зал вокзала (concourse), помещения для комитетов – в зал ожидания и кассовую зону. Все это вставные конструкции, и их «инсталляционный» характер особенно заметен у средних помещений комитетов, которые выглядят как обшитые бронзой блоки внутри зала ожидания.
 
Здание Сената Канады
Здание Сената Канады
Фото © Tom Arban Photography

Пышные интерьеры вокзала (их тщательно отреставрировали) и важная представительская функция проекта интерпретированы авторами в форме разнообразного декора, соединяющего ремесленные традиции и новейшие технологии, продуманный выбор мотивов и материалов.
 
Здание Сената Канады
Здание Сената Канады
Фото © Tom Arban Photography

На дверях залов заседаний и комитетов из древесины каштана резьба была выполнена на станке с цифровым управлением, но изначальный мотив – листья десяти характерных для Канады видов клена – был изготовлен вручную «скульптором Доминиона» Филом Уайтом, а потом считан 3D-сканером. Две фланкирующие «Трон» спикера деревянные панели покрыты изображением канадского флага, причем иллюзию цвета и рельефа создает игра света и глубина нажима резака цифрового станка.
 
Здание Сената Канады
Здание Сената Канады
Фото © doublespace photography

Вестибюль зала заседаний отделен от него стеклянными панелями с мотивом кленовых листьев. Их изображения и керамические формы для отливки стекла были выполнены вручную художниками. Для «Трона» спикера и в других случаях были использованы канадские сорта мрамора.
 
Здание Сената Канады
Здание Сената Канады
Фото © Tom Arban Photography

Стены двух средних комитетских помещений – поверх слоя звукопоглощающих материалов, не дающего шуму распространяться в огромных залах вокзала – закрыты бронзовыми перфорированными панелями, на которые нанесены как полутоновые изображения фотографии – виды канадских ландшафтов.
Здание Сената Канады
Здание Сената Канады
Фото © doublespace photography
Здание Сената Канады
Здание Сената Канады
Фото © doublespace photography
Здание Сената Канады
Здание Сената Канады
Фото © Martin Davidson, Diamond Schmitt Architects
Вокзал Юнион-стейшн в Оттаве, где сейчас размещен Сенат
Вокзал Юнион-стейшн в Оттаве, где сейчас размещен Сенат
© Library and Archives Canada
Здание Сената Канады
Здание Сената Канады
© Diamond Schmitt Architects
Здание Сената Канады
Здание Сената Канады
© Diamond Schmitt Architects