Размещено на портале Архи.ру (www.archi.ru)

09.04.2019

«Зеленые» складки

Нина Фролова
Объект:
Комплекс Tree-ness House
Адрес:
Япония, None, Токио.

Токийское здание галереи с квартирой ее владельца по проекту Akihisa Hirata Architecture Office получило озелененные террасы-«карманы».

Комплекс Tree-ness House
Комплекс Tree-ness House
Фото © Vincent Hecht

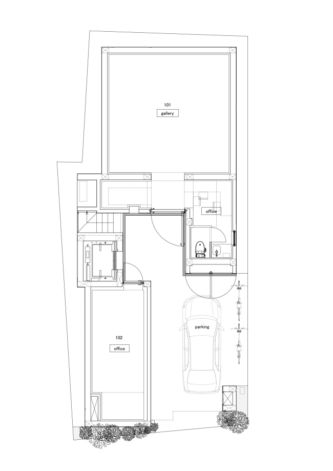
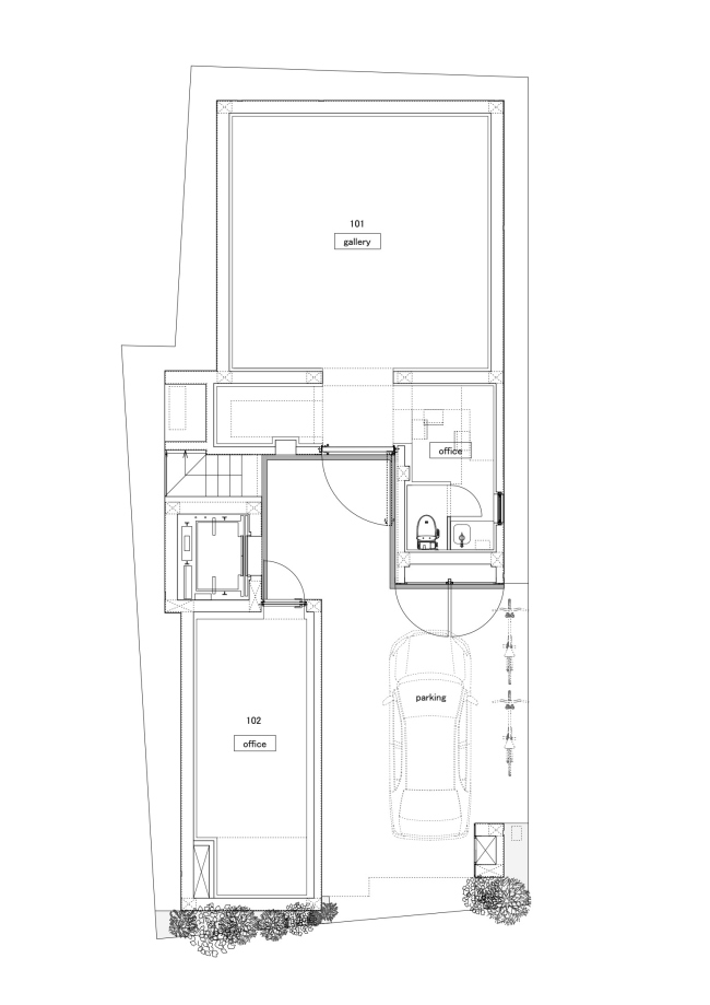
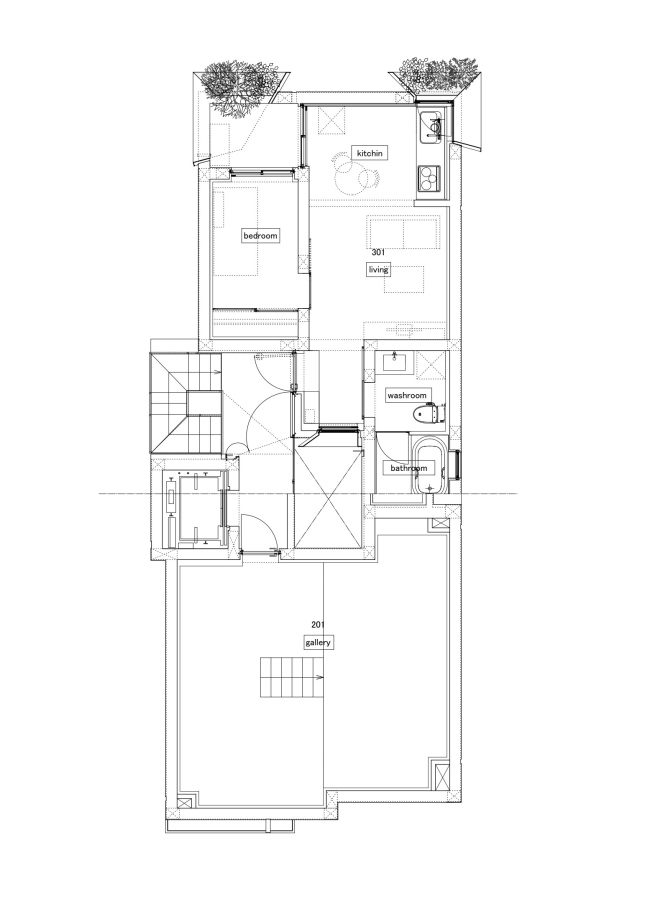
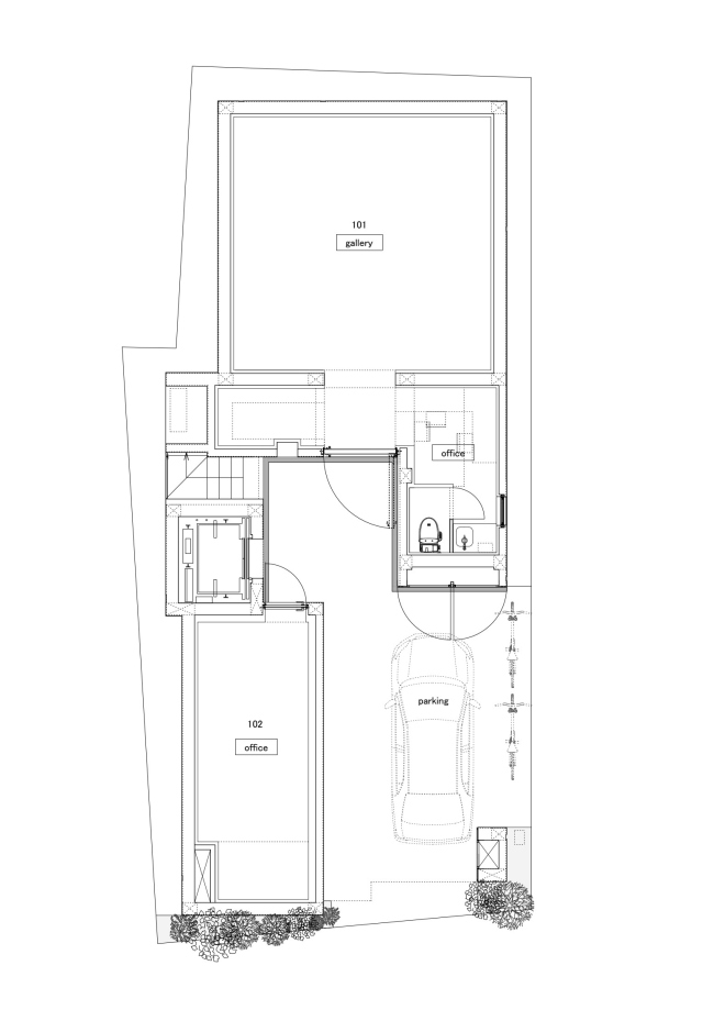
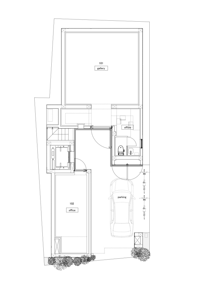
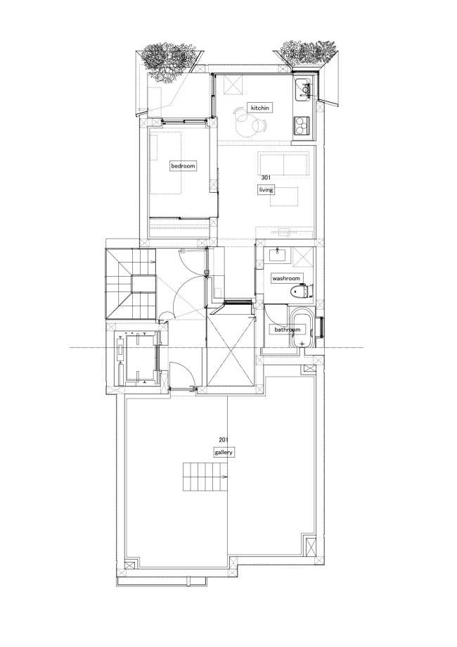
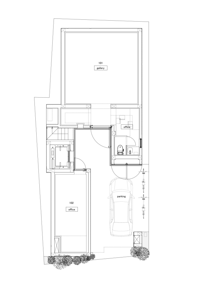
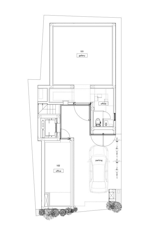
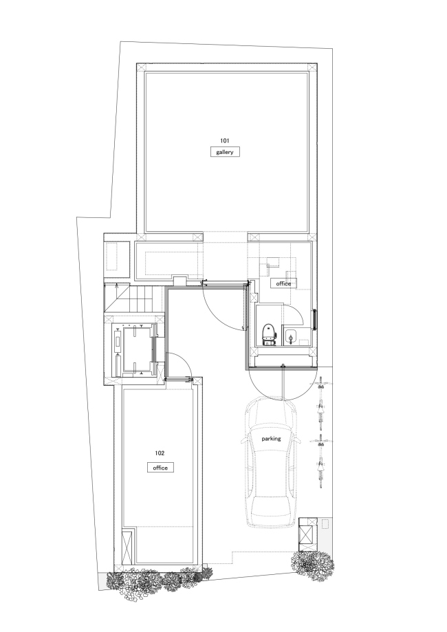
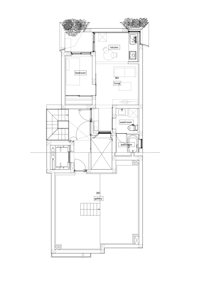
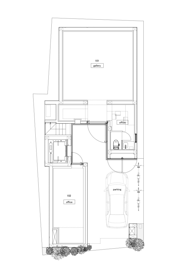
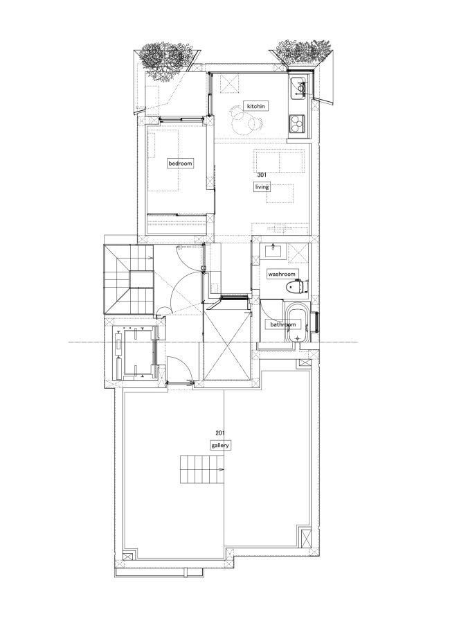
Здание Tree-ness House в районе Тосима было задумано Акихисой Хиратой еще в 2009: он получил заказ на восьмиэтажную постройку с выставочными залами и жилыми помещениями от Таки Исии после своей персональной выставки в его галерее. Катастрофическое землетрясение 2011 года и другие обстоятельства внесли коррективы в проект: в 2017 завершилось строительство пятиэтажного дома общей площадью около 330 м2.
 
Комплекс Tree-ness House
Комплекс Tree-ness House
Фото © Vincent Hecht

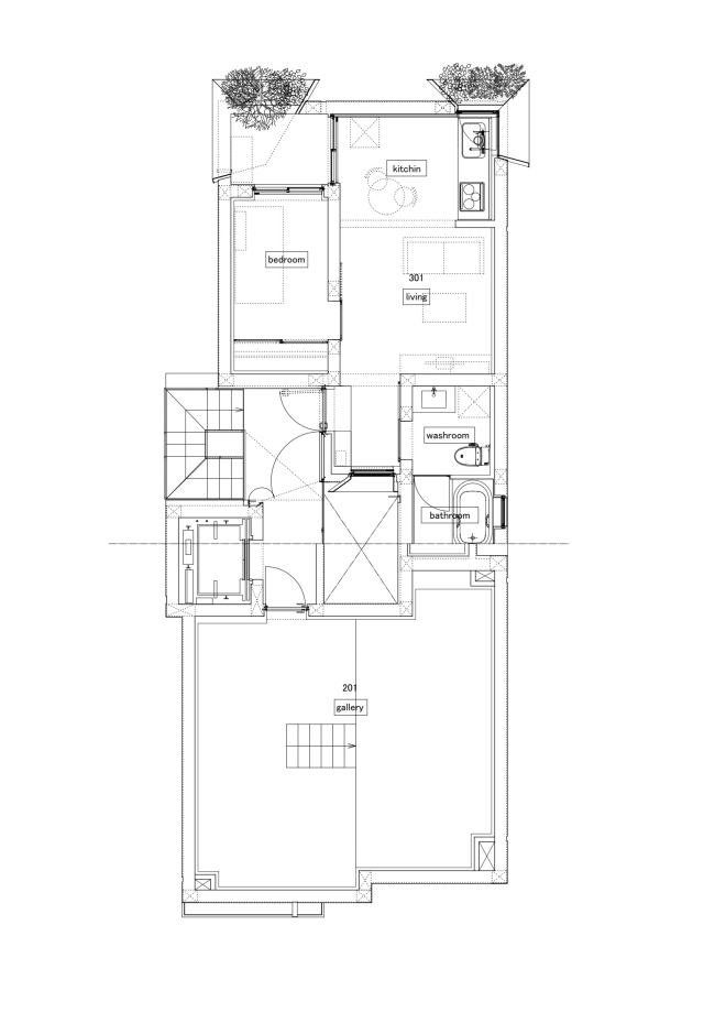
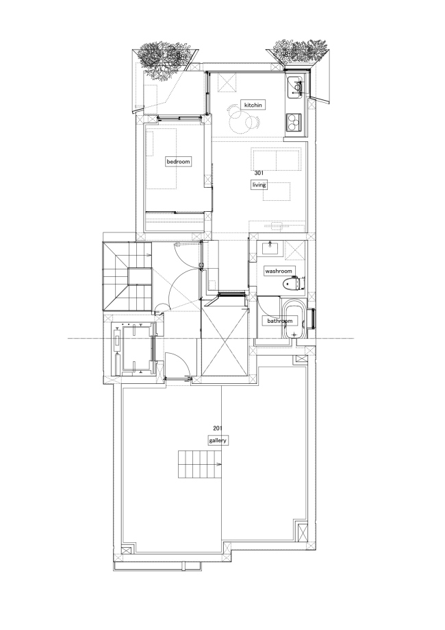
Однако главное осталось неизменным: там есть серия озелененных террас, которые Хирата называет «складками». Эти камерные висячие сады, как и свободная компоновка уровней – ответ архитектора на нейтральные изнутри и снаружи постройки-«коробки», а также на сложный, хотя и типичный для Токио участок: длинный, но с очень узким уличным фронтом.
 
Комплекс Tree-ness House
Комплекс Tree-ness House
Фото © Vincent Hecht

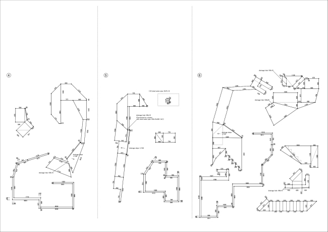
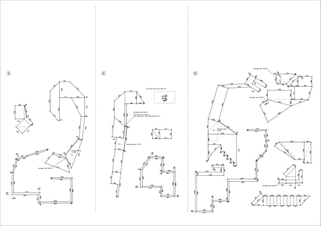
На первом этаже расположены открытая зона для парковки автомобиля, галерея и ее офис, выше – еще один зал, а дальше – жилые помещения. Несущие колонны и балки скрыты в бетонных стенах толщиной 250 мм. Террасы-«складки» выполнены из листовой стали толщиной в 9 мм на заводе, а затем укреплены на месте и забетонированы. Они наполнены грунтом для зеленых кровель, легким и удерживающим воду. Благодаря этому, а также продуманному подбору растений в зависимости от расположения каждой «складки» (этим занимался ландшафтный дизайнер Юйти Цукада) полива этим посадкам не требуется, достаточно дождевой воды.
Комплекс Tree-ness House
Комплекс Tree-ness House
Фото © Vincent Hecht
Комплекс Tree-ness House
Комплекс Tree-ness House
Фото © Vincent Hecht
Комплекс Tree-ness House
Комплекс Tree-ness House
© Akihisa Hirata Architecture Office
Комплекс Tree-ness House
Комплекс Tree-ness House
© Akihisa Hirata Architecture Office
Комплекс Tree-ness House
Комплекс Tree-ness House
© Akihisa Hirata Architecture Office
Комплекс Tree-ness House
Комплекс Tree-ness House
© Akihisa Hirata Architecture Office
Комплекс Tree-ness House
Комплекс Tree-ness House
© Akihisa Hirata Architecture Office
Комплекс Tree-ness House
Комплекс Tree-ness House
© Akihisa Hirata Architecture Office
Комплекс Tree-ness House
Комплекс Tree-ness House
© Akihisa Hirata Architecture Office
Комплекс Tree-ness House
Комплекс Tree-ness House
© Akihisa Hirata Architecture Office
Комплекс Tree-ness House
Комплекс Tree-ness House
© Akihisa Hirata Architecture Office
Комплекс Tree-ness House
Комплекс Tree-ness House
© Akihisa Hirata Architecture Office
Комплекс Tree-ness House
Комплекс Tree-ness House
© Akihisa Hirata Architecture Office
Комплекс Tree-ness House
Комплекс Tree-ness House
© Akihisa Hirata Architecture Office
Комплекс Tree-ness House
Комплекс Tree-ness House
© Akihisa Hirata Architecture Office
Комплекс Tree-ness House
Комплекс Tree-ness House
© Akihisa Hirata Architecture Office
Комплекс Tree-ness House
Комплекс Tree-ness House
© Akihisa Hirata Architecture Office
Комплекс Tree-ness House
Комплекс Tree-ness House
© Akihisa Hirata Architecture Office
Комплекс Tree-ness House
Комплекс Tree-ness House
© Akihisa Hirata Architecture Office
Комплекс Tree-ness House
Комплекс Tree-ness House
© Akihisa Hirata Architecture Office
Комплекс Tree-ness House
Комплекс Tree-ness House
© Akihisa Hirata Architecture Office
Комплекс Tree-ness House
Комплекс Tree-ness House
© Akihisa Hirata Architecture Office
Комплекс Tree-ness House
Комплекс Tree-ness House
© Akihisa Hirata Architecture Office