Размещено на портале Архи.ру (www.archi.ru)

05.04.2019

Дом литературной свободы

Нина Фролова
Объект:
Дом литературы
Адрес:
Канада, None, Квебек.
Мастерская:
Chevalier Morales Architectes

Дом литературы в Квебеке открылся в реконструированной бюро Chevalier Morales Architectes неоготической церкви.

Дом литературы в Квебеке
Дом литературы в Квебеке
© Chevalier Morales Architectes

Методистский храм Уэсли (1848) по проекту Эдварда Стэйвли, первая неоготическая церковь Квебека, культовую функцию потеряла еще в 1931, а в 1944 там разместился Зал квебекского Канадского института, негосударственного и некоммерческого просветительского учреждения. Здание заработало как библиотека и пространство для лекций и концертов: там успели выступить многие крупные деятели культуры. Но новая эпоха потребовала новых форм: в 1999 Зал закрыли, а на его месте решили создать Дом литературы с более широкой программой. К имеющимся функциям добавили образовательную, с упором на поддержку и развитие у желающих посвятить себя литературе творческих способностей.
 
Дом литературы в Квебеке
Дом литературы в Квебеке
© Chevalier Morales Architectes

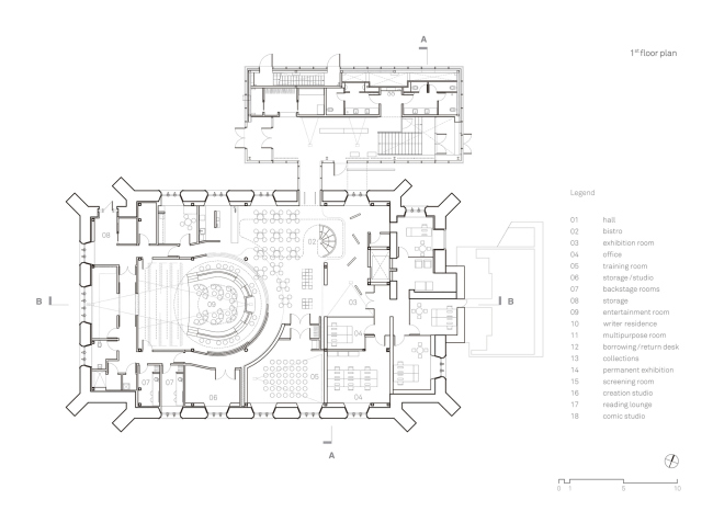
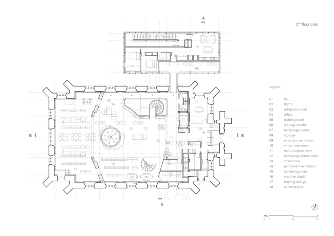
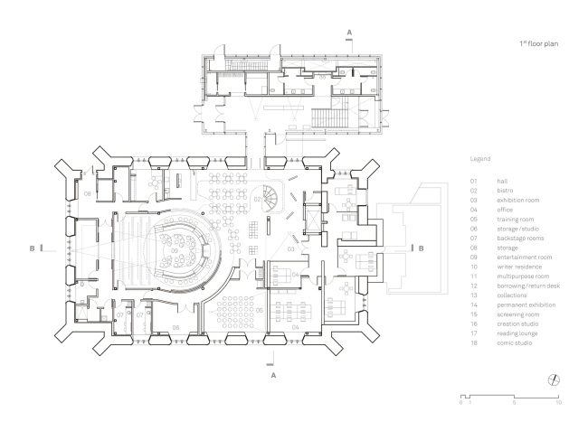
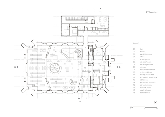
Архитектурный конкурс на проект реконструкции выиграли Chevalier Morales Architectes, причем их вариант расширял и перерабатывал задание. Так, они предложили сохранить церковь как библиотеку и зал, а «творческие» функции вынести в новое крыло, тем самым дав литераторам большую свободу (основанный в Квебеке в 1848 Канадский институт изначально был оплотом плюрализма, так как в его библиотеке можно было найти в том числе запрещенные католической церковью книги).
 
Дом литературы в Квебеке
Дом литературы в Квебеке
© Chevalier Morales Architectes

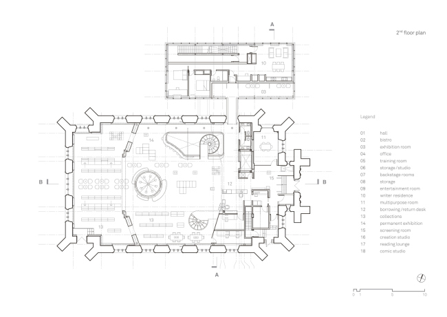
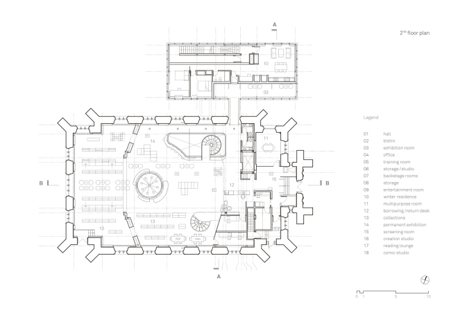
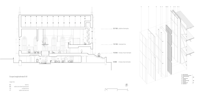
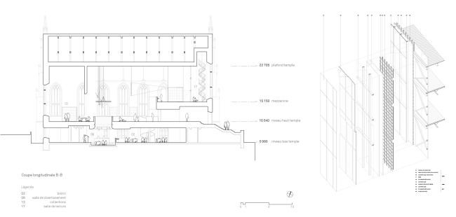
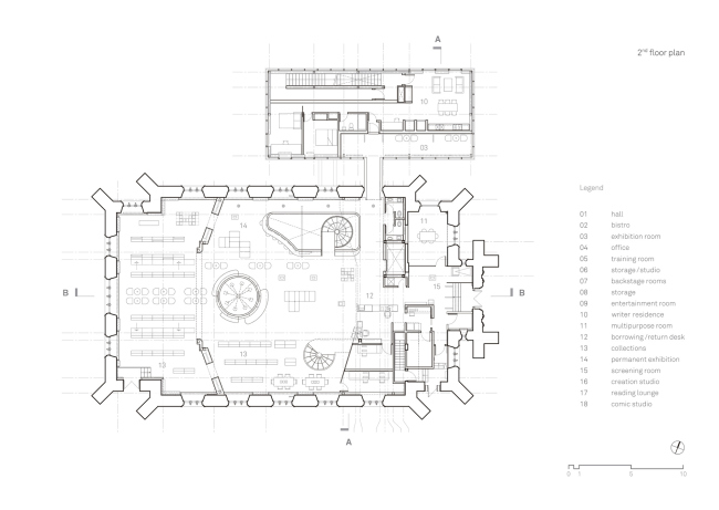
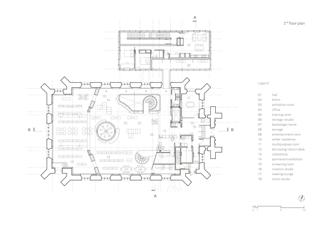
Фасады прямоугольного блока нового здания состоят из внешней стеклянной оболочки и внутреннего слоя из перфорированных листов латуни: получившаяся зеркальная поверхность отражает окружающие постройки и деревья и тем самым вписывает сооружение в контекст. На нижнем ярусе находятся технические помещения, наверху – различные творческие студии, учебные классы, квартира для писателя-резидента.
 
Дом литературы в Квебеке
Дом литературы в Квебеке
© Chevalier Morales Architectes

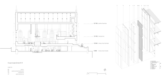
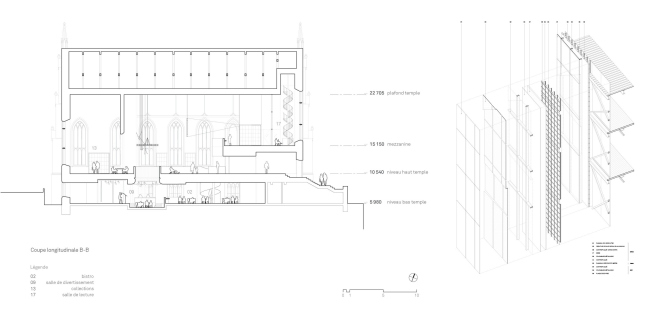
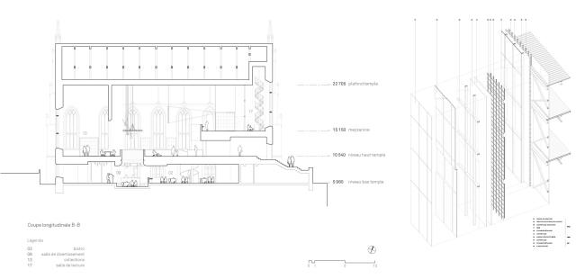
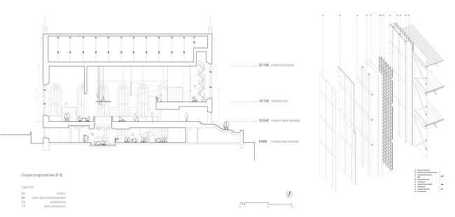
Саму церковь архитекторы отреставрировали, но не до конца освободили от позднейших наслоений, чтобы сохранить ее историю. Были подчеркнуты стрельчатые окна и нервюры сводов, однако интерьер получил почти полностью однотонное белое решение. Несколько вариантов входа выражают неиерархичность пространства, где даже постоянная экспозиция – о свободе в литературе провинции Квебек – не получила собственный сектор, а распределена по всем зонам и уровням.
 
Дом литературы в Квебеке
Дом литературы в Квебеке
© Chevalier Morales Architectes

Округлый проем в перекрытиях между уровнями связывает кафе, два пространства временных выставок и зону библиотеки. Зрительный зал можно изолировать с помощью мобильных акустических экранов: он подходит для конференций, лекций, спектаклей и камерных концертов.
Дом литературы в Квебеке
Дом литературы в Квебеке
© Chevalier Morales Architectes
Дом литературы в Квебеке
Дом литературы в Квебеке
© Chevalier Morales Architectes
Дом литературы в Квебеке
Дом литературы в Квебеке
© Chevalier Morales Architectes
Дом литературы в Квебеке
Дом литературы в Квебеке
© Chevalier Morales Architectes
Дом литературы в Квебеке
Дом литературы в Квебеке
© Chevalier Morales Architectes
Дом литературы в Квебеке
Дом литературы в Квебеке
© Chevalier Morales Architectes
Дом литературы в Квебеке
Дом литературы в Квебеке
© Chevalier Morales Architectes
Дом литературы в Квебеке
Дом литературы в Квебеке
© Chevalier Morales Architectes
Дом литературы в Квебеке
Дом литературы в Квебеке
© Chevalier Morales Architectes
Дом литературы в Квебеке
Дом литературы в Квебеке
© Chevalier Morales Architectes
Дом литературы в Квебеке в процессе строительства
Дом литературы в Квебеке в процессе строительства
© Chevalier Morales Architectes
Дом литературы в Квебеке
Дом литературы в Квебеке
© Chevalier Morales Architectes
Дом литературы в Квебеке
Дом литературы в Квебеке
© Chevalier Morales Architectes
Дом литературы в Квебеке
Дом литературы в Квебеке
© Chevalier Morales Architectes
Дом литературы в Квебеке
Дом литературы в Квебеке
© Chevalier Morales Architectes
Дом литературы в Квебеке
Дом литературы в Квебеке
© Chevalier Morales Architectes
Дом литературы в Квебеке
Дом литературы в Квебеке
© Chevalier Morales Architectes