Размещено на портале Архи.ру (www.archi.ru)

01.04.2019

Еще одна глава

Нина Фролова
Объект:
Театр во дворце Александра-палас
Адрес:
Великобритания, None, Лондон.
Мастерская:
Feilden Clegg Bradley Studios

В лондонском «дворце для народа» Александра-палас архитекторы Feilden Clegg Bradley Studios реконструировали не использовавшийся по назначению с начала XX века театральный зал.

Театр во дворце Александра-палас
Театр во дворце Александра-палас
Фото © Richard Battye для FCBStudios

Огромный Александра-палас появился на севере Лондона в 1870-е как «народный дворец», заведение для развлечения и просвещения масс. Помимо концертного и банкетного залов, галерей и музея, лектория и библиотеки там был и вместительный театр с новейшей машинерией, который, однако, недолго оставался популярным. Поэтому в начале XX века его переделали в кинотеатр, в Первую мировую он служил госпиталем и часовней, а в 1936, когда BBC запустила в Александра-палас первое в мире регулярное телевещание, его использовали как склад для декораций и реквизита. В последние 30 лет театр был оставлен и почти забыт, хотя в самом дворце продолжают идти концерты и другие культурные и развлекательные мероприятия.
 
Театр во дворце Александра-палас
Театр во дворце Александра-палас
Фото © Lloyd Winters

Бюро Feilden Clegg Bradley Studios в 2014 было поручено приспособить этот театральный зал для использования по назначению. Архитекторы решили, что не стоит восстанавливать его по состоянию на «краткий период величия» в конце XIX века: важней сохранить следы его сложной «жизни», включавшей и переделки, и медленное ветшание – не воссоздать, но укрепить постройку. Все новые дополнения сразу опознаются как принадлежащие нашему времени, то есть составляют еще одну главу в истории сооружения.
 
Театр во дворце Александра-палас
Театр во дворце Александра-палас
Фото © Lloyd Winters

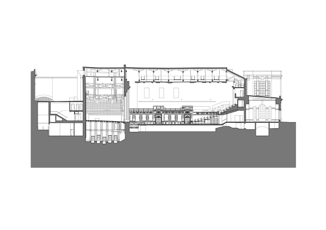
Наклонный пол зала был заменен плоским – для современных постановок, где граница между публикой и спектаклем размыта. При этом доски викторианской эпохи были переложены, но в итоге все вернулись на место. Конструкции для размещения осветительной и акустической систем и крепления для декораций скрыты за плафоном с лепниной, который был тщательно отреставрирован, но никакие утраты при этом не были восстановлены. Стены также сохранили все следы времени. Балкон, однако, был заменен на новый, с более отвесным расположением кресел, что значительно улучшило видимость сцены.
 
Театр во дворце Александра-палас
Театр во дворце Александра-палас
Фото © Lloyd Winters

Так называемый Восточный двор дворца стал фойе театра, а днем он служит открытым всем кафе и местом встреч и общения. Он получил новый пол с росписью художников из студии Art + Believe площадью 1000 м2.
 
Театр во дворце Александра-палас
Театр во дворце Александра-палас
Фото © Richard Battye для FCBStudios

Охваченная проектом площадь – почти 6000 м2, значительную часть финансирования составили выделенные Национальным фондом лотереи Heritage Lottery Fund около 20 млн фунтов и 6,8 млн от совета лондонского округа Харинги, где расположен Александра-палас.
Театр во дворце Александра-палас
Театр во дворце Александра-палас
Фото © Lloyd Winters
Театр во дворце Александра-палас
Театр во дворце Александра-палас
Фото © Richard Battye для FCBStudios
Театр во дворце Александра-палас
Театр во дворце Александра-палас
Фото © Lloyd Winters
Театр во дворце Александра-палас
Театр во дворце Александра-палас
Фото © Richard Battye для FCBStudios
Театр во дворце Александра-палас
Театр во дворце Александра-палас
Фото © Lloyd Winters
Театр во дворце Александра-палас
Театр во дворце Александра-палас
Фото © Graham Joy Photography
Театр во дворце Александра-палас
Театр во дворце Александра-палас
Фото © Richard Battye для FCBStudios
Театр во дворце Александра-палас
Театр во дворце Александра-палас
Фото © Richard Battye для FCBStudios
Театр во дворце Александра-палас
Театр во дворце Александра-палас
Фото © Lloyd Winters
Театр во дворце Александра-палас
Театр во дворце Александра-палас
Фото © Lloyd Winters
Театр во дворце Александра-палас
Театр во дворце Александра-палас
Фото © Lloyd Winters
Театр во дворце Александра-палас
Театр во дворце Александра-палас
Фото © Lloyd Winters
Театр во дворце Александра-палас
Театр во дворце Александра-палас
Фото © Richard Battye для FCBStudios
Театр во дворце Александра-палас
Театр во дворце Александра-палас
Фото © Lloyd Winters
Театр во дворце Александра-палас
Театр во дворце Александра-палас
Фото © Lloyd Winters
Театр во дворце Александра-палас
Театр во дворце Александра-палас
Фото © Art + Believe
Театр во дворце Александра-палас
Театр во дворце Александра-палас
Фото © Alexandra Palace
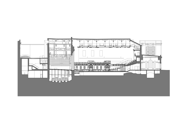
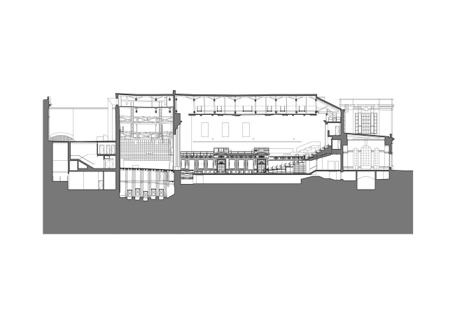
Театр во дворце Александра-палас
Театр во дворце Александра-палас
© Feilden Clegg Bradley Studios
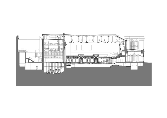
Театр во дворце Александра-палас
Театр во дворце Александра-палас
© Feilden Clegg Bradley Studios
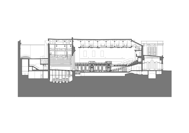
Театр во дворце Александра-палас
Театр во дворце Александра-палас
© Feilden Clegg Bradley Studios