Размещено на портале Архи.ру (www.archi.ru)

28.03.2019

Три «дымохода»

Нина Фролова
Объект:
Центр точных и естественных наук и математики школы Чартерхаус
Адрес:
Великобритания, None, Годалминг.
Мастерская:
Design Engine

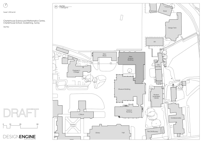
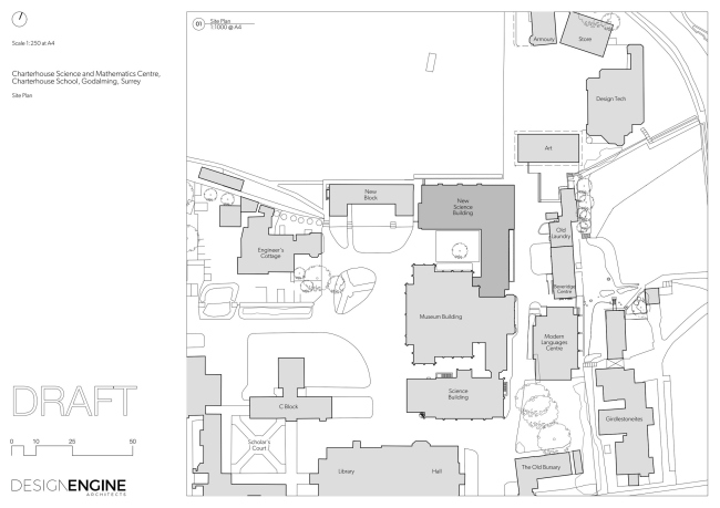
Центр точных и естественных наук и математики школы Чартерхаус в графстве Суррей по проекту архитекторов Design Engine.

Центр точных и естественных наук и математики школы Чартерхаус
Центр точных и естественных наук и математики школы Чартерхаус
Фото © Peter Blundy/Design Engine

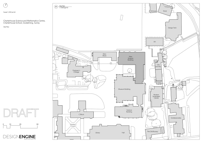
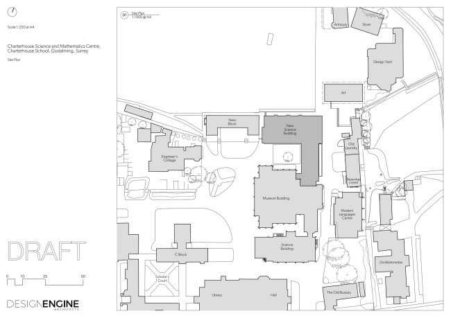
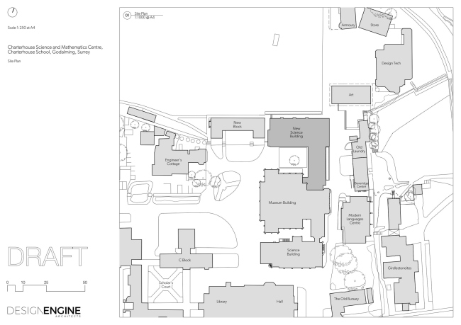
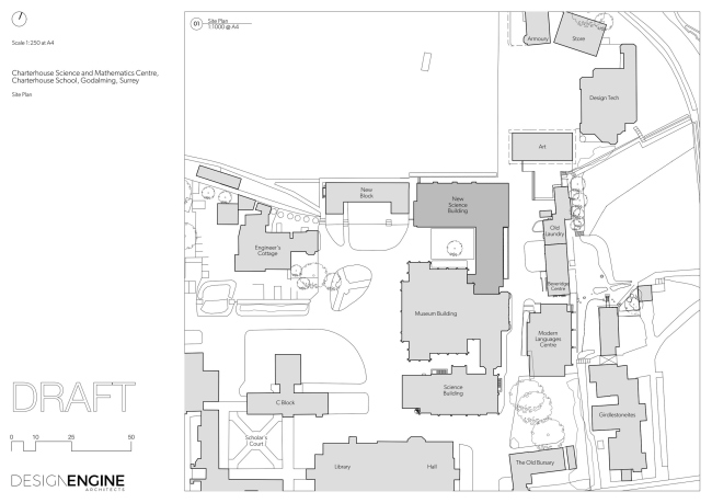
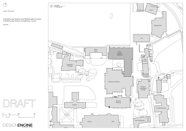
Основанная в 1611, Чартерхаус – одна из старейших ныне существующих частных школ Англии. Ее комплекс в наши дни в основном состоит из неоготических построек рубежа XIX–XX веков авторства Филипа Чарльза Хардвика.
 
Центр точных и естественных наук и математики школы Чартерхаус
Центр точных и естественных наук и математики школы Чартерхаус
Фото © Peter Blundy/Design Engine

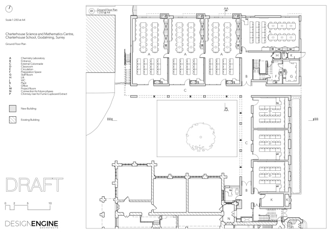
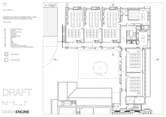
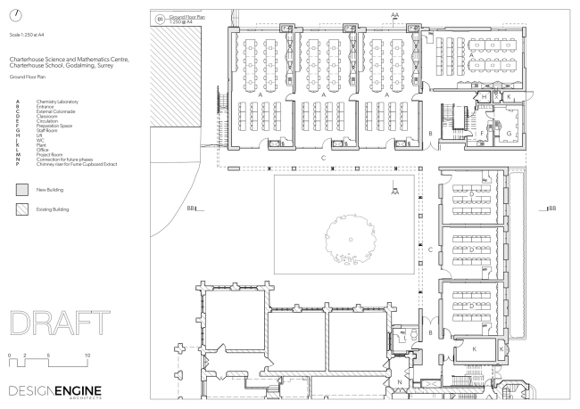
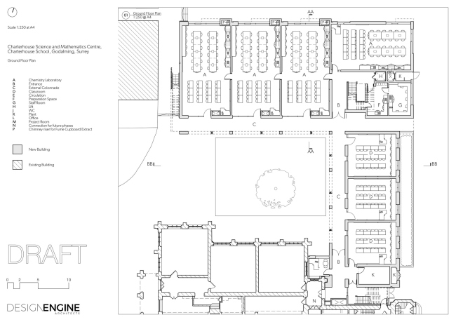
Вписать новую постройку в исторический контекст помогли кирпич и дерево, темный колорит, разные фактуры и даже орнаментальные мотивы, как на завершении самого яркого компонента – трех напоминающих дымоходы объемов на кровле: они не только создают нужные ассоциации, но и скрывают внутри необходимые для химических лабораторий вентиляционные системы.
 
Центр точных и естественных наук и математики школы Чартерхаус
Центр точных и естественных наук и математики школы Чартерхаус
Фото © Peter Blundy/Design Engine

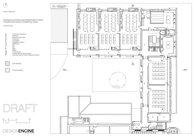
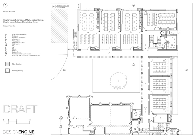
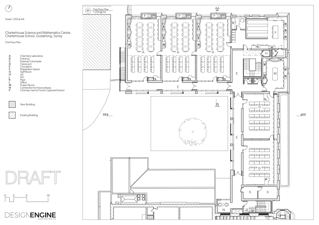
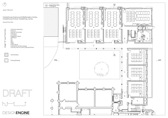
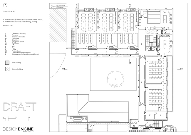
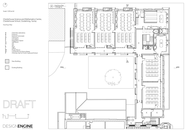
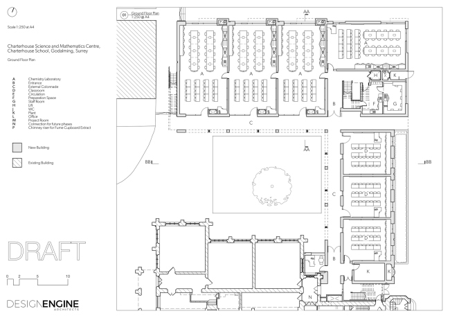
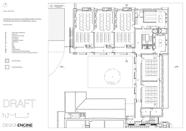
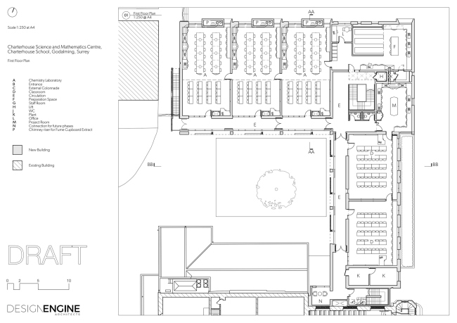
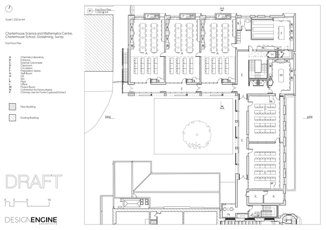
Центр площадью 1800 м2 увеличил на 50% площадь помещений для преподавания математики и «негуманитарных» наук, позволив при этом соединить занятия математикой (пять классов) и химией (семь лабораторий), что послужит большей эффективности и междисциплинарности учебного процесса. В здании также есть два помещения для подготовки и одно – для «исследовательских проектов» учеников. Благодаря большей площади школьники теперь смогут проводить многодневные эксперименты: нет необходимости их прекращать в конце каждого урока, чтобы освободить место для следующего класса.
 
Центр точных и естественных наук и математики школы Чартерхаус
Центр точных и естественных наук и математики школы Чартерхаус
Фото © Peter Blundy/Design Engine

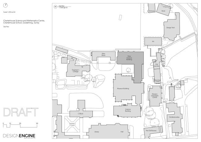
Архитекторам Design Engine проект был поручен в 2009 по результатам конкурса; строительство шло в 2017–2018. Бюджет составил 6,1 млн фунтов.
Центр точных и естественных наук и математики школы Чартерхаус
Центр точных и естественных наук и математики школы Чартерхаус
Фото © Peter Blundy/Design Engine
Центр точных и естественных наук и математики школы Чартерхаус
Центр точных и естественных наук и математики школы Чартерхаус
Фото © Peter Blundy/Design Engine
Центр точных и естественных наук и математики школы Чартерхаус
Центр точных и естественных наук и математики школы Чартерхаус
Фото © Peter Blundy/Design Engine
Центр точных и естественных наук и математики школы Чартерхаус
Центр точных и естественных наук и математики школы Чартерхаус
Фото © Peter Blundy/Design Engine
Центр точных и естественных наук и математики школы Чартерхаус
Центр точных и естественных наук и математики школы Чартерхаус
Фото © Peter Blundy/Design Engine
Центр точных и естественных наук и математики школы Чартерхаус
Центр точных и естественных наук и математики школы Чартерхаус
Фото © Peter Blundy/Design Engine
Центр точных и естественных наук и математики школы Чартерхаус
Центр точных и естественных наук и математики школы Чартерхаус
Фото © Peter Blundy/Design Engine
Центр точных и естественных наук и математики школы Чартерхаус
Центр точных и естественных наук и математики школы Чартерхаус
Фото © Peter Blundy/Design Engine
Центр точных и естественных наук и математики школы Чартерхаус
Центр точных и естественных наук и математики школы Чартерхаус
Фото © Peter Blundy/Design Engine
Центр точных и естественных наук и математики школы Чартерхаус Фото © Peter Blundy/Design Engine
Центр точных и естественных наук и математики школы Чартерхаус
Фото © Peter Blundy/Design Engine
Центр точных и естественных наук и математики школы Чартерхаус Фото © Peter Blundy/Design Engine
Центр точных и естественных наук и математики школы Чартерхаус
Фото © Peter Blundy/Design Engine
Центр точных и естественных наук и математики школы Чартерхаус Фото © Peter Blundy/Design Engine
Центр точных и естественных наук и математики школы Чартерхаус
Фото © Peter Blundy/Design Engine
Центр точных и естественных наук и математики школы Чартерхаус Фото © Peter Blundy/Design Engine
Центр точных и естественных наук и математики школы Чартерхаус
Фото © Peter Blundy/Design Engine
Центр точных и естественных наук и математики школы Чартерхаус
Центр точных и естественных наук и математики школы Чартерхаус
Фото © Peter Blundy/Design Engine
Центр точных и естественных наук и математики школы Чартерхаус
Центр точных и естественных наук и математики школы Чартерхаус
Фото © Peter Blundy/Design Engine
Центр точных и естественных наук и математики школы Чартерхаус
Центр точных и естественных наук и математики школы Чартерхаус
Фото © Peter Blundy/Design Engine
Центр точных и естественных наук и математики школы Чартерхаус
Центр точных и естественных наук и математики школы Чартерхаус
Фото © Peter Blundy/Design Engine
Центр точных и естественных наук и математики школы Чартерхаус
Центр точных и естественных наук и математики школы Чартерхаус
Фото © Peter Blundy/Design Engine
Центр точных и естественных наук и математики школы Чартерхаус
Центр точных и естественных наук и математики школы Чартерхаус
Фото © Peter Blundy/Design Engine
Центр точных и естественных наук и математики школы Чартерхаус
Центр точных и естественных наук и математики школы Чартерхаус
Фото © Peter Blundy/Design Engine
Центр точных и естественных наук и математики школы Чартерхаус
Центр точных и естественных наук и математики школы Чартерхаус
Фото © Peter Blundy/Design Engine
Центр точных и естественных наук и математики школы Чартерхаус
Центр точных и естественных наук и математики школы Чартерхаус
© Design Engine
Центр точных и естественных наук и математики школы Чартерхаус
Центр точных и естественных наук и математики школы Чартерхаус
© Design Engine
Центр точных и естественных наук и математики школы Чартерхаус
Центр точных и естественных наук и математики школы Чартерхаус
© Design Engine
Центр точных и естественных наук и математики школы Чартерхаус
Центр точных и естественных наук и математики школы Чартерхаус
© Design Engine
Центр точных и естественных наук и математики школы Чартерхаус
Центр точных и естественных наук и математики школы Чартерхаус
© Design Engine