Размещено на портале Архи.ру (www.archi.ru)

21.03.2019

Проницаемая структура

Нина Фролова
Объект:
Детский сад Нова-Руда
Адрес:
Чехия, None, Либерец.
Мастерская:
Petr Stolín Architekt

Детский сад Нова-Руда с стеклопластиковым фасадом в чешском Либерце по проекту Петра Столина и Алены Мичековой.

Детский сад Нова-Руда
Детский сад Нова-Руда
Фото © Alexandra Timpau

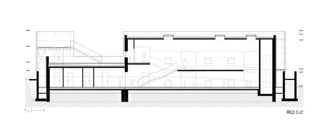
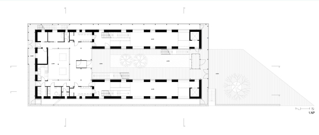
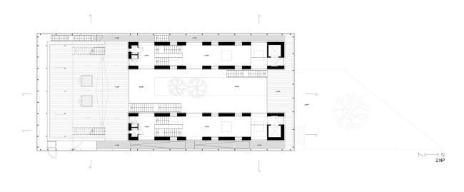
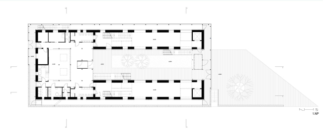
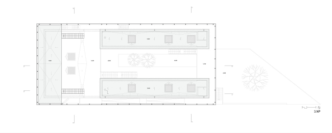
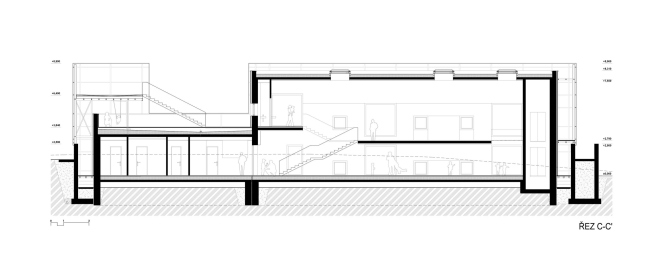
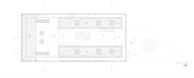
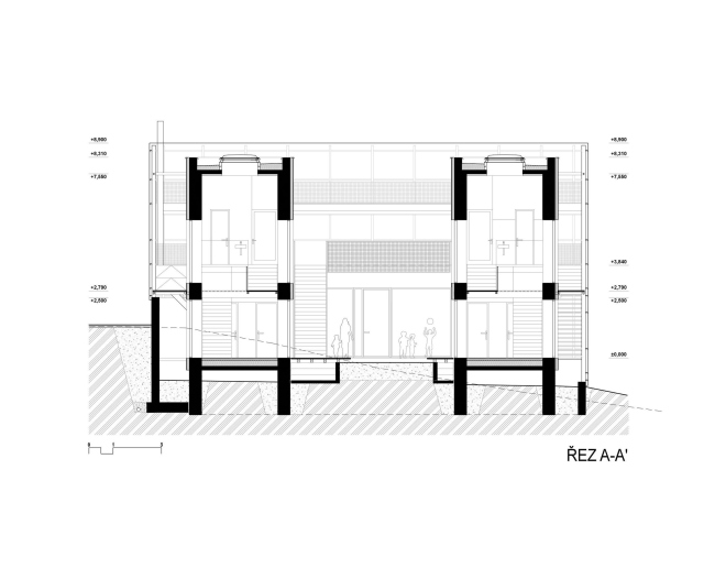
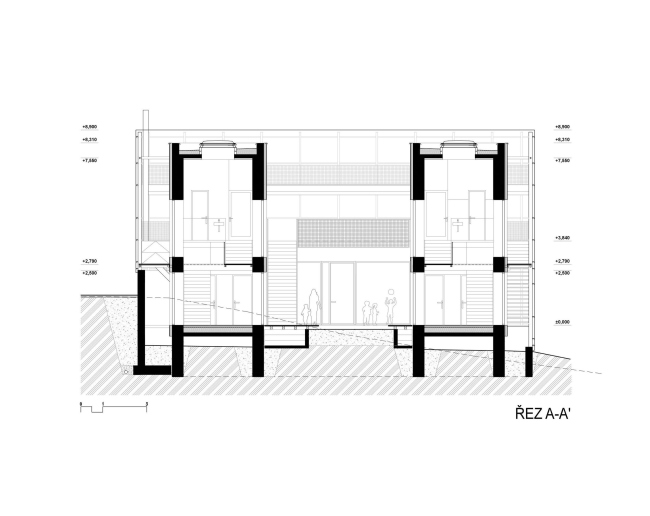
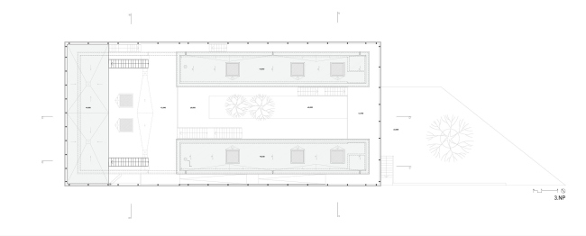
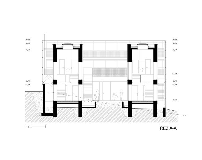
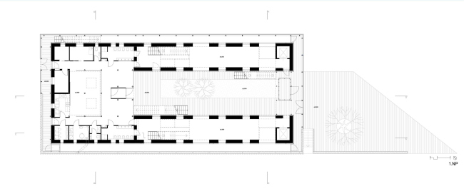
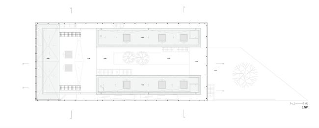
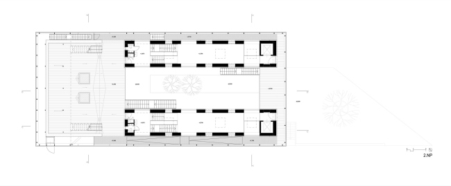
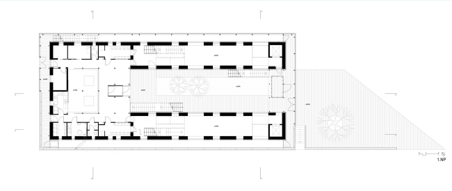
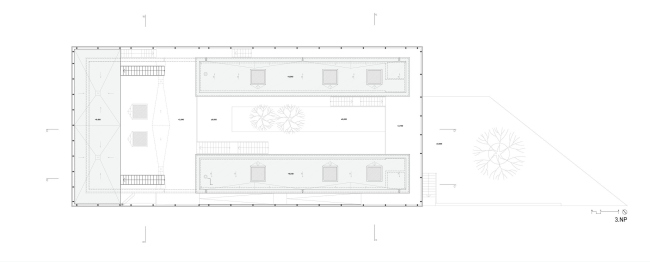
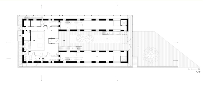
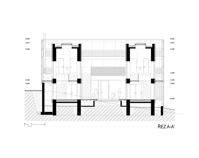
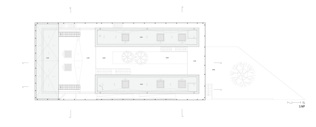
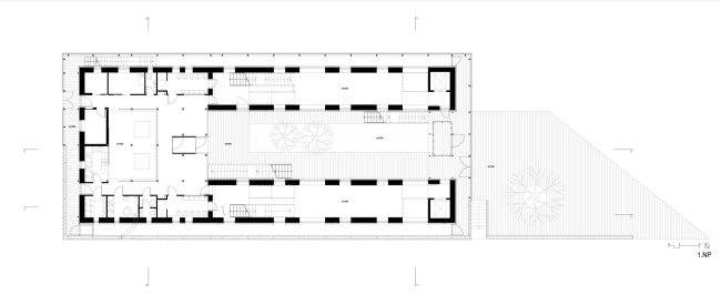
Муниципальный детский сад появился на окраине города Либерец, в районе Вратиславице-над-Нисоу: в будущем вокруг возникнет новый жилой район, но пока окружение вполне сельское: односемейные дома и поля. Собственно участок сложно назвать удобным: это обращенный на север склон, затененный историческим зданием художественной средней школы. Значительную его часть занимают асфальтированные дорожки и парковка. В таких условиях выходом, по мысли Петра Столина и Алены Мичековой, стало здание – вытянутая буква «П» в плане, с двумя длинными двухэтажными крыльями на 25 детей каждое и соединяющим их низким объемом с крышей-террасой.
 
Детский сад Нова-Руда
Детский сад Нова-Руда
Фото © Alexandra Timpau
Детский сад Нова-Руда
Детский сад Нова-Руда
Фото © Alexandra Timpau
Детский сад Нова-Руда
Детский сад Нова-Руда
Фото © Alexandra Timpau
Детский сад Нова-Руда Фото © Alexandra Timpau
Детский сад Нова-Руда
Фото © Alexandra Timpau
Детский сад Нова-Руда Фото © Alexandra Timpau
Детский сад Нова-Руда
Фото © Alexandra Timpau
Детский сад Нова-Руда Фото © Alexandra Timpau
Детский сад Нова-Руда
Фото © Alexandra Timpau

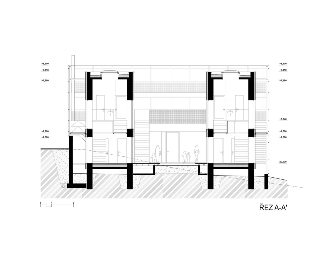
Кирпичную постройку снаружи обшили стеклопластиком на деревянном каркасе, который размывает границы здания при взгляде изнутри и снаружи. Во дворе использованы гладкие листы, на уличных фасадах – с трапециевидным профилем. Источник вдохновения для авторов – творчество японского архитектора Такахару Тэдзуки.
Детский сад Нова-Руда Фото © Alexandra Timpau
Детский сад Нова-Руда
Фото © Alexandra Timpau
Детский сад Нова-Руда Фото © Alexandra Timpau
Детский сад Нова-Руда
Фото © Alexandra Timpau
Детский сад Нова-Руда Фото © Alexandra Timpau
Детский сад Нова-Руда
Фото © Alexandra Timpau
Детский сад Нова-Руда Фото © Alexandra Timpau
Детский сад Нова-Руда
Фото © Alexandra Timpau
Детский сад Нова-Руда Фото © Alexandra Timpau
Детский сад Нова-Руда
Фото © Alexandra Timpau
Детский сад Нова-Руда Фото © Alexandra Timpau
Детский сад Нова-Руда
Фото © Alexandra Timpau
Детский сад Нова-Руда
Детский сад Нова-Руда
Фото © Alexandra Timpau
Детский сад Нова-Руда
Детский сад Нова-Руда
Фото © Alexandra Timpau
Детский сад Нова-Руда
Детский сад Нова-Руда
Фото © Alexandra Timpau

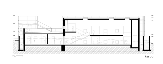
Пространство для игр во внутреннем дворе продолжается на кровле одноэтажного крыла и на внешних галереях на металлическом каркасе (при этом они скрыты за стеклопластиком). Помещения для детей открыты наружу панорамными окнами, связаны визуально через «атриумы», у них разная форма и высота: так создается образ занимательных джунглей или лабиринта, а не сурового «дошкольного учреждения».
 
Детский сад Нова-Руда
Детский сад Нова-Руда
Фото © Alexandra Timpau
Детский сад Нова-Руда
Детский сад Нова-Руда
Фото © Alexandra Timpau
Детский сад Нова-Руда
Детский сад Нова-Руда
Фото © Alexandra Timpau

Нижний ярус занят спальной зоной, выше находятся игровые и учебные комнаты. В низком крыле – столовая на 30 детей и четырех взрослых, кабинеты четырех воспитателей и директора, раздевалка. Техническая часть включает в себя кухню, раздевалку сотрудников, подсобные помещения и кладовки. Общая площадь постройки составила 915 м2, бюджет – 40 млн чешских крон (около 1,5 млн евро).
Детский сад Нова-Руда
Детский сад Нова-Руда
Фото © Alexandra Timpau
Детский сад Нова-Руда
Детский сад Нова-Руда
Фото © Alexandra Timpau
Детский сад Нова-Руда
Детский сад Нова-Руда
Фото © Alexandra Timpau
Детский сад Нова-Руда
Детский сад Нова-Руда
Фото © Alexandra Timpau
Детский сад Нова-Руда
Детский сад Нова-Руда
Фото © Alexandra Timpau
Детский сад Нова-Руда
Детский сад Нова-Руда
Фото © Alexandra Timpau
Детский сад Нова-Руда
Детский сад Нова-Руда
Фото © Alexandra Timpau
Детский сад Нова-Руда
Детский сад Нова-Руда
Фото © Alexandra Timpau
Детский сад Нова-Руда
Детский сад Нова-Руда
Фото © Alexandra Timpau
Детский сад Нова-Руда
Детский сад Нова-Руда
Фото © Alexandra Timpau
Детский сад Нова-Руда
Детский сад Нова-Руда
Фото © Alexandra Timpau
Детский сад Нова-Руда
Детский сад Нова-Руда
Фото © Alexandra Timpau
Детский сад Нова-Руда
Детский сад Нова-Руда
Фото © Alexandra Timpau
Детский сад Нова-Руда
Детский сад Нова-Руда
Фото © Alexandra Timpau
Детский сад Нова-Руда
Детский сад Нова-Руда
© Petr Stolín Architekt
Детский сад Нова-Руда
Детский сад Нова-Руда
© Petr Stolín Architekt
Детский сад Нова-Руда
Детский сад Нова-Руда
© Petr Stolín Architekt
Детский сад Нова-Руда
Детский сад Нова-Руда
© Petr Stolín Architekt
Детский сад Нова-Руда
Детский сад Нова-Руда
© Petr Stolín Architekt
Детский сад Нова-Руда
Детский сад Нова-Руда
© Petr Stolín Architekt
Детский сад Нова-Руда
Детский сад Нова-Руда
© Petr Stolín Architekt
Детский сад Нова-Руда
Детский сад Нова-Руда
© Petr Stolín Architekt