Размещено на портале Архи.ру (www.archi.ru)

11.03.2019

Кубические ячейки

Нина Фролова
Объект:
Здание компании C&P
Адрес:
Австрия, None, Грац.
Мастерская:
Innocad

Здание риэлторской компании C&P в Граце по проекту архитекторов Innocad получило фасад из бетонных ячеек с автоматическими жалюзи.

Здание компании C&P
Здание компании C&P
Фото © Paul Ott

Семиэтажное здание для компании C&P находится у самого оживленного въезда в центр Граца, среди промзоны с невысокой застройкой. Такое заметное расположение, а также желание не так давно созданной фирмы заявить о себе заставили бюро Innocad выступить также и автором «архитектурного бренда». Концепция Cubend (cube + bend, цельность и динамика) включает в себя оболочку, которая очевидно взаимодействует с человеком – в отличие от герметичных индустриальных корпусов вокруг.
 
Здание компании C&P
Здание компании C&P
Фото © Paul Ott
Здание компании C&P
Здание компании C&P
Фото © Paul Ott

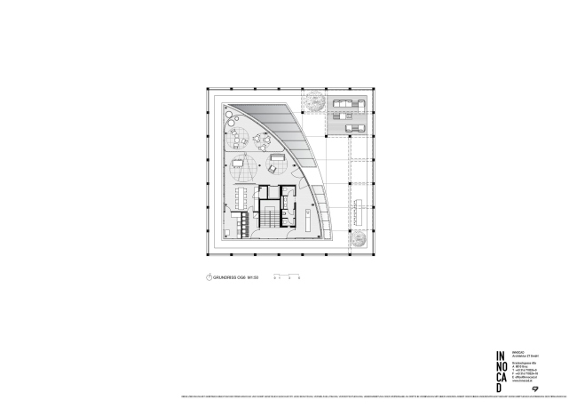
Снаружи находится бетонная решетка, каждая ячейка которой может быть защищена от солнца жалюзи: конкретное соотношение открытых и закрытых ячеек определяется погодой, временем суток, сезоном, наличием людей в помещении и т.д. Дальше находится переходная зона с террасами-галереями, которая служит рекреационным пространством в теплое время года. Внутренняя оболочка выполнена из стекла, что обеспечивает постройку естественным освещением и визуальной связью с окружением.
 
Здание компании C&P
Здание компании C&P
Фото © Paul Ott
Здание компании C&P
Здание компании C&P
Фото © Paul Ott

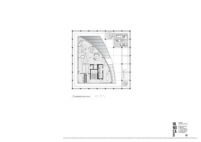
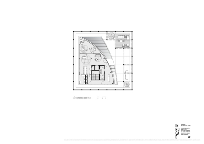
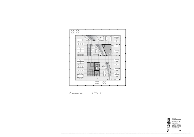
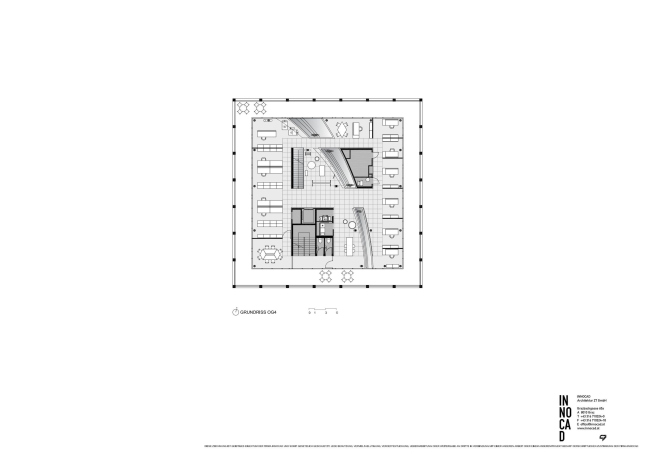
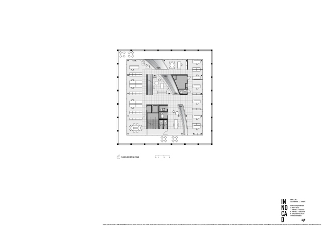
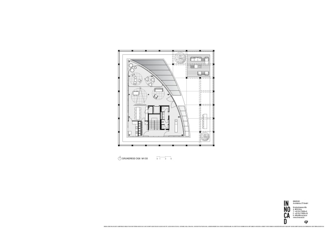
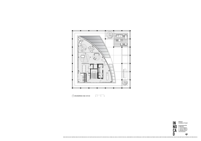
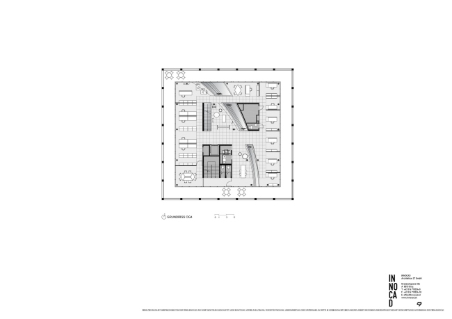
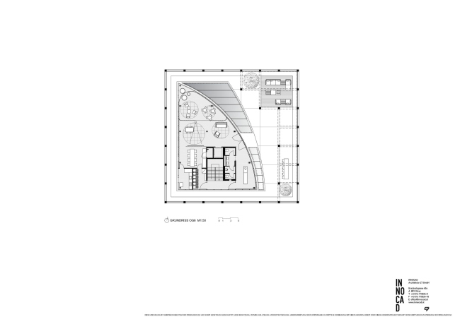
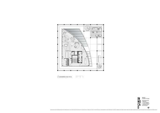
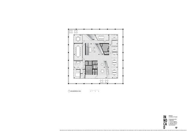
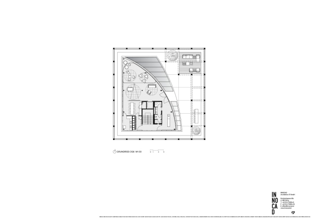
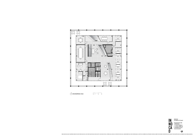
Главную роль в интерьере играет атриум, связывающий все семь этажей. На общей площади в 2465 м2 расположены вестибюль, пространство для покупателей со смотровой квартирой, переговорные, офис свободной планировки, зона для мероприятий. В основе плана – прямоугольная решетка. Бюджет проекта, включая меблировку – 4,4 млн евро.
Здание компании C&P
Здание компании C&P
Фото © Paul Ott
Здание компании C&P
Здание компании C&P
Фото © Paul Ott
Здание компании C&P
Здание компании C&P
Фото © Paul Ott
Здание компании C&P
Здание компании C&P
Фото © Paul Ott
Здание компании C&P
Здание компании C&P
Фото © Paul Ott
Здание компании C&P
Здание компании C&P
Фото © Paul Ott
Здание компании C&P
Здание компании C&P
Фото © Paul Ott
Здание компании C&P
Здание компании C&P
Фото © Paul Ott
Здание компании C&P
Здание компании C&P
Фото © Paul Ott
Здание компании C&P
Здание компании C&P
Фото © Paul Ott
Здание компании C&P
Здание компании C&P
Фото © Paul Ott
Здание компании C&P
Здание компании C&P
Фото © Paul Ott
Здание компании C&P
Здание компании C&P
Фото © Paul Ott
Здание компании C&P
Здание компании C&P
Фото © Paul Ott
Здание компании C&P
Здание компании C&P
Фото © Paul Ott
Здание компании C&P
Здание компании C&P
Фото © Paul Ott
Здание компании C&P
Здание компании C&P
Фото © Paul Ott
Здание компании C&P
Здание компании C&P
Фото © Paul Ott
Здание компании C&P
Здание компании C&P
Фото © Paul Ott
Здание компании C&P
Здание компании C&P
Фото © Paul Ott
Здание компании C&P
Здание компании C&P
Фото © Paul Ott
Здание компании C&P
Здание компании C&P
Фото © Paul Ott
Здание компании C&P
Здание компании C&P
Изображение © INNOCAD | Architektur
Здание компании C&P
Здание компании C&P
Изображение © INNOCAD | Architektur
Здание компании C&P
Здание компании C&P
Изображение © INNOCAD | Architektur
Здание компании C&P
Здание компании C&P
Изображение © INNOCAD | Architektur
Здание компании C&P
Здание компании C&P
Изображение © INNOCAD | Architektur
Здание компании C&P
Здание компании C&P
Изображение © INNOCAD | Architektur
Здание компании C&P
Здание компании C&P
Изображение © INNOCAD | Architektur