Размещено на портале Архи.ру (www.archi.ru)

13.02.2019

Уходя от штампов

Полина Садова

В Южно-Сахалинске завершается конкурс на проект застройки нового микрорайона, который вызвал интерес не только у российских, но и у зарубежных архитекторов. Рассказываем о проектах-финалистах.

Концепция застройки нового микрорайона в Южно-Сахалинске © Zaha Hadid Architects
Концепция застройки нового микрорайона в Южно-Сахалинске © Zaha Hadid Architects

Конкурс на концепцию застройки нового микрорайона в Южно-Сахалинске сумел привлечь внимание не только дальневосточных бюро, но и архитекторов из Москвы, Петербурга и даже Лондона: среди участников и финалистов – бюро Zaha Hadid Architects.

Сегодня 26 гектаров близ электроподстанции «Хомутово» занимает лесной массив. У городской администрации был свой взгляд на функциональное наполнение района, но поскольку выбранный участок находится на въезде в Южно-Сахалинск и может служить его «лицом», архитектуре решили уделить особое внимание.

«Мне кажется, нужно в этом проекте отойти от косности, которая мешает нам экспериментировать, делать что-то новое. Нужно уходить от советских штампов, квадратных домов каких-то там, серых крыш. Нужно жизнь нашу как-то украшать и начинать не завтра нужно, а ещё вчера»,делится ожиданиями депутат городской думы Николай Артёменко.

Всего на конкурс подали заявки десять команд, а проекты предоставили восемь: консорциум Zaha Hadid Architects (Великобритания) и архитектурного бюро «Капитель» (Южно-Сахалинск), «Градостроительные решения» (Москва), «Урбаника» (Санкт-Петербург), «Оферта Диалог» (Владивосток), «Моспроект-2» (Москва), «Атриум-Партнер» (Хабаровск), «Инициатива Инжпроект» (Москва).

Все участники выступили с презентациями перед жюри. Взгляды на этажность жилых домов, квартирографию, плотность застройки, количество парковок, инфраструктуру и, конечно, архитектуру района в некоторых случаях сильно разнились. В итоге выбрали трех финалистов, но не победителя. Лучшие проекты решено вынести для обсуждения на областной градостроительный совет. Вероятнее всего, концепцию, которая ляжет в основу дальнейшего проектирования микрорайона, выберут уже в феврале. Но проект победителя вряд ли можно будет реализовать без корректировок – некоторые из предложенных решений показались жюри экономически невыгодными, а другие, к примеру, не учитывали климатических особенностей города.

В качестве независимых экспертов в работе жюри приняли участие руководитель проектного бюро UNK project Юлий Борисов, вице-президент Союза архитекторов России Дмитрий Наринский и генеральный директор бюро RTDA Марина Лепешкина.

Юлий Борисов: «Хотел бы отметить высокий уровень работ участников. Важным плюсом для регионального конкурса стало, безусловно, то, что он смог привлечь внимание мирового архитектурного бюро Zaha Hadid Architects. Развитие городской среды требует нового взгляда вместе с эффективными подходами, и очень здорово, что регионы начинают перенимать передовой опыт».

Заказчиком конкурса выступил Департамент архитектуры и градостроительства Южно-Сахалинска. Ознакомиться с конкурсной документацией можно здесь.

Ниже – все три проекта, претендующих на победу.
 
Zaha Hadid Architects 
Концепция застройки нового микрорайона в Южно-Сахалинске © Zaha Hadid Architects
Концепция застройки нового микрорайона в Южно-Сахалинске © Zaha Hadid Architects

Микрорайон вырастает вокруг пешеходной площади. Это безопасное, функциональное, свободное от машин зеленое пространство, которое позволит жителям встречаться, общаться, создавать соседские сообщества – необходимые, как говорят сами архитекторы, элементы любого здорового жилого образования. Красной нитью через весь проект проходит забота о существующем ландшафте и стремление гармонизировать взаимоотношения нового района с природой.
Концепция застройки нового микрорайона в Южно-Сахалинске © Zaha Hadid Architects
Концепция застройки нового микрорайона в Южно-Сахалинске © Zaha Hadid Architects
Концепция застройки нового микрорайона в Южно-Сахалинске © Zaha Hadid Architects
Концепция застройки нового микрорайона в Южно-Сахалинске © Zaha Hadid Architects
Концепция застройки нового микрорайона в Южно-Сахалинске. Расчет продолжительности инсоляции © Zaha Hadid Architects
Концепция застройки нового микрорайона в Южно-Сахалинске. Расчет продолжительности инсоляции © Zaha Hadid Architects
Концепция застройки нового микрорайона в Южно-Сахалинске. Типология зданий © Zaha Hadid Architects
Концепция застройки нового микрорайона в Южно-Сахалинске. Типология зданий © Zaha Hadid Architects
Концепция застройки нового микрорайона в Южно-Сахалинске. Ландшафтная стратегия © Zaha Hadid Architects
Концепция застройки нового микрорайона в Южно-Сахалинске. Ландшафтная стратегия © Zaha Hadid Architects
Концепция застройки нового микрорайона в Южно-Сахалинске. Распределение внутри программы © Zaha Hadid Architects
Концепция застройки нового микрорайона в Южно-Сахалинске. Распределение внутри программы © Zaha Hadid Architects
Концепция застройки нового микрорайона в Южно-Сахалинске. Распределение внутри программы © Zaha Hadid Architects
Концепция застройки нового микрорайона в Южно-Сахалинске. Распределение внутри программы © Zaha Hadid Architects
Концепция застройки нового микрорайона в Южно-Сахалинске. Распределение внутри программы © Zaha Hadid Architects
Концепция застройки нового микрорайона в Южно-Сахалинске. Распределение внутри программы © Zaha Hadid Architects

 
***
 
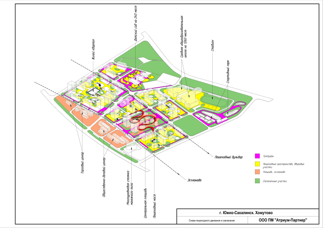
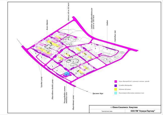
Атриум-Партнер (Хабаровск)
Концепция застройки нового микрорайона в Южно-Сахалинске © Проектная мастерская «Атриум-Партнер»
Концепция застройки нового микрорайона в Южно-Сахалинске © Проектная мастерская «Атриум-Партнер»

Чтобы придать микрорайону запоминающийся облик, архитекторы внедрили туда систему вертикальных (жилые здания) и горизонтальных (малоэтажные постройки вдоль проспекта) доминант. Скатные кровли большинства зданий – решение, продиктованное не только эстетикой, но и спецификой климата региона (угол наклона от 45 до 50 градусов уменьшает вероятность задержки осадков, в том числе при сильных снегопадах). Как и в других проектах, большое внимание здесь уделяется созданию достаточного количества парковочных мест и при этом максимальному сохранению «пешеходной свободы».
Концепция застройки нового микрорайона в Южно-Сахалинске © Проектная мастерская «Атриум-Партнер»
Концепция застройки нового микрорайона в Южно-Сахалинске © Проектная мастерская «Атриум-Партнер»
Концепция застройки нового микрорайона в Южно-Сахалинске © Проектная мастерская «Атриум-Партнер»
Концепция застройки нового микрорайона в Южно-Сахалинске © Проектная мастерская «Атриум-Партнер»
Концепция застройки нового микрорайона в Южно-Сахалинске © Проектная мастерская «Атриум-Партнер»
Концепция застройки нового микрорайона в Южно-Сахалинске © Проектная мастерская «Атриум-Партнер»
Концепция застройки нового микрорайона в Южно-Сахалинске © Проектная мастерская «Атриум-Партнер»
Концепция застройки нового микрорайона в Южно-Сахалинске © Проектная мастерская «Атриум-Партнер»
Концепция застройки нового микрорайона в Южно-Сахалинске © Проектная мастерская «Атриум-Партнер»
Концепция застройки нового микрорайона в Южно-Сахалинске © Проектная мастерская «Атриум-Партнер»
Концепция застройки нового микрорайона в Южно-Сахалинске © Проектная мастерская «Атриум-Партнер»
Концепция застройки нового микрорайона в Южно-Сахалинске © Проектная мастерская «Атриум-Партнер»
Концепция застройки нового микрорайона в Южно-Сахалинске © Проектная мастерская «Атриум-Партнер»
Концепция застройки нового микрорайона в Южно-Сахалинске © Проектная мастерская «Атриум-Партнер»
Концепция застройки нового микрорайона в Южно-Сахалинске © Проектная мастерская «Атриум-Партнер»
Концепция застройки нового микрорайона в Южно-Сахалинске © Проектная мастерская «Атриум-Партнер»
Концепция застройки нового микрорайона в Южно-Сахалинске © Проектная мастерская «Атриум-Партнер»
Концепция застройки нового микрорайона в Южно-Сахалинске © Проектная мастерская «Атриум-Партнер»
Концепция застройки нового микрорайона в Южно-Сахалинске © Проектная мастерская «Атриум-Партнер»
Концепция застройки нового микрорайона в Южно-Сахалинске © Проектная мастерская «Атриум-Партнер»

 
***
 
Оферта Диалог (Владивосток)
Концепция застройки нового микрорайона в Южно-Сахалинске © Оферта Диалог
Концепция застройки нового микрорайона в Южно-Сахалинске © Оферта Диалог

Принципы, которыми руководствовались архитекторы: уважение к природной среде и сохранение значимых элементов ландшафта; создание гибкой для изменений системы землепользования; организация продуманной транспортной системы; обеспечение жителей безопасными, привлекательными и разнообразными общественными пространствами и центрами активности. Разнообразие планировочных решений позволяет найти для себя подходящий вариант в зависимости от доходов и состава семьи.
Концепция застройки нового микрорайона в Южно-Сахалинске © Оферта Диалог
Концепция застройки нового микрорайона в Южно-Сахалинске © Оферта Диалог
Концепция застройки нового микрорайона в Южно-Сахалинске © Оферта Диалог
Концепция застройки нового микрорайона в Южно-Сахалинске © Оферта Диалог
Концепция застройки нового микрорайона в Южно-Сахалинске © Оферта Диалог
Концепция застройки нового микрорайона в Южно-Сахалинске © Оферта Диалог
Концепция застройки нового микрорайона в Южно-Сахалинске © Оферта Диалог
Концепция застройки нового микрорайона в Южно-Сахалинске © Оферта Диалог
Концепция застройки нового микрорайона в Южно-Сахалинске © Оферта Диалог
Концепция застройки нового микрорайона в Южно-Сахалинске © Оферта Диалог
Концепция застройки нового микрорайона в Южно-Сахалинске © Оферта Диалог
Концепция застройки нового микрорайона в Южно-Сахалинске © Оферта Диалог
Концепция застройки нового микрорайона в Южно-Сахалинске © Оферта Диалог
Концепция застройки нового микрорайона в Южно-Сахалинске © Оферта Диалог
Концепция застройки нового микрорайона в Южно-Сахалинске © Оферта Диалог
Концепция застройки нового микрорайона в Южно-Сахалинске © Оферта Диалог
Концепция застройки нового микрорайона в Южно-Сахалинске © Оферта Диалог
Концепция застройки нового микрорайона в Южно-Сахалинске © Оферта Диалог