Размещено на портале Архи.ру (www.archi.ru)

31.01.2019

Без больничных коридоров

Нина Фролова
Объект:
Больница Харальдспласс – новое крыло
Адрес:
Норвегия, None, Берген.
Мастерская:
C. F. Møller

Новое крыло больницы Харальдспласс в Бергене по проекту бюро C.F. Møller.

Больница Харальдспласс – новое крыло. Фото © Joergen True
Больница Харальдспласс – новое крыло. Фото © Joergen True

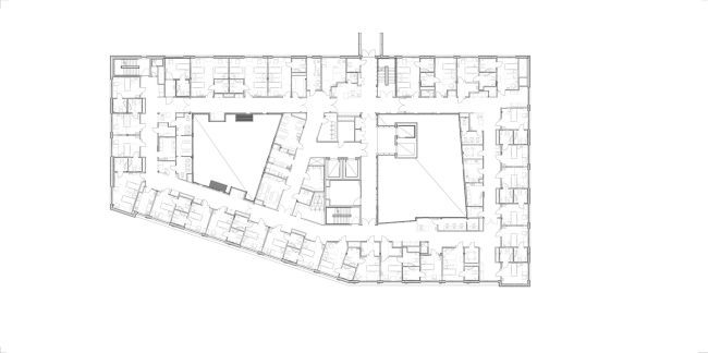
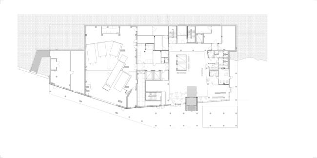
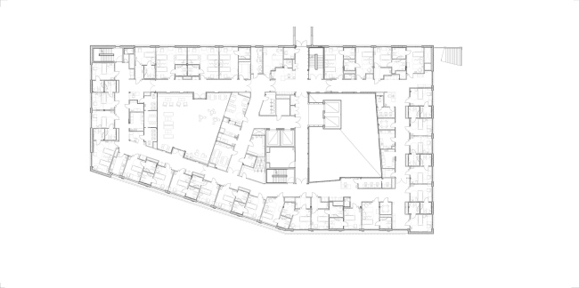
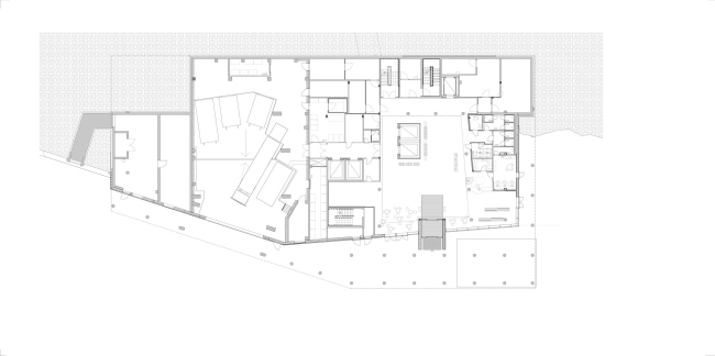
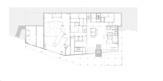
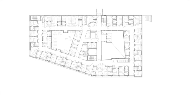
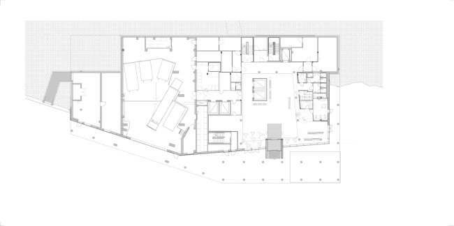
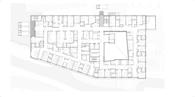
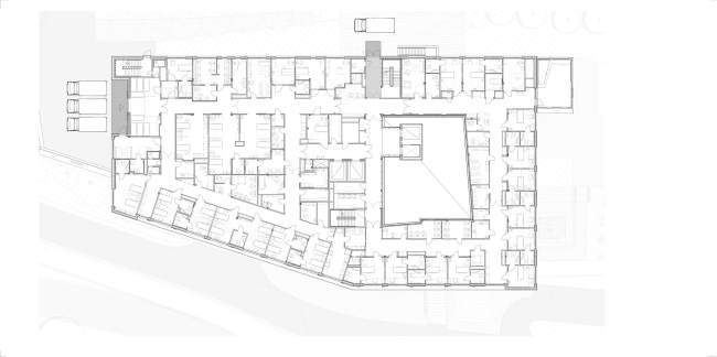
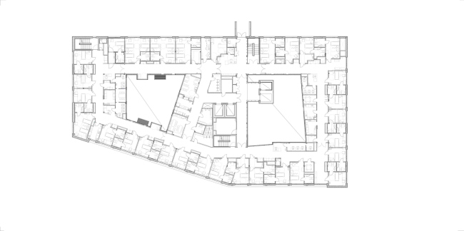
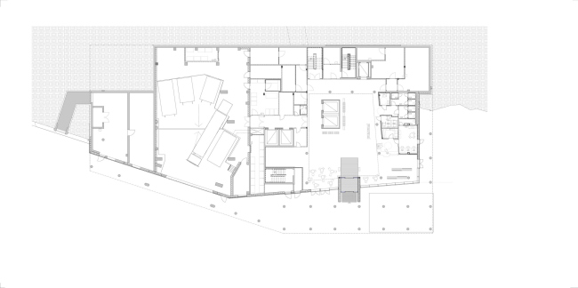
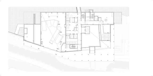
Здание расположено у подножия горы Ульрикен, впереди основного корпуса больницы (1940, архитектор Пер Григ), ближе к дороге, поэтому там устроен новый вестибюль. Параллельно дороге протекает река Мёллендальсэльва, и вслед за поворотом ее русла изгибается главный фасад новой постройки. Как и в старой части, пациенты могут любоваться видами Бергена из окон палаты – причем даже если не могут встать: об обзоре из любого положения позаботились архитекторы C.F. Møller.
 
Больница Харальдспласс – новое крыло. Фото © Joergen True
Больница Харальдспласс – новое крыло. Фото © Joergen True

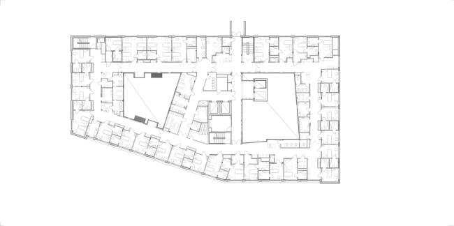
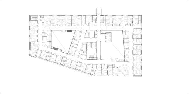
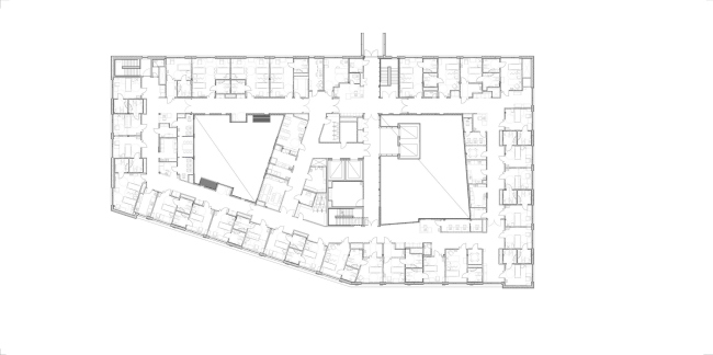
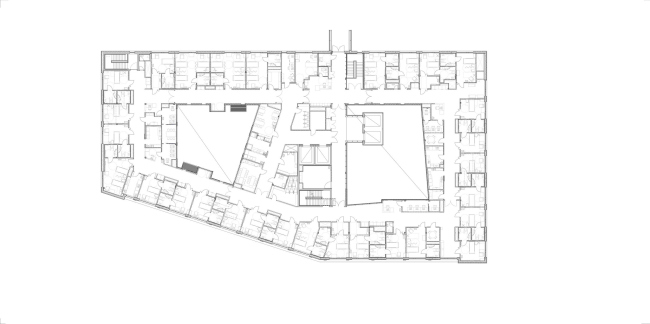
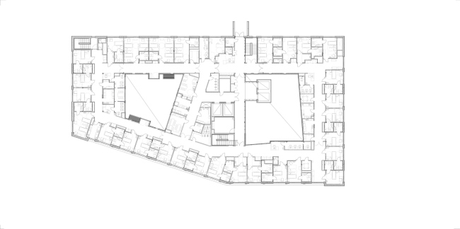
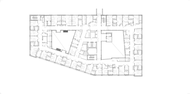
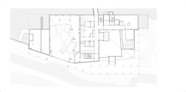
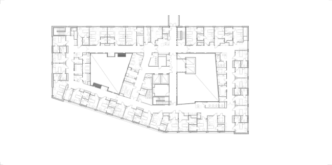
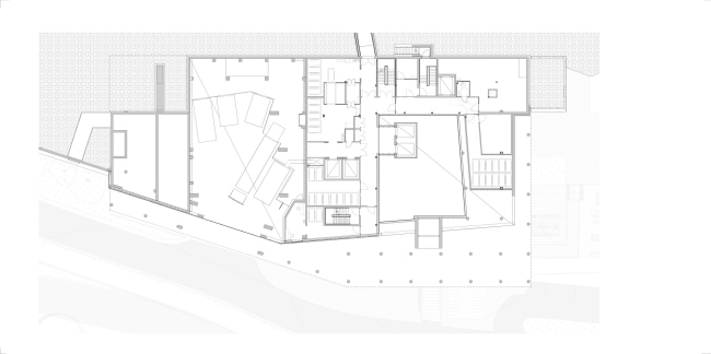
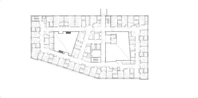
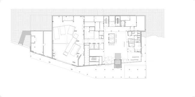
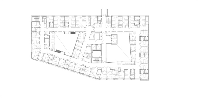
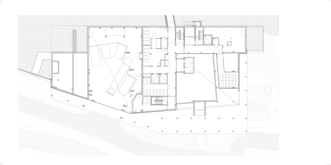
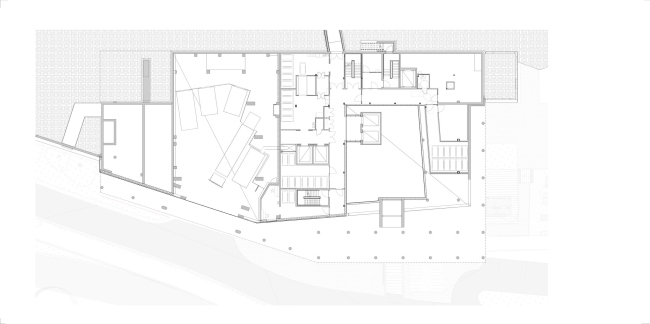
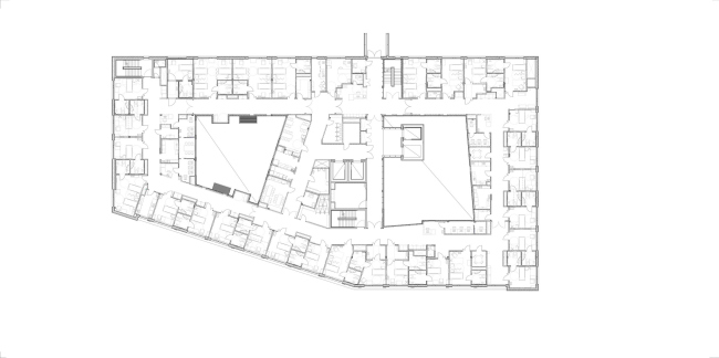
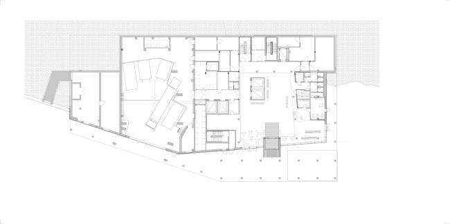
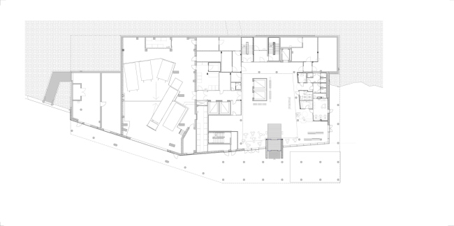
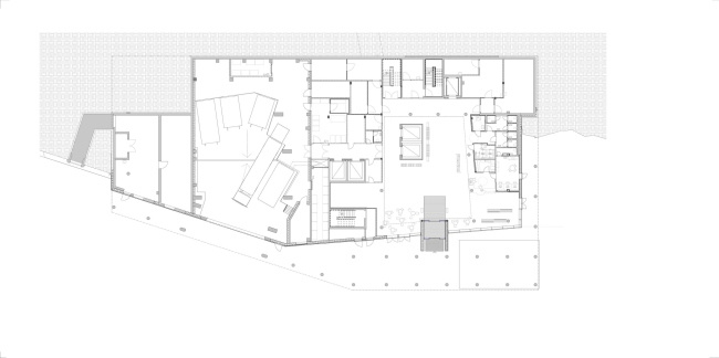
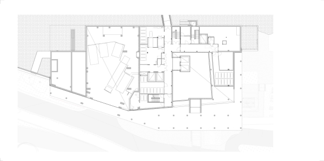
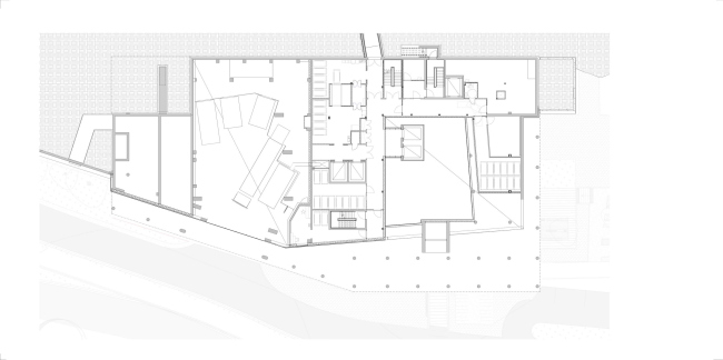
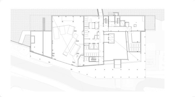
В корпусе – 170 палат, ¾ из них – одноместные. Больница лишена привычных длинных коридоров, их заменила более свободная и эффективная планировка вокруг двух атриумов. Один из них – «публичный», со стойкой администратора, кафе, магазином, зоной ожидания. Второй предназначен для пациентов и их посетителей. Такое решение впустило в интерьер солнце, сделало ориентацию – удобней, а объем здания – компактней. На общей площади в 14 200 м2 расположен и приемный покой скорой помощи.
 
Больница Харальдспласс – новое крыло. Фото © Joergen True
Больница Харальдспласс – новое крыло. Фото © Joergen True

Фасад корпуса обшит белыми панелями фибробетона и древесиной дуба. С основным зданием больницы его связывает надземный переход.
 
Больница Харальдспласс – новое крыло. Фото © Joergen True
Больница Харальдспласс – новое крыло. Фото © Joergen True

Больница была основана религиозным Фондом диаконис Харальдспласс. Ее специализация – уход за пожилыми пациентами и паллиативная помощь. Новый корпус открыла в конце прошлого года премьер-министр Норвегии Эрна Сульберг.
Больница Харальдспласс – новое крыло. Фото © Joergen True
Больница Харальдспласс – новое крыло. Фото © Joergen True
Больница Харальдспласс – новое крыло. Фото © Joergen True
Больница Харальдспласс – новое крыло. Фото © Joergen True
Больница Харальдспласс – новое крыло. Фото © Joergen True
Больница Харальдспласс – новое крыло. Фото © Joergen True
Больница Харальдспласс – новое крыло. Фото © Joergen True
Больница Харальдспласс – новое крыло. Фото © Joergen True
Больница Харальдспласс – новое крыло. Фото © Joergen True
Больница Харальдспласс – новое крыло. Фото © Joergen True
Больница Харальдспласс – новое крыло. Фото © Joergen True
Больница Харальдспласс – новое крыло. Фото © Joergen True
Больница Харальдспласс – новое крыло. Фото © Joergen True
Больница Харальдспласс – новое крыло. Фото © Joergen True
Больница Харальдспласс – новое крыло. Фото © Joergen True
Больница Харальдспласс – новое крыло. Фото © Joergen True
Больница Харальдспласс – новое крыло. Фото © Joergen True
Больница Харальдспласс – новое крыло. Фото © Joergen True
Больница Харальдспласс – новое крыло. Фото © Joergen True
Больница Харальдспласс – новое крыло. Фото © Joergen True
Больница Харальдспласс – новое крыло. Фото © Joergen True
Больница Харальдспласс – новое крыло. Фото © Joergen True
Больница Харальдспласс – новое крыло © C.F. Møller
Больница Харальдспласс – новое крыло © C.F. Møller
Больница Харальдспласс – новое крыло © C.F. Møller
Больница Харальдспласс – новое крыло © C.F. Møller
Больница Харальдспласс – новое крыло © C.F. Møller
Больница Харальдспласс – новое крыло © C.F. Møller
Больница Харальдспласс – новое крыло © C.F. Møller
Больница Харальдспласс – новое крыло © C.F. Møller
Больница Харальдспласс – новое крыло © C.F. Møller
Больница Харальдспласс – новое крыло © C.F. Møller
Больница Харальдспласс – новое крыло © C.F. Møller
Больница Харальдспласс – новое крыло © C.F. Møller
Больница Харальдспласс – новое крыло © C.F. Møller
Больница Харальдспласс – новое крыло © C.F. Møller
Больница Харальдспласс – новое крыло © C.F. Møller
Больница Харальдспласс – новое крыло © C.F. Møller
Больница Харальдспласс – новое крыло © C.F. Møller
Больница Харальдспласс – новое крыло © C.F. Møller
Больница Харальдспласс – новое крыло © C.F. Møller
Больница Харальдспласс – новое крыло © C.F. Møller
Больница Харальдспласс – новое крыло © C.F. Møller
Больница Харальдспласс – новое крыло © C.F. Møller
Больница Харальдспласс – новое крыло © C.F. Møller
Больница Харальдспласс – новое крыло © C.F. Møller
Больница Харальдспласс – новое крыло © C.F. Møller
Больница Харальдспласс – новое крыло © C.F. Møller
Больница Харальдспласс – новое крыло © C.F. Møller
Больница Харальдспласс – новое крыло © C.F. Møller
Больница Харальдспласс – новое крыло © C.F. Møller
Больница Харальдспласс – новое крыло © C.F. Møller
Больница Харальдспласс – новое крыло © C.F. Møller
Больница Харальдспласс – новое крыло © C.F. Møller