Размещено на портале Архи.ру (www.archi.ru)

25.01.2019

Средовой пионер

Елена Петухова
Объект:
Клубный дом MITTE
Адрес:
Россия, Москва. Летниковская улица, вл. 13
Мастерская:
Проектное бюро АПЕКС
Авторский коллектив:
Руководитель проекта: Александр Павлов
ГАП: Сергей Сенкевич
ГИП: Николай Першин
Архитекторы: Татьяна Шмелева, Андрей Шмелев, Георгий Шафоростов, Анастасия Шафоростова, Евгений Чебышев

В проекте клубного дома MITTE архитекторы предложили модель развития прилегающей к участку территории, взяв за основу методику работы со средой в одноименном районе Берлина и характерные черты московской архитектуры рубежа XX–XXI веков.

Вид на комплекс апартаментов со стороны двора © Проектное бюро АПЕКС
Вид на комплекс апартаментов со стороны двора © Проектное бюро АПЕКС

 
Зона хаоса
Легендарная пестрота московской застройки – результат продолжавшейся многие столетия градостроительной карусели, на практике означавшей, что каждый собственник имел возможность по-своему трактовать заданные параметры будущих строений. В пределах, казалось бы, абсолютных величин «красных линий» и высотных регламентов всегда находился люфт, открывавший перед предприимчивым девелопером или амбициозным архитектором пути выхода из общего ряда. Примеров подобного «исхода» достаточно по всей Москве – от главных улиц до спальных районов. Что уж говорить о промышленных зонах, опоясывающих город между Садовым и Третьим транспортным кольцом. Степень разношерстности структурной, высотной, функциональной и стилистической при общем преобладании типологии бараков зашкаливает. И сегодня эта градостроительная «каша» оказывается в фокусе самого пристального внимания девелоперов, что оборачивается новым хаосом, в котором престижные бизнес-центры, креативные кластеры и жилые комплексы соседствуют со складскими ангарами, промышленными корпусами, жилыми домами, подпольными автосервисами и руинами не переживших перестройку предприятий. Говорить в этой ситуации о контекстуальной архитектуре не приходится. Окружающая застройка не дает проектировщику никаких ориентиров, от которых можно было бы отталкиваться. Каждый находит свою собственную систему и способ противостоять хаосу при помощи архитектуры.​

Оптимистичные ассоциации
Северная часть Даниловского района Москвы, ограниченная Летниковской улицей и изгибом Москвы-реки, может служить прекрасным примером градостроительного хаоса столичного «ржавого пояса». Обширная территория, словно старинный паровоз, который нужно раскочегарить, прежде чем он стронется с места и потихоньку наберет ход, вот уже лет десять как начала меняться, но отдельные успешные проекты пока не могут кардинально изменить имидж «мира на задворках Павелецкого вокзала». Но такая ситуация продлится недолго. Преобразования, словно волна, идут от Садового кольца, и когда к ним добавится программа реконструкции набережных Москвы-реки, с пристанями и новыми зонами отдыха у воды, район превратится в один из самых престижных и быстро развивающихся. Неудивительно, что прозорливые девелоперы, видящие на двадцать и тридцать лет вперед, уже сейчас инициируют по обоим берегам реки новые проекты привилегированного класса, одним из которых стал клубный дом с апартаментами, спроектированный на улице Летниковской проектным бюро АПЕКС для компании Hutton Development, получивший название MITTE.​
Ситуационный план © Проектное бюро АПЕКС
Ситуационный план © Проектное бюро АПЕКС

Архитекторы увидели в районе, набирающем темпы конверсионных преобразований, аналог берлинского Митте – отсюда и название комплекса. Прославившийся на весь мир своей креативной, комфортной атмосферой и пестрой средой, где перемешаны жилые и офисные здания, торговые и развлекательные центры, район постепенно заполнил зияющие лакуны в застройке Восточного Берлина, все еще несущего в себе послевоенные и постсоциалистические отметины. Эти шрамы постепенно затягиваются под влиянием энергии, привнесенной сюда тысячами успешных, талантливых и свободных духом людей, для которых Берлин стал идеальным местом для бизнеса, творчества и образования. Архитекторы увидели в хаосе «Запавелечья» схожий потенциал и, веря в возможность московского повторения берлинского сценария (а почему нет?), предложили девелоперу дать дому это имя, символизирующее современные представления о качестве и комфорте жизни в мегаполисе.​

Краеугольный дом
Мечты о возможных перспективах Даниловского района и его нынешнее состояние – это две большие разницы. И если на соседней Дербеневской улице уже видна штрих-пунктирная разметка будущего полноценного городского квартала, то на Летниковской своеобычный градостроительный хаос кажется непоколебимым. Расположение зданий и их габариты варьируются самым причудливым образом.​
Сечения по Летниковской улице © Проектное бюро АПЕКС
Сечения по Летниковской улице © Проектное бюро АПЕКС

Единственным более или менее напоминающим уличный фронт отрезком является серия из трех домов начала 2000-х годов на четной стороне улицы, прямо напротив участка, предназначенного для строительства клубного дома MITTE, и это соседство дало архитекторам компании АПЕКС возможность создать модель будущей застройки, какой она представлялась им по аналогии с берлинским тезкой. Один или два дома, стоящих вдоль одной стороны улицы, – это еще не система. Нужно сформировать полноценный профиль улицы с определенным соотношением ее ширины вместе с тротуарами и высотами домов. Будущий клубный дом станет тем недостающим элементом, благодаря которому появится точка отсчета для следующих проектов – фактически станет средовым «краеугольным камнем». Вместе с домом напротив он образует своеобразный портал или пропилеи, открывающие путь в будущее города, который здесь вырастет, если реализуется оптимистичный сценарий развития района.​

Очевидная логика
Специфика участка существенно ограничивала диапазон планировочных и объемно-пространственных решений. Почти квадратный в плане участок по одной из боковых сторон срезался под небольшим углом из-за присутствующих на подоснове «красных линий», обозначающих не то намеченную в прежние годы трассировку будущей магистрали, не то эхо планов по прокладке коммуникаций.​
Ситуационный план и «красные линии» © Проектное бюро АПЕКС
Ситуационный план и «красные линии» © Проектное бюро АПЕКС

Расположить на получившемся в результате трапециевидном участке дом можно было разными способами (в форме цилиндра, призмы со скругленными углами, трехгранного блока и т. п.), и все они были исследованы, но логический и рациональный подход возобладали. Выбор проектировщиков остановился на варианте Г-образного корпуса с одним скошенным углом, выходящим на несбывшуюся магистраль и образующим в объеме эффектный акцент в духе «дома-утюга».​
Варианты формообразования © Проектное бюро АПЕКС
Варианты формообразования © Проектное бюро АПЕКС
Схема формообразования © Проектное бюро АПЕКС
Схема формообразования © Проектное бюро АПЕКС

Чтобы не терять полезную площадь, здание максимально приближено к границам участка. Лишь вдоль косой стороны пришлось отступить на 4,2 метра, чтобы обеспечить требуемый пожарный проезд. Еще один отступ от периметра, на этот раз на двух верхних этажах, на уровне, совпадающем с отметкой карниза расположенного напротив здания, потребовался для выстраивания более гармоничного градостроительного диалога.​

Максимальная комбинаторность
Планировочные решения Г-образного корпуса можно было бы считать достаточно традиционными, если бы архитекторы не включили в проект ряд решений, направленных на оптимизацию использования площади этажа и учитывающих изменившиеся запросы покупателей подобного рода недвижимости.​
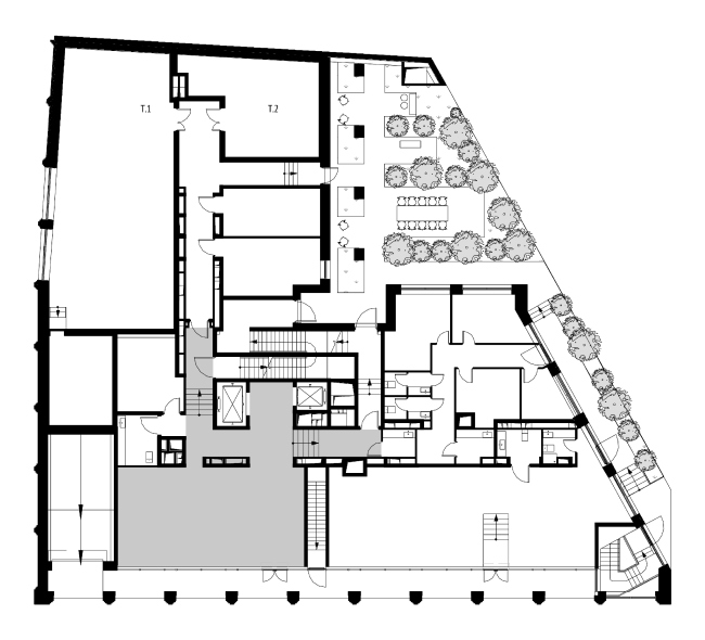
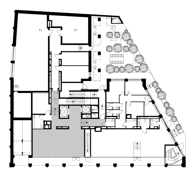
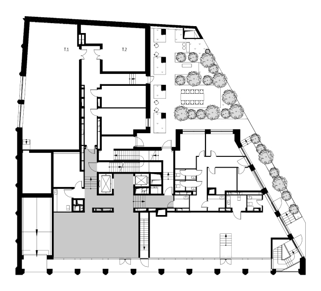
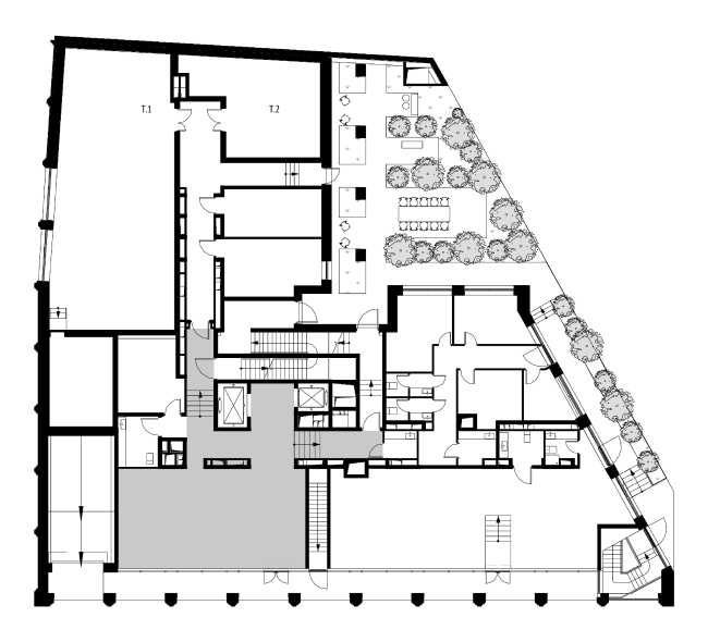
План на отм. ±0.00 © Проектное бюро АПЕКС
План на отм. ±0.00 © Проектное бюро АПЕКС

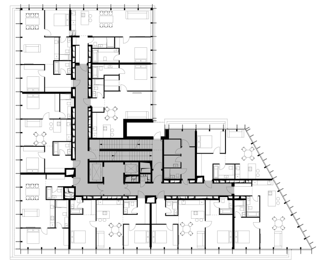
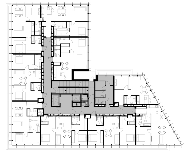
Не сразу бросается в глаза оригинальный способ расположения лестниц внутри лестнично-лифтового узла. По требованиям безопасности в доме должно быть две лестницы, а на плане она вроде бы одна. На самом деле внутри одной лестничной клетки размещены две лестницы с перекрестными маршами, каждая из которых предназначена для обслуживания жителей одного из двух «крыльев». Редкий для Москвы и вообще России тип двухмаршевых лестниц тем не менее удалось согласовать и с девелопером (спасибо трехмерным визуализациям и аргументу об экономии площади), и с МЧС (спасибо действующим нормативам).​

Здесь же, в блоке лестнично-лифтового узла, во внутреннем углу дома размещен технический балкон, снаружи выглядящий как метровая щель в фасадной оболочке. Он предназначен для установки внешних блоков кондиционеров.​
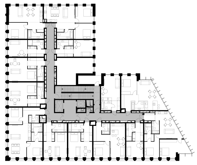
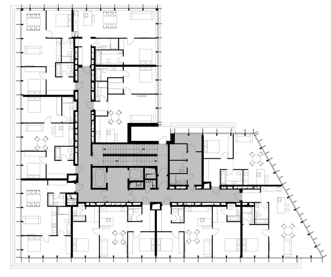
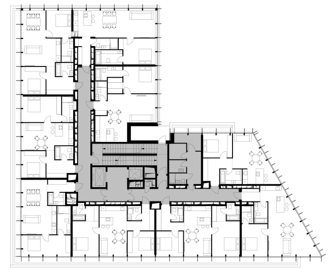
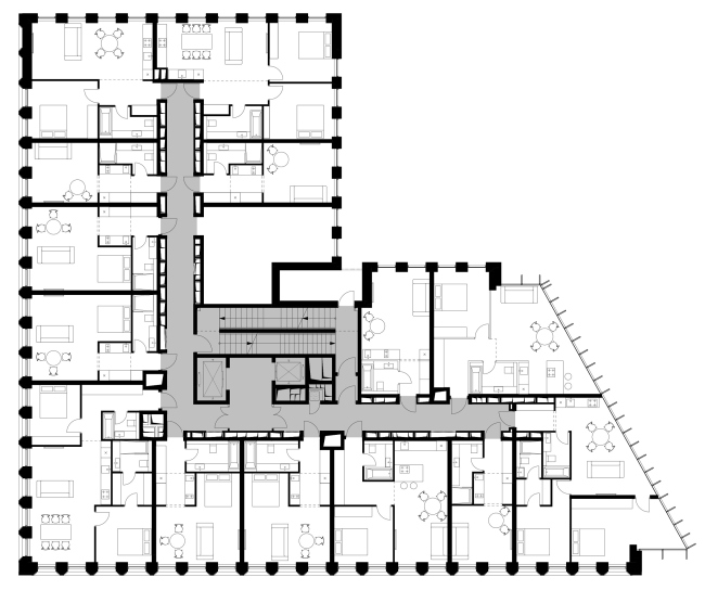
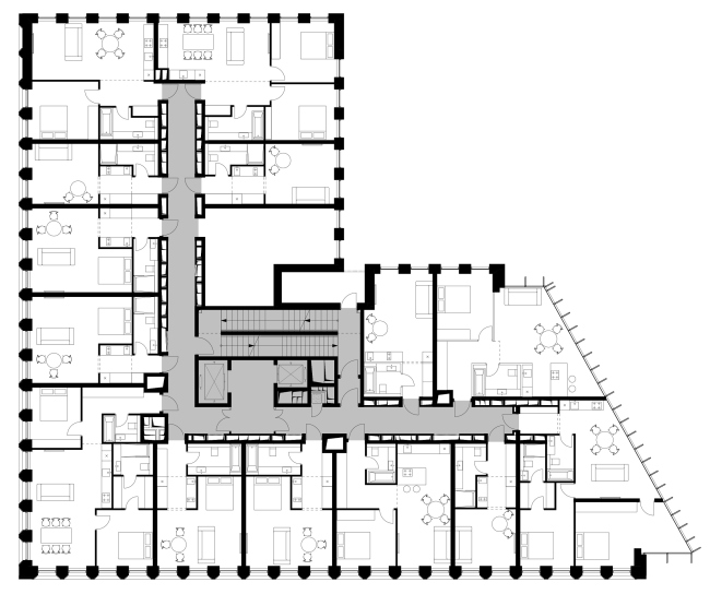
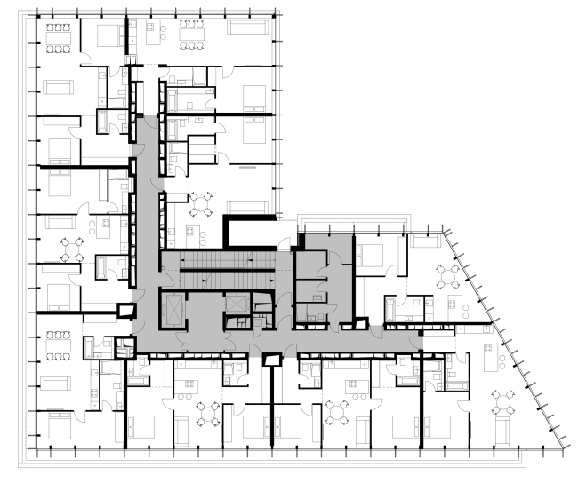
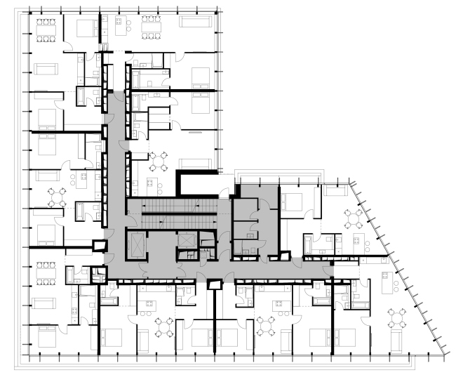
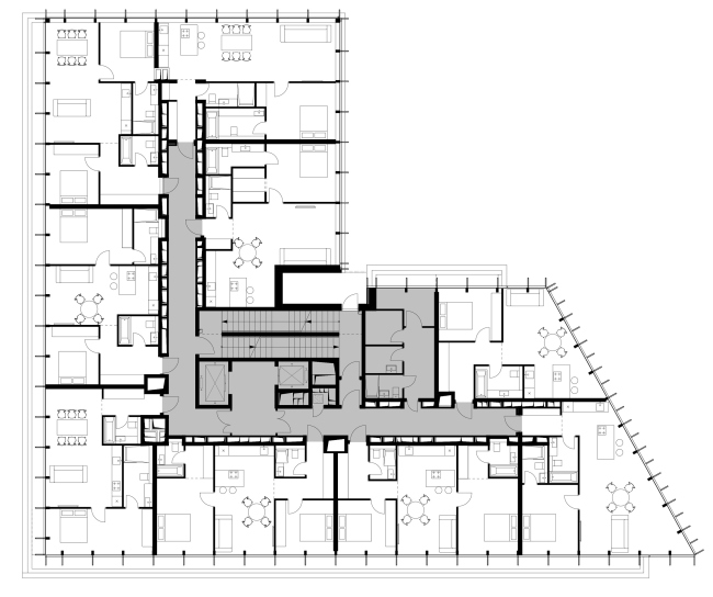
План типового этажа © Проектное бюро АПЕКС
План типового этажа © Проектное бюро АПЕКС
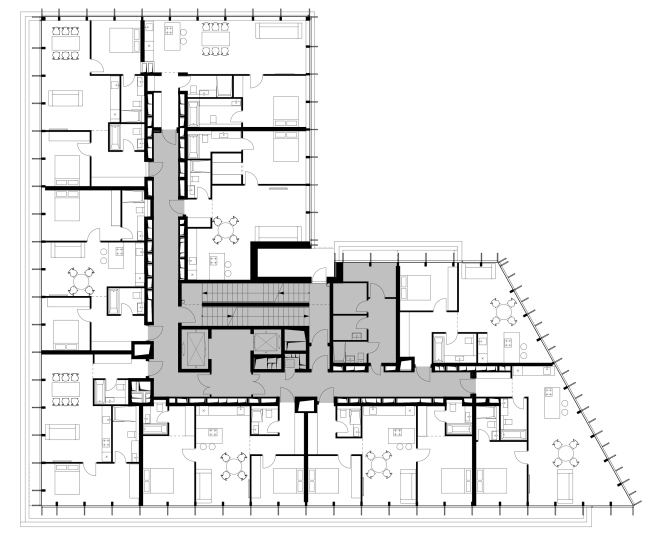
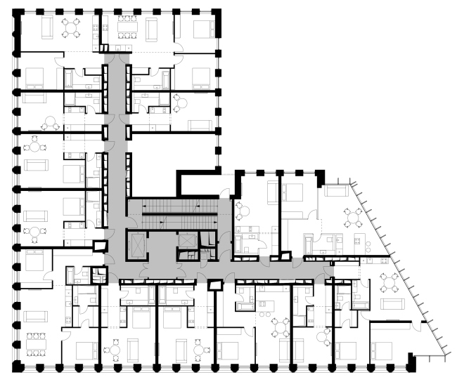
План 9-го этажа © Проектное бюро АПЕКС
План 9-го этажа © Проектное бюро АПЕКС

По обе стороны от Г-образного коридора в центре корпуса расположены апартаменты, чья площадь варьируется от 27–28 м2 для студии, 45–48 м2 для двухкомнатного блока и чуть больше 60 м2 для трехкомнатного. Кроме того, покупатель волен приобретать несколько блоков и объединять их между собой. Самые большие апартаменты расположены вдоль Летниковской улицы и на верхних этажах, откуда открываются лучшие виды на архитектурные доминанты Даниловского района. Отличительной особенностью планировок жилых блоков является включение кухни в общие зоны, а в самых компактных апартаментах кухня располагается в проходном коридоре, ведущем из прихожей в гостиную. Пожертвовав отдельной кухней, архитекторы смогли выделить больше места для спальной зоны в виде алькова с полноценной кроватью. Еще совсем недавно такое распределение приоритетов могло шокировать и оттолкнуть покупателя, но для целевой аудитории дома MITTE значительно важнее хороший сон, чем кулинарные эксперименты у плиты, тем более что современное поколение деловых и активных предпочитает заказывать еду на дом.​
Разрез © Проектное бюро АПЕКС
Разрез © Проектное бюро АПЕКС

Упорядоченный фасад
При всей рациональности подхода к градостроительным и планировочным решениям архитекторы позволили себе поэкспериментировать, и достаточно радикально, с фасадами будущего дома. Как это принято в АПЕКС, были апробированы несколько (на самом деле – больше 10) вариантов, исследующих возможности ритмической организации, пластической деформации и стилистической адаптации. Часть вариантов обыгрывала соседство с промышленными объектами с характерной для них краснокирпичной архитектурой; часть решалась в соответствии с современными тенденциями в оформлении клубных домов. Варьирующиеся размеры окон, французские балконы вместо лоджий, выверенное соотношение площади остекления и стены, высококлассные отделочные материалы и так далее, но основные усилия были направлены на поиски структуры или модуля, способного скорректировать визуальное восприятие почти кубического объема и придать ему элегантность с узнаваемой индивидуальностью, но без внешней аффектации, на стыке московской архитектурной традиции и стилистики новой берлинской застройки, кому-то кажущейся немного скучноватой, но при этом гарантированно формирующей гармоничную среду.​
Варианты решения фасадов © Проектное бюро АПЕКС
Варианты решения фасадов © Проектное бюро АПЕКС
Варианты решения фасадов © Проектное бюро АПЕКС
Варианты решения фасадов © Проектное бюро АПЕКС
Варианты решения фасадов © Проектное бюро АПЕКС
Варианты решения фасадов © Проектное бюро АПЕКС
Варианты решения фасадов © Проектное бюро АПЕКС
Варианты решения фасадов © Проектное бюро АПЕКС

Главный архитектор проекта Сергей Сенкевич считает: «Мы во многих своих проектах стараемся использовать фасадную сетку. Возможно, так проявляется во мне школа Владимира Ионовича Плоткина, у которого я работал после института и которому безумно благодарен. И я уверен, что проектирование в одном модуле не ограничивает архитектора, а наоборот, дает ему свободу и одновременно гарантии качественного результата. Этот прием работает всегда, с любыми архитекторами, какая бы школа ни была у них за плечами».​
Фасад со стороны Летниковской улицы © Проектное бюро АПЕКС
Фасад со стороны Летниковской улицы © Проектное бюро АПЕКС

В результате поисков сложилась интересная структура из двух оболочек: внешней – массивной решетки из кирпича – и внутренней витражной системы, облеченной в каркас из металлических ламелей под бронзу для защиты от солнца. Расстояние между внешними гранями обеих оболочек составляет всего 1,5 метра, но визуально кажется больше, за счет перспективных порталов из кирпича и их сдвоенной высоты. Кроме того, на восприятии сказывается увеличенная до 2 метров глубина открытых галерей на первом этаже, ведущих в общественные помещения. За счет получившегося навеса надобность в козырьках над подъездами отпала, за исключением одного, выполняющего роль акцента над парадным входом в клубный дом.​
Вид со стороны Летниковской улицы © Проектное бюро АПЕКС
Вид со стороны Летниковской улицы © Проектное бюро АПЕКС

Получившаяся структура перекликается с фасадным решением стоящего напротив дома и отдаленно напоминает бетонные «каркасы» и анодированные витражи зданий, построенных в 70–90-е годы прошлого века. Благодаря этим ассоциациям восприятие дома меняется, его по-берлински сдержанная архитектура получает изрядную долю необходимой для контекста «московскости».​
Вид на главный вход со стороны Летниковской улицы © Проектное бюро АПЕКС
Вид на главный вход со стороны Летниковской улицы © Проектное бюро АПЕКС

Две оболочки, кирпичная и витражная, ведут джентльменскую борьбу за первенство на фасадах дома. На пяти фасадах из шести доминирует кирпичная оболочка. Тем не менее внутренний ажурный фасад все время прорывается сквозь массу кирпичной стены, то вертикальными ребрами, то тонкими линиями металлических переплетов окон и ограждений французских балконов, то поясами декоративных экранов, закрывающих межэтажные перекрытия, чтобы в итоге вырваться наружу на последних двух этажах и на скошенном углу во всем своем приглушенном блеске. Открывающийся за углом фасад полностью отдан на откуп стеклу и металлу, и лишь за следующим поворотом, на выходящих во внутренний двор стенах, вновь появляется массивная кирпичная кладка в немного упрощенном формате, без перспективных порталов. Чтобы сбить монотонность чередования проемов и простенков, архитекторы добавили «мяса», оставив пару глухих участков по бокам от дальнего торцевого фасада. Словно огромный белый плащ, кирпичная стена «оборачивает» весь дом, оставляя открытой лишь отблескивающую старым золотом «корону» верхних этажей.​
Фрагмент фасада с перспективными порталами © Проектное бюро АПЕКС
Фрагмент фасада с перспективными порталами © Проектное бюро АПЕКС

Реабилитация белого
Использование белого цвета на фасаде клубного дома в противовес все набирающей обороты моде на темные оттенки – это отчасти дань образу «берлинского гостя» и отголосок средовой переклички с соседним домом. Цветовой нонконформизм поддерживается еще более радикальным экспериментом по выбору материала для отделки фасада – архитекторы остановились на кирпиче. Казалось бы, белый кирпич в России безнадежно дискредитирован огромным количеством сооружений из его силикатной версии, украшенных творчеством безымянных кладочников в виде старательно выложенных надписей «Миру – Мир», узоров типа «шашечка», «елочка» и прочих «цветочков» на фронтонах. Но в случае с клубным домом MITTE и архитекторы, и девелопер сделали ставку на качество конкретного кирпича ручной формовки, произведенного по технологии Wasserstrich, и его уникальные особенности. Благодаря смачиванию водой на этапе формовки кирпич приобретает легкую фактурность и «живость» внешней поверхности. Кладка из него получается очень ровной, но при этом не монотонной. Особенно эффектно этот кирпич, по замыслу архитекторов, будет работать на перспективных порталах оконных проемов на главном фасаде дома. Общее восприятие дома будет точно соответствовать его классу. Качество материалов (кирпич и анодированный алюминий под бронзу) будет нивелировать стилистические отсылы к советскому модернизму, создавая образ одновременно по-европейски сдержанной и по-московски богатой архитектуры для покупателей, научившихся ценить не только локацию, но действительно классный продукт.​
Патио © Проектное бюро АПЕКС
Патио © Проектное бюро АПЕКС

Бонусы
Для тех же искушенных покупателей архитекторы придумали еще два оригинальных бонуса, которые в перспективе могут претендовать на статус нового тренда московской недвижимости. Маленькое (всего 90 м2) пространство внутреннего двора архитекторы предложили использовать как общественную гостиную и зону отдыха.​
Патио © Проектное бюро АПЕКС
Патио © Проектное бюро АПЕКС

А на крыше продолжить эту историю и разбить небольшой сад, устроить места для отдыха, амфитеатр и разместить оборудование для просмотра кинофильмов на выдвижном экране.​
Вид на эксплуатируемую кровлю © Проектное бюро АПЕКС
Вид на эксплуатируемую кровлю © Проектное бюро АПЕКС

Конечно, Москва – не Берлин, не Барселона и не Милан, но какие-то элементарные радости жизни в городе должны быть доступны и москвичам. Так почему бы не сделать нормой общение между соседями или с семьей и друзьями в уютном внутреннем дворе с небольшим садом и беседкой с зоной барбекю, которую можно было бы забронировать на определенное время и не беспокоиться о бытовых мелочах? Не сделать обычной практикой просмотр кино или вечеринки на крыше? Способ проведения досуга, который стал так популярен благодаря кинотеатрам под открытым небом в парках Москвы, может «прийти» к вам домой и стать еще одним прекрасным поводом для общения между соседями.​
Вид на эксплуатируемую кровлю © Проектное бюро АПЕКС
Вид на эксплуатируемую кровлю © Проектное бюро АПЕКС

Сложно сейчас сказать наверняка, сбудутся ли мечты архитекторов о возрождении этого района. Единственное, что внушает оптимизм, – они сделали все для того, чтобы возможное будущее получило свое воплощение хотя бы в одном отдельно взятом доме. За первым успешным опытом есть шанс, что подтянутся и другие проекты. Так начинались истории десятков процветающих кварталов и районов во многих городах и мегаполисах мира. Может быть, пришло время создать свой Mitte в Москве?