Размещено на портале Архи.ру (www.archi.ru)

10.01.2019

Новый ландшафт образования

Нина Фролова
Объект:
Корпус лабораторий и мастерских Центра ПТУ Грац-Санкт-Петер
Адрес:
Австрия, None, Грац.

Корпус лабораторий и мастерских на кампусе ПТУ в Граце по проекту бюро Михаэля Валльраффа.

Корпус лабораторий и мастерских Центра ПТУ Грац-Санкт-Петер. Фото © Hertha Hurnaus
Корпус лабораторий и мастерских Центра ПТУ Грац-Санкт-Петер. Фото © Hertha Hurnaus

Мастерская архитектора Михаэля Валльраффа десять лет назад выиграла конкурс на проект реконструкции и уплотнения кампуса Центра ПТУ в районе Санкт-Петер: это комплекс из нескольких профессиональных училищ, где готовят строителей разных специальностей, автомехаников, парикмахеров, фармацевтов и т.д. Валльрафф и его коллеги предложили разместить плоские корпуса-пластины по периметру участка, а его центр занять невысоким «цехом» с эксплуатируемой кровлей. В результате, наряду с необходимым уплотнением, создается новое общественное пространство.
 
Корпус лабораторий и мастерских Центра ПТУ Грац-Санкт-Петер. Фото © Hertha Hurnaus
Корпус лабораторий и мастерских Центра ПТУ Грац-Санкт-Петер. Фото © Hertha Hurnaus

В ушедшем году была реализована первая очередь проекта: двухэтажный корпус мастерских, который авторы сравнивают с наброшенным на ландшафт платком, переходящий в пятиэтажную часть лабораторий. Новое сооружение во многих точках связано с существующими постройками, доступ на его зеленую крышу обеспечен многочисленными лестницами и пандусами, поэтому оно плотно вписано в контекст. Вместе с тем, эффектная форма позволяет ему выделиться среди разнородной застройки как кампуса, так и окружающих его учреждений среднего и высшего образования, что делает его, по мнению архитекторов, «социально-политическим заявлением» о новой роли профессиональных училищ в меняющемся образовательном ландшафте.
 
Корпус лабораторий и мастерских Центра ПТУ Грац-Санкт-Петер. Фото © Hertha Hurnaus
Корпус лабораторий и мастерских Центра ПТУ Грац-Санкт-Петер. Фото © Hertha Hurnaus

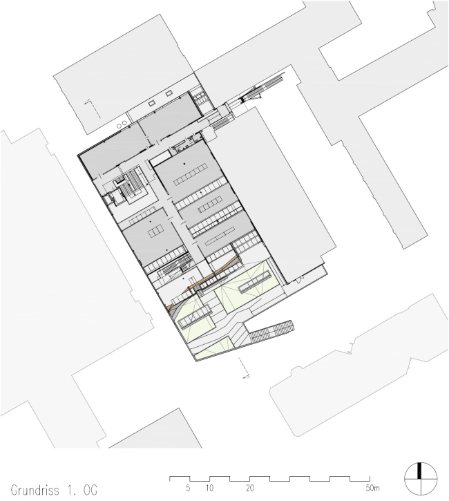
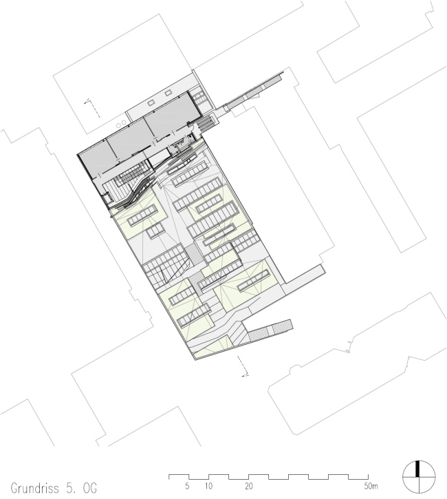
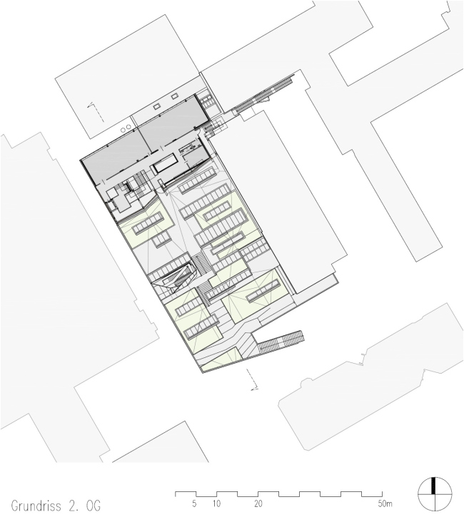
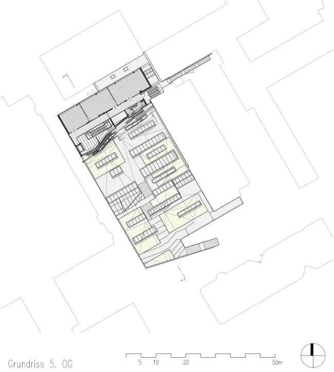
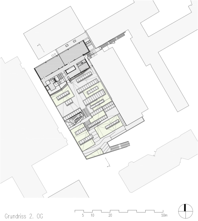
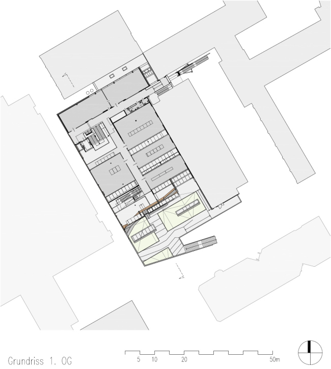
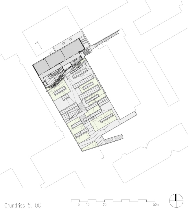
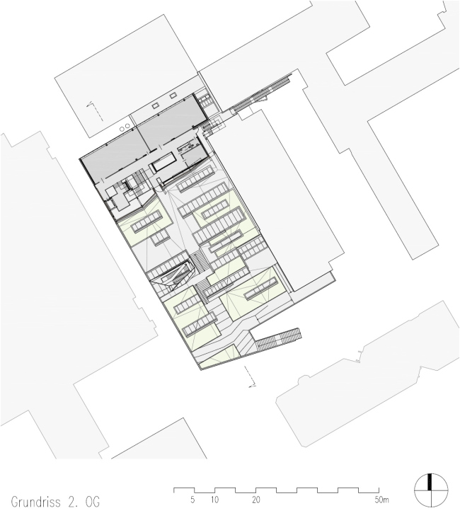
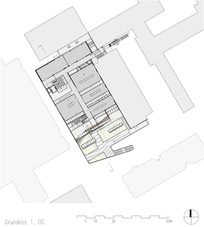
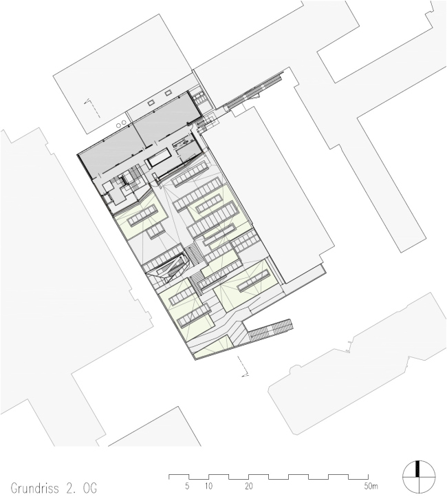
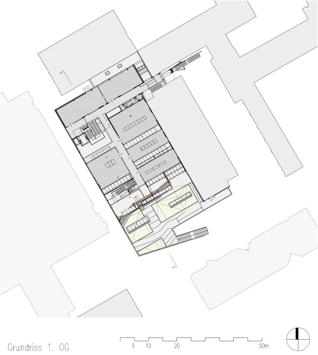
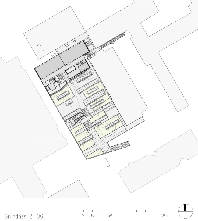
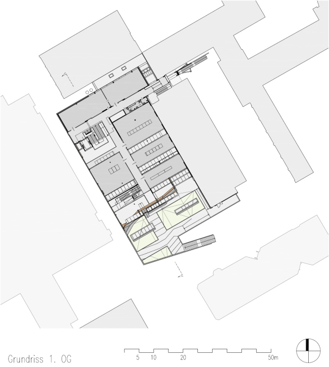
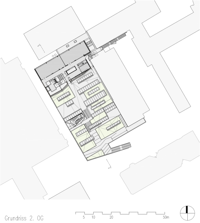
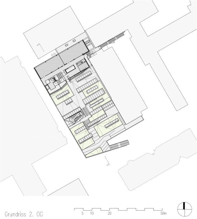
Расположение мастерских в двухэтажной части обусловлено нуждами освещения: они снабжаются солнечным светом через проемы в перекрытиях и световые колодцы. Многоярусная структура части лабораторий облегчает их техническое и экономическое снабжение и создает ясную планировку. Естественное освещение обеспечивает остекленный северный фасад. Два лестничных и рекреационных зала создают пространство для неформальных встреч и общения учащихся. С западной стороны новое здание в любой момент может быть расширено.
 
Корпус лабораторий и мастерских Центра ПТУ Грац-Санкт-Петер. Фото © Hertha Hurnaus
Корпус лабораторий и мастерских Центра ПТУ Грац-Санкт-Петер. Фото © Hertha Hurnaus

Учитывая строительные и связанные с инженерными сетями будущие профессии студентов, сам корпус может служить для них учебным пособием. Кроме упомянутых естественного освещения и зеленой кровли, среди экологических компонентов проекта – солнечные батареи и коллекторы, вентиляция с рекуперацией тепла, затенение фасада (в том числе в будущем – с помощью вьющихся растений), система сбора и использования дождевой воды.
Корпус лабораторий и мастерских Центра ПТУ Грац-Санкт-Петер. Фото © Hertha Hurnaus
Корпус лабораторий и мастерских Центра ПТУ Грац-Санкт-Петер. Фото © Hertha Hurnaus
Корпус лабораторий и мастерских Центра ПТУ Грац-Санкт-Петер. Фото © Michael Wallraff
Корпус лабораторий и мастерских Центра ПТУ Грац-Санкт-Петер. Фото © Michael Wallraff
Корпус лабораторий и мастерских Центра ПТУ Грац-Санкт-Петер. Фото © Hertha Hurnaus
Корпус лабораторий и мастерских Центра ПТУ Грац-Санкт-Петер. Фото © Hertha Hurnaus
Корпус лабораторий и мастерских Центра ПТУ Грац-Санкт-Петер. Фото © Hertha Hurnaus
Корпус лабораторий и мастерских Центра ПТУ Грац-Санкт-Петер. Фото © Hertha Hurnaus
Корпус лабораторий и мастерских Центра ПТУ Грац-Санкт-Петер. Фото © Hertha Hurnaus
Корпус лабораторий и мастерских Центра ПТУ Грац-Санкт-Петер. Фото © Hertha Hurnaus
Корпус лабораторий и мастерских Центра ПТУ Грац-Санкт-Петер. Фото © Hertha Hurnaus
Корпус лабораторий и мастерских Центра ПТУ Грац-Санкт-Петер. Фото © Hertha Hurnaus
Корпус лабораторий и мастерских Центра ПТУ Грац-Санкт-Петер. Фото © Hertha Hurnaus
Корпус лабораторий и мастерских Центра ПТУ Грац-Санкт-Петер. Фото © Hertha Hurnaus
Корпус лабораторий и мастерских Центра ПТУ Грац-Санкт-Петер. Фото © Hertha Hurnaus
Корпус лабораторий и мастерских Центра ПТУ Грац-Санкт-Петер. Фото © Hertha Hurnaus
Корпус лабораторий и мастерских Центра ПТУ Грац-Санкт-Петер. Фото © Hertha Hurnaus
Корпус лабораторий и мастерских Центра ПТУ Грац-Санкт-Петер. Фото © Hertha Hurnaus
Корпус лабораторий и мастерских Центра ПТУ Грац-Санкт-Петер. Фото © Hertha Hurnaus
Корпус лабораторий и мастерских Центра ПТУ Грац-Санкт-Петер. Фото © Hertha Hurnaus
Корпус лабораторий и мастерских Центра ПТУ Грац-Санкт-Петер. Фото © Hertha Hurnaus
Корпус лабораторий и мастерских Центра ПТУ Грац-Санкт-Петер. Фото © Hertha Hurnaus
Корпус лабораторий и мастерских Центра ПТУ Грац-Санкт-Петер. Фото © Hertha Hurnaus
Корпус лабораторий и мастерских Центра ПТУ Грац-Санкт-Петер. Фото © Hertha Hurnaus
Корпус лабораторий и мастерских Центра ПТУ Грац-Санкт-Петер. Фото © Hertha Hurnaus
Корпус лабораторий и мастерских Центра ПТУ Грац-Санкт-Петер. Фото © Hertha Hurnaus
Корпус лабораторий и мастерских Центра ПТУ Грац-Санкт-Петер. Фото © Hertha Hurnaus
Корпус лабораторий и мастерских Центра ПТУ Грац-Санкт-Петер. Фото © Hertha Hurnaus
Корпус лабораторий и мастерских Центра ПТУ Грац-Санкт-Петер. Фото © Michael Wallraff
Корпус лабораторий и мастерских Центра ПТУ Грац-Санкт-Петер. Фото © Michael Wallraff
Корпус лабораторий и мастерских Центра ПТУ Грац-Санкт-Петер. Фото © Michael Wallraff
Корпус лабораторий и мастерских Центра ПТУ Грац-Санкт-Петер. Фото © Michael Wallraff
Корпус лабораторий и мастерских Центра ПТУ Грац-Санкт-Петер. Фото © Michael Wallraff
Корпус лабораторий и мастерских Центра ПТУ Грац-Санкт-Петер. Фото © Michael Wallraff
Корпус лабораторий и мастерских Центра ПТУ Грац-Санкт-Петер © Michael Wallraff
Корпус лабораторий и мастерских Центра ПТУ Грац-Санкт-Петер © Michael Wallraff
Корпус лабораторий и мастерских Центра ПТУ Грац-Санкт-Петер © Michael Wallraff
Корпус лабораторий и мастерских Центра ПТУ Грац-Санкт-Петер © Michael Wallraff
Корпус лабораторий и мастерских Центра ПТУ Грац-Санкт-Петер © Michael Wallraff
Корпус лабораторий и мастерских Центра ПТУ Грац-Санкт-Петер © Michael Wallraff
Корпус лабораторий и мастерских Центра ПТУ Грац-Санкт-Петер © Michael Wallraff
Корпус лабораторий и мастерских Центра ПТУ Грац-Санкт-Петер © Michael Wallraff
Корпус лабораторий и мастерских Центра ПТУ Грац-Санкт-Петер © Michael Wallraff
Корпус лабораторий и мастерских Центра ПТУ Грац-Санкт-Петер © Michael Wallraff
Корпус лабораторий и мастерских Центра ПТУ Грац-Санкт-Петер © Michael Wallraff
Корпус лабораторий и мастерских Центра ПТУ Грац-Санкт-Петер © Michael Wallraff